Информационная система
«Ёшкин Кот»

Скачать базу одним архивом
Скачать обновления
История создания базы
Карта сайта

Скачать Типовые проектные решения 820-04-19.85 Альбом VI. Железобетонные конструкции водобойных колодцев и водобойных стенок. Монолитный и сборно-монолитный варианты

Дата актуализации: 10.08.2017

Типовые проектные решения 820-04-19.85

Альбом VI. Железобетонные конструкции водобойных колодцев и водобойных стенок. Монолитный и сборно-монолитный варианты

Обозначение: Типовые проектные решения 820-04-19.85
Обозначение англ: 820-04-19.85
Статус:cправочные материалы, мп, тпр
Название рус.:Альбом VI. Железобетонные конструкции водобойных колодцев и водобойных стенок. Монолитный и сборно-монолитный варианты
Дата добавления в базу:01.10.2014
Дата актуализации:05.05.2017
Оглавление:Общие данные
Водобойный колодец при hнб =< 1,0 м; в = 7,0 м; в = 9,5 м. ВКм (монолитный вариант). Схема армирования. План. Разрезы 1-1…5-5
Водобойный колодец при hнб =< 1,5 м; в = 7,0 м; в = 9,5 м. ВКм (монолитный вариант). Схема армирования. План. Разрезы 1-1…5-5
Водобойный колодец при hнб =< 2,0 м; в = 7,0 м; в = 9,5 м. ВКм (монолитный вариант). Схема армирования. План. Разрезы 1-1…5-5
Водобойный колодец. Схема раскладки плит-оболочек. План. Разрезы 1-1…5-5
Водобойный колодец. Ведомость привязки плит-оболочек при строительстве водобойных колодцев
Водобойный колодец при hнб =< 1,0 м; в = 7,0 м; в = 9,5 м. ВК (сборно-монолитный вариант). Схема армирования. План. Разрезы 1-1…5-5
Водобойный колодец при hнб =< 1,5 м; в = 7,0 м; в = 9,5 м. ВК (сборно-монолитный вариант). Схема армирования. План. Разрезы 1-1…5-5
Водобойный колодец при hнб =< 2,0 м; в = 7,0 м; в = 9,5 м. ВК (сборно-монолитный вариант). Схема армирования. План. Разрезы 1-1…5-5
Водобойные стенки. Номограммы для определения размеров и количества водобойных стенок при в = 7,0 м. План. Разрезы 1-1…3-3
Водобойные стенки. Номограммы для определения размеров и количества водобойных стенок при в = 9,5 м. План. Разрезы 1-1…3-3
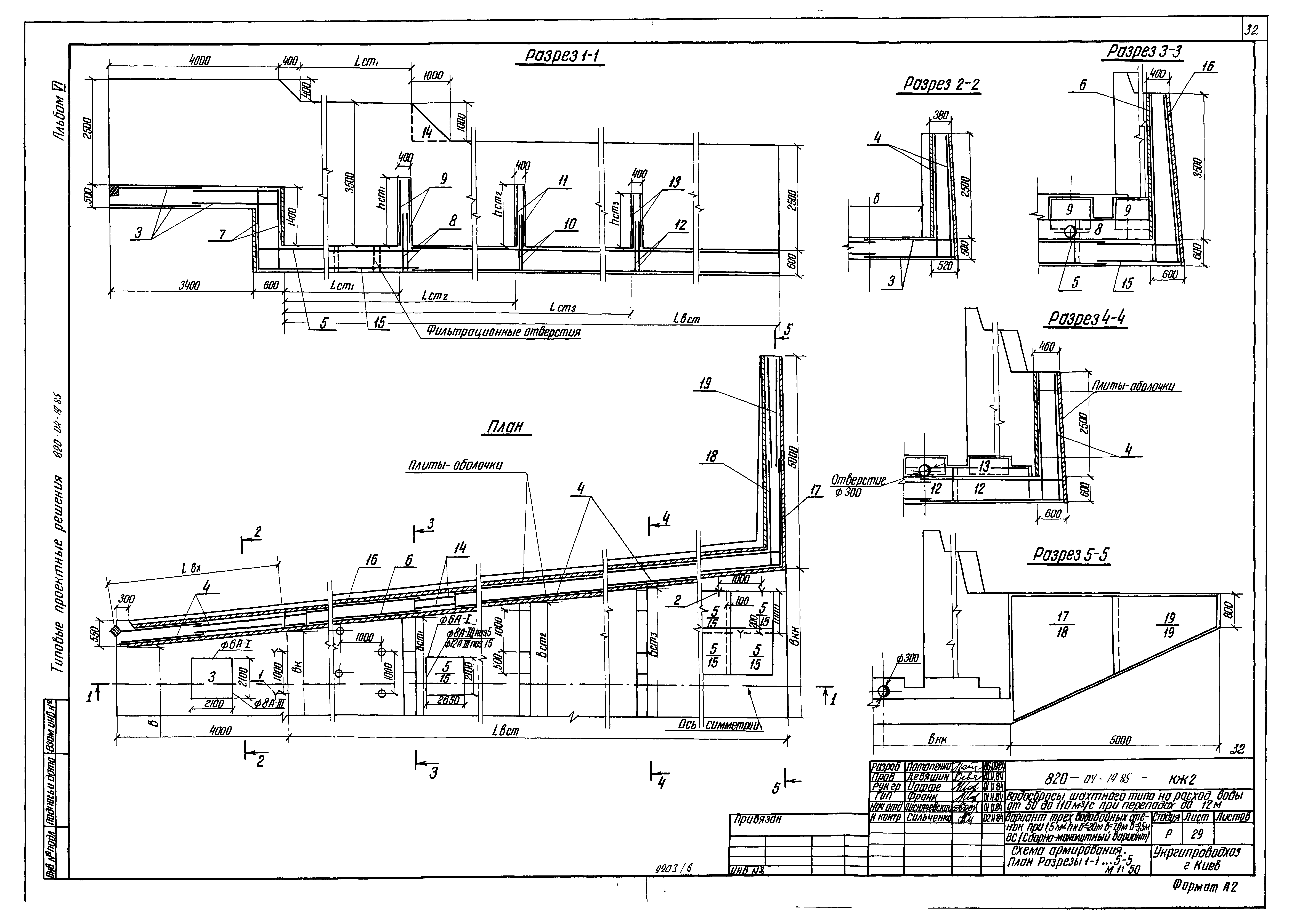
Вариант трех водобойных стенок при hнб = 1,0 м; в = 7,0 м; в = 9,5 м. ВСм (монолитный вариант). Схема армирования. План. Разрезы 1-1…5-5
Вариант трех водобойных стенок при 1,0 м < hнб =< 1,5 м; в = 7,0 м; в = 9,5 м. ВСм (монолитный вариант). Схема армирования. План. Разрезы 1-1…5-5
Вариант трех водобойных стенок при 1,5 м < hнб =< 2,0 м; в = 7,0 м; в = 9,5 м. ВСм (монолитный вариант). Схема армирования. План. Разрезы 1-1…5-5
Вариант двух водобойных стенок при hнб = 1,0 м; в = 7,0 м; в = 9,5 м. ВСм (монолитный вариант). Схема армирования. План. Разрезы 1-1…5-5
Вариант двух водобойных стенок при 1,0 м < hнб =< 1,5 м; в = 7,0 м; в = 9,5 м. ВСм (монолитный вариант). Схема армирования. План. Разрезы 1-1…5-5
Вариант двух водобойных стенок при 1,5 м < hнб =< 2,0 м; в = 7,0 м; в = 9,5 м. ВСм (монолитный вариант). Схема армирования. План. Разрезы 1-1…5-5
Вариант одной водобойной стенки при hнб = 1,0 м; в = 7,0 м; в = 9,5 м. ВСм (монолитный вариант). Схема армирования. План. Разрезы 1-1…5-5
Вариант одной водобойной стенки при 1,0 м < hнб =< 1,5 м; в = 7,0 м; в = 9,5 м. ВСм (монолитный вариант). Схема армирования. План. Разрезы 1-1…5-5
Вариант одной водобойной стенки при 1,5 м < hнб =< 2,0 м; в = 7,0 м; в = 9,5 м. ВСм (монолитный вариант). Схема армирования. План. Разрезы 1-1…5-5
Водобойные стенки. Схема раскладки плит-оболочек. План. Разрезы 1-1…5-5
Водобойные стенки. Ведомость привязки плит-оболочек при строительстве водобойных колодцев
Вариант трех водобойных стенок при hнб =1,0 м; в = 7,0 м; в = 9,5 м. ВС (сборно-монолитный вариант). Схема армирования. План. Разрезы 1-1…5-5
Вариант трех водобойных стенок при 1,0 м < hнб =< 1,5 м; в = 7,0 м; в = 9,5 м. ВС (сборно-монолитный вариант). Схема армирования. План. Разрезы 1-1…5-5
Вариант трех водобойных стенок при 1,5 м < hнб =< 2,0 м; в = 7,0 м; в = 9,5 м. ВС (сборно-монолитный вариант). Схема армирования. План. Разрезы 1-1…5-5
Вариант двух водобойных стенок при hнб = 1,0 м; в = 7,0 м; в = 9,5 м. ВС (сборно-монолитный вариант). Схема армирования. План. Разрезы 1-1…5-5
Вариант двух водобойных стенок при 1,0 м < hнб =< 1,5 м; в = 7,0 м; в = 9,5 м. ВС (сборно-монолитный вариант). Схема армирования. План. Разрезы 1-1…5-5
Вариант двух водобойных стенок при 1,5 м < hнб =< 2,0 м; в = 7,0 м; в = 9,5 м. ВС (сборно-монолитный вариант). Схема армирования. План. Разрезы 1-1…5-5
Вариант одной водобойной стенки при hнб = 1,0 м; в = 7,0 м; в = 9,5 м. ВС (сборно-монолитный вариант). Схема армирования. План. Разрезы 1-1…5-5
Вариант одной водобойной стенки при 1,0 м < hнб =< 1,5 м; в = 7,0 м; в = 9,5 м. ВС (сборно-монолитный вариант). Схема армирования. План. Разрезы 1-1…5-5
Вариант одной водобойной стенки при 1,5 м < hнб =< 2,0 м; в = 7,0 м; в = 9,5 м. ВС (сборно-монолитный вариант). Схема армирования. План. Разрезы 1-1…5-5
Водобойный колодец (вариант сборных стен). Схема раскладки стеновых блоков марки СБ. План. Разрезы 1-1…5-5
Водобойный колодец (вариант сборных стен). Ведомость привязки стеновых блоков СБ при строительстве водобойных колодцев
Водобойный колодец при hнб = 1,0 м; в = 7,0 м; в = 9,5 м. ВКс (вариант сборных стен). Схема армирования. План. Разрезы 1-1…5-5
Водобойный колодец при hнб =< 1,5 м; в = 7,0 м; в = 9,5 м. ВКс (вариант сборных стен). Схема армирования. План. Разрезы 1-1…5-5
Водобойный колодец при hнб =< 2,0 м; в = 7,0 м; в = 9,5 м. ВКс (вариант сборных стен). Схема армирования. План. Разрезы 1-1…5-5
Водобойные стенки (вариант сборных стен). Схема раскладки стеновых блоков марки СБ. План. Разрезы 1-1…5-5
Водобойные стенки (вариант сборных стен). Ведомость привязки стеновых блоков СБ при строительстве водобойных колодцев
Вариант трех водобойных стенок при hнб = 1,0 м; в = 7,0 м; в = 9,5 м. ВСс (вариант сборных стен). Схема армирования. План. Разрезы 1-1…5-5
Вариант трех водобойных стенок при 1,0 м < hнб =< 1,5 м; в = 7,0 м; в = 9,5 м. ВСс (вариант сборных стен). Схема армирования. План. Разрезы 1-1…5-5
Вариант трех водобойных стенок при 1,5 м < hнб =< 2,0 м; в = 7,0 м; в = 9,5 м. ВСс (вариант сборных стен). Схема армирования. План. Разрезы 1-1…5-5
Вариант водобойных колодцев. Номограммы для определения количества сеток при hнб = 1,0 м; hнб = 1,5 м
Вариант водобойных колодцев. Номограммы для определения количества сеток при hнб =< 2,0 м
Вариант водобойных стенок. Номограммы для определения количества сеток при hнб = 1,0 м; 1,0 м < hнб =< 1,5 м
Вариант водобойных стенок. Номограммы для определения количества сеток при 1,5 м < hнб =< 2,0 м
Спецификация к схеме армирования водобойного колодца при hнб = 1,0 м; в = 7,0 м; в = 9,5 м. ВКм (монолитный вариант)
Спецификация к схеме армирования водобойного колодца при hнб =< 1,5 м; в = 7,0 м; в = 9,5 м. ВКм (монолитный вариант)
Спецификация к схеме армирования водобойного колодца при hнб =< 2,0 м; в = 7,0 м; в = 9,5 м. ВКм (монолитный вариант)
Спецификация к схеме армирования водобойного колодца при hнб = 1,0 м; в = 7,0 м; в = 9,5 м. ВК (сборно-монолитный вариант)
Спецификация к схеме армирования водобойного колодца при hнб =< 1,5 м; в = 7,0 м; в = 9,5 м. ВК (сборно-монолитный вариант)
Спецификация к схеме армирования водобойного колодца при hнб =< 2,0 м; в = 7,0 м; в = 9,5 м. ВК (сборно-монолитный вариант)
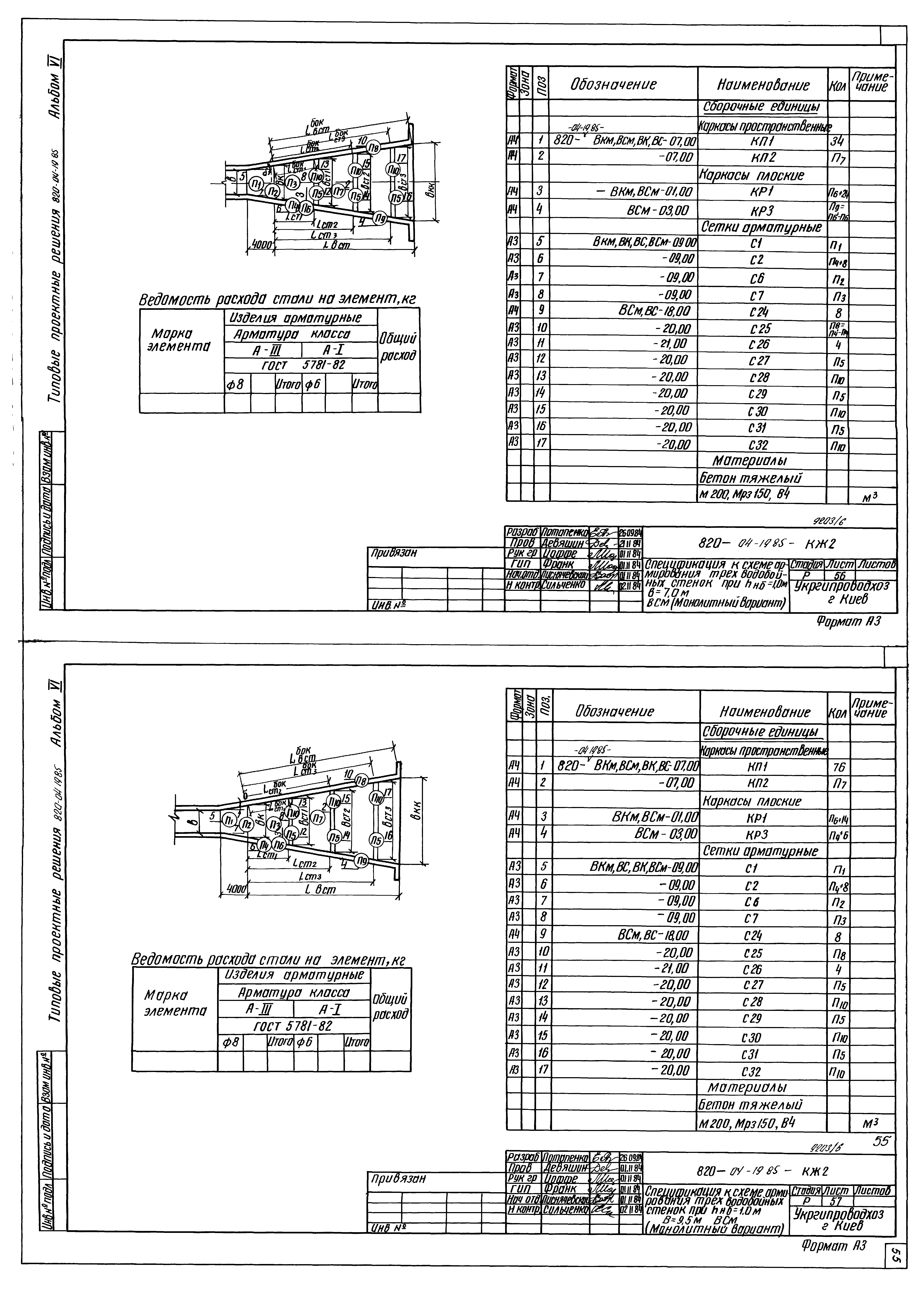
Спецификация к схеме армирования трех водобойных стенок при hнб = 1,0 м; в = 7,0 м. ВСм (монолитный вариант)
Спецификация к схеме армирования трех водобойных стенок при hнб = 1,0 м; в = 9,5 м. ВСм (монолитный вариант)
Спецификация к схеме армирования трех водобойных стенок при 1,0 м < hнб =< 1,5 м; в = 7,0 м. ВСм (монолитный вариант)
Спецификация к схеме армирования трех водобойных стенок при 1,0 м < hнб =< 1,5 м; в = 9,5 м. ВСм (монолитный вариант)
Спецификация к схеме армирования трех водобойных стенок при 1,5 м < hнб =< 2,0 м; в = 7,0 м. ВСм (монолитный вариант)
Спецификация к схеме армирования трех водобойных стенок при 1,5 м < hнб =< 2,0 м; в = 9,5 м. ВСм (монолитный вариант)
Спецификация к схеме армирования двух водобойных стенок при hнб = 1,0 м; в = 7,0 м. ВСм (монолитный вариант)
Спецификация к схеме армирования двух водобойных стенок при hнб = 1,0 м; в = 9,5 м. ВСм (монолитный вариант)
Спецификация к схеме армирования двух водобойных стенок при 1,0 м < hнб =< 1,5 м; в = 7,0 м. ВСм (монолитный вариант)
Спецификация к схеме армирования двух водобойных стенок при 1,0 м < hнб =< 1,5 м; в = 9,5 м. ВСм (монолитный вариант)
Спецификация к схеме армирования двух водобойных стенок при 1,5 м < hнб =< 2,0 м; в = 7,0 м. ВСм (монолитный вариант)
Спецификация к схеме армирования двух водобойных стенок при 1,5 м < hнб =< 2,0 м; в = 9,5 м. ВСм (монолитный вариант)
Спецификация к схеме армирования одной водобойной стенки при hнб = 1,0 м; в = 7,0 м. ВСм (монолитный вариант)
Спецификация к схеме армирования одной водобойной стенки при hнб = 1,0 м; в = 9,5 м. ВСм (монолитный вариант)
Спецификация к схеме армирования одной водобойной стенки при 1,0 м < hнб =< 1,5 м; в = 7,0 м. ВСм (монолитный вариант)
Спецификация к схеме армирования одной водобойной стенки при 1,0 м < hнб =< 1,5 м; в = 9,5 м. ВСм (монолитный вариант)
Спецификация к схеме армирования одной водобойной стенки при 1,5 м < hнб =< 2,0 м; в = 7,0 м. ВСм (монолитный вариант)
Спецификация к схеме армирования одной водобойной стенки при 1,5 м < hнб =< 2,0 м; в = 9,5 м. ВСм (монолитный вариант)
Спецификация к схеме армирования трех водобойных стенок при hнб = 1,0 м; в = 7,0 м. ВС (сборно-монолитный вариант)
Спецификация к схеме армирования трех водобойных стенок при hнб = 1,0 м; в = 9,5 м. ВС (сборно-монолитный вариант)
Спецификация к схеме армирования трех водобойных стенок при 1,0 м < hнб =< 1,5 м; в = 7,0 м. ВС (сборно-монолитный вариант)
Спецификация к схеме армирования трех водобойных стенок при 1,0 м < hнб =< 1,5 м; в = 9,5 м. ВС (сборно-монолитный вариант)
Спецификация к схеме армирования трех водобойных стенок при 1,5 м < hнб =< 2,0 м; в = 7,0 м. ВС (сборно-монолитный вариант)
Спецификация к схеме армирования трех водобойных стенок при 1,5 м < hнб =< 2,0 м; в = 9,5 м. ВС (сборно-монолитный вариант)
Спецификация к схеме армирования двух водобойных стенок при hнб = 1,0 м; в = 7,0 м. ВС (сборно-монолитный вариант)
Спецификация к схеме армирования двух водобойных стенок при hнб = 1,0 м; в = 9,5 м. ВС (сборно-монолитный вариант)
Спецификация к схеме армирования двух водобойных стенок при 1,0 м < hнб =< 1,5 м; в = 7,0 м. ВС (сборно-монолитный вариант)
Спецификация к схеме армирования двух водобойных стенок при 1,0 м < hнб =< 1,5 м; в = 9,5 м. ВС (сборно-монолитный вариант)
Спецификация к схеме армирования двух водобойных стенок при 1,5 м < hнб =< 2,0 м; в = 7,0 м. ВС (сборно-монолитный вариант)
Спецификация к схеме армирования двух водобойных стенок при 1,5 м < hнб =< 2,0 м; в = 9,5 м. ВС (сборно-монолитный вариант)
Спецификация к схеме армирования одной водобойной стенки при hнб = 1,0 м; в = 7,0 м. ВС (сборно-монолитный вариант)
Спецификация к схеме армирования одной водобойной стенки при hнб = 1,0 м; в = 9,5 м. ВС (сборно-монолитный вариант)
Спецификация к схеме армирования одной водобойной стенки при 1,0 м < hнб =< 1,5 м; в = 7,0 м. ВС (сборно-монолитный вариант)
Спецификация к схеме армирования одной водобойной стенки при 1,0 м < hнб =< 1,5 м; в = 9,5 м. ВС (сборно-монолитный вариант)
Спецификация к схеме армирования одной водобойной стенки при 1,5 м < hнб =< 2,0 м; в = 7,0 м. ВС (сборно-монолитный вариант)
Спецификация к схеме армирования одной водобойной стенки при 1,5 м < hнб =< 2,0 м; в = 9,5 м. ВС (сборно-монолитный вариант)
Спецификация к схеме армирования водобойного колодца при hнб = 1,0 м; в = 7,0 м; в = 9,5 м. ВКс (вариант сборных стен)
Спецификация к схеме армирования водобойного колодца при hнб =< 1,5 м; в = 7,0 м; в = 9,5 м. ВКс (вариант сборных стен)
Спецификация к схеме армирования водобойного колодца при hнб =< 2,0 м; в = 7,0 м; в = 9,5 м. ВКс (вариант сборных стен)
Спецификация к схеме армирования трех водобойных стенок при hнб = 1,0 м; в = 7,0 м. ВСс (вариант сборных стен)
Спецификация к схеме армирования трех водобойных стенок при hнб = 1,0 м; в = 9,5 м. ВСс (вариант сборных стен)
Спецификация к схеме армирования трех водобойных стенок при 1,0 м < hнб =< 1,5 м; в = 7,0 м. ВСс (вариант сборных стен)
Спецификация к схеме армирования трех водобойных стенок при 1,0 м < hнб =< 1,5 м; в = 9,5 м. ВСс (вариант сборных стен)
Спецификация к схеме армирования трех водобойных стенок при 1,5 м < hнб =< 2,0 м; в = 7,0 м. ВСс (вариант сборных стен)
Спецификация к схеме армирования трех водобойных стенок при 1,5 м < hнб =< 2,0 м; в = 9,5 м. ВСс (вариант сборных стен)
Каркас плоский КР1
Каркас плоский КР2
Каркас плоский КР3
Каркас плоский КР4
Каркас плоский КР5
Каркас плоский КР6
Каркас пространственный КП (КП1, КП2)
Сетка арматурная С (С4, С8)
Сетка арматурная С (С1, С2, С6, С7, С11, С18, С12)
Сетка арматурная С5
Сетка арматурная С3
Сетка арматурная С (С9, С10, С16, С17)
Сетка арматурная С13
Сетка арматурная С14
Сетка арматурная С19
Сетка арматурная С20
Сетка арматурная С (С21…С23, С15)
Сетка арматурная С (С24, С35)
Сетка арматурная С34
Сетка арматурная С (С25, С27…С33, С36)
Сетка арматурная С (С26, С37…С39)
Сетка арматурная С41
Сетка арматурная С40
Сетка арматурная С (С44…С47)
Сетка арматурная С (С42, С43)
Сетка арматурная С (С49, С48)
Сетка арматурная С (С50…С52)
Сетка арматурная С (С53, С54)
Сетка арматурная С60
Сетка арматурная С (С55…С59)
Разработан: Укргипроводхоз Минводхоза СССР
Утверждён:29.04.1985 Минводхоз СССР (USSR Minvodkhoz 434)
Расположен в:Техническая документация Строительство Справочные документы Типовые строительные конструкции, изделия и узлы Общероссийский строительный каталог Промышленные предприятия, здания и сооружения Здания и сооружения санитарно-технические Водоснабжение Системы и сооружения мелиоративные Каналы и сооружения на каналах Плотины и сооружения водосбросные
Типовые проектные решения 820-04-19.85Типовые проектные решения 820-04-19.85Типовые проектные решения 820-04-19.85Типовые проектные решения 820-04-19.85Типовые проектные решения 820-04-19.85Типовые проектные решения 820-04-19.85Типовые проектные решения 820-04-19.85Типовые проектные решения 820-04-19.85Типовые проектные решения 820-04-19.85Типовые проектные решения 820-04-19.85Типовые проектные решения 820-04-19.85Типовые проектные решения 820-04-19.85Типовые проектные решения 820-04-19.85Типовые проектные решения 820-04-19.85Типовые проектные решения 820-04-19.85Типовые проектные решения 820-04-19.85Типовые проектные решения 820-04-19.85Типовые проектные решения 820-04-19.85Типовые проектные решения 820-04-19.85Типовые проектные решения 820-04-19.85Типовые проектные решения 820-04-19.85Типовые проектные решения 820-04-19.85Типовые проектные решения 820-04-19.85Типовые проектные решения 820-04-19.85Типовые проектные решения 820-04-19.85Типовые проектные решения 820-04-19.85Типовые проектные решения 820-04-19.85Типовые проектные решения 820-04-19.85Типовые проектные решения 820-04-19.85Типовые проектные решения 820-04-19.85Типовые проектные решения 820-04-19.85Типовые проектные решения 820-04-19.85Типовые проектные решения 820-04-19.85Типовые проектные решения 820-04-19.85Типовые проектные решения 820-04-19.85Типовые проектные решения 820-04-19.85Типовые проектные решения 820-04-19.85Типовые проектные решения 820-04-19.85Типовые проектные решения 820-04-19.85Типовые проектные решения 820-04-19.85Типовые проектные решения 820-04-19.85Типовые проектные решения 820-04-19.85Типовые проектные решения 820-04-19.85Типовые проектные решения 820-04-19.85Типовые проектные решения 820-04-19.85Типовые проектные решения 820-04-19.85Типовые проектные решения 820-04-19.85Типовые проектные решения 820-04-19.85Типовые проектные решения 820-04-19.85Типовые проектные решения 820-04-19.85Типовые проектные решения 820-04-19.85Типовые проектные решения 820-04-19.85Типовые проектные решения 820-04-19.85Типовые проектные решения 820-04-19.85Типовые проектные решения 820-04-19.85Типовые проектные решения 820-04-19.85Типовые проектные решения 820-04-19.85Типовые проектные решения 820-04-19.85Типовые проектные решения 820-04-19.85Типовые проектные решения 820-04-19.85Типовые проектные решения 820-04-19.85Типовые проектные решения 820-04-19.85Типовые проектные решения 820-04-19.85Типовые проектные решения 820-04-19.85Типовые проектные решения 820-04-19.85Типовые проектные решения 820-04-19.85Типовые проектные решения 820-04-19.85Типовые проектные решения 820-04-19.85Типовые проектные решения 820-04-19.85Типовые проектные решения 820-04-19.85Типовые проектные решения 820-04-19.85Типовые проектные решения 820-04-19.85Типовые проектные решения 820-04-19.85Типовые проектные решения 820-04-19.85Типовые проектные решения 820-04-19.85Типовые проектные решения 820-04-19.85Типовые проектные решения 820-04-19.85Типовые проектные решения 820-04-19.85Типовые проектные решения 820-04-19.85Типовые проектные решения 820-04-19.85Типовые проектные решения 820-04-19.85Типовые проектные решения 820-04-19.85Типовые проектные решения 820-04-19.85Типовые проектные решения 820-04-19.85Типовые проектные решения 820-04-19.85Типовые проектные решения 820-04-19.85Типовые проектные решения 820-04-19.85

© 2013 Ёшкин Кот :-) Карта сайта