Скачать Типовой проект 411-1-160.90 Альбом 1. Часть 1. Пояснительная записка. Технология производства. Архитектурные решения. Конструкции железобетонные. Внутренние водопровод и канализация. Отопление, вентиляция и кондиционирование воздухаДата актуализации: 10.08.2017 Типовой проект 411-1-160.90
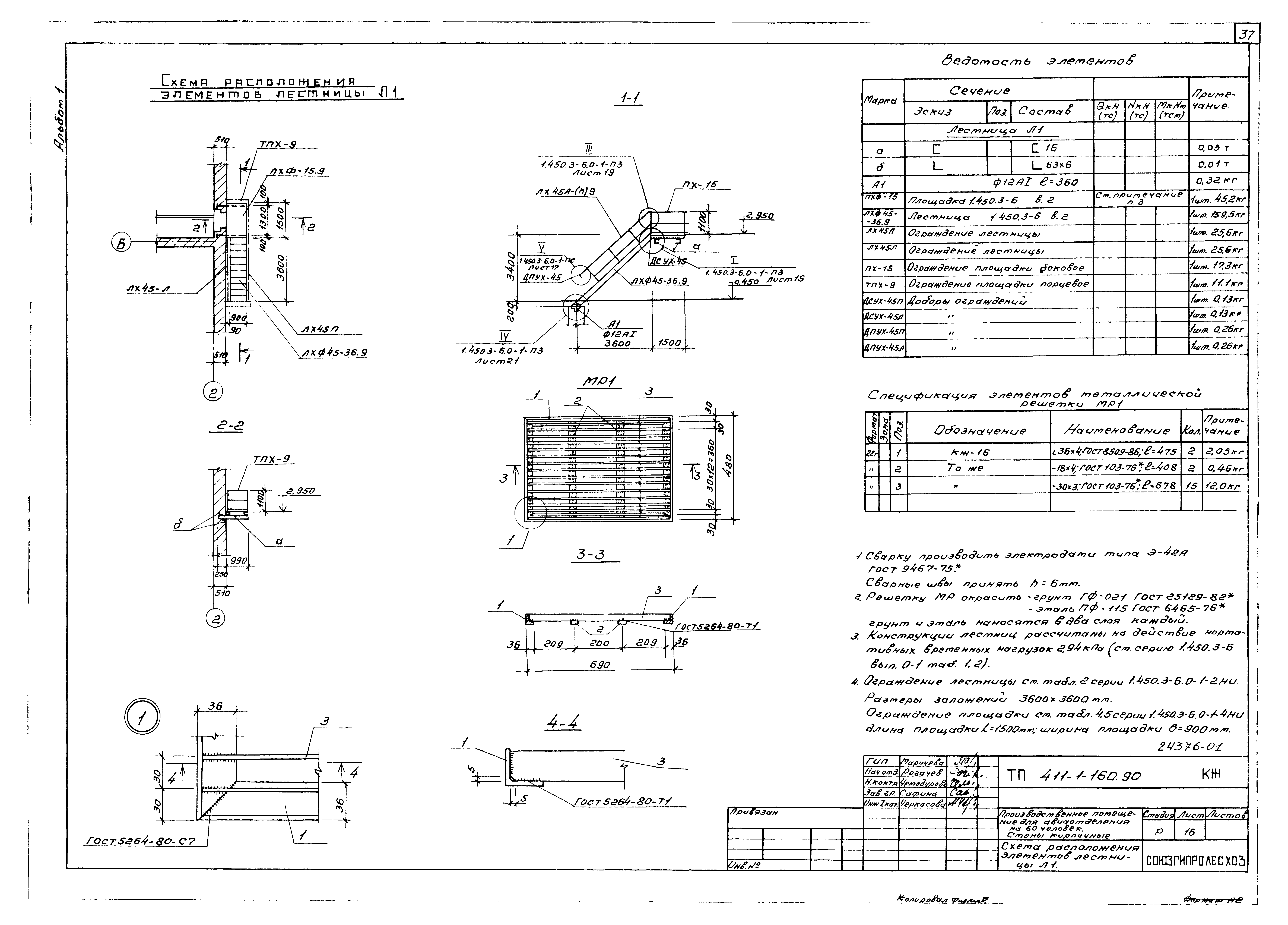
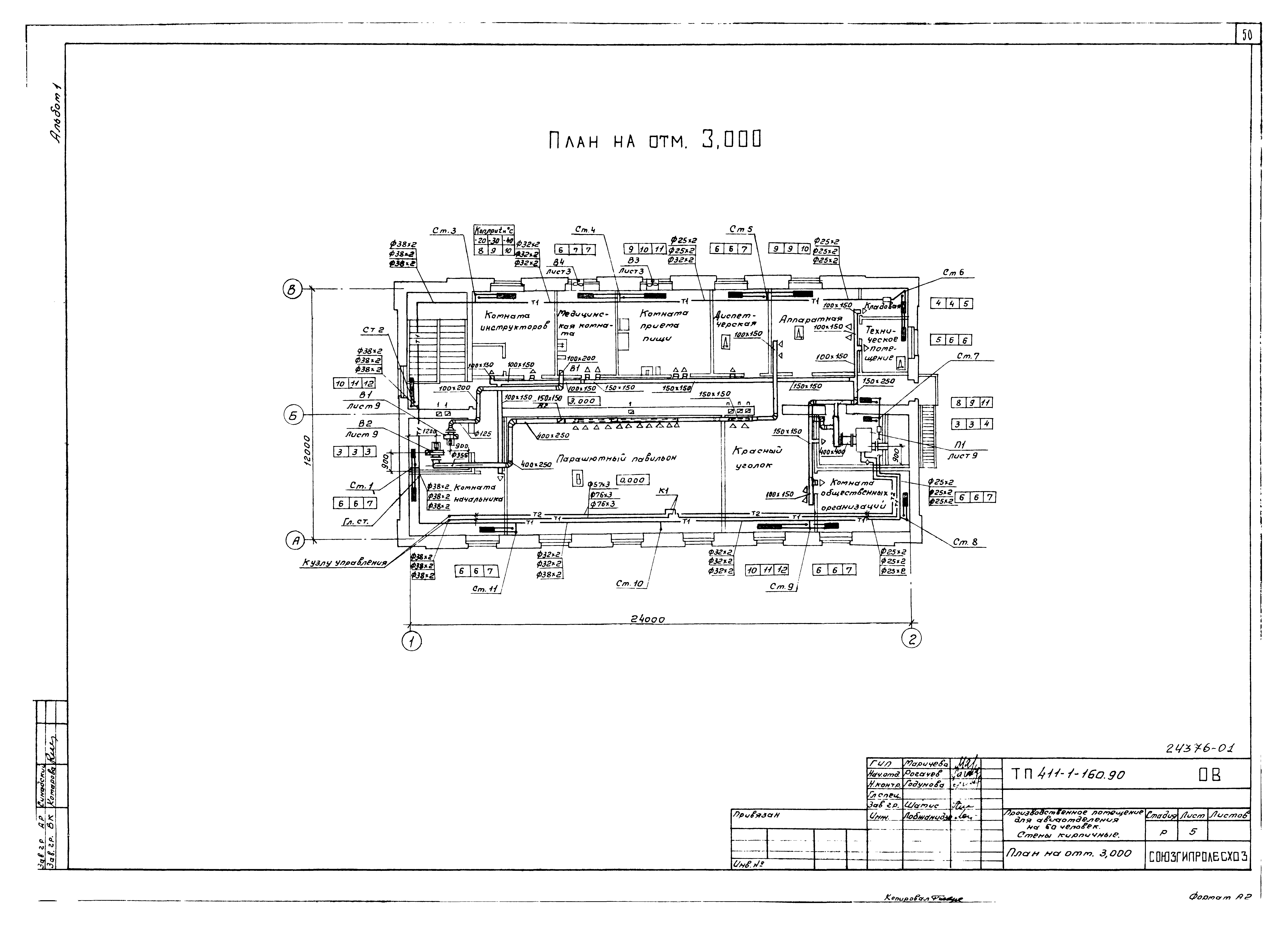
Альбом 1. Часть 1. Пояснительная записка. Технология производства. Архитектурные решения. Конструкции железобетонные. Внутренние водопровод и канализация. Отопление, вентиляция и кондиционирование воздухаОбозначение: | Типовой проект 411-1-160.90 | Обозначение англ: | 411-1-160.90 | Статус: | не определен законодательством | Название рус.: | Альбом 1. Часть 1. Пояснительная записка. Технология производства. Архитектурные решения. Конструкции железобетонные. Внутренние водопровод и канализация. Отопление, вентиляция и кондиционирование воздуха | Дата добавления в базу: | 01.10.2014 | Дата актуализации: | 05.05.2017 | Дата введения: | 06.06.1990 | Оглавление: | Содержание альбома Пояснительная записка Технология производства Фрагмент плана на отм. 0.000. Фрагмент плана на отм. 3.000. Спецификация оборудования Стеллаж для хранения парашютов с ячейками 300х800х700 Стеллаж для хранения спусковых устройств с ячейками 500х400х500 Архитектурные решения Общие данные План на отм. 0.000. Вариант входа t = минус 40 градусов Цельсия План на отм. 0.000 План на отм. - 2.600. Разрез 4-4. Детали плана, элементы фасада Разрез 1-1, 2-2, 3-3. Детали разреза Фасады Планы полов и кровли. Экспликация полов Планы расположения ниши и отверстий на отм. 0.000 и 3.000. Детали Спецификация. Ведомость проемов дверей. Схемы расположения элементов заполнения оконных проемов и жалюзи Ведомость перемычек. Спецификация перемычек Развертки вентиляционных каналов. Воздухозаборная шахта Конструкции железобетонные Общие данные Схема расположения монолитных фундаментов. Сечение 1-1 для tн = минус 30, минус 40 градусов Цельсия Сечения 2-2 - 8-8 для tн = минус 30, минус 40 градусов Цельсия Схема расположения монолитных фундаментов. Сечение 1-1 для tн = минус 20 градусов Цельсия Сечения 2-2 - 8-8 для tн = минус 20 градусов Цельсия Схема расположения сборных фундаментов для tн = минус 30, минус 40 градусов Цельсия (вариант) Сечения 2-2 - 7-7 для tн = минус 30, минус 40 градусов Цельсия (вариант) Раскладка блоков для tн = минус 30, минус 40 градусов Цельсия (вариант) Схема расположения сборных фундаментов для tн = минус 20 градусов Цельсия (вариант) Сечения 2-2 - 7-7 для tн = минус 20 градусов Цельсия (вариант) Раскладка блоков для tн = минус 20 градусов Цельсия (вариант) Схемы расположения панелей перекрытий на отм. 0.000 и 3.000 Схема расположения панелей покрытия Схема расположения элементов лестницы в осях "Б - В" Схемы расположения входов. Сечения 1-1 - 5-5 Схема расположения элементов лестницы №1 Схема расположения элементов венткамер ВК1, ВК2. Сечения 1-1 - 5-5 Венткамера. Узлы 1 - 5 Изделия закладные МН1, МН2, МН3, МН4. Анкер А1 Внутренние водопровод и канализация Общие данные План на отм. - 2.600 План на отм. 0.000 План на отм. 3.300 Схемы систем В1, Т3 и К1 Отопление, вентиляция и кондиционирование воздуха Общие данные План на отм. 0.000 План на отм. 3.000 План на отм. - 2.600. Узел управления Схема системы отопления Схема системы теплоснабжения установки П1. Схемы систем П1, П2, В1, В2, В5, ВЕ1 - ВЕ4 Установки систем П1, В1, В2 Установки систем П2, В5 Воздуховод асбестоцементный | Разработан: | Союзгипролесхоз
| Утверждён: | 25.05.1990 Госкомлес СССР (USSR Goskomles 8)
| Издан: | ЦИТП Госстроя СССР (CITP, Gosstroy (USSR) 1990 г. )
| Расположен в: |
|
                                                       
|