Скачать Типовой проект 411-1-155.89 Альбом 1. Пояснительная записка. Технология производства. Архитектурно-строительные решения. Внутренние водопровод и канализация. Отопление, вентиляция и кондиционирование воздуха. Электрооборудование. Связь и сигнализация. Автоматизация отопления и вентиляцииДата актуализации: 10.08.2017 Типовой проект 411-1-155.89
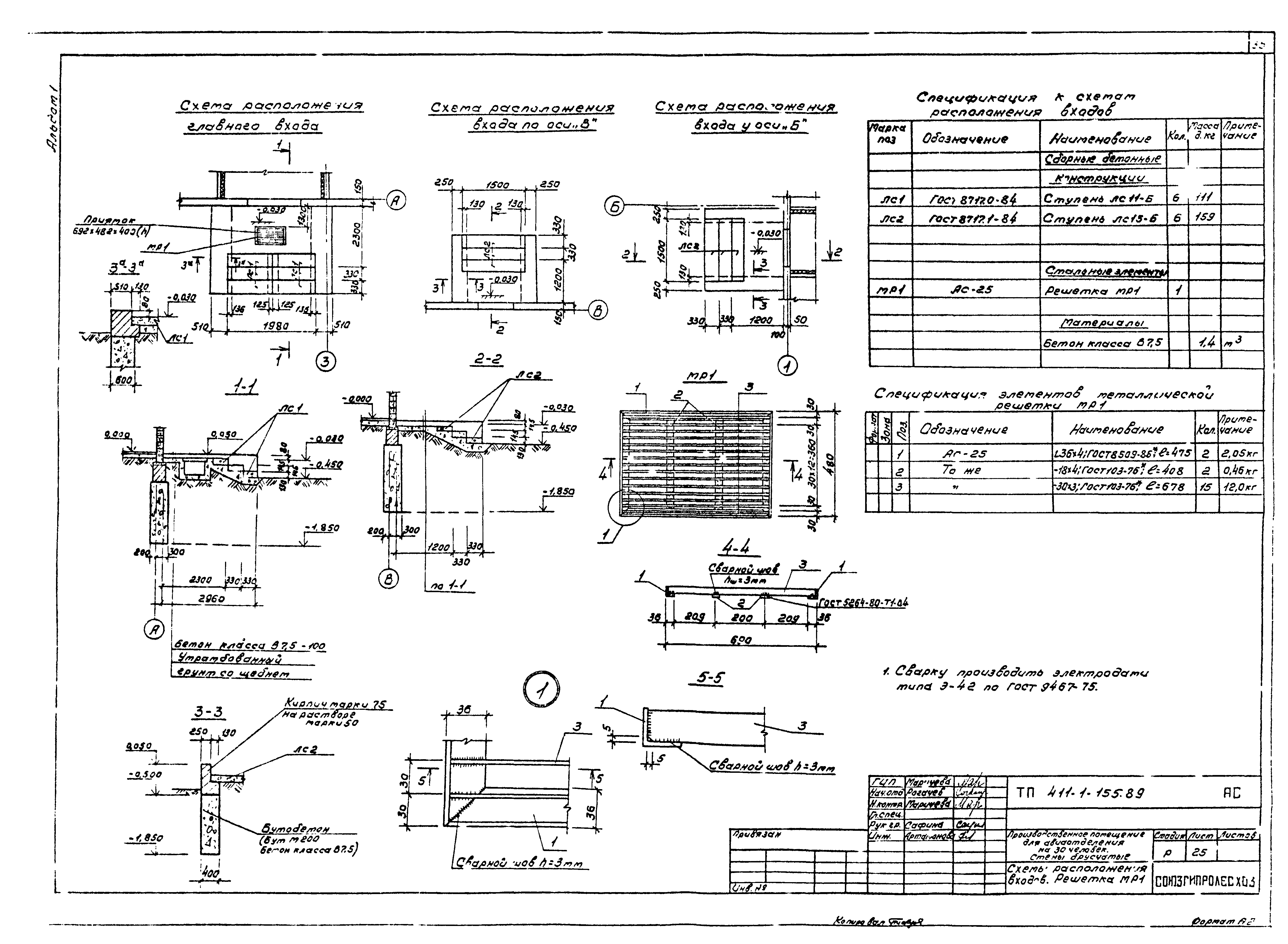
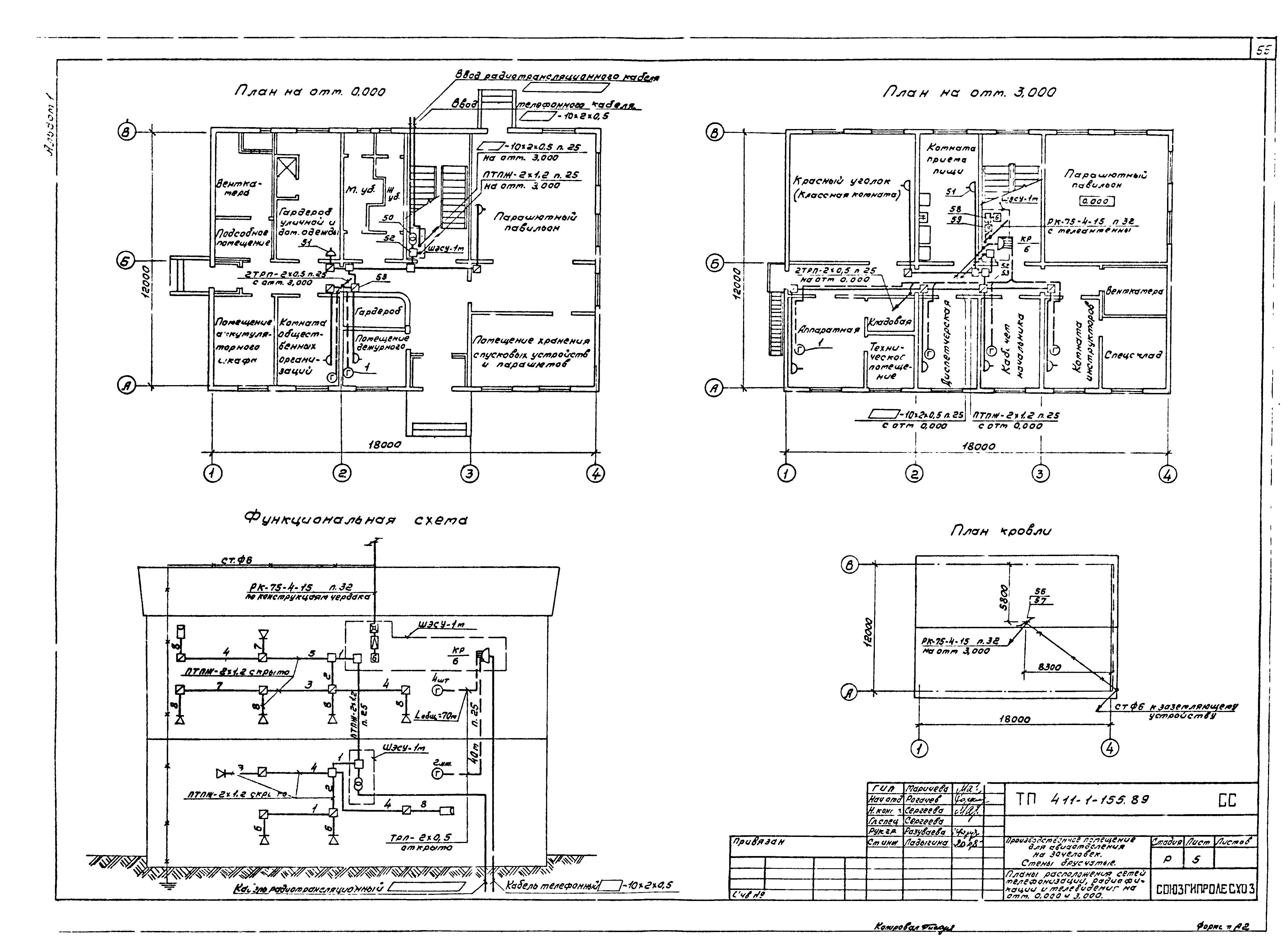
Альбом 1. Пояснительная записка. Технология производства. Архитектурно-строительные решения. Внутренние водопровод и канализация. Отопление, вентиляция и кондиционирование воздуха. Электрооборудование. Связь и сигнализация. Автоматизация отопления и вентиляцииОбозначение: | Типовой проект 411-1-155.89 | Обозначение англ: | 411-1-155.89 | Статус: | не определен законодательством | Название рус.: | Альбом 1. Пояснительная записка. Технология производства. Архитектурно-строительные решения. Внутренние водопровод и канализация. Отопление, вентиляция и кондиционирование воздуха. Электрооборудование. Связь и сигнализация. Автоматизация отопления и вентиляции | Дата добавления в базу: | 01.10.2014 | Дата актуализации: | 05.05.2017 | Дата введения: | 31.10.1989 | Оглавление: | Содержание альбома Пояснительная записка Технология производства Фрагмент плана на отм. 0.000 и 3.000. Спецификация оборудования Стеллаж для хранения парашютов с ячейками 300х800х700 мм Стеллаж для хранения спусковых устройств с ячейками 500х400х500 мм Архитектурно-строительные решения Общие данные Планы на отм. 0.000; 3.000 Разрезы 1-1, 2-2, 3-3 Узлы планов и разрезов Узлы планов и разрезов при tнв = минус 40 градусов Цельсия Порядовки стен Развертки наружных и внутренних стен Фасады Фрагмент фасада, козырек фасада, наличники сечения Планы полов на отм. 0.000 и 3.000. План кровли. Экспликация полов Спецификация. Ведомость проемов дверей. Схемы расположения элементов оконных проемов и жалюзи-решетки Схема расположения фундаментов Схема расположения подпольных каналов и приямка Схема расположения балок перекрытия на отм. 3.000 и чердачного перекрытия Сечения 1-1 - 10-10 Схема расположения стропильных ферм Ф1, Ф2 Стропильная ферма Ф1. Узлы 1 - 4 Стропильная ферма Ф2. Узел 2 Схема расположения лестницы Л1. Разрез 1-1 Лестница Л1. Узлы 2, 2`, 3 Лестница Л1. Сечения 1-1 - 7-7 Схема расположения лестницы Л2 Схемы расположения входов. Решетка МР1 Схема расположения элементов венткамеры ВК1. Узлы 1 - 4. Изделия закладные МН1, МН2, А3 Внутренний водопровод и канализация Общие данные Планы на отм. 0.000 и 3.000 с системами В1, Т3, К1 Отопление, вентиляция и кондиционирование воздуха Общие данные Отопление, вентиляция. Теплоснабжение. План на отм. 0.000 и 3.000. Узел управления Схема системы отопления. Схемы систем П1, В1, В2, ВЕ1, ВЕ2. Схема системы теплоснабжения установки П1 Установки систем П1, В1, В2 Воздуховод асбестоцементный Электрооборудование Общие данные Планы расположения электрооборудования и прокладки электрических сетей на отм. 0.000 и 3.000 Принципиальная схема питающей и распределительной сети Отключение вентсистем при пожаре. Схема электрическая принципиальная управления. Схема подключения Ведомость электромонтажных конструкций Связь и сигнализация Общие данные Планы расположения оборудования и прокладки комплексной телефонной сети на отм. 0.000 и 3.000 Охранная сигнализация Планы расположения сетей телефонизации, радиофикации и телевидения на отм. 0.000 и 3.000 Спецификация к чертежам СС-3, СС-5 Схемы кабельных соединений устройств связи и сигнализации Автоматизация, отопление и вентиляция Общие данные Приточная система П1. Схема функциональная Приточная система П1. Схема электрическая принципиальная управления Приточная система П1. Схема внешних проводок. План расположения Узел управления теплового пункта. Схема функциональная. Схема трубных проводок Приточная система П1. Шкаф управления ШУ1. Чертеж общего вида. Перечень надписей | Разработан: | Союзгипролесхоз
| Утверждён: | 14.06.1989 Госкомлес СССР (USSR Goskomles 14)
| Расположен в: |
|
                                                             
|