Информационная система
«Ёшкин Кот»

Скачать базу одним архивом
Скачать обновления
История создания базы
Карта сайта

Скачать Типовой проект 407-3-229 Альбом IV. Строительная часть. Планы и разрезы ОРУ

Дата актуализации: 10.08.2017

Типовой проект 407-3-229

Альбом IV. Строительная часть. Планы и разрезы ОРУ

Обозначение: Типовой проект 407-3-229
Обозначение англ: 407-3-229
Статус:действует
Название рус.:Альбом IV. Строительная часть. Планы и разрезы ОРУ
Дата добавления в базу:01.10.2014
Дата актуализации:05.05.2017
Оглавление:Содержание альбома. Заглавный лист
Схема 110-1. План, разрезы, маркировка, сводные спецификации
Схема 110-2. План, разрезы, маркировка, сводные спецификации
Схема 110-3. План, разрезы, маркировка, сводные спецификации
Схема 110-4. План, разрезы, маркировка, сводные спецификации
Схема 110-5. План, разрезы, маркировка, сводные спецификации
Схема 110-5. Разрезы, схема портала, узел 1
Схема 110-6. План. Сводные спецификации
Схема 110-6. Разрезы, маркировка
Схема 110-8. Планы, маркировка. Сводные спецификации
Схема 110-8. Разрезы, схема портала, узел 1
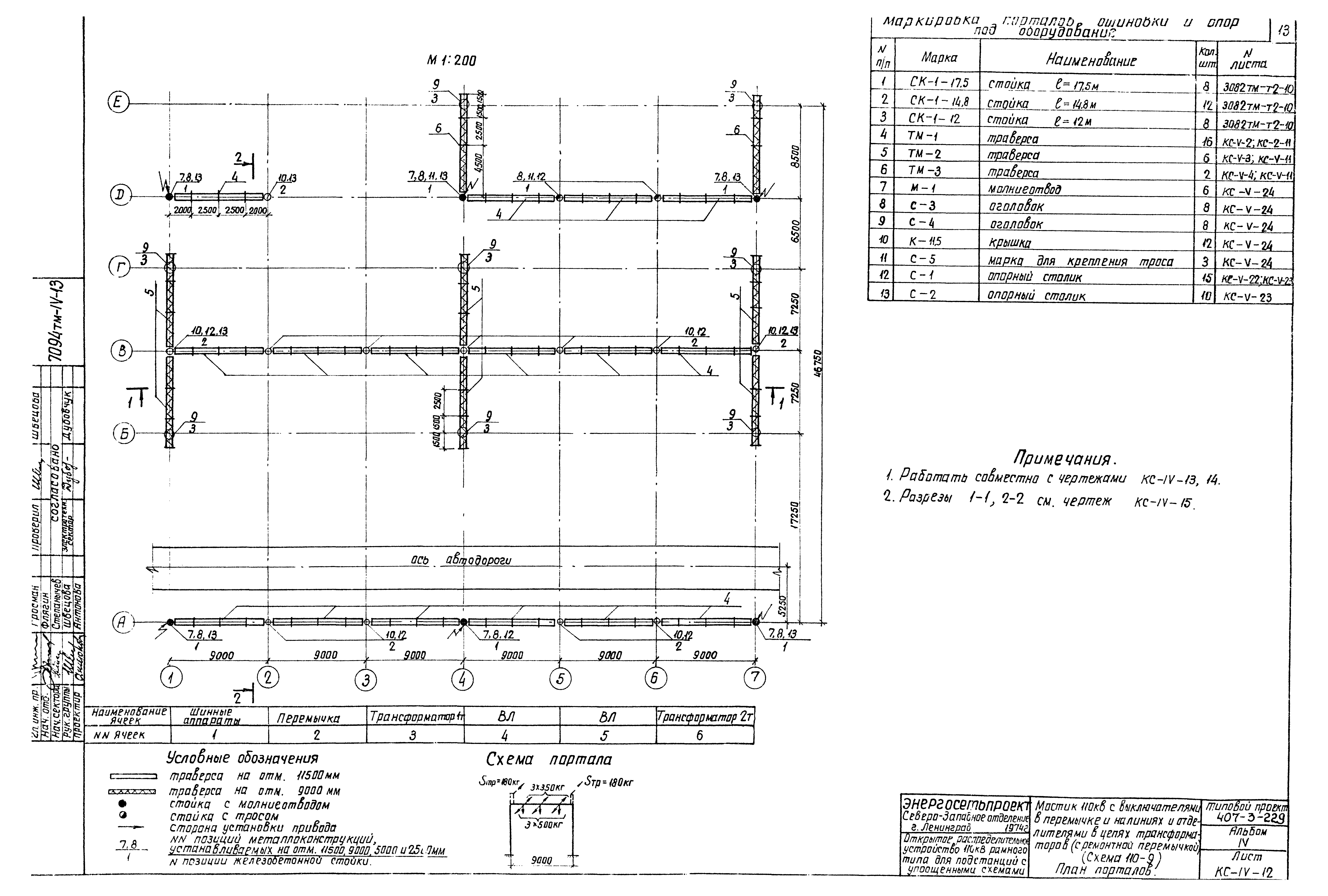
Схема 110-9. План порталов
Схема 110-9. План конструкций под оборудование с выключателями МКП
Схема 110-9. План конструкций под оборудование с выключателями ВВБ
Схема 110-9. Разрезы 1-1, 2-2. Сводные спецификации
Монтажные узлы 1 - 7
Сетчатое ограждение
Узлы крепления приводов
Рекомендации по закреплению в грунте стоек порталов опор под оборудование
Рекомендации по закреплению стоек порталов и опор под оборудование на скале в металлических стаканах
Разработан: Северо-западное отделение института Энергосетьпроект
Утверждён:27.01.1975 Минэнерго СССР (USSR Minenergo 20)
Расположен в:Техническая документация Строительство Справочные документы Типовые строительные конструкции, изделия и узлы Общероссийский строительный каталог Промышленные предприятия, здания и сооружения Предприятия, здания и сооружения промышленности и электроэнергетики Электроэнергетика Устройства и подстанции распределительные
Типовой проект 407-3-229Типовой проект 407-3-229Типовой проект 407-3-229Типовой проект 407-3-229Типовой проект 407-3-229Типовой проект 407-3-229Типовой проект 407-3-229Типовой проект 407-3-229Типовой проект 407-3-229Типовой проект 407-3-229Типовой проект 407-3-229Типовой проект 407-3-229Типовой проект 407-3-229Типовой проект 407-3-229Типовой проект 407-3-229Типовой проект 407-3-229Типовой проект 407-3-229Типовой проект 407-3-229Типовой проект 407-3-229Типовой проект 407-3-229Типовой проект 407-3-229Типовой проект 407-3-229

© 2013 Ёшкин Кот :-) Карта сайта