Информационная система
«Ёшкин Кот»

Скачать базу одним архивом
Скачать обновления
История создания базы
Карта сайта

Скачать Типовой проект 407-3-229 Альбом III. Электротехническая часть. Установочные чертежи оборудования

Дата актуализации: 10.08.2017

Типовой проект 407-3-229

Альбом III. Электротехническая часть. Установочные чертежи оборудования

Обозначение: Типовой проект 407-3-229
Обозначение англ: 407-3-229
Статус:действует
Название рус.:Альбом III. Электротехническая часть. Установочные чертежи оборудования
Дата добавления в базу:01.10.2014
Дата актуализации:05.05.2017
Оглавление:Содержание альбома
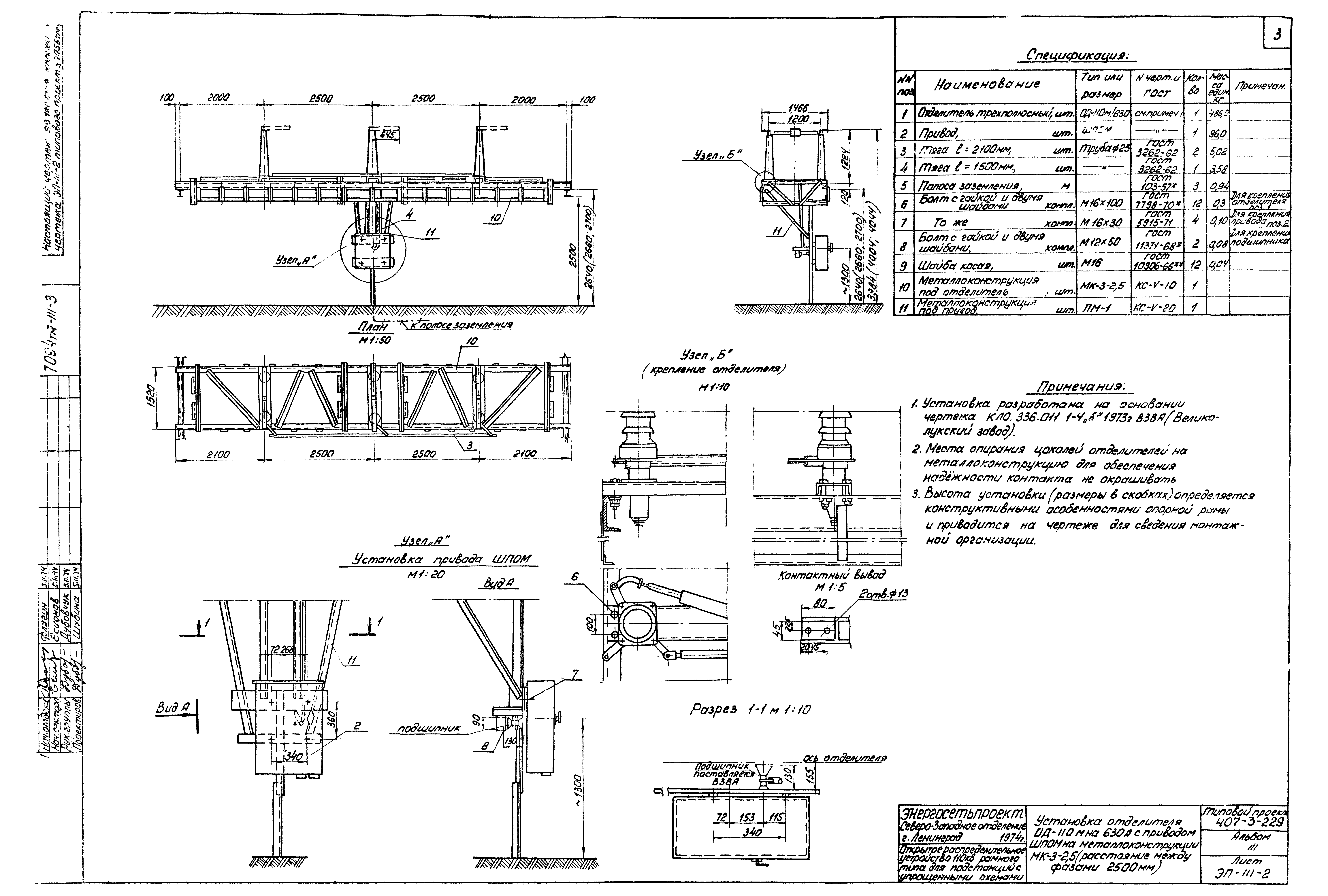
Установка отделителя ОД-110м на 630 А с приводом ШПОМ на металлоконструкции МК-3-2,5 (расстояние между фазами 2500 мм)
Установка отделителя РД31б-110м на 630 А с приводом ШПОМ на металлоконструкции МК-3-2,5 (расстояние между фазами 2500 мм)
Установка трехполюсных разъединителей РНД32-110 на 1000 А с приводом ПРН-220м на металлоконструкции МК-1-2,5 (расстояние между фазами 2500 мм)
Установка трехполюсных разъединителей РНД31б-110 на 1000 А с приводом ПРН-220м на металлоконструкции МК-1-2,5 (расстояние между фазами 2500 мм)
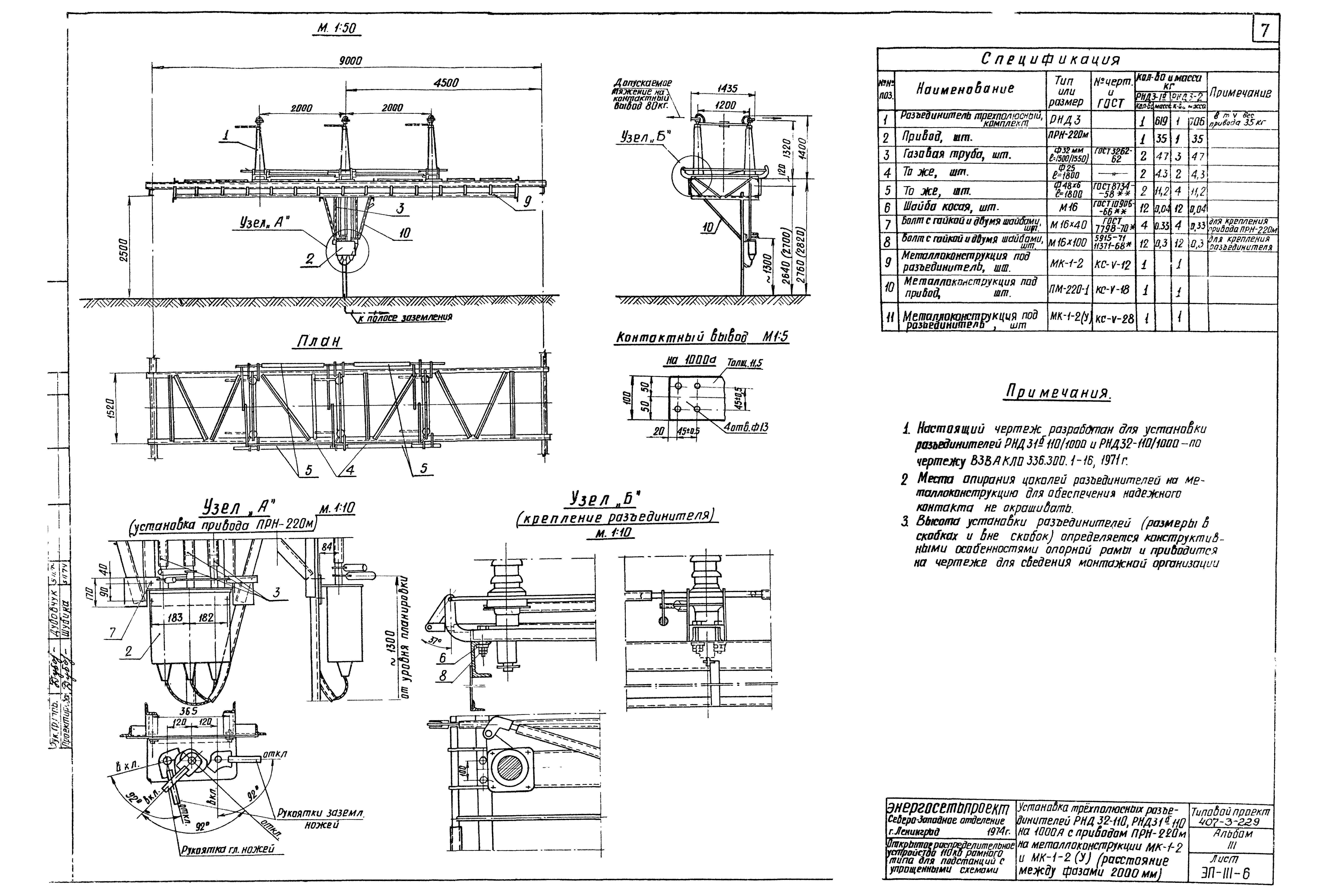
Установка трехполюсных разъединителей РНД32-110, РНД31б-110 на 1000 А с приводом ПРН-220м на металлоконструкциях МК-1-2, МК-1-2(У) (расстояние между фазами 2000 мм)
Установка трехполюсных разъединителей РНД31б-110 на 1000 А с приводом ПРН-220м на металлоконструкции МК-1-2,7 (расстояние между фазами 2700 мм)
Ступенчато-килевая установка разъединителя РНД31а-110 на 1000 А с приводом ПРН-220м на металлоконструкции МК-1(К). План, разрез I-I
Ступенчато-килевая установка разъединителя РНД31а-110 на 1000 А с приводом ПРН-220м на металлоконструкции МК-1(К). Разрез II-II и узлы
Установка короткозамыкателя КЗ-110м на металлоконструкции МК-12, привода ШПКМ на металлоконструкции МК-14, 14А, трансформаторов тока ТШЛ-0,5 на металлоконструкции МК-13, 13А
Установка стреляющих предохранителей ПСН-110, разрядников РВС-110м и шинных опор ШО-110 на металлоконструкции МК-4А
Установка трансформаторов напряжения НКФ-110-57 на металлоконструкции МК-6 и установка трансформаторов тока ТФНД-110м, ТФНД-110м-II на металлоконструкциях МК-8-2; МК-8-2,7; МК-8А-2; МК-8А-2,7; МК-8А(У)
Установка шинной опоры ШО-110 на металлоконструкции МК-7 и 7А и вентильных разрядников РВС-110м на металлоконструкции МК-4
Установка конденсаторов связи СМР-110V3 на металлоконструкции МК-5А
Проверка электрических габаритов в ячейке воздушного выключателя (схема 110-9) и килевого разъединителя
Монтажные таблицы гибкой ошиновки ОРУ-110 кВ
Подключение высокочастотных заградителей в перемычке 110 кВ (схема №110-8)
Детали заземления (пример выполнения) и гирлянда поддерживающая (подвеска на проводе)
Разрезы I-I - VI-VI и узлы к плану расстановки металлоконструкций для прокладки кабелей
Разработан: Северо-западное отделение института Энергосетьпроект
Утверждён:27.01.1975 Минэнерго СССР (USSR Minenergo 20)
Расположен в:Техническая документация Строительство Справочные документы Типовые строительные конструкции, изделия и узлы Общероссийский строительный каталог Промышленные предприятия, здания и сооружения Предприятия, здания и сооружения промышленности и электроэнергетики Электроэнергетика Устройства и подстанции распределительные
Типовой проект 407-3-229Типовой проект 407-3-229Типовой проект 407-3-229Типовой проект 407-3-229Типовой проект 407-3-229Типовой проект 407-3-229Типовой проект 407-3-229Типовой проект 407-3-229Типовой проект 407-3-229Типовой проект 407-3-229Типовой проект 407-3-229Типовой проект 407-3-229Типовой проект 407-3-229Типовой проект 407-3-229Типовой проект 407-3-229Типовой проект 407-3-229Типовой проект 407-3-229Типовой проект 407-3-229Типовой проект 407-3-229Типовой проект 407-3-229Типовой проект 407-3-229

© 2013 Ёшкин Кот :-) Карта сайта