Информационная система
«Ёшкин Кот»

Скачать базу одним архивом
Скачать обновления
История создания базы
Карта сайта

Скачать Типовой проект 407-3-225 Альбом II. Архитектурно-строительная часть (вариант в сборном железобетоне)

Дата актуализации: 10.08.2017

Типовой проект 407-3-225

Альбом II. Архитектурно-строительная часть (вариант в сборном железобетоне)

Обозначение: Типовой проект 407-3-225
Обозначение англ: 407-3-225
Статус:действует
Название рус.:Альбом II. Архитектурно-строительная часть (вариант в сборном железобетоне)
Дата добавления в базу:01.10.2014
Дата актуализации:05.05.2017
Оглавление:Перечень листов
Пояснительная записка
Обзорный лист
Заглавный лист
Реакторная камера типа I с естественной вентиляционной установкой. Фасады
Реакторная камера типа I с естественной вентиляционной установкой. План, разрезы
Реакторная камера типа II с естественной вентиляционной установкой. Фасады
Реакторная камера типа II с естественной вентиляционной установкой. План, разрезы
Реакторная камера типа III с естественной вентиляционной установкой. Фасады
Реакторная камера типа III с естественной вентиляционной установкой. План, разрезы
Реакторная камера типа IV с принудительной вентиляционной установкой. Фасады
Реакторная камера типа IV с принудительной вентиляционной установкой. План, разрезы
Реакторная камера типа V с принудительной вентиляционной установкой. Фасады
Реакторная камера типа V с принудительной вентиляционной установкой. План, разрезы
Реакторная камера типа VI с принудительной вентиляционной установкой. Фасады
Реакторная камера типа VI с принудительной вентиляционной установкой. План, разрезы
Реакторная камера типа VII с принудительной вентиляционной установкой. Фасады
Реакторная камера типа VII с принудительной вентиляционной установкой. План, разрезы
Реакторная камера типа VIII с принудительной вентиляционной установкой. Фасады
Реакторная камера типа VIII с принудительной вентиляционной установкой. План, разрезы
Реакторная камера типа IX с принудительной вентиляционной установкой. Фасады
Реакторная камера типа IX с принудительной вентиляционной установкой. План, разрезы
Реакторные камеры типа I, IV, VII. Раскладка стеновых панелей
Реакторные камеры типа II, V, VIII. Раскладка стеновых панелей
Реакторные камеры типа III, VI, IX. Раскладка стеновых панелей
Реакторные камеры типа I, IV, VII. Сборный железобетонный каркас. Монтажная схема
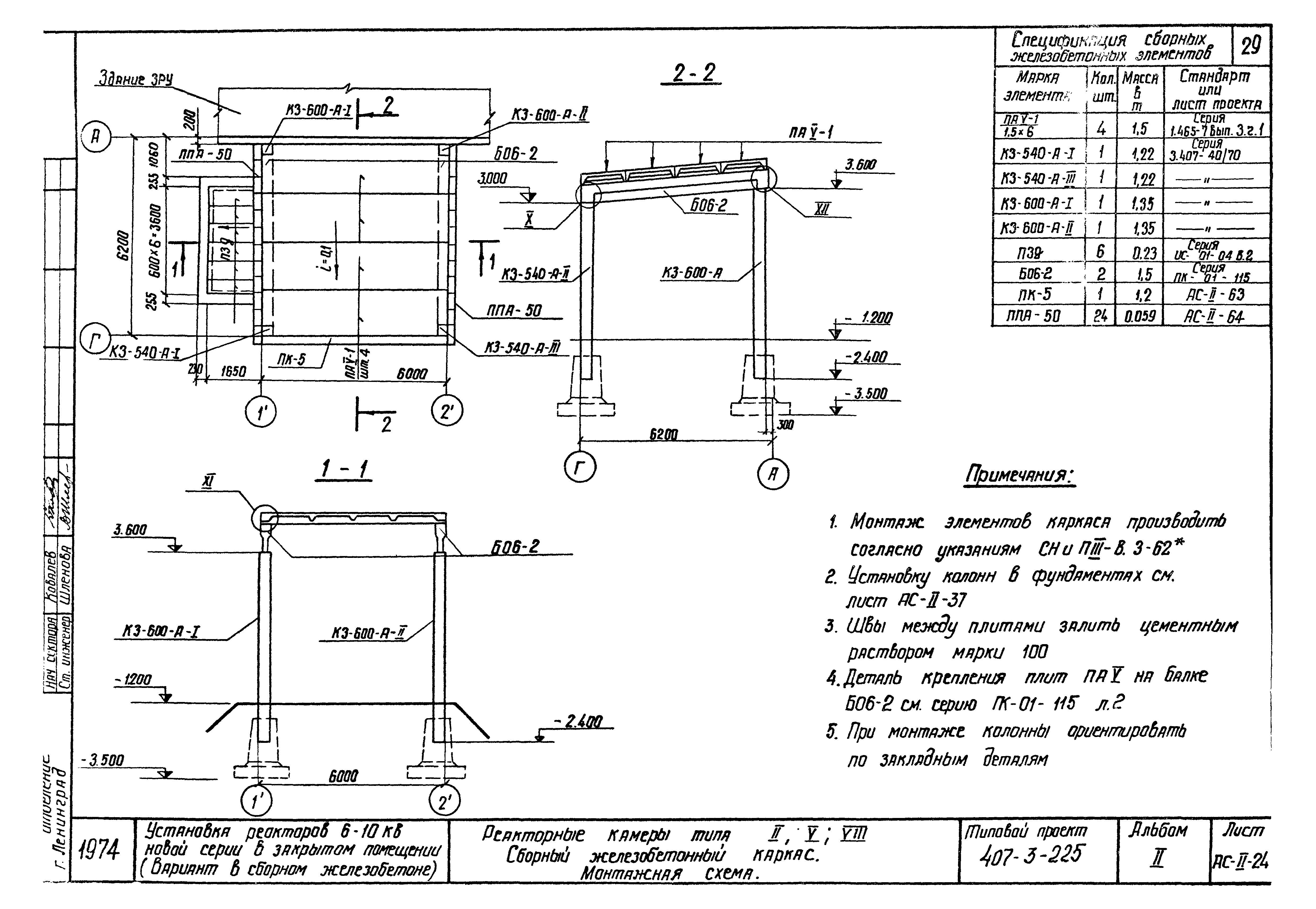
Реакторные камеры типа II, V, VIII. Сборный железобетонный каркас. Монтажная схема
Реакторные камеры типа III, VI, IX. Сборный железобетонный каркас. Монтажная схема
Реакторные камеры типа I - IX. Сборный железобетонный каркас. Узлы I - IV
Реакторные камеры типа I - IX. Сборный железобетонный каркас. Узел V
Реакторные камеры типа I - IX. Сборный железобетонный каркас. Узлы VI - IX
Реакторные камеры типа I - IX. Сборный железобетонный каркас. Узлы X, XI
Реакторные камеры типа I - IX. Сборный железобетонный каркас. Узлы XII, XIII
Реакторные камеры типа I - IX. Архитектурные детали А - Д
Реакторные камеры типа I - IX. Архитектурные детали Е - Л
Фрагмент фасада №1
Фрагмент фасада №1. Разрезы
Реакторные камеры типа I - IX. Установка дополнительных закладных деталей в колоннах К3-540-А-I,II,III
Реакторные камеры типа I - IX. Установка дополнительных закладных деталей в колоннах К3-600-А-I,II
Реакторные камеры типа I, II, IV, V, VII, VIII. Фундаменты здания. План. Элементы плана. Разрезы
Реакторные камеры типа III, VI, IX. Фундаменты здания. План. Элементы плана. Разрезы
Реакторные камеры типа I - IX. Фундаменты под реакторы
Реакторные камеры типа I, IV, VII. Подземная часть. План каналов. План раскладки асбестоцементных досок. Разрезы
Реакторные камеры типа II, V, VIII. Подземная часть. План каналов. План раскладки асбестоцементных досок. Разрезы
Реакторные камеры типа III, VI, IX. Подземная часть. План каналов. План раскладки асбестоцементных досок. Разрезы
Реакторные камеры типа III, VI, IX. Подземная часть. Разрезы
Реакторные камеры I - IX. Монтажная схема установки ворот
Реакторные камеры I - IX. Металлические ворота. Коробка К-2
Реакторные камеры I - IX. Металлические ворота. Полотно МВ-1
Реакторные камеры I - IX. Металлические ворота. Комплекты "Б", "В", "Г"
Реакторные камеры I - IX. Металлические ворота. Комплект "Ж"
Реакторные камеры I - IX. Металлические ворота. Комплекты "И", "Л"
Реакторные камеры I - IX. Металлические ворота. Комплект "К"
Реакторные камеры I - IX. Сетчатое ограждение. Монтажная схема
Реакторные камеры I - IX. Сетчатое ограждение. Металлоконструкции. Марки С-1, С-2, К-1
Реакторные камеры I - IX. Сетчатое ограждение. Металлоконструкции. Марки С-3 - С-6
Реакторные камеры I - IX. Металлоконструкции. Марки МН-1 - МН-4
Реакторные камеры I - IX. Металлоконструкции. Марки МК-1 - МК-12
Реакторные камеры I - IX. Металлоконструкции. Марки М-1 - М-5
Реакторные камеры I - IX. Металлоконструкции. Марки МК-13 - МК-21; МК-25
Реакторные камеры I - IX. Металлоконструкции. Марки МК-22, 23, 24
Реакторные камеры I - IX. Металлоконструкции. Марки ЖР-1
Реакторные камеры I - IX. Металлоконструкции. Марки ЖР-2
Сборные железобетонные элементы. Фундамент ФЖ16-1. Геометрические размеры и спецификация
Сборные железобетонные элементы. Фундамент ФЖ16-1. Арматурные сетки
Сборные железобетонные элементы. Карнизная панель ПК-5. Геометрические размеры и армирование
Реакторные камеры I - IX. Карнизная панель ПК-5. Армирование. Парапетная плита ПП-А50
Реакторные камеры I - IX. Сводная спецификация железобетонных и бетонных элементов
Реакторные камеры I - IX. Сводная спецификация стальных элементов
Разработан: Северо-западное отделение института Энергосетьпроект
Утверждён:01.10.1975 Минэнерго СССР (USSR Minenergo 175)
Расположен в:Техническая документация Строительство Справочные документы Типовые строительные конструкции, изделия и узлы Общероссийский строительный каталог Промышленные предприятия, здания и сооружения Предприятия, здания и сооружения промышленности и электроэнергетики Электроэнергетика Устройства и подстанции распределительные
Типовой проект 407-3-225Типовой проект 407-3-225Типовой проект 407-3-225Типовой проект 407-3-225Типовой проект 407-3-225Типовой проект 407-3-225Типовой проект 407-3-225Типовой проект 407-3-225Типовой проект 407-3-225Типовой проект 407-3-225Типовой проект 407-3-225Типовой проект 407-3-225Типовой проект 407-3-225Типовой проект 407-3-225Типовой проект 407-3-225Типовой проект 407-3-225Типовой проект 407-3-225Типовой проект 407-3-225Типовой проект 407-3-225Типовой проект 407-3-225Типовой проект 407-3-225Типовой проект 407-3-225Типовой проект 407-3-225Типовой проект 407-3-225Типовой проект 407-3-225Типовой проект 407-3-225Типовой проект 407-3-225Типовой проект 407-3-225Типовой проект 407-3-225Типовой проект 407-3-225Типовой проект 407-3-225Типовой проект 407-3-225Типовой проект 407-3-225Типовой проект 407-3-225Типовой проект 407-3-225Типовой проект 407-3-225Типовой проект 407-3-225Типовой проект 407-3-225Типовой проект 407-3-225Типовой проект 407-3-225Типовой проект 407-3-225Типовой проект 407-3-225Типовой проект 407-3-225Типовой проект 407-3-225Типовой проект 407-3-225Типовой проект 407-3-225Типовой проект 407-3-225Типовой проект 407-3-225Типовой проект 407-3-225Типовой проект 407-3-225Типовой проект 407-3-225Типовой проект 407-3-225Типовой проект 407-3-225Типовой проект 407-3-225Типовой проект 407-3-225Типовой проект 407-3-225Типовой проект 407-3-225Типовой проект 407-3-225Типовой проект 407-3-225Типовой проект 407-3-225Типовой проект 407-3-225Типовой проект 407-3-225Типовой проект 407-3-225Типовой проект 407-3-225Типовой проект 407-3-225Типовой проект 407-3-225Типовой проект 407-3-225Типовой проект 407-3-225Типовой проект 407-3-225Типовой проект 407-3-225Типовой проект 407-3-225Типовой проект 407-3-225Типовой проект 407-3-225

© 2013 Ёшкин Кот :-) Карта сайта