Информационная система
«Ёшкин Кот»

Скачать базу одним архивом
Скачать обновления
История создания базы
Карта сайта

Скачать Альбом ПП 16-22 Альбом 1. Горизонтальные упоры

Дата актуализации: 10.08.2017

Альбом ПП 16-22

Альбом 1. Горизонтальные упоры

Обозначение: Альбом ПП 16-22
Обозначение англ: ПП 16-22
Статус:не определен законодательством
Название рус.:Альбом 1. Горизонтальные упоры
Дата добавления в базу:01.10.2014
Дата актуализации:05.05.2017
Дата введения:19.01.2006
Оглавление:Общие данные
Схемы горизонтальных бетонных упоров для одного чугунного трубопровода
Горизонтальный упор для одной трубы Ду = 100 мм
Горизонтальный упор для одной трубы Ду = 150 мм
Горизонтальный упор для одной трубы Ду = 200 мм
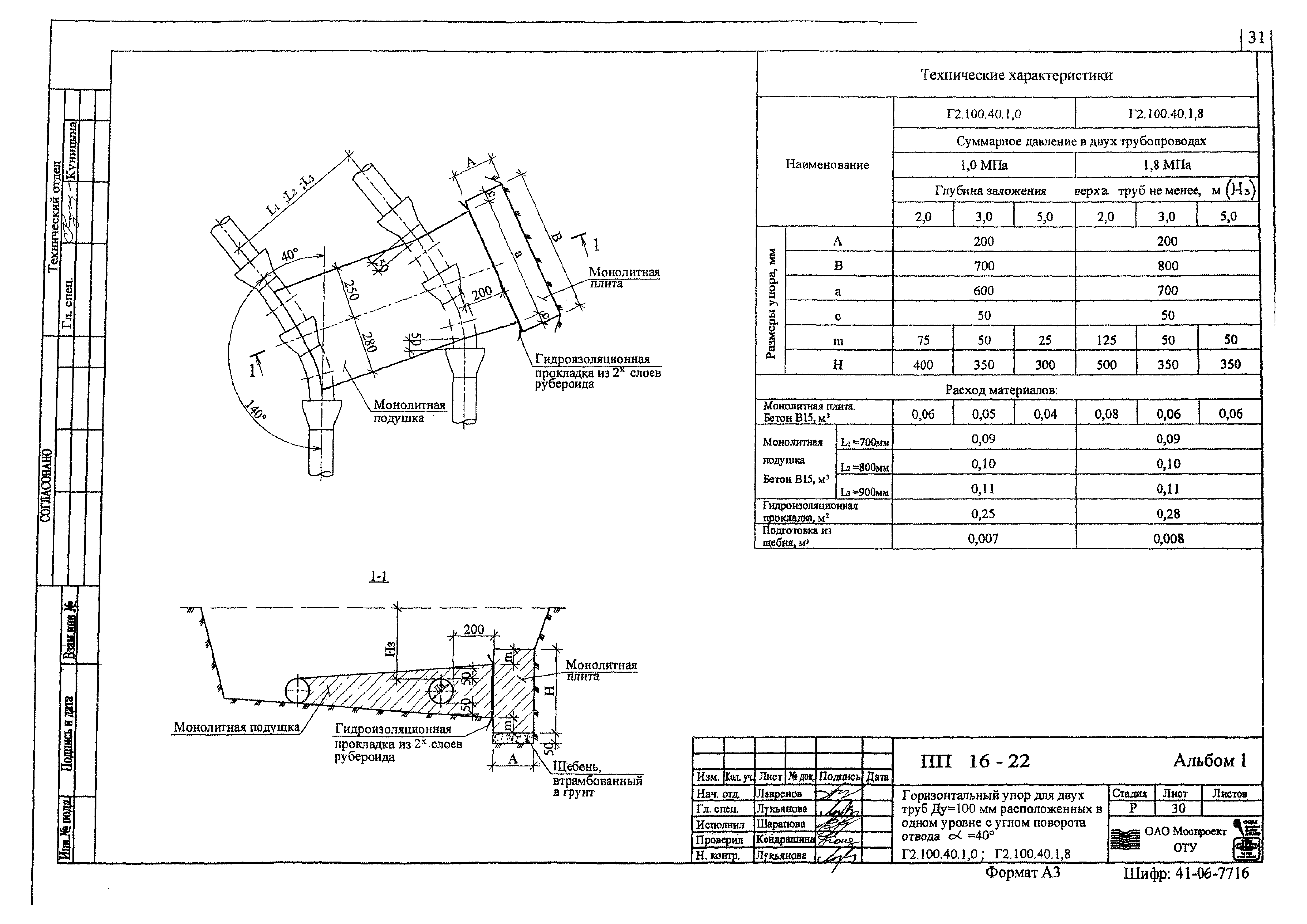
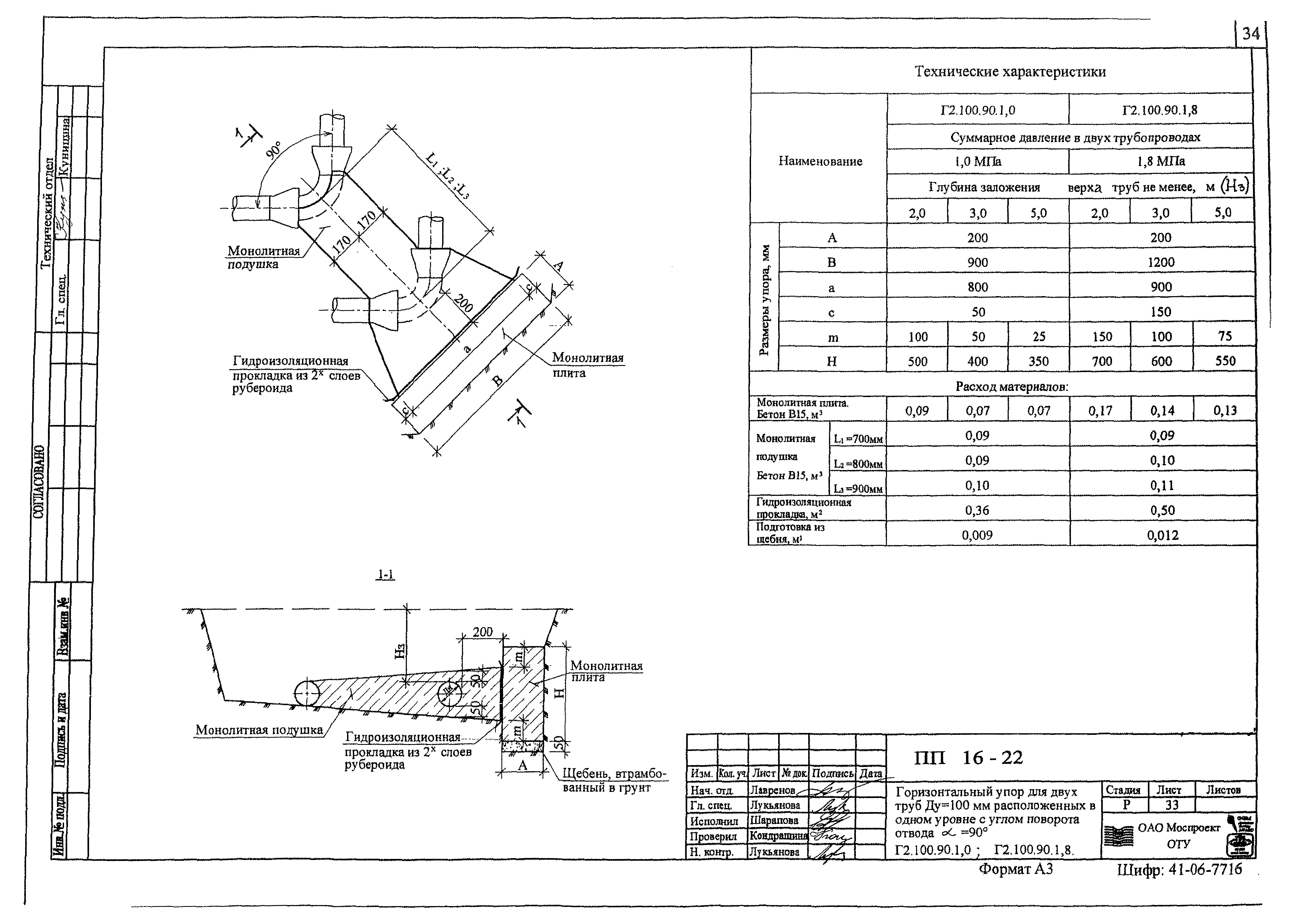
Схемы горизонтальных бетонных упоров для двух чугунных трубопроводов
Горизонтальный упор для двух труб Ду = 100 мм
Горизонтальный упор для двух труб Ду = 150 мм
Горизонтальный упор для двух труб Ду = 200 мм
Разработан: ОАО Моспроект
Утверждён:19.01.2006 ОАО Моспроект (Mosproject OAO 11)
Принят:18.08.2006 Мосводопровод
Расположен в:Техническая документация Строительство Справочные документы Типовые строительные конструкции, изделия и узлы Разработанные другими министерствами, ведомствами и организациями
Альбом ПП 16-22Альбом ПП 16-22Альбом ПП 16-22Альбом ПП 16-22Альбом ПП 16-22Альбом ПП 16-22Альбом ПП 16-22Альбом ПП 16-22Альбом ПП 16-22Альбом ПП 16-22Альбом ПП 16-22Альбом ПП 16-22Альбом ПП 16-22Альбом ПП 16-22Альбом ПП 16-22Альбом ПП 16-22Альбом ПП 16-22Альбом ПП 16-22Альбом ПП 16-22Альбом ПП 16-22Альбом ПП 16-22Альбом ПП 16-22Альбом ПП 16-22Альбом ПП 16-22Альбом ПП 16-22Альбом ПП 16-22Альбом ПП 16-22Альбом ПП 16-22Альбом ПП 16-22Альбом ПП 16-22Альбом ПП 16-22Альбом ПП 16-22Альбом ПП 16-22Альбом ПП 16-22Альбом ПП 16-22Альбом ПП 16-22Альбом ПП 16-22Альбом ПП 16-22Альбом ПП 16-22Альбом ПП 16-22Альбом ПП 16-22Альбом ПП 16-22Альбом ПП 16-22Альбом ПП 16-22Альбом ПП 16-22Альбом ПП 16-22Альбом ПП 16-22

© 2013 Ёшкин Кот :-) Карта сайта