Информационная система
«Ёшкин Кот»

Скачать базу одним архивом
Скачать обновления
История создания базы
Карта сайта

Скачать Типовой проект 704-1-152с Альбом VI. Оборудование резервуара для темных нефтепродуктов

Дата актуализации: 10.08.2017

Типовой проект 704-1-152с

Альбом VI. Оборудование резервуара для темных нефтепродуктов

Обозначение: Типовой проект 704-1-152с
Обозначение англ: 704-1-152с
Статус:действует
Название рус.:Альбом VI. Оборудование резервуара для темных нефтепродуктов
Дата добавления в базу:01.10.2014
Дата актуализации:05.05.2017
Оглавление:Содержание альбома. Пояснительная записка
Технологическая часть
   Оборудование резервуара для темных нефтепродуктов. Общий вид
   Установка приемо-раздаточного устройства Ду = 150
   Установка приемо-раздаточного устройства Ду = 200
   Расположение секционных подогревателей F = 21 кв. м
   Расположение секционных подогревателей F = 9 кв. м
   Подогревательный элемент ПЭ-0,7; ПЭ1…6
   Стойка С-1
   Стойка С-3
   Стойка С-4, С-5
   Коллектор К-2, F = 0,5 кв. м
   Шкаф узла ввода пара и вывода конденсата
Теплотехническая часть
   Узел управления подогревателями
   Узел управления подогревателями. Деталь гибкого шланга Ду=40
КИП и автоматика
   Функциональная схема автоматизации
   Установка указателя уровня типа УДУ-10
   Установка указателя уровня типа УДУ-10. Детали
   Установка пробоотборника типа ПСР-4
   Установка термометра на стенке резервуара
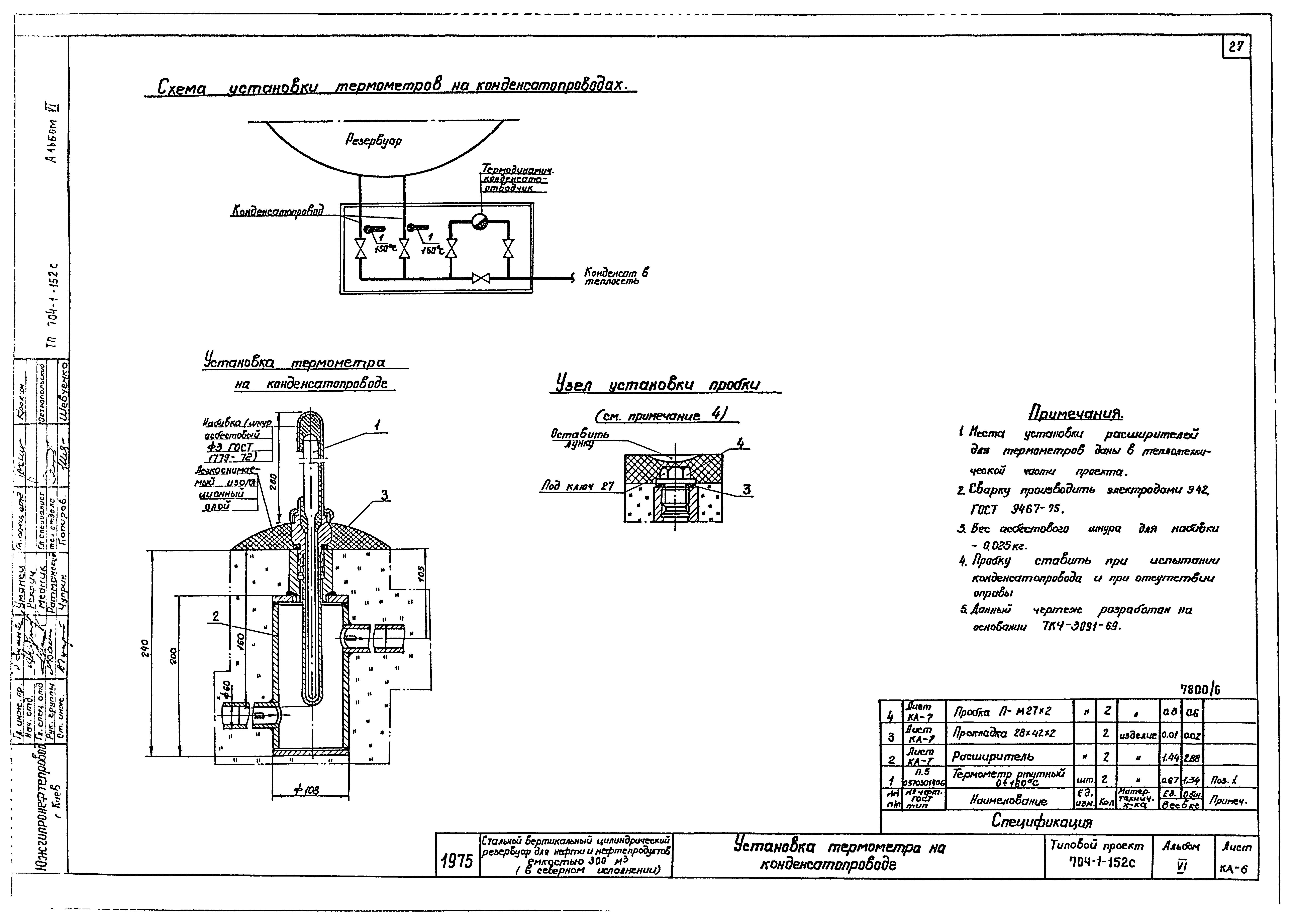
   Установка термометра на конденсатопровод
   Установка термометра на конденсатопровод. Детали
Электротехническая часть
   Молниезащита и защита от статического электричества
Строительная часть
   Молниеотвод
Разработан: ЦНИИпроектстальконструкция
Утверждён:21.03.1977 Миннефтепром (Minnefteprom )
Расположен в:Техническая документация Строительство Справочные документы Типовые строительные конструкции, изделия и узлы Общероссийский строительный каталог Промышленные предприятия, здания и сооружения Предприятия, здания и сооружения складские Резервуары и склады для нефти и нефтепродуктов Резервуары стальные для нефти и нефтепродуктов
Типовой проект 704-1-152сТиповой проект 704-1-152сТиповой проект 704-1-152сТиповой проект 704-1-152сТиповой проект 704-1-152сТиповой проект 704-1-152сТиповой проект 704-1-152сТиповой проект 704-1-152сТиповой проект 704-1-152сТиповой проект 704-1-152сТиповой проект 704-1-152сТиповой проект 704-1-152сТиповой проект 704-1-152сТиповой проект 704-1-152сТиповой проект 704-1-152сТиповой проект 704-1-152сТиповой проект 704-1-152сТиповой проект 704-1-152сТиповой проект 704-1-152сТиповой проект 704-1-152сТиповой проект 704-1-152сТиповой проект 704-1-152сТиповой проект 704-1-152сТиповой проект 704-1-152сТиповой проект 704-1-152сТиповой проект 704-1-152сТиповой проект 704-1-152сТиповой проект 704-1-152сТиповой проект 704-1-152сТиповой проект 704-1-152с

© 2013 Ёшкин Кот :-) Карта сайта