Скачать Типовой проект 902-5-22.86 Альбом II. Электротехнические решения, автоматизация, технологический контрольДата актуализации: 10.08.2017 Типовой проект 902-5-22.86
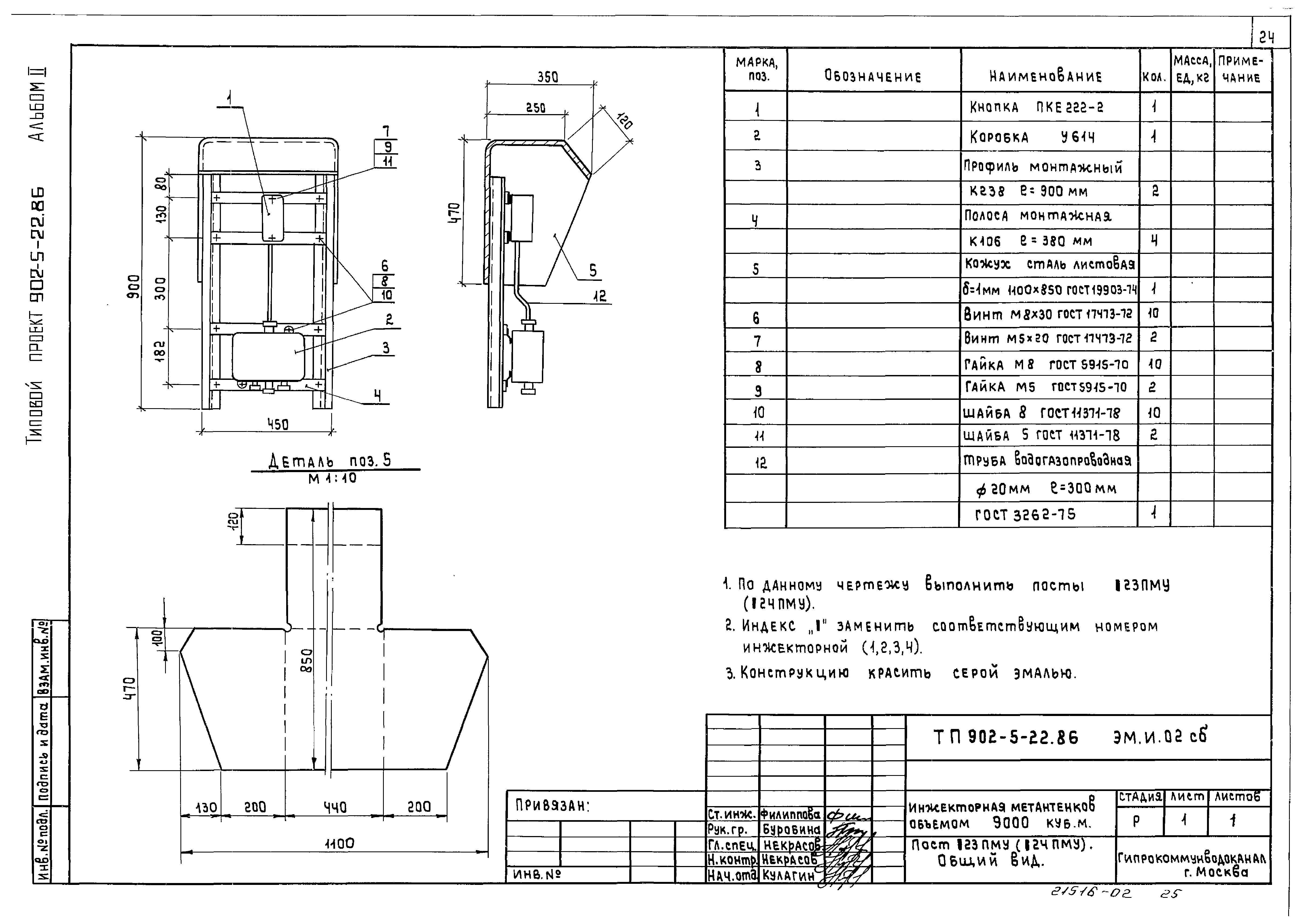
Альбом II. Электротехнические решения, автоматизация, технологический контрольОбозначение: | Типовой проект 902-5-22.86 | Обозначение англ: | 902-5-22.86 | Статус: | не определен законодательством | Название рус.: | Альбом II. Электротехнические решения, автоматизация, технологический контроль | Дата добавления в базу: | 01.10.2014 | Дата актуализации: | 05.05.2017 | Дата введения: | 12.03.1986 | Оглавление: | Содержание альбома Пояснительная записка Чертежи основного комплекта марки ЭМ Общие данные Инжектор. Электропривод /19 (/20). Схема электрическая принципиальная Задвижка. Электропривод /21 (/22). Схема электрическая принципиальная Вентилятор. Электропривод /23 (/24). Схема электрическая принципиальная Схема электрических подключений отдельно стоящего оборудования Кабельный журнал. Сводка кабелей и проводов Расположения электрооборудования и прокладка кабелей Прокладка магистралей зануления Электроосвещение. План Прилагаемые документы основного комплекта марки ЭМ Пост /19ПМУ (/20; /21; /22ПМУ). Общий вид Пост /19ПМУ (/20ПМУ). Схема соединений Пост /21ПМУ (/22ПМУ). Схема соединений Пост /23ПМУ (/24ПМУ). Общий вид Пост /23ПМУ (/24ПМУ). Схема соединений Ведомость объемов электромонтажных и строительных работ; ведомость конструкций и деталей, подлежащих изготовлению в МЭЗ; ведомость изделий и материалов для изготовления конструкций и деталей в МЭЗ Чертежи основного комплекта марки АВК Общие данные Схема функциональная Схема внешних электрических и трубных проводок План расположения средств автоматизации и проводок | Разработан: | Гипрокоммунводоканал Минжилкомхоза РСФСР
| Утверждён: | 04.03.1986 МЖКХ РСФСР (111)
| Расположен в: |
|
                             
|