Информационная система
«Ёшкин Кот»

Скачать базу одним архивом
Скачать обновления
История создания базы
Карта сайта

Скачать Типовой проект 902-3-91.91 Альбом 4. Строительные изделия

Дата актуализации: 10.08.2017

Типовой проект 902-3-91.91

Альбом 4. Строительные изделия

Обозначение: Типовой проект 902-3-91.91
Обозначение англ: 902-3-91.91
Статус:не определен законодательством
Название рус.:Альбом 4. Строительные изделия
Дата добавления в базу:01.10.2014
Дата актуализации:05.05.2017
Дата введения:28.02.1991
Оглавление:КЖ.И ТУ Технические условия
КЖ.И1.0.0.0 Панель стеновая (ПС7, ПС1, ПС2)
КЖ.И2.0.0.0 Панель стеновая (ПС8, ПС9)
КЖ.И2.0.1.0 Сетка арматурная Сп1
КЖ.И2.0.2.0 Сетка арматурная Сп2
КЖ.И2.0.3.0 Каркас Крп1
КЖ.И2.1.0.0 Изделие закладное МН1
КЖ.И2.1.1.0 Каркас Крп2, Крп8
КЖ.И2.1.2.0 Каркас Крп3, Крп9
КЖ.И2.2.0.0 Изделие закладное МН2
КЖ.И2.2.1.0 Каркас Крп4
КЖ.И3.0.0.0 Лоток (ЛТ1, ЛТ2)
КЖ.И4.0.0.0 Лоток ЛТ3
КЖ.И4.0.1.0 Сетка арматурная ЛТ3-С1
КЖ.И4.0.2.0 Сетка арматурная ЛТ3-С2
КЖ.И4.0.3.0 Сетка арматурная (ЛТ3-С3, ЛТ3-С4)
КЖ.И5.0.1.0 Сетка арматурная ЛТ4-С1
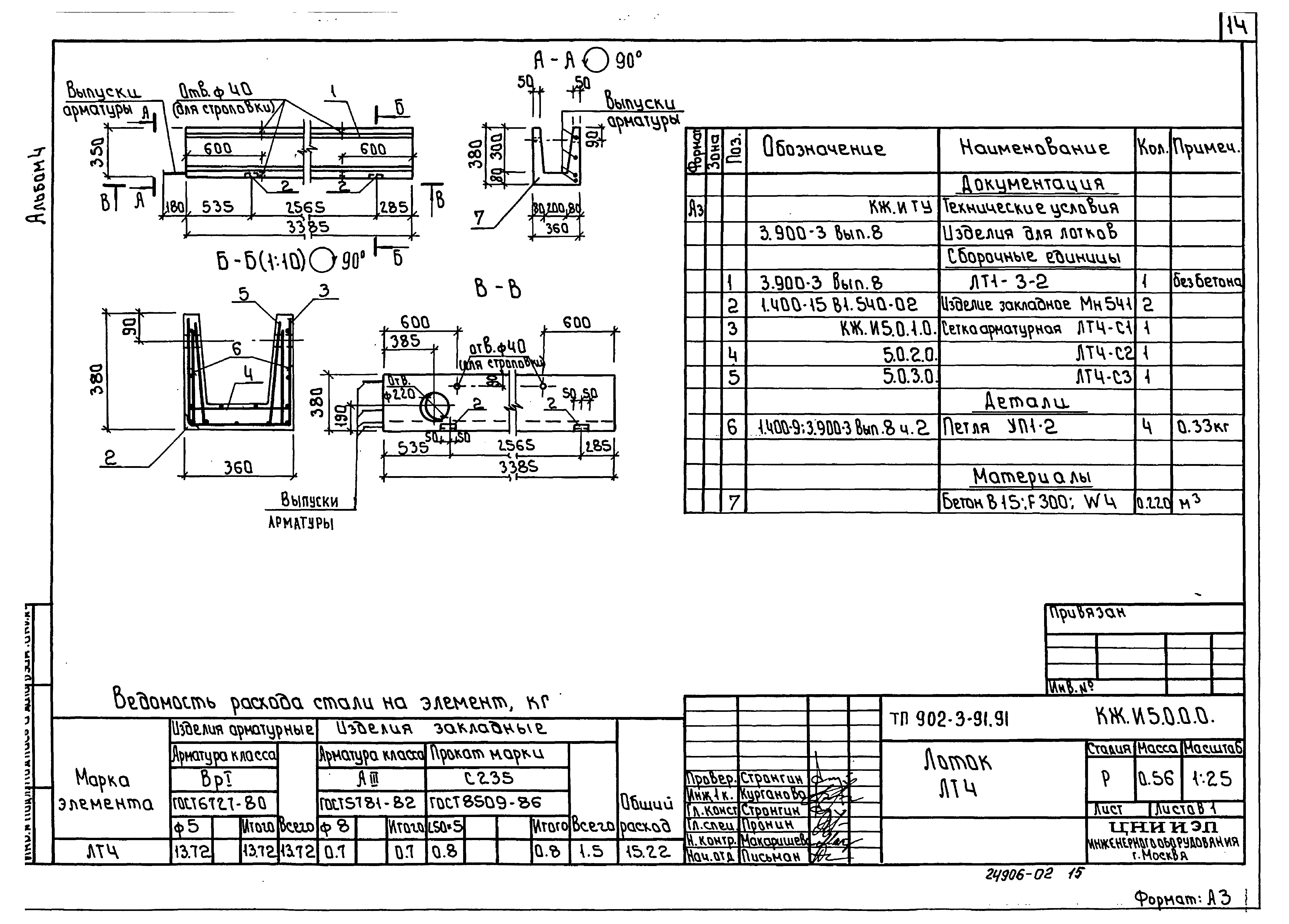
КЖ.И5.0.0.0 Лоток ЛТ4
КЖ.И5.0.2.0 Сетка арматурная ЛТ4-С2
КЖ.И5.0.3.0 Сетка арматурная ЛТ4-С3
КЖ.И6.0.0.0 Панель стеновая ПС10
КЖ.И6.0.1.0 Сетка арматурная СП3
КЖ.И6.0.2.0 Сетка арматурная СП4
КЖ.И6.0.3.0 Каркас Крп5
КЖ.И6.1.0.0 Изделие закладное МН3
КЖ.И6.1.1.0 Каркас Крп6
КЖ.И6.1.2.0 Каркас Крп7
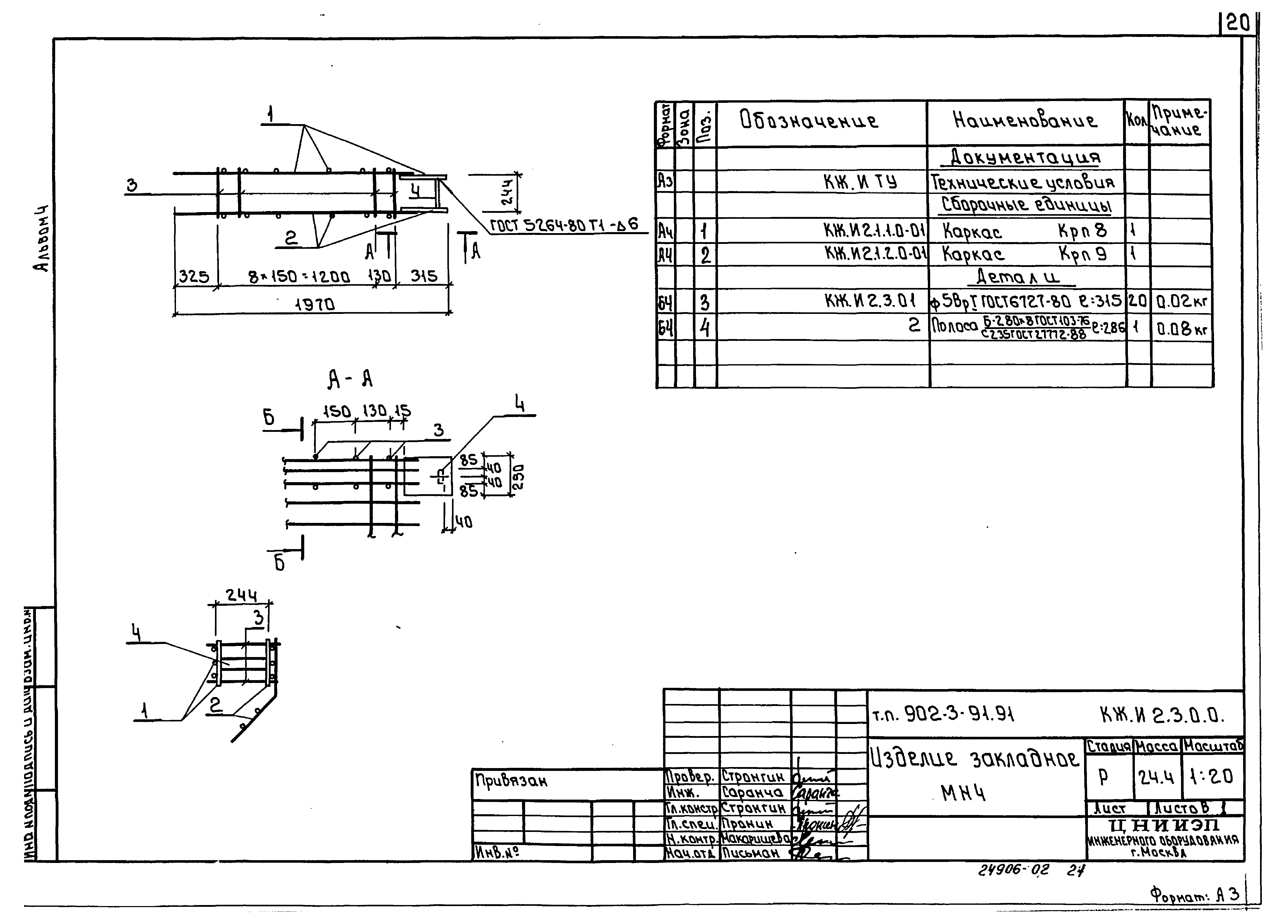
КЖ.И2.3.0.0 Изделие закладное МН4
КЖ.И7.0.0.0 Панель стеновая (ПС3…ПС6)
КЖ.И8.0.0.0 Кольцо стеновое КЦ1
КЖ.И9.0.0.0 Плита перекрытия (П5, П7)
КЖ.И0.1.0.0 Каркас пространственный (КП1, КП2)
КЖ.И0.1.1.0 Каркас плоский Кр1
КЖ.И0.2.0.0 Каркас пространственный КП3
КЖ.И0.2.1.0 Каркас плоский Кр2
КЖ.И0.3.0.0 Каркас пространственный КП4
КЖ.И0.3.1.0 Каркас плоский Кр3
КЖ.И0.0.1.0 Каркас плоский (Кр4, Кр5)
КЖ.И0.0.2.0 Каркас плоский Кр6
КЖ.И0.0.3.0 Сетка арматурная С1
КЖ.И0.0.4.0 Сетка арматурная С2
КЖ.И0.0.5.0 Сетка арматурная С3
КЖ.И0.0.6.0 Сетка арматурная С4
КЖ.И0.0.7.0 Изделие соединительное МС5
КЖ.И0.0.8.0 Изделие соединительное МС6
КЖ.И0.0.9.0 Рамка металлическая Рм1
КЖ.И0.0.10.0 Рамка металлическая Рм2
КЖ.И0.0.11.0 Каркас плоский (Кр7…Кр9)
КЖ.И0.0.12.0 Щит металлический (Щ1, Щ2)
Разработан: ЦНИИЭП иженерного оборудования
Утверждён:28.02.1991 Госкомархитектура (24)
Расположен в:Техническая документация Строительство Справочные документы Типовые строительные конструкции, изделия и узлы Общероссийский строительный каталог Промышленные предприятия, здания и сооружения Здания и сооружения санитарно-технические Канализация Сооружения биологической (биохимической) очистки Станции биологической очистки сточных вод
Типовой проект 902-3-91.91Типовой проект 902-3-91.91Типовой проект 902-3-91.91Типовой проект 902-3-91.91Типовой проект 902-3-91.91Типовой проект 902-3-91.91Типовой проект 902-3-91.91Типовой проект 902-3-91.91Типовой проект 902-3-91.91Типовой проект 902-3-91.91Типовой проект 902-3-91.91Типовой проект 902-3-91.91Типовой проект 902-3-91.91Типовой проект 902-3-91.91Типовой проект 902-3-91.91Типовой проект 902-3-91.91Типовой проект 902-3-91.91Типовой проект 902-3-91.91Типовой проект 902-3-91.91Типовой проект 902-3-91.91Типовой проект 902-3-91.91Типовой проект 902-3-91.91Типовой проект 902-3-91.91Типовой проект 902-3-91.91Типовой проект 902-3-91.91Типовой проект 902-3-91.91Типовой проект 902-3-91.91Типовой проект 902-3-91.91Типовой проект 902-3-91.91Типовой проект 902-3-91.91Типовой проект 902-3-91.91Типовой проект 902-3-91.91Типовой проект 902-3-91.91Типовой проект 902-3-91.91Типовой проект 902-3-91.91

© 2013 Ёшкин Кот :-) Карта сайта