Информационная система
«Ёшкин Кот»

Скачать базу одним архивом
Скачать обновления
История создания базы
Карта сайта

Скачать Типовой проект 816-2-34.87 Альбом I. Общая пояснительная записка. Архитектурно-строительные решения. Конструкции железобетонные. Отопление и вентиляция. Электрооборудование. Автоматизация санитарно-технических систем. Чертежи-задания заводам-изготовителям. Чертежи строительных изделий

Дата актуализации: 10.08.2017

Типовой проект 816-2-34.87

Альбом I. Общая пояснительная записка. Архитектурно-строительные решения. Конструкции железобетонные. Отопление и вентиляция. Электрооборудование. Автоматизация санитарно-технических систем. Чертежи-задания заводам-изготовителям. Чертежи строительных изделий

Обозначение: Типовой проект 816-2-34.87
Обозначение англ: 816-2-34.87
Статус:не определен законодательством
Название рус.:Альбом I. Общая пояснительная записка. Архитектурно-строительные решения. Конструкции железобетонные. Отопление и вентиляция. Электрооборудование. Автоматизация санитарно-технических систем. Чертежи-задания заводам-изготовителям. Чертежи строительных изделий
Дата добавления в базу:01.10.2014
Дата актуализации:05.05.2017
Дата введения:30.12.1987
Оглавление:Содержание
Пояснительная записка
Архитектурно-строительные решения
   Общие данные
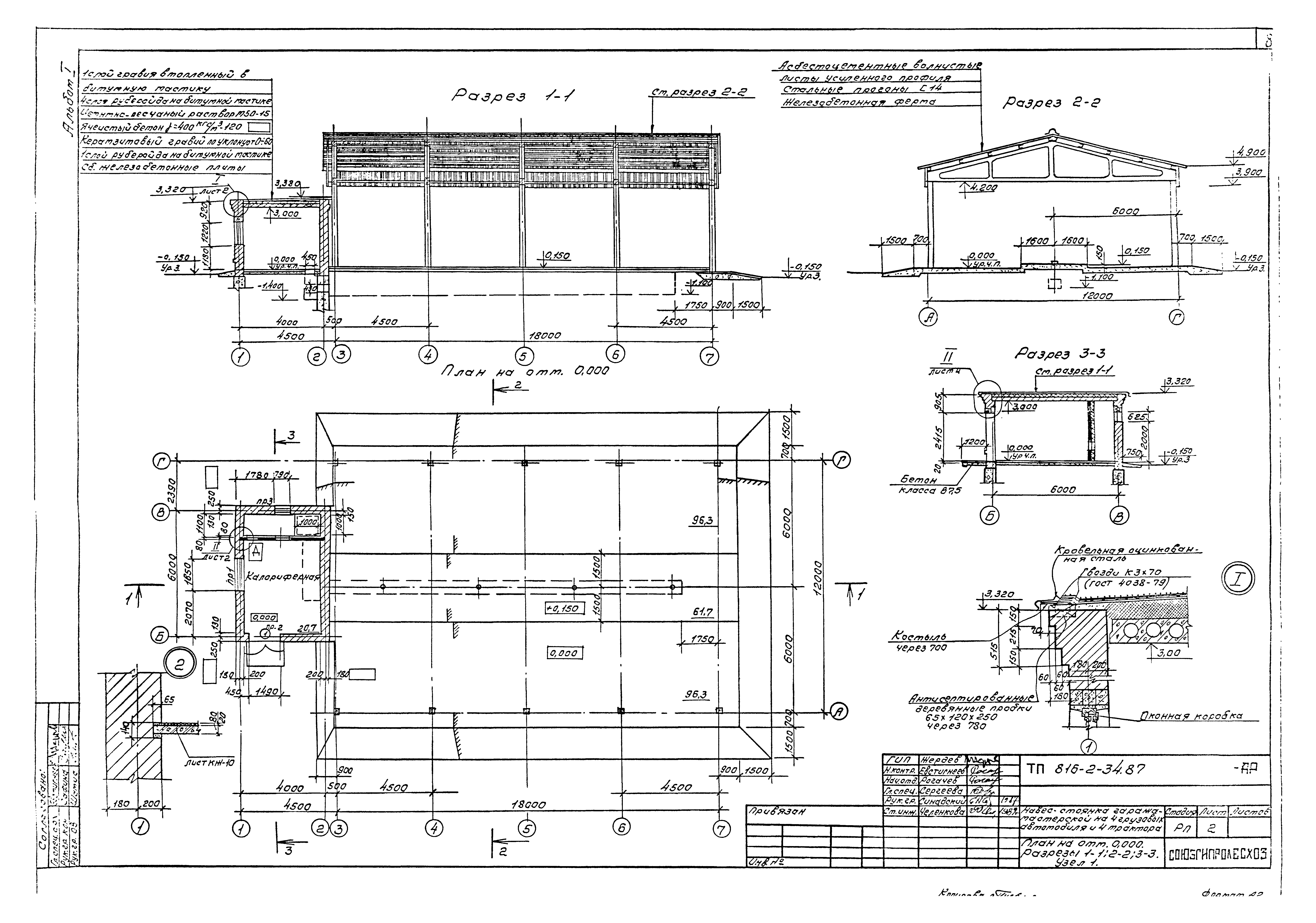
   План на отм. 0.000. Разрез 1-1, 2-2, 3-3. Узел 1
   Фасады 1 - 7; 7 - 1; А - Г; Г - А
   План кровли, план полов на отм. 0.000 и 0.150
Конструкции железобетонные
   Общие данные
   Схема расположения фундаментов. Сечения 1-1, 4-4. Фундамент Фм1
   Схема расположения элементов фундаментов (вариант из сборных блоков) и плит покрытия
   Схема расположения фундаментов под оборудование. Сечения 1-1 - 3-3
   Схема расположения каналов для обогрева автомашин. Разрезы 1-1, 2-2. Узел 1
   Схема расположения лотков и плит покрытия канала
   Схемы расположения колонн и ферм. Разрезы 1-1 и 2-2
   Узлы 1 - 2
   Узлы 3 - 8
   Схема расположения калориферной
Отопление и вентиляция
   Общие данные
   План на отм. 0.000. Схема системы отопления. Узел управления
   Установка системы П1. Схема системы П1
Силовое электрооборудование
   Общие данные
   План расположения электрического оборудования и прокладки электросетей
   Ведомости
Автоматизация санитарно-технических систем
   Общие данные
   Приточная система П1. Схема функциональная
   Приточная система П1. Схема электрическая принципиальная управления
   Приточная система П1. Схема внешних проводок
   Тепловой узел управления. Схема функциональная. Схема трубных проводок
Задания заводу-изготовителю
   Ящик управления ЯУ-1. Чертеж общего вида
   Ящик управления ЯУ-1. Технические данные электрооборудования
   Ящик управления ЯУ-1. Таблица перечня надписей
   Ящик управления ЯУ-1. Схема электрических соединений
Чертежи строительных изделий
   Технические условия
   Ферма
   Плита ПИ1
   Сетка С3
   Сетка С1
   Сетка С2
   Петля П1
   Изделие соединительное МС1 - МС3
   Изделие закладное МН1
   Изделие закладное МН2
   Анкер А1
   Уголок (обрамление)
Разработан: Союзгипролесхоз
Утверждён:25.12.1987 Гослесхоз СССР (USSR Gosleskhoz 41)
Расположен в:Техническая документация Строительство Справочные документы Типовые строительные конструкции, изделия и узлы Общероссийский строительный каталог Промышленные предприятия, здания и сооружения Предприятия, здания и сооружения промышленности и электроэнергетики Промышленность деревообрабатывающая Здания и сооружения разные
Типовой проект 816-2-34.87Типовой проект 816-2-34.87Типовой проект 816-2-34.87Типовой проект 816-2-34.87Типовой проект 816-2-34.87Типовой проект 816-2-34.87Типовой проект 816-2-34.87Типовой проект 816-2-34.87Типовой проект 816-2-34.87Типовой проект 816-2-34.87Типовой проект 816-2-34.87Типовой проект 816-2-34.87Типовой проект 816-2-34.87Типовой проект 816-2-34.87Типовой проект 816-2-34.87Типовой проект 816-2-34.87Типовой проект 816-2-34.87Типовой проект 816-2-34.87Типовой проект 816-2-34.87Типовой проект 816-2-34.87Типовой проект 816-2-34.87Типовой проект 816-2-34.87Типовой проект 816-2-34.87Типовой проект 816-2-34.87Типовой проект 816-2-34.87Типовой проект 816-2-34.87Типовой проект 816-2-34.87Типовой проект 816-2-34.87Типовой проект 816-2-34.87Типовой проект 816-2-34.87Типовой проект 816-2-34.87Типовой проект 816-2-34.87Типовой проект 816-2-34.87Типовой проект 816-2-34.87Типовой проект 816-2-34.87Типовой проект 816-2-34.87Типовой проект 816-2-34.87Типовой проект 816-2-34.87

© 2013 Ёшкин Кот :-) Карта сайта