Информационная система
«Ёшкин Кот»

Скачать базу одним архивом
Скачать обновления
История создания базы
Карта сайта

Скачать ТК III-1.3 Технологические карты на сооружение порталов ОРУ 330 кВ. Технологическая карта на сооружение шинного металлического портала ОРУ 330 кВ на подножниках и на свайных фундаментах

Дата актуализации: 10.08.2017

ТК III-1.3

Технологические карты на сооружение порталов ОРУ 330 кВ. Технологическая карта на сооружение шинного металлического портала ОРУ 330 кВ на подножниках и на свайных фундаментах

Обозначение: ТК III-1.3
Обозначение англ: III-1.3
Статус:cправочные материалы, мп, тпр
Название рус.:Технологические карты на сооружение порталов ОРУ 330 кВ. Технологическая карта на сооружение шинного металлического портала ОРУ 330 кВ на подножниках и на свайных фундаментах
Дата добавления в базу:01.10.2014
Дата актуализации:05.05.2017
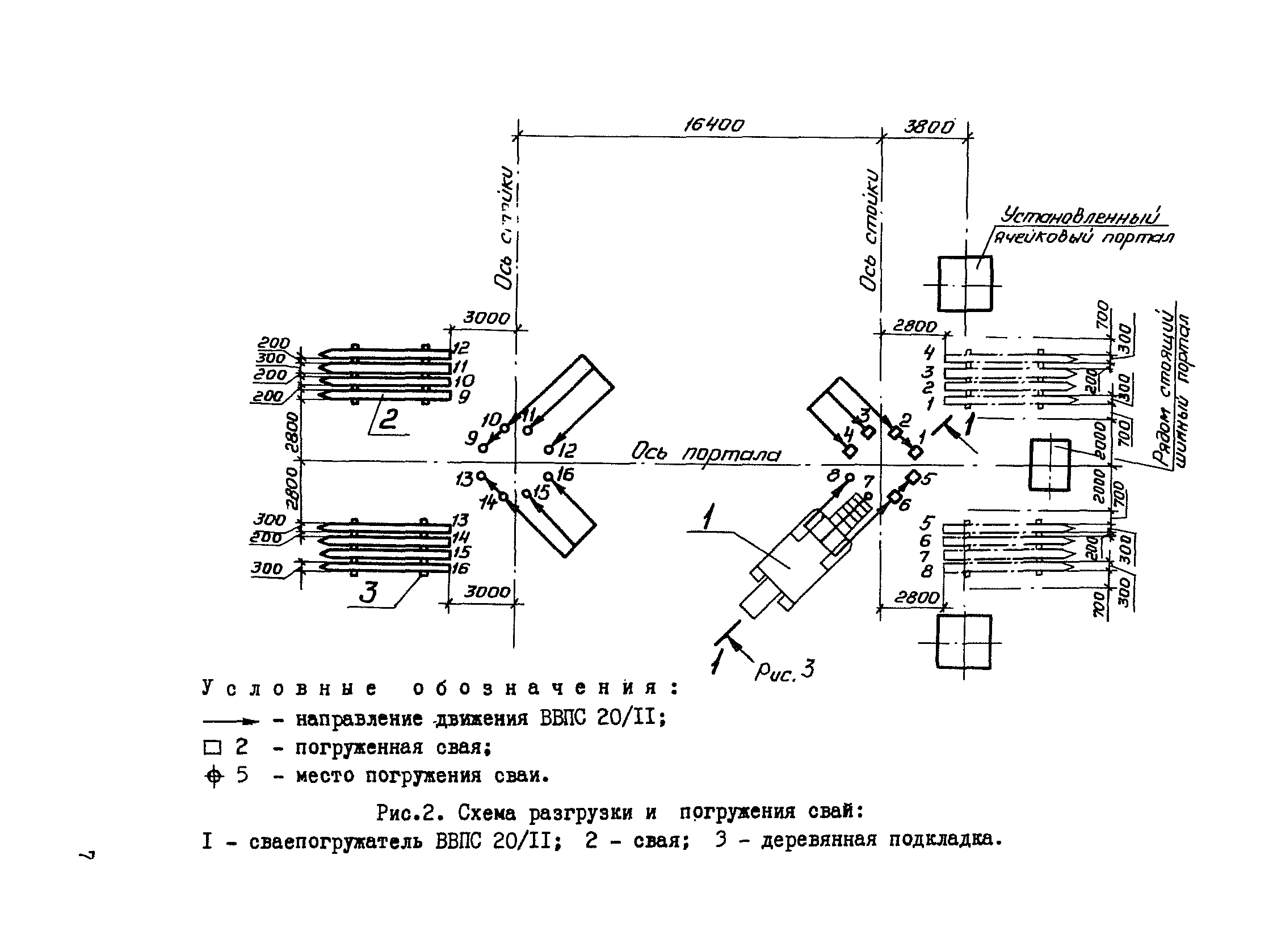
Область применения:В технологической карте рассматриваются все виды работ, встречающиеся при сооружении портала. Для производства работ в зимних условиях в калькуляциях учитываются только основные работы, в разделе "Организация и технология строительного процесса" даны рекомендации по рыхлению и отогреву мерзлоты. Объем и методы производства работ зимой должны быть определены при привязке карты к местным условиям.
Оглавление:Введение
1. Область применения
2. Технико-экономические показатели
3. Организация и технология строительного процесса
4. Организация и методы труда рабочих
5. Материально-технические ресурсы
Разработан: Институт Оргэнергострой Одесский филиал
Утверждён:10.04.1973 Министерство энергетики и электрификации СССР (USSR Ministry of Energy and Electrical Power 137)
Расположен в:Техническая документация Строительство Справочные документы Технологические карты Линии электропередачи
ТК III-1.3ТК III-1.3ТК III-1.3ТК III-1.3ТК III-1.3ТК III-1.3ТК III-1.3ТК III-1.3ТК III-1.3ТК III-1.3ТК III-1.3ТК III-1.3ТК III-1.3ТК III-1.3ТК III-1.3ТК III-1.3ТК III-1.3ТК III-1.3ТК III-1.3ТК III-1.3ТК III-1.3ТК III-1.3ТК III-1.3ТК III-1.3ТК III-1.3ТК III-1.3ТК III-1.3ТК III-1.3ТК III-1.3ТК III-1.3ТК III-1.3ТК III-1.3ТК III-1.3ТК III-1.3ТК III-1.3ТК III-1.3ТК III-1.3ТК III-1.3ТК III-1.3ТК III-1.3ТК III-1.3

© 2013 Ёшкин Кот :-) Карта сайта