Скачать Типовой проект 411-1-126.85 Альбом I. Пояснительная записка. Архитектурно-строительная, санитарно-техническая, электротехническая части, слаботочные устройства, газоснабжениеДата актуализации: 10.08.2017 Типовой проект 411-1-126.85
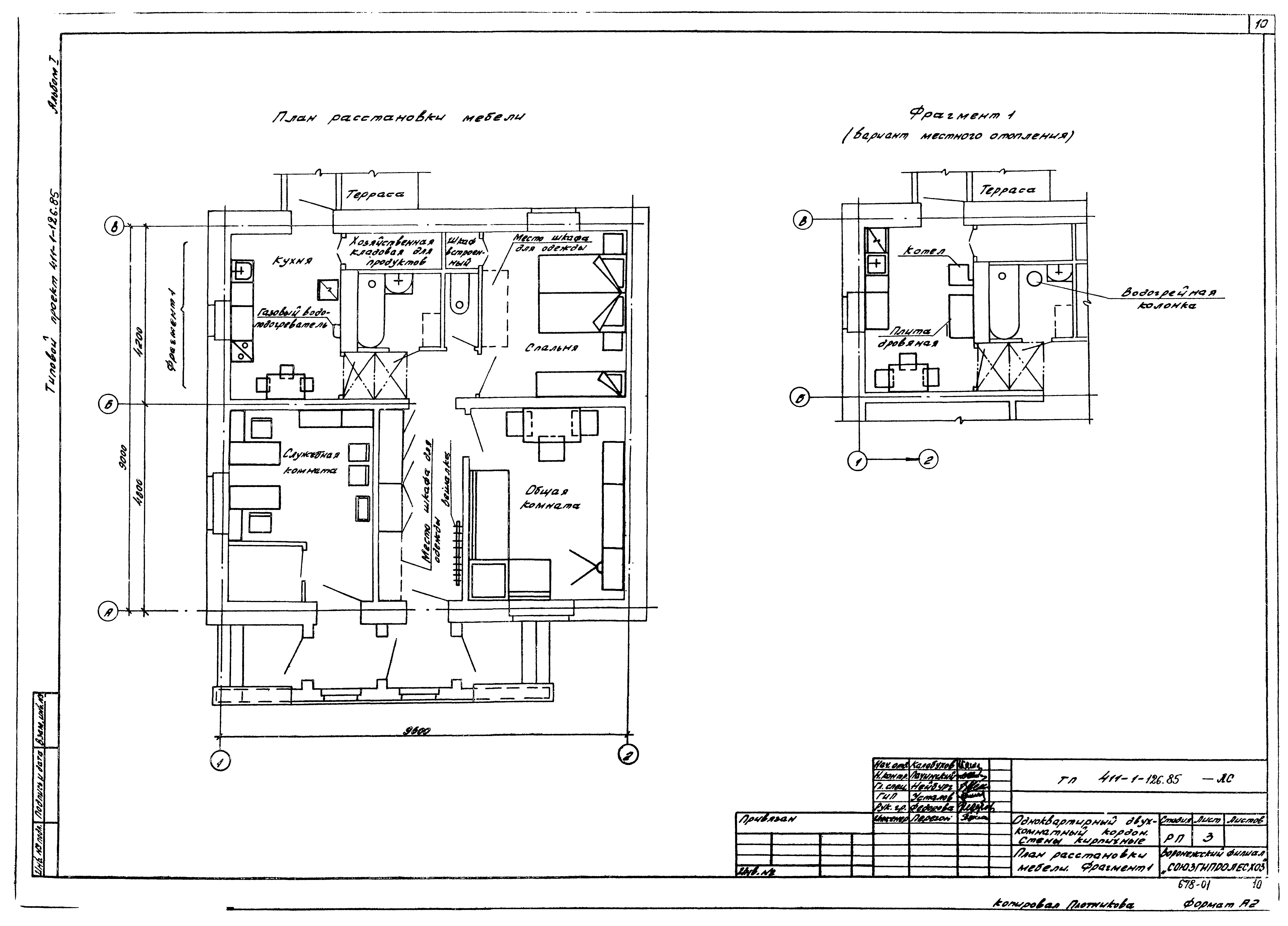
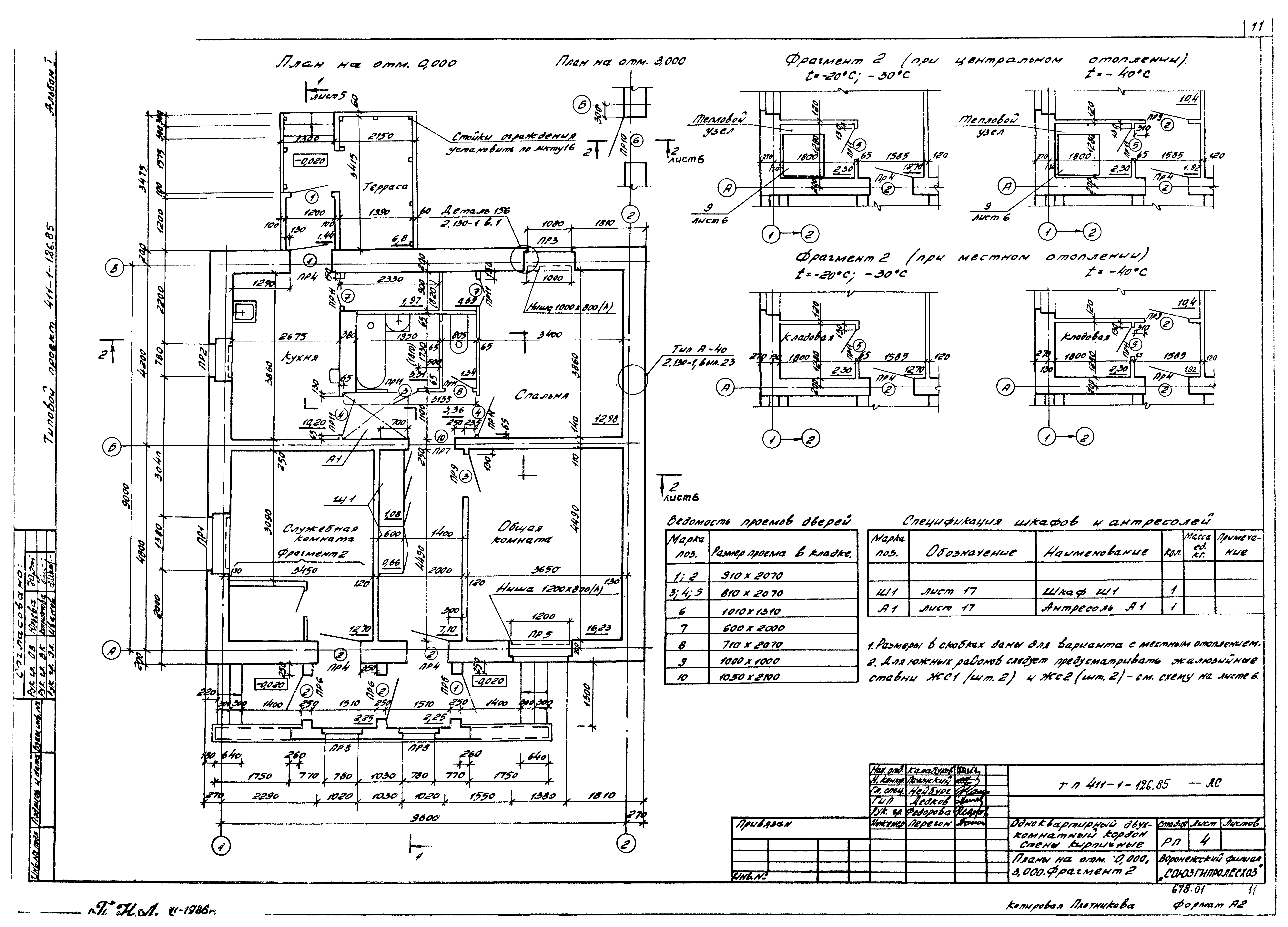
Альбом I. Пояснительная записка. Архитектурно-строительная, санитарно-техническая, электротехническая части, слаботочные устройства, газоснабжениеОбозначение: | Типовой проект 411-1-126.85 | Обозначение англ: | 411-1-126.85 | Статус: | не определен законодательством | Название рус.: | Альбом I. Пояснительная записка. Архитектурно-строительная, санитарно-техническая, электротехническая части, слаботочные устройства, газоснабжение | Дата добавления в базу: | 01.10.2014 | Дата актуализации: | 05.05.2017 | Дата введения: | 09.01.1985 | Оглавление: | Содержание альбома Пояснительная записка Архитектурно-строительные решения Общие данные План расстановки мебели. Фрагмент 1 Планы на отм. 0.000; 3.000. Фрагмент 2 Разрез 1-1. Ведомость перемычек Разрез 2-2. Схема расположения элементов жалюзийной ставни Фасады. План кровли Схемы расположения дымовентиляционных каналов Схема расположения фундаментов. Сечения Сечения 7-7…12-12. Схема расположения элементов перекрытия приямка Схема расположения балок и щитов чердачного перекрытия Схема расположения стропил. Геометрическая схема стропил. Разрезы Узлы стропил Спецификация к схеме расположения элементов стропил Схема расположения асбестоцементных листов покрытия Схемы расположения стоек и ограждения террасы Встроенный шкаф Ш1 и антресоль А1 Чертежи основного комплекта марки КЖИ Створки жалюзийные ЖСт1, ЖСт2 Решетка РШ1 Хомуты Х1, Х2 Анкер А1 Анкер А2 Анкер А3 Внутренний водопровод и канализация Общие данные План систем на отм. 0.000 Схемы систем В1, К1, Т3 Отопление и вентиляция Общие данные План на отм. 0.000. Отопление от наружных сетей. Узел управления План на отм. 0.000. Отопление местное от котла КЧМ-2у Газоснабжение Общие данные Фрагмент плана на отм. 0.000. Схема газопровода Электроосвещение Общие данные План электроосвещения. Расчетная схема Слаботочные устройства Общие данные План на отм. 0.000 | Разработан: | Воронежский филиал Союзгипролесхоза
| Утверждён: | 31.07.1984 Гослесхоз СССР (USSR Gosleskhoz 9)
| Расположен в: |
| Заменяет собой: | - Типовой проект 411-1-18/74
|
                                 
|