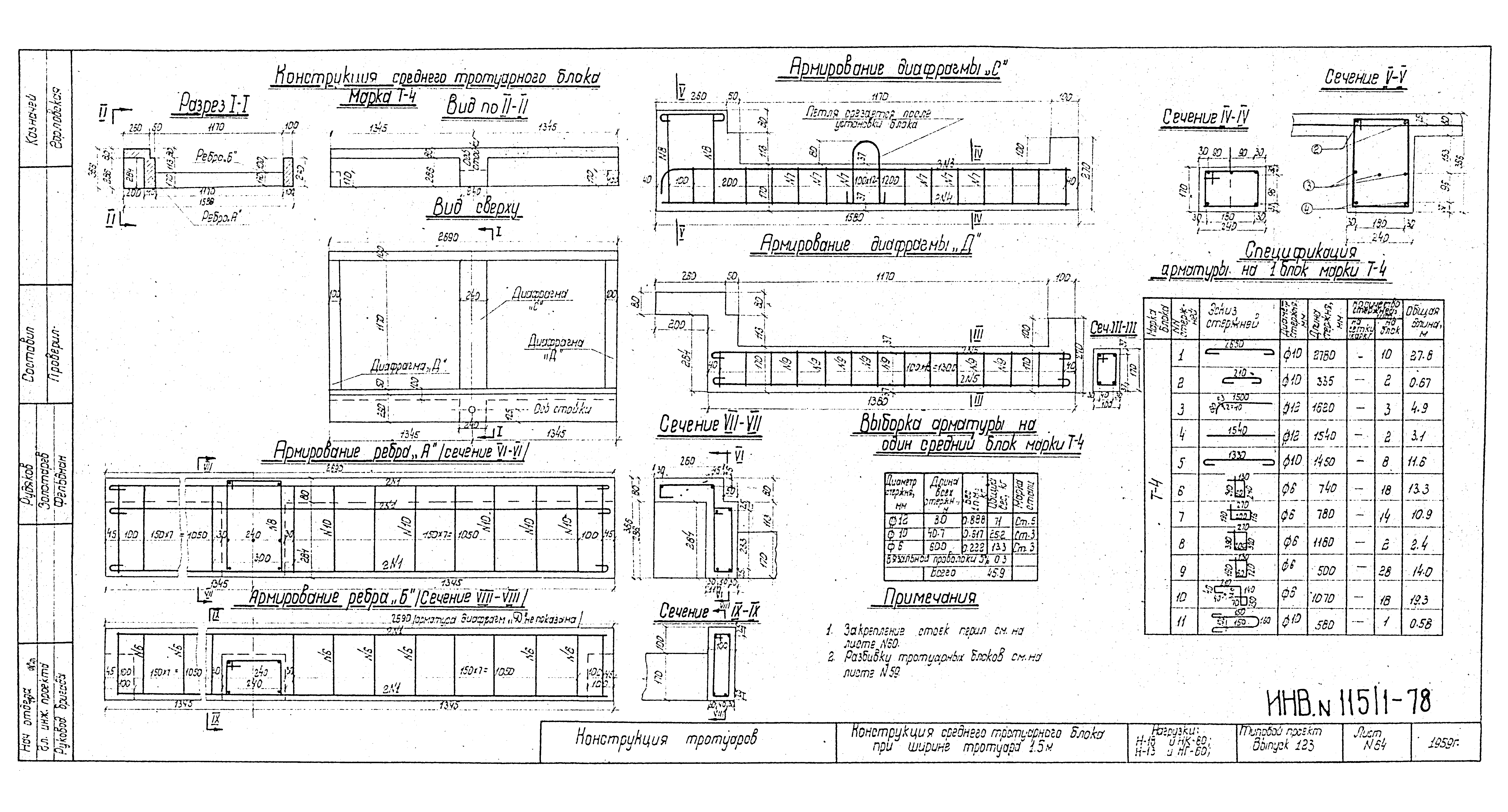
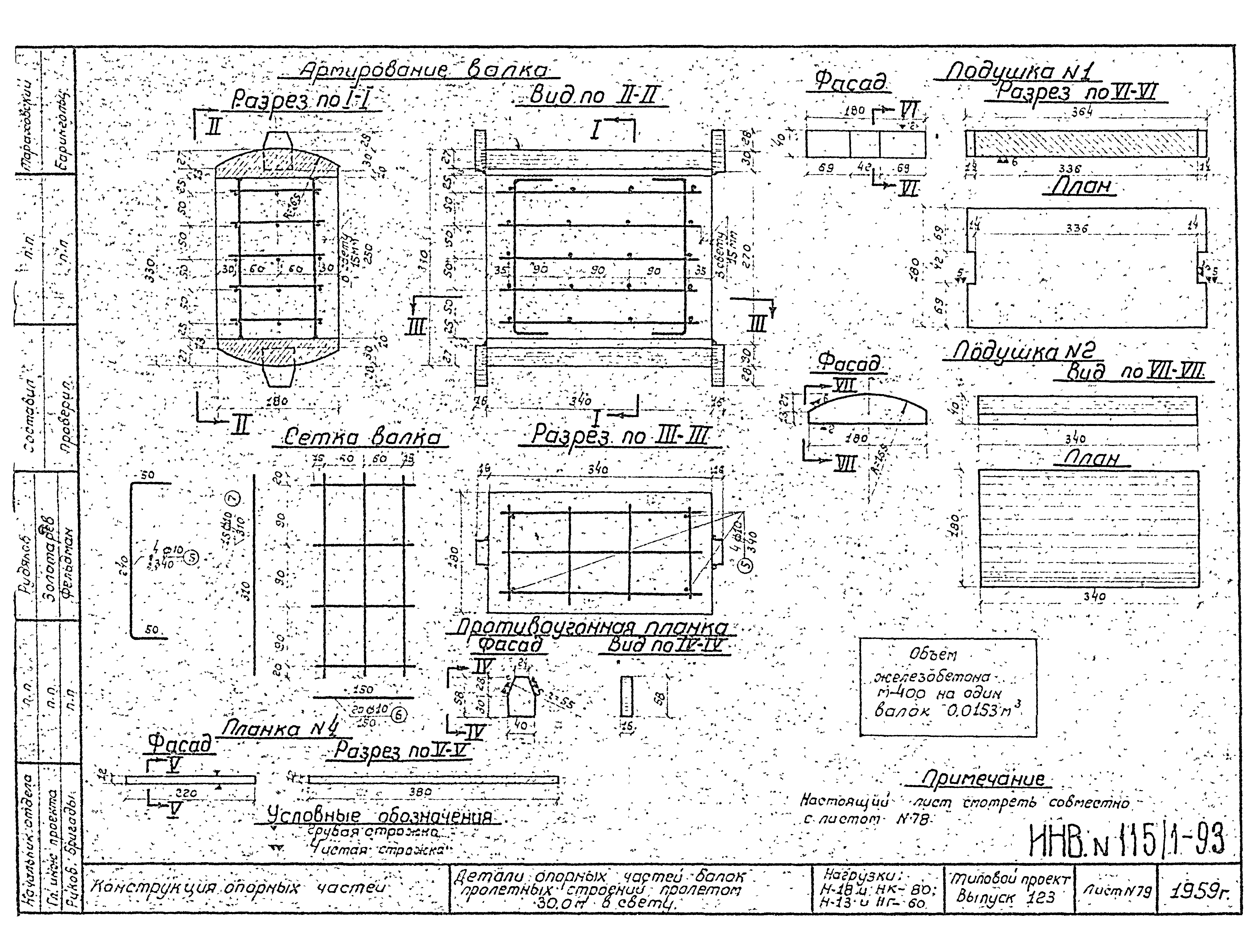
Скачать Типовой проект Выпуск 123. Пролетные строения железобетонные сборные, из составных (по длине пролета) балок с натяжением арматуры после бетонирования. Пролеты в свету: 20,0; 30,0 и 40,0 м. Нагрузки: Н-13 и НГ-60; Н-18 и НК-80. Габариты: Г-6, Г-7 и Г-8 с шириной тротуаров 0,75 и 1,5 мДата актуализации: 10.08.2017 Типовой проект
Выпуск 123. Пролетные строения железобетонные сборные, из составных (по длине пролета) балок с натяжением арматуры после бетонирования. Пролеты в свету: 20,0; 30,0 и 40,0 м. Нагрузки: Н-13 и НГ-60; Н-18 и НК-80. Габариты: Г-6, Г-7 и Г-8 с шириной тротуаров 0,75 и 1,5 мОбозначение: | Типовой проект | Статус: | действует | Название рус.: | Выпуск 123. Пролетные строения железобетонные сборные, из составных (по длине пролета) балок с натяжением арматуры после бетонирования. Пролеты в свету: 20,0; 30,0 и 40,0 м. Нагрузки: Н-13 и НГ-60; Н-18 и НК-80. Габариты: Г-6, Г-7 и Г-8 с шириной тротуаров 0,75 и 1,5 м | Дата добавления в базу: | 01.10.2014 | Дата актуализации: | 05.05.2017 | Оглавление: | Пояснения I. Расчетные листы II. Конструкции пролетных строений А. Таблицы объемов работ и потребности материалов Б. Конструкции пролетных строений В. Конструкции тротуаров Г. Конструкция проезжей части Д. Конструкция опорных частей III. Производство работ А. Изготовление блоков члененных балок Б. Сборка и монтаж пролетных строений | Разработан: | Союздорпроект Минтрансстроя
| Утверждён: | 30.10.1959 Министерство транспортного строительства СССР (USSR Ministry of Transport Construction )
| Расположен в: |
|
                                                                                                            
|