Информационная система
«Ёшкин Кот»

Скачать базу одним архивом
Скачать обновления
История создания базы
Карта сайта

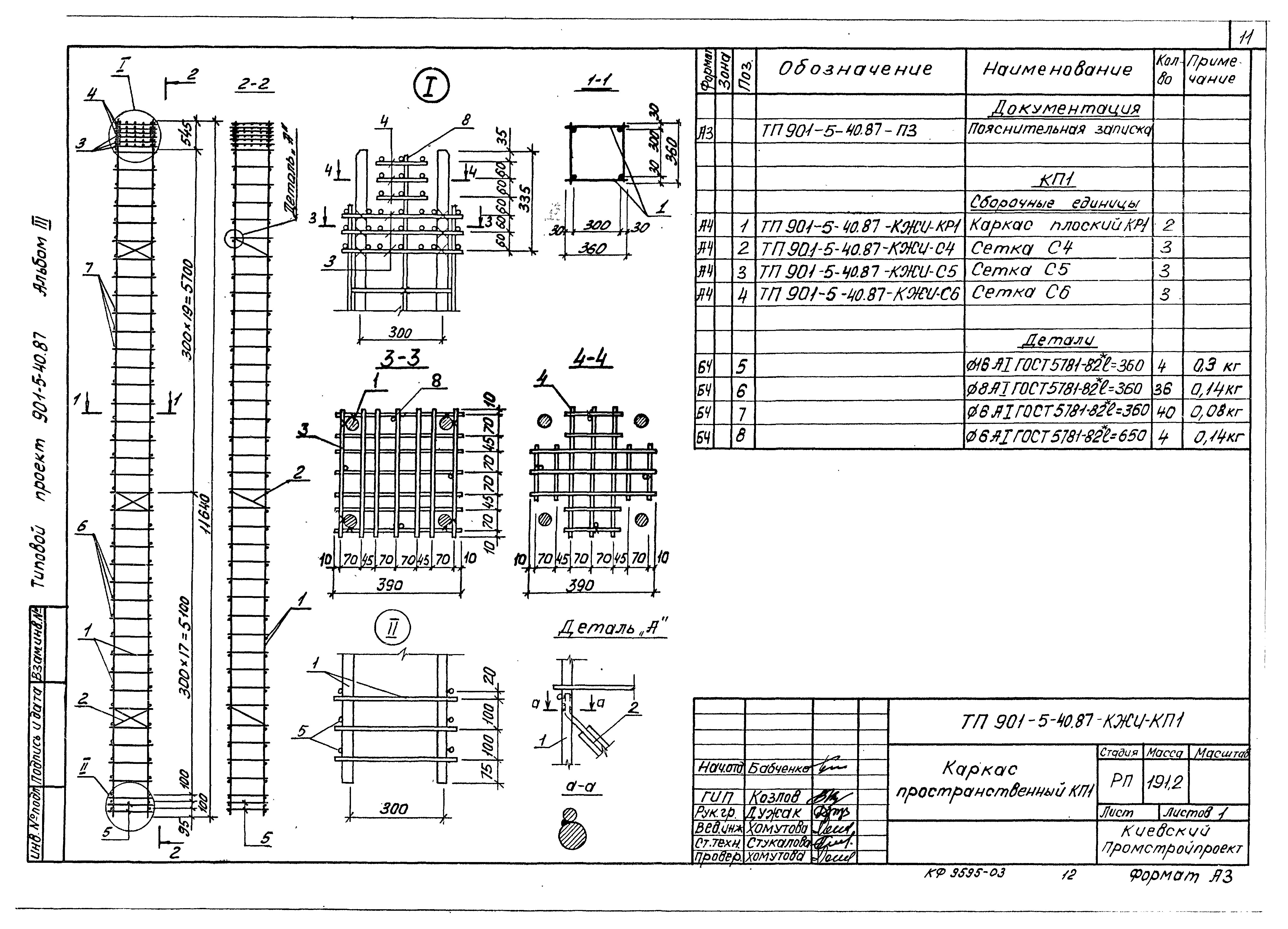
Скачать Типовой проект 901-5-40.87 Альбом III. Сборные железобетонные конструкции и арматурные изделия

Дата актуализации: 10.08.2017

Типовой проект 901-5-40.87

Альбом III. Сборные железобетонные конструкции и арматурные изделия

Обозначение: Типовой проект 901-5-40.87
Обозначение англ: 901-5-40.87
Статус:не определен законодательством
Название рус.:Альбом III. Сборные железобетонные конструкции и арматурные изделия
Дата добавления в базу:01.10.2014
Дата актуализации:05.05.2017
Дата введения:27.05.1986
Оглавление:Содержание
Пояснительная записка
Колонны железобетонные
Колонны железобетонные. Узлы
Каркасы пространственные
Каркасы плоские
Сетки
Изделия закладные
Изделия соединительные
Разработан: Укрводоканалпроект
Утверждён:29.04.1986 Госстрой СССР (Государственный комитет Совета Министров СССР по делам строительства) (USSR Gosstroy А4-25)
Расположен в:Техническая документация Строительство Справочные документы Типовые строительные конструкции, изделия и узлы Общероссийский строительный каталог Промышленные предприятия, здания и сооружения Здания и сооружения санитарно-технические Водоснабжение Водонапорные башни Железобетонные
Типовой проект 901-5-40.87Типовой проект 901-5-40.87Типовой проект 901-5-40.87Типовой проект 901-5-40.87Типовой проект 901-5-40.87Типовой проект 901-5-40.87Типовой проект 901-5-40.87Типовой проект 901-5-40.87Типовой проект 901-5-40.87Типовой проект 901-5-40.87Типовой проект 901-5-40.87Типовой проект 901-5-40.87Типовой проект 901-5-40.87Типовой проект 901-5-40.87Типовой проект 901-5-40.87Типовой проект 901-5-40.87Типовой проект 901-5-40.87Типовой проект 901-5-40.87Типовой проект 901-5-40.87Типовой проект 901-5-40.87Типовой проект 901-5-40.87Типовой проект 901-5-40.87Типовой проект 901-5-40.87Типовой проект 901-5-40.87Типовой проект 901-5-40.87Типовой проект 901-5-40.87Типовой проект 901-5-40.87Типовой проект 901-5-40.87Типовой проект 901-5-40.87Типовой проект 901-5-40.87Типовой проект 901-5-40.87Типовой проект 901-5-40.87

© 2013 Ёшкин Кот :-) Карта сайта