Информационная система
«Ёшкин Кот»

Скачать базу одним архивом
Скачать обновления
История создания базы
Карта сайта

Скачать Типовой проект 901-3-285.91 Альбом 4. Часть 2. Автоматизация

Дата актуализации: 10.08.2017

Типовой проект 901-3-285.91

Альбом 4. Часть 2. Автоматизация

Обозначение: Типовой проект 901-3-285.91
Обозначение англ: 901-3-285.91
Статус:не определен законодательством
Название рус.:Альбом 4. Часть 2. Автоматизация
Дата добавления в базу:01.10.2014
Дата актуализации:05.05.2017
Дата введения:29.07.1986
Оглавление:Содержание
Автоматизация
   Общие данные
   Схема автоматизации
   Схема электрическая принципиальная питания. Щиты ЩД, ШРК1, ШРК2, ЩАХ, ЩИР
   Схема автоматизации приточной системы П-1 (П-2)
   Схема электрическая принципиальная сигнализации общестанционная
   Схема электрическая принципиальная сигнализации. Основные реагенты
   Схема электрическая принципиальная управления приточной системой П1 (П2)
   Измерение расхода воздуха. Схема электрическая соединений
   Схема структурная автоматизации дозирования коагулянта
   Регулирование дозы коагулянта. Схема электрическая соединений
   Измерение расхода воды и остаточного хлора. Схема электрическая соединений
   Схема внешних проводок
   План расположения средств автоматизации и проводок на отм. - 2.400; 0.000; 3.600. Насосная, приточная венткамера, диспетчерская
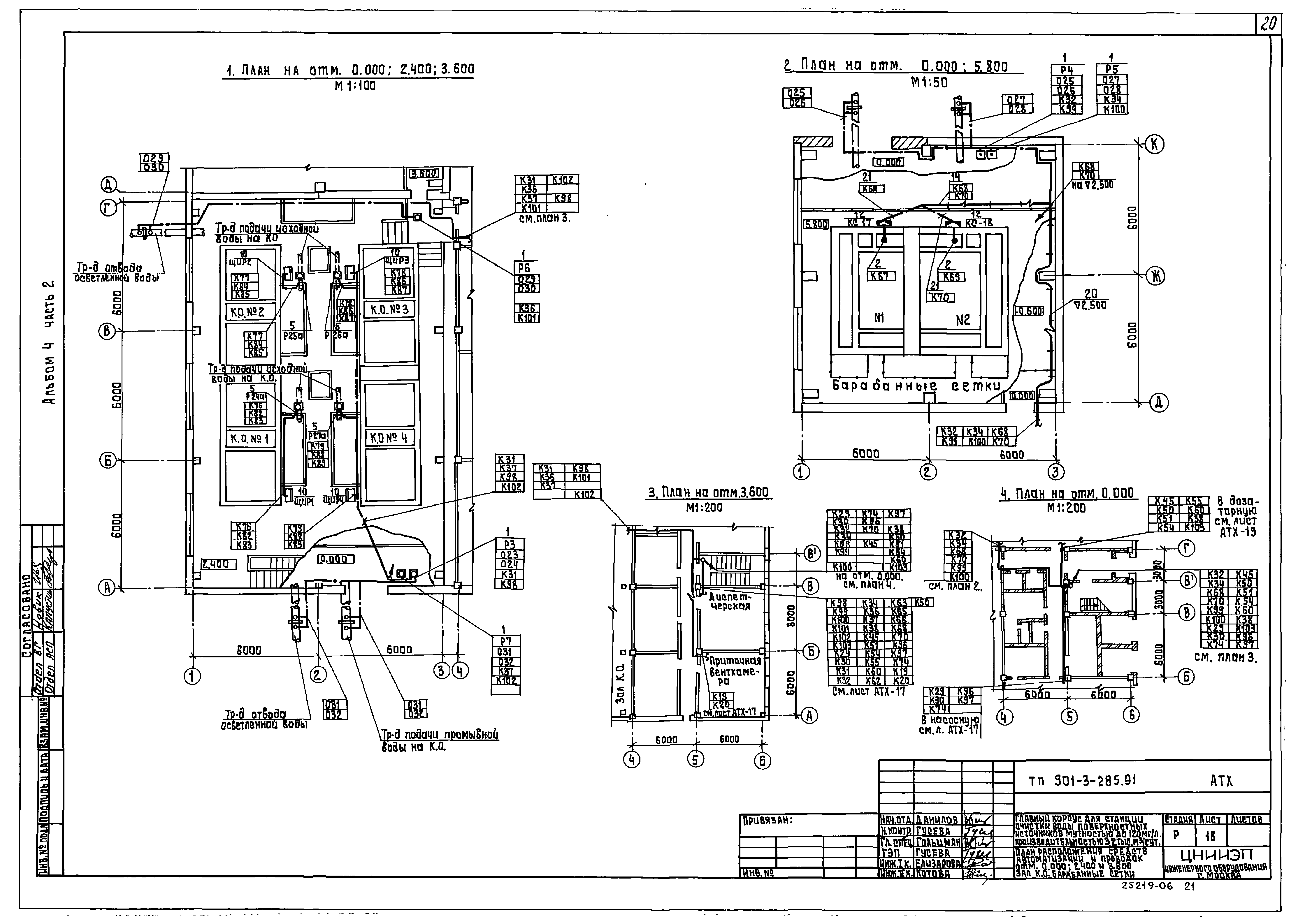
   План расположения средств автоматизации и проводок на отм. 0.000; 2.400 и 3.600. Зал коагулянта. Барабанные сетки
   План расположения средств автоматизации и проводок на отм. - 1.800; 0.000. Дозаторная. Отделение растворных баков коагулянта
   Спецификация к планам расположения средств автоматизации и проводок
   Щит диспетчера ЩД, секции 1, 2. Схема подключения клеммников
   Щит диспетчера ЩД, секции 3, 4. Схема подключения клеммников
   Щиты ЩАХ, ШРК1, ШРК2, ЩИР. Схема подключения клеммников
Разработан: ЦНИИЭП иженерного оборудования
Утверждён:29.07.1986 Госгражданстрой (Gosgrazhdanstroy 242)
Расположен в:Техническая документация Строительство Справочные документы Типовые строительные конструкции, изделия и узлы Общероссийский строительный каталог Промышленные предприятия, здания и сооружения Здания и сооружения санитарно-технические Водоснабжение Очистные сооружения Станции очистки воды
Заменяет собой:
  • Типовой проект 901-3-105
Типовой проект 901-3-285.91Типовой проект 901-3-285.91Типовой проект 901-3-285.91Типовой проект 901-3-285.91Типовой проект 901-3-285.91Типовой проект 901-3-285.91Типовой проект 901-3-285.91Типовой проект 901-3-285.91Типовой проект 901-3-285.91Типовой проект 901-3-285.91Типовой проект 901-3-285.91Типовой проект 901-3-285.91Типовой проект 901-3-285.91Типовой проект 901-3-285.91Типовой проект 901-3-285.91Типовой проект 901-3-285.91Типовой проект 901-3-285.91Типовой проект 901-3-285.91Типовой проект 901-3-285.91Типовой проект 901-3-285.91Типовой проект 901-3-285.91Типовой проект 901-3-285.91Типовой проект 901-3-285.91Типовой проект 901-3-285.91Типовой проект 901-3-285.91Типовой проект 901-3-285.91

© 2013 Ёшкин Кот :-) Карта сайта