Скачать Типовой проект 901-3-244.88 Альбом IV. Электротехническая часть. АвтоматизацияДата актуализации: 10.08.2017 Типовой проект 901-3-244.88
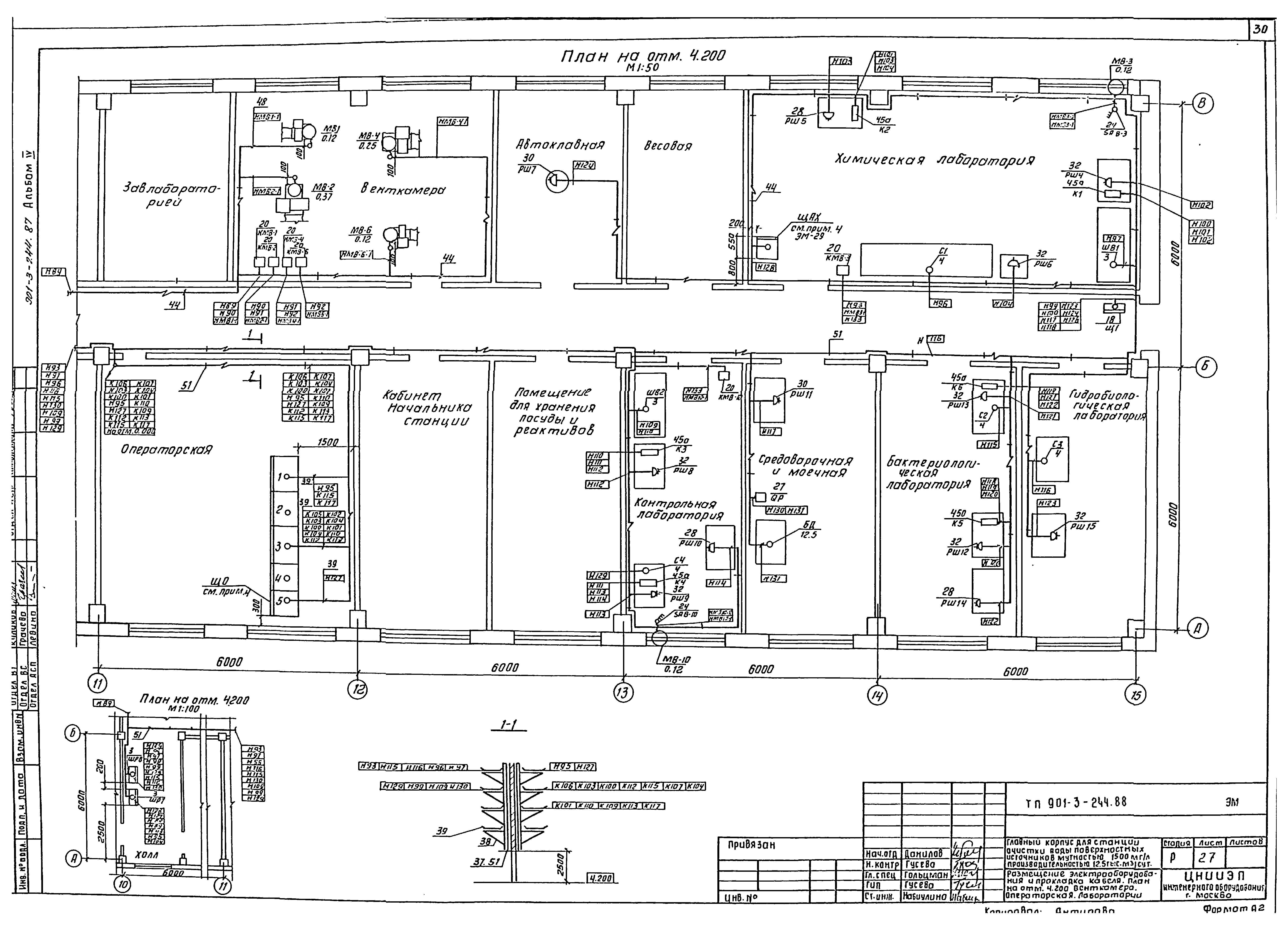
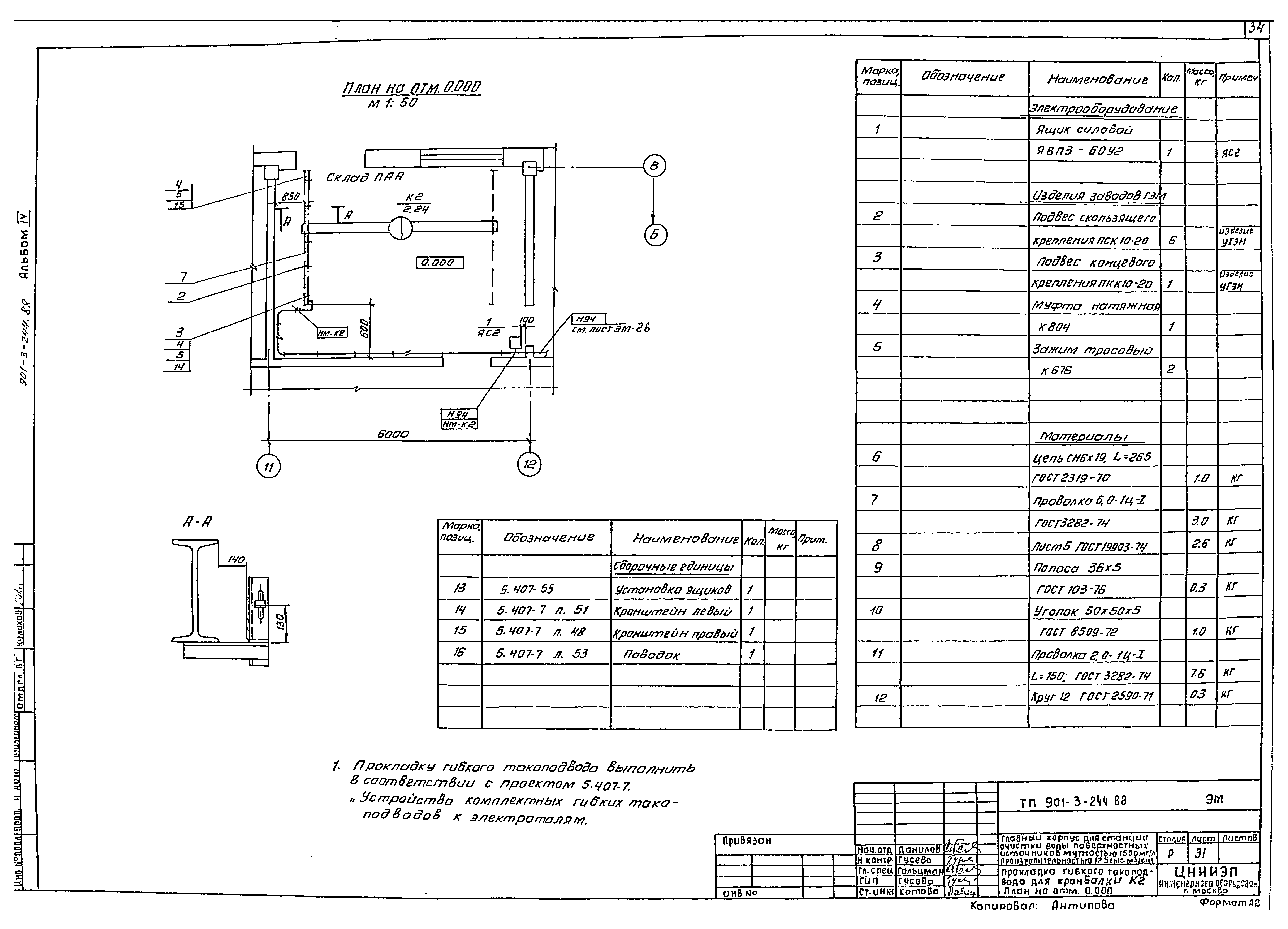
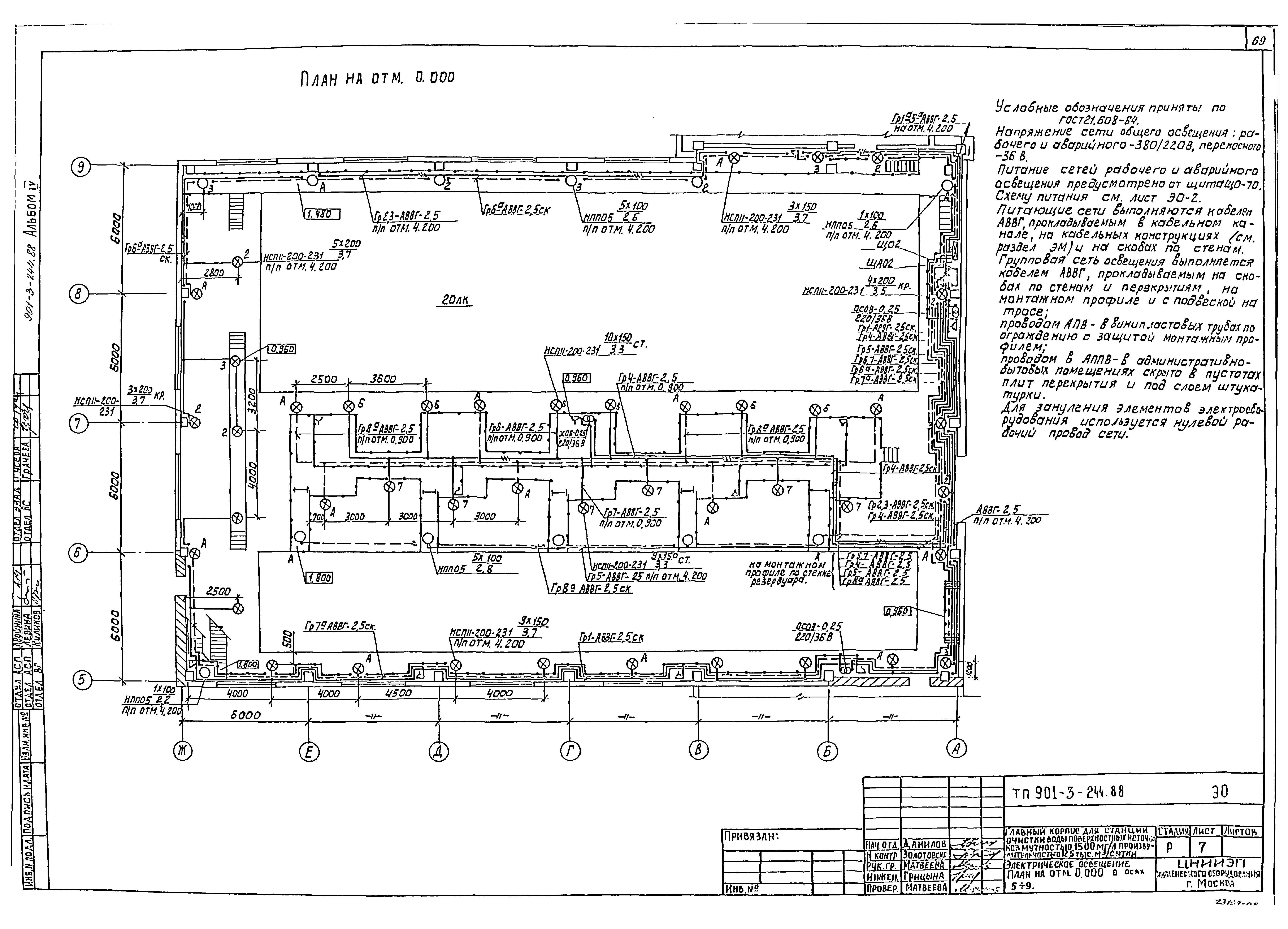
Альбом IV. Электротехническая часть. АвтоматизацияОбозначение: | Типовой проект 901-3-244.88 | Обозначение англ: | 901-3-244.88 | Статус: | не определен законодательством | Название рус.: | Альбом IV. Электротехническая часть. Автоматизация | Дата добавления в базу: | 01.10.2014 | Дата актуализации: | 05.05.2017 | Дата введения: | 29.07.1986 | Оглавление: | Содержание Силовое электрооборудование Общие данные Схема принципиальная электрическая 0,4 кВ Схема электрическая принципиальная распределительной сети 380/220 В Схемы электрические принципиальные управления отопительными агрегатами МА1, МА2, МА3 Схемы электрические принципиальные управления задвижками, затворами МФ1 - МФ20 Схема подключения электрооборудования. Ящик Я6. Ящик ЯА-1 (ЯА-2), ЯА-3 Схема подключения электрооборудования. Шкаф РТ301 - РТ303. Задвижки, затворы МФ1 - МФ20 Схема подключения электрооборудования. Ящики ЯУП-1, ЯУП, ЯУНЭ1. Пускатели КМВ1 - КМВ10 Схема подключения электрооборудования. Ящик Я10. Шкаф ШСП Схема подключения электрооборудования. Шкафы Ш1 - Ш5 Схема подключения электрооборудования. Пускатели КМ61 - КМ65; КМ10-1; КМ11-1. Сводка кабелей и проводов, учтенных кабельным журналом Кабельный журнал Размещение электрооборудования и прокладка кабеля. План на отм. - 2.400. Насосная станция II подъема Размещение электрооборудования и прокладка кабеля. План на отм. 0.000; 0.600. Фильтры и осветлители Размещение электрооборудования и прокладка кабеля. План на отм. 4.200. Фильтры и осветлители Размещение электрооборудования и прокладка кабеля. План на отм. 0.000. Воздуховная венткамера Размещение электрооборудования и прокладка кабеля. План на отм. - 1.200; 0.000. Отделение растворно-хранилищных баков коагулянта. Дозаторная Размещение электрооборудования и прокладка кабеля. План на отм. 4.200. Венткамера. Операторская. Лаборатории Размещение электрооборудования и прокладка кабеля. Спецификация Прокладка троллейного шинопровода для кран-балки К1. План на отм. 4.200; 8.750 Прокладка гибкого токопровода для кран-балки К2. План на отм. 0.000 Заземление. Планы на отм. - 2.400; - 1.200; 0.000 Заземление. Планы на отм. 4.200 Трансформаторная подстанция. Установка электрооборудования Трансформаторная подстанция. Узлы установки электрооборудования Трансформаторная подстанция. Заземление Опросный лист для заказа камер серии КСО-366 Опросный лист для заказа щита из панелей ЩО70 Изделия МЭЗ. Конструкции Изделия МЭЗ. Ведомость изделий МЭЗ. Ведомость потребности в материалах для изделий МЭЗ. Конструкции Автоматизация Общие данные Схема автоматизации Схемы электрические принципиальные питания приборов и цепей управления щитов ЩО, ШРК1, ШРК2, ШАХ Схемы электрические принципиальные питания приборов и цепей управления щитов ЩО, ШРК1, ШРК2, ШАХ. Схема автоматизации приточной системы П-1 Схема электрическая принципиальная сигнализации общестанционная Схема электрическая принципиальная сигнализации на основные реагенты Схема структурная автоматизации дозирования коагулянта Регулирование дозы коагулянта. Схема электрическая соединений Схема электрическая принципиальная реконструкции прибора АКК-201 для дозирования коагулянта Электромонтажная схема блока измерительного для прибора АКК-201 Схема внешних проводок Размещение приборов технологического контроля и прокладка кабеля. План на отм. - 1.200; 0.000. Отделение растворно-хранилищных баков коагулянта. Дозаторная Размещение приборов технологического контроля и прокладка кабеля. План на отм. 0.000; 4.200. Операторская. Приточная венткамера Размещение приборов технологического контроля и прокладка кабеля. План на отм. - 2.400; 0.000; 4.200. Насосная станция. Фильтры и осветлители Размещение приборов технологического контроля и прокладка кабеля. Спецификация Электрическое освещение Общие данные Электрическое освещение. Принципиальная схема питающих сетей. Ведомость узлов электрического оборудования на плане расположения Электрическое освещение. План питающих сетей Электрическое освещение. План на отм. 0.000 в осях 1 - 4 и - 2.400 в осях 2 - 4 Электрическое освещение. План на отм. 0.000 в осях 10 - 15 Электрическое освещение. План на отм. 4.200 в осях 10 - 15 Электрическое освещение. План на отм. 0.000 в осях 5 - 9 Электрическое освещение. План на отм. 4.200 в осях 5 - 9. Фрагмент плана на отм. 4.200 Связь и сигнализация Общие данные. Скелетная схема спецификации План на отм. 0.000 с сетями связи и сигнализации План на отм. 4.200 с сетями связи и сигнализации | Разработан: | ЦНИИЭП иженерного оборудования
| Утверждён: | 29.07.1986 Госгражданстрой (Gosgrazhdanstroy 242)
| Издан: | ЦИТП Госстроя СССР (CITP, Gosstroy (USSR) 1988 г. )
| Расположен в: |
| Заменяет собой: | |
                                                                        
|