Информационная система
«Ёшкин Кот»

Скачать базу одним архивом
Скачать обновления
История создания базы
Карта сайта

Скачать Типовые проектные решения 820-04-16.85 Альбом III. Водосбросы на расход воды до 39 куб. м/с. Железобетонные конструкции шахты. Ведомость потребности в материалах. Сборно-монолитный вариант

Дата актуализации: 10.08.2017

Типовые проектные решения 820-04-16.85

Альбом III. Водосбросы на расход воды до 39 куб. м/с. Железобетонные конструкции шахты. Ведомость потребности в материалах. Сборно-монолитный вариант

Обозначение: Типовые проектные решения 820-04-16.85
Обозначение англ: 820-04-16.85
Статус:cправочные материалы, мп, тпр
Название рус.:Альбом III. Водосбросы на расход воды до 39 куб. м/с. Железобетонные конструкции шахты. Ведомость потребности в материалах. Сборно-монолитный вариант
Дата добавления в базу:01.10.2014
Дата актуализации:05.05.2017
Дата введения:14.01.1985
Оглавление:Шахта Ш-3-1 (сборно-монолитный вариант)
   Общие данные
   План. Разрезы 1-1 - 4-4
   Схема армирования. План. Разрезы 1-1 - 3-3
   Схема армирования. Разрезы 4-4, 5-5
   Сетка арматурная С (С1, С2, С9, С10, С12, С13)
   Сетка арматурная С (С8, С11)
   Сетка арматурная С (С3, С7)
   Изделие закладное МН1
   Изделие закладное МН2
   Ведомости потребности в материалах
Шахта Ш-4-1 (сборно-монолитный вариант)
   Общие данные
   План. Разрезы 1-1 - 4-4
   Схема армирования. План. Разрезы 1-1 - 5-5
   Спецификация к схеме армирования сборно-монолитной шахты Ш-4-1
   Сетка арматурная С (С1, С2, С9, С10)
   Сетка арматурная С (С11, С12, С13, С15)
   Сетка арматурная С (С8, С14)
   Сетка арматурная С18
   Сетка арматурная С (С17, С19)
   Сетка арматурная С20
   Сетка арматурная С (С3, С6)
   Сетка арматурная С7
   Изделие закладное МН1
   Изделие закладное МН2
   Ведомости потребности в материалах
Шахта Ш-5-1 (сборно-монолитный вариант)
   Общие данные
   План. Разрез 1-1
   Разрезы 2-2, 3-3, 4-4
   Схема армирования. План. Разрезы 1-1 - 5-5
   Спецификация к схеме армирования сборно-монолитной шахты Ш-5-1
   Сетка арматурная С (С1, С2, С11, С13, С14, С15)
   Сетка арматурная С (С16, С17, С18, С20, С21)
   Сетка арматурная С (С10, С12, С19)
   Сетка арматурная С (С3, С9)
   Изделие закладное МН1
   Изделие закладное МН2
   Ведомости потребности в материалах
Шахта Ш-6-1 (сборно-монолитный вариант)
   Общие данные
   План. Разрезы 1-1- 4-4
   Разрезы 2-2, 3-3
   Схема армирования. План. Разрезы 1-1, 4-4, 5-5
   Схема армирования. Разрезы 2-2, 3-3
   Сетка арматурная С (С1, С2, С13, С14)
   Сетка арматурная С (С16, С18)
   Сетка арматурная С (С19, С22)
   Сетка арматурная С (С10, С12)
   Сетка арматурная С (С3, С9, С23)
   Изделие закладное МН1
   Изделие закладное МН2
   Ведомости потребности в материалах
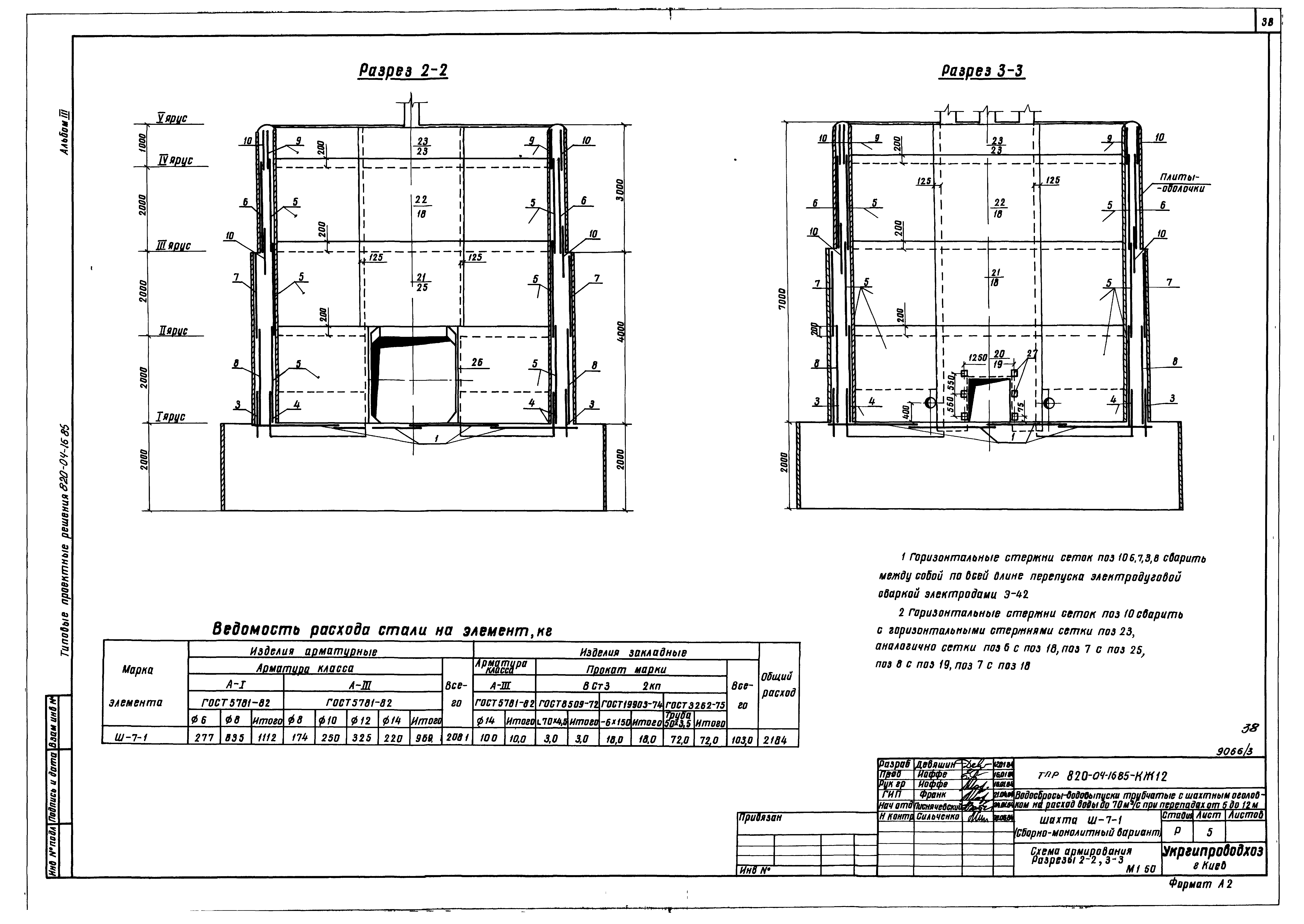
Шахта Ш-7-1 (сборно-монолитный вариант)
   Общие данные
   План. Разрезы 1-1, 4-4
   Разрезы 2-2, 3-3
   Схема армирования. План. Разрезы 1-1, 4-4, 5-5
   Схема армирования. Разрезы 2-2, 3-3
   Сетка арматурная С (С1, С2, С12, С15)
   Сетка арматурная С (С16, С18, С21)
   Сетка арматурная С (С11, С19, С20)
   Сетка арматурная С (С22, С26)
   Сетка арматурная С (С3, С10)
   Изделие закладное МН1
   Изделие закладное МН2
   Ведомости потребности в материалах
Шахта Ш-8-1 (сборно-монолитный вариант)
   Общие данные
   План. Разрез 1-1
   Разрезы 2-2 - 4-4
   Схема армирования. План. Разрезы 2-2, 4-4
   Схема армирования. Разрезы 1-1, 3-3
   Сетка арматурная С (С11, С21, С22)
   Сетка арматурная С (С1, С2, С14, С19)
   Сетка арматурная С (С12, С13, С15, С20, С23, С24)
   Сетка арматурная С (С16, С18, С25)
   Сетка арматурная С (С3, С10, С26)
   Изделие закладное МН1
   Изделие закладное МН2
   Ведомости потребности в материалах
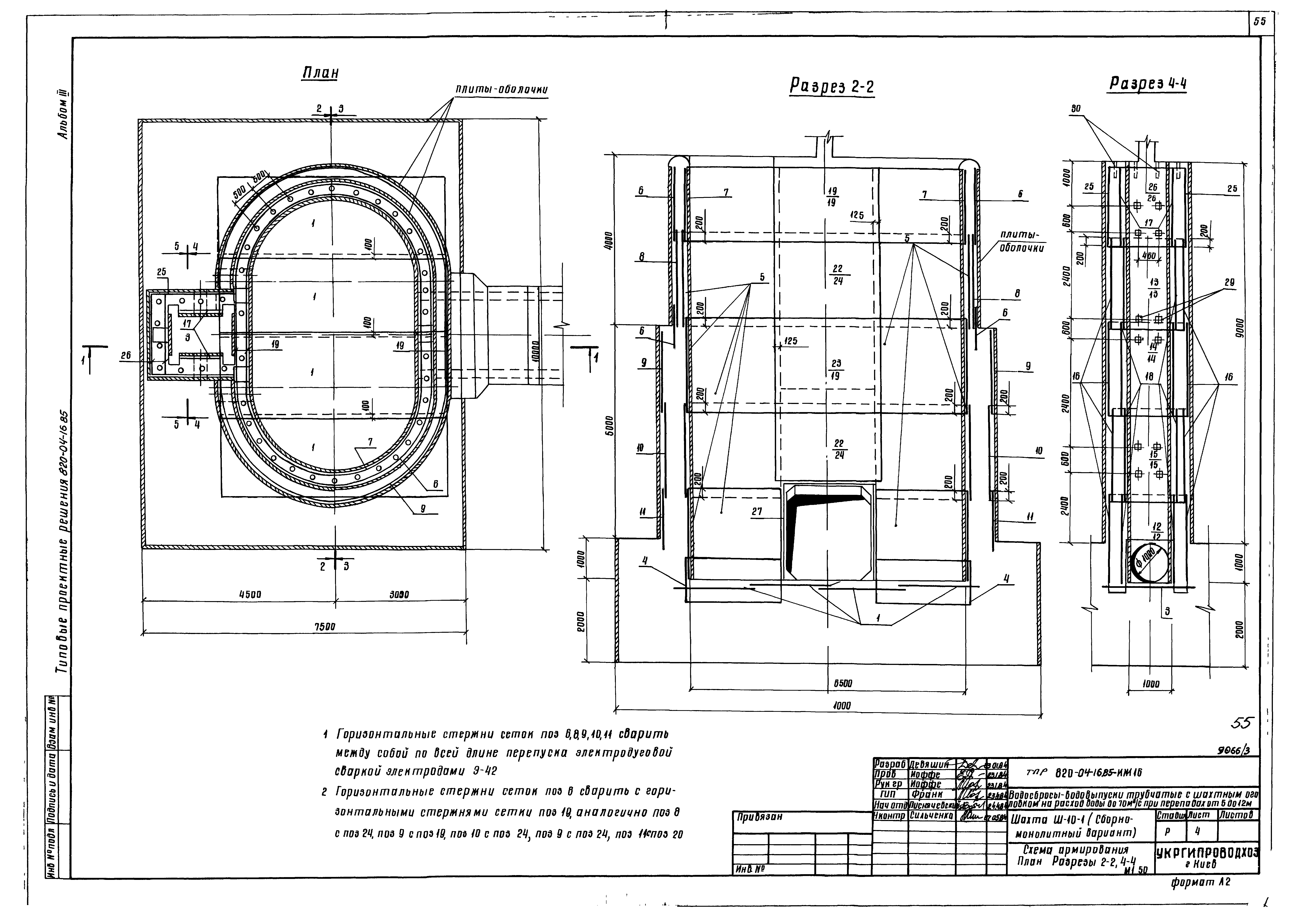
Шахта Ш-10-1 (сборно-монолитный вариант)
   Общие данные
   План. Разрезы 2-2, 4-4
   Разрезы 1-1, 3-3
   Схема армирования. План. Разрезы 2-2, 4-4
   Схема армирования. Разрезы 1-1, 3-3, 5-5
   Спецификация к схеме армирования сборно-монолитной шахты Ш-10-1
   Сетка арматурная С (С1, С3, С11, С17)
   Сетка арматурная С (С4…С11)
   Сетка арматурная С (С12, С20, С21)
   Сетка арматурная С (С18, С19, С22, С27)
   Изделие закладное МН1
   Изделие закладное МН2
   Ведомости потребности в материалах
Шахта Ш-12-1 (сборно-монолитный вариант)
   Общие данные
   План. Разрезы 2-2, 4-4
   Разрезы 1-1, 3-3
   Схема армирования. План. Разрезы 2-2, 4-4
   Схема армирования. Разрезы 1-1, 3-3, 5-5
   Спецификация к схеме армирования сборно-монолитной шахты Ш-12-1
   Сетка арматурная С (С1, С3, С14, С19)
   Сетка арматурная С (С4, С12, С30)
   Сетка арматурная С (С13, С22, С23)
   Сетка арматурная С (С20, С21, С24, С29)
   Изделие закладное МН1
   Изделие закладное МН2
   Ведомости потребности в материалах
Разработан: Укргипроводхоз Минводхоза СССР
Утверждён:14.01.1985 Минводхоз СССР (USSR Minvodkhoz 608)
Издан: ЦИТП Госстроя СССР (CITP, Gosstroy (USSR) 1988 г. )
Расположен в:Техническая документация Строительство Справочные документы Типовые строительные конструкции, изделия и узлы Общероссийский строительный каталог Промышленные предприятия, здания и сооружения Здания и сооружения санитарно-технические Водоснабжение Системы и сооружения мелиоративные Каналы и сооружения на каналах Плотины и сооружения водосбросные
Типовые проектные решения 820-04-16.85Типовые проектные решения 820-04-16.85Типовые проектные решения 820-04-16.85Типовые проектные решения 820-04-16.85Типовые проектные решения 820-04-16.85Типовые проектные решения 820-04-16.85Типовые проектные решения 820-04-16.85Типовые проектные решения 820-04-16.85Типовые проектные решения 820-04-16.85Типовые проектные решения 820-04-16.85Типовые проектные решения 820-04-16.85Типовые проектные решения 820-04-16.85Типовые проектные решения 820-04-16.85Типовые проектные решения 820-04-16.85Типовые проектные решения 820-04-16.85Типовые проектные решения 820-04-16.85Типовые проектные решения 820-04-16.85Типовые проектные решения 820-04-16.85Типовые проектные решения 820-04-16.85Типовые проектные решения 820-04-16.85Типовые проектные решения 820-04-16.85Типовые проектные решения 820-04-16.85Типовые проектные решения 820-04-16.85Типовые проектные решения 820-04-16.85Типовые проектные решения 820-04-16.85Типовые проектные решения 820-04-16.85Типовые проектные решения 820-04-16.85Типовые проектные решения 820-04-16.85Типовые проектные решения 820-04-16.85Типовые проектные решения 820-04-16.85Типовые проектные решения 820-04-16.85Типовые проектные решения 820-04-16.85Типовые проектные решения 820-04-16.85Типовые проектные решения 820-04-16.85Типовые проектные решения 820-04-16.85Типовые проектные решения 820-04-16.85Типовые проектные решения 820-04-16.85Типовые проектные решения 820-04-16.85Типовые проектные решения 820-04-16.85Типовые проектные решения 820-04-16.85Типовые проектные решения 820-04-16.85Типовые проектные решения 820-04-16.85Типовые проектные решения 820-04-16.85Типовые проектные решения 820-04-16.85Типовые проектные решения 820-04-16.85Типовые проектные решения 820-04-16.85Типовые проектные решения 820-04-16.85Типовые проектные решения 820-04-16.85Типовые проектные решения 820-04-16.85Типовые проектные решения 820-04-16.85Типовые проектные решения 820-04-16.85Типовые проектные решения 820-04-16.85Типовые проектные решения 820-04-16.85Типовые проектные решения 820-04-16.85Типовые проектные решения 820-04-16.85Типовые проектные решения 820-04-16.85Типовые проектные решения 820-04-16.85Типовые проектные решения 820-04-16.85Типовые проектные решения 820-04-16.85Типовые проектные решения 820-04-16.85Типовые проектные решения 820-04-16.85Типовые проектные решения 820-04-16.85Типовые проектные решения 820-04-16.85Типовые проектные решения 820-04-16.85Типовые проектные решения 820-04-16.85Типовые проектные решения 820-04-16.85Типовые проектные решения 820-04-16.85Типовые проектные решения 820-04-16.85Типовые проектные решения 820-04-16.85Типовые проектные решения 820-04-16.85

© 2013 Ёшкин Кот :-) Карта сайта