Информационная система
«Ёшкин Кот»

Скачать базу одним архивом
Скачать обновления
История создания базы
Карта сайта

Скачать Типовой проект 411-2-170.86 Альбом III. Внутренние водопровод и канализация. Отопление и вентиляция

Дата актуализации: 10.08.2017

Типовой проект 411-2-170.86

Альбом III. Внутренние водопровод и канализация. Отопление и вентиляция

Обозначение: Типовой проект 411-2-170.86
Обозначение англ: 411-2-170.86
Статус:не определен законодательством
Название рус.:Альбом III. Внутренние водопровод и канализация. Отопление и вентиляция
Дата добавления в базу:01.10.2014
Дата актуализации:05.05.2017
Дата введения:25.07.1986
Оглавление:Внутренние водопровод и канализация
   Общие данные
   План на отм. 0.000 в осях 1 - 17; А - Г с системами В1, Р3, Р4, К1. Схема системы К1
   План на отм. 0.000 и 3.000 в осях 10 - 13; Г - Ж с системами В1, Т3, Т4, К1
   Схемы систем В1, Т3, Т4, Р4
Отопление и вентиляция
   Общие данные
   Производственная часть
      Отопление. План на отм. 0.000. Планы на отм. 3.300 между осями 1 - 3 и А - Б; 11 - 14 и В/1 - Д
      Теплоснабжение установок П1 - П8, У1 - У3. Планы на отм. 0.000 и 3.300 между осями 1 - 3 и А - Б; 11 - 14 и Г - В. Схемы систем теплоснабжения установок У1, У2, У4, П7, П8, П1 - П6, У3
      Вентиляция. Планы на отм. 0.000 и 3.300 между осями 1 - 3 и А - Б; 11 - 14 и Г - В
      Местные отсосы от технологического оборудования
      Схема системы отопления 1. Узлы 1 - 4
      Схема системы отопления 2. Узлы 1 - 16
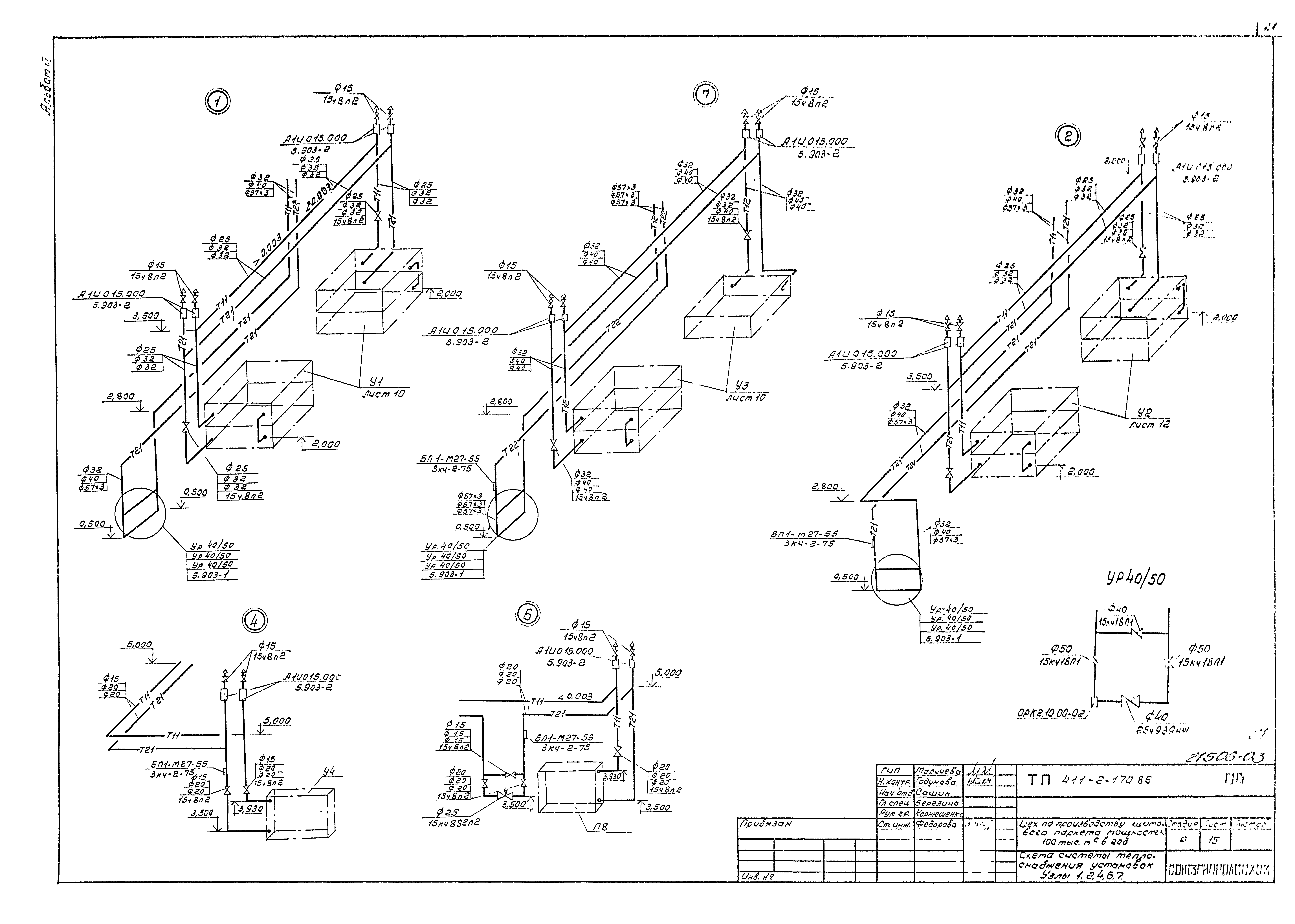
      Схема системы теплоснабжения установок. Узлы 1, 2, 4, 5, 7
      Схема системы теплоснабжения установок. Узлы 3, 5, 8, 9, 10 - 12
      Схема узла управления
      Схемы систем П1 - П8, В15 - В20, У4, ВЕ1 - ВЕ3
      Схемы систем В1 - В14
      Установки систем П1, П7, П8, У4, В10
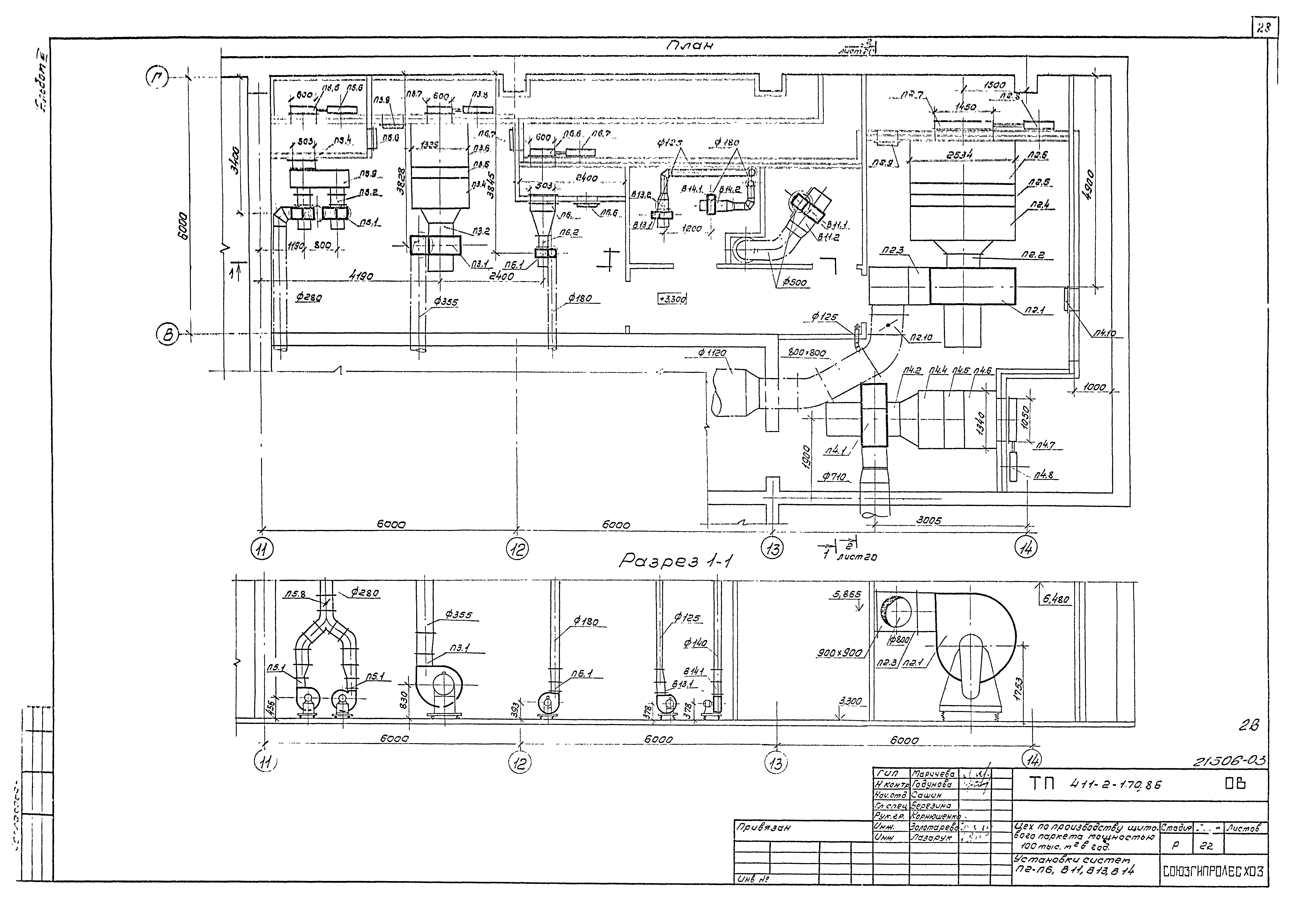
      Установки систем П2 - П6, В11, В13, В14
      Установки систем П2, П3, П4
      Установки систем П6 - П5, В11, В13, В14
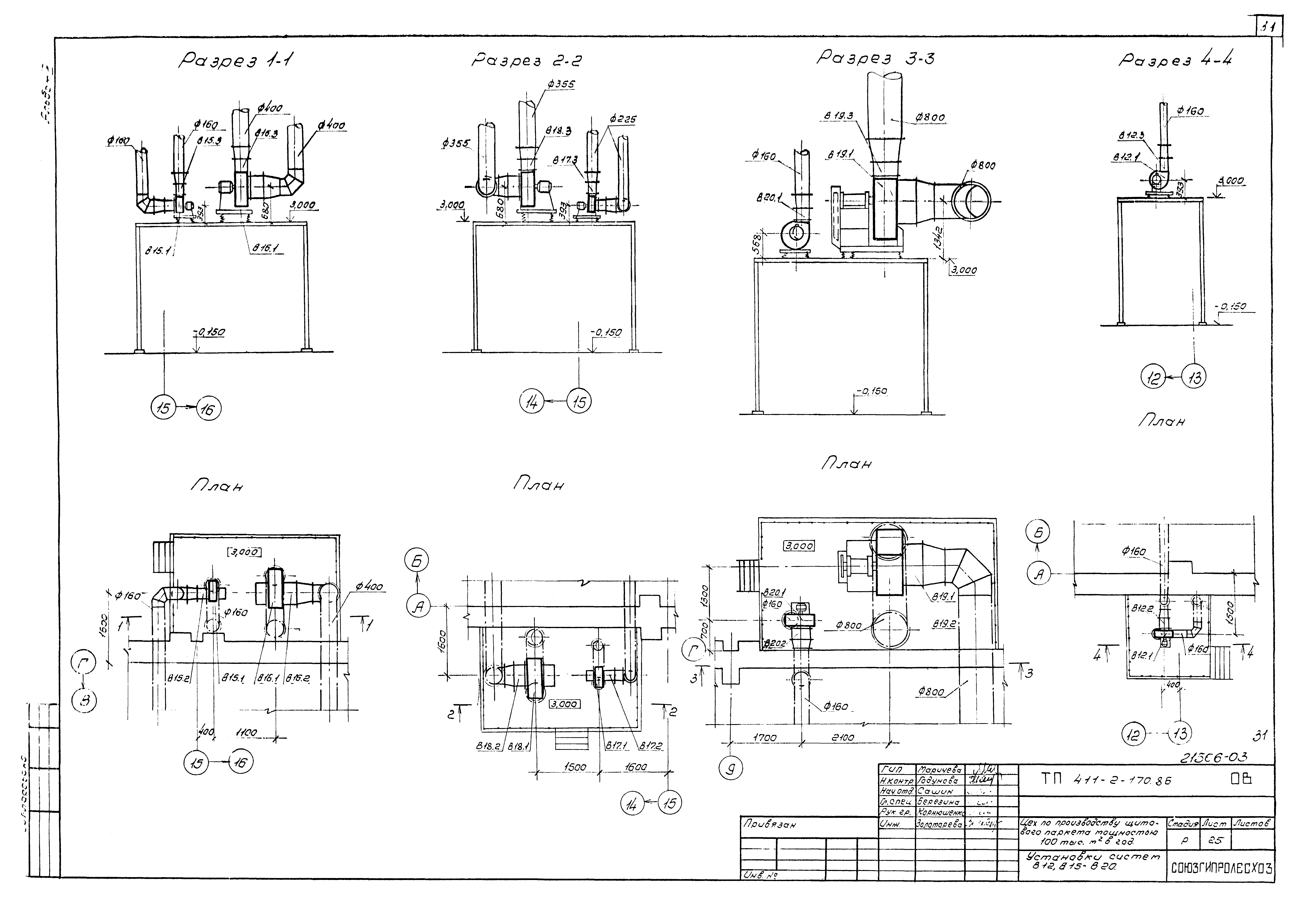
      Установки систем В12, В15 - В20
      Установки систем В1, В2, В3
      Установки систем В4, В5
   Вспомогательная часть
      Планы на отм. 0.000 и 3.000 между осями 10 - 13 и Г - Ж
      Схема системы отопления 3. Схема системы теплоснабжения установки П9. Узел 1. Схемы систем П9, В21 - В25
      Установки систем П9, В21 - В26
      Содержание альбома ОВН
      Уловитель крупных отходов
      Рамка
      Диффузор
      Коробка распределительная. Чертеж общего вида
      Воздуховод раздаточный
      Воздуховод асбестоцементный. Чертеж общего вида
      Унифицированный узел прохода 6 воздуховодов. Общий вид. Детали
      Зонт вытяжной. Чертеж общего вида
      Факельный выброс. Чертеж общего вида
      Конструкция тепловой изоляции трубопровода
Разработан: Союзгипролесхоз
Утверждён:18.12.1985 Гослесхоз СССР (USSR Gosleskhoz 23)
Расположен в:Техническая документация Строительство Справочные документы Типовые строительные конструкции, изделия и узлы Общероссийский строительный каталог Промышленные предприятия, здания и сооружения Предприятия, здания и сооружения промышленности и электроэнергетики Промышленность деревообрабатывающая Здания общего назначения
Заменяет собой:
  • Типовой проект 411-2-111
Типовой проект 411-2-170.86Типовой проект 411-2-170.86Типовой проект 411-2-170.86Типовой проект 411-2-170.86Типовой проект 411-2-170.86Типовой проект 411-2-170.86Типовой проект 411-2-170.86Типовой проект 411-2-170.86Типовой проект 411-2-170.86Типовой проект 411-2-170.86Типовой проект 411-2-170.86Типовой проект 411-2-170.86Типовой проект 411-2-170.86Типовой проект 411-2-170.86Типовой проект 411-2-170.86Типовой проект 411-2-170.86Типовой проект 411-2-170.86Типовой проект 411-2-170.86Типовой проект 411-2-170.86Типовой проект 411-2-170.86Типовой проект 411-2-170.86Типовой проект 411-2-170.86Типовой проект 411-2-170.86Типовой проект 411-2-170.86Типовой проект 411-2-170.86Типовой проект 411-2-170.86Типовой проект 411-2-170.86Типовой проект 411-2-170.86Типовой проект 411-2-170.86Типовой проект 411-2-170.86Типовой проект 411-2-170.86Типовой проект 411-2-170.86Типовой проект 411-2-170.86Типовой проект 411-2-170.86Типовой проект 411-2-170.86Типовой проект 411-2-170.86Типовой проект 411-2-170.86Типовой проект 411-2-170.86Типовой проект 411-2-170.86Типовой проект 411-2-170.86Типовой проект 411-2-170.86Типовой проект 411-2-170.86Типовой проект 411-2-170.86Типовой проект 411-2-170.86Типовой проект 411-2-170.86

© 2013 Ёшкин Кот :-) Карта сайта