Скачать Типовой проект 411-2-170.86 Альбом II. Архитектурные решения. Конструкции железобетонные, металлические и деревянныеДата актуализации: 10.08.2017 Типовой проект 411-2-170.86
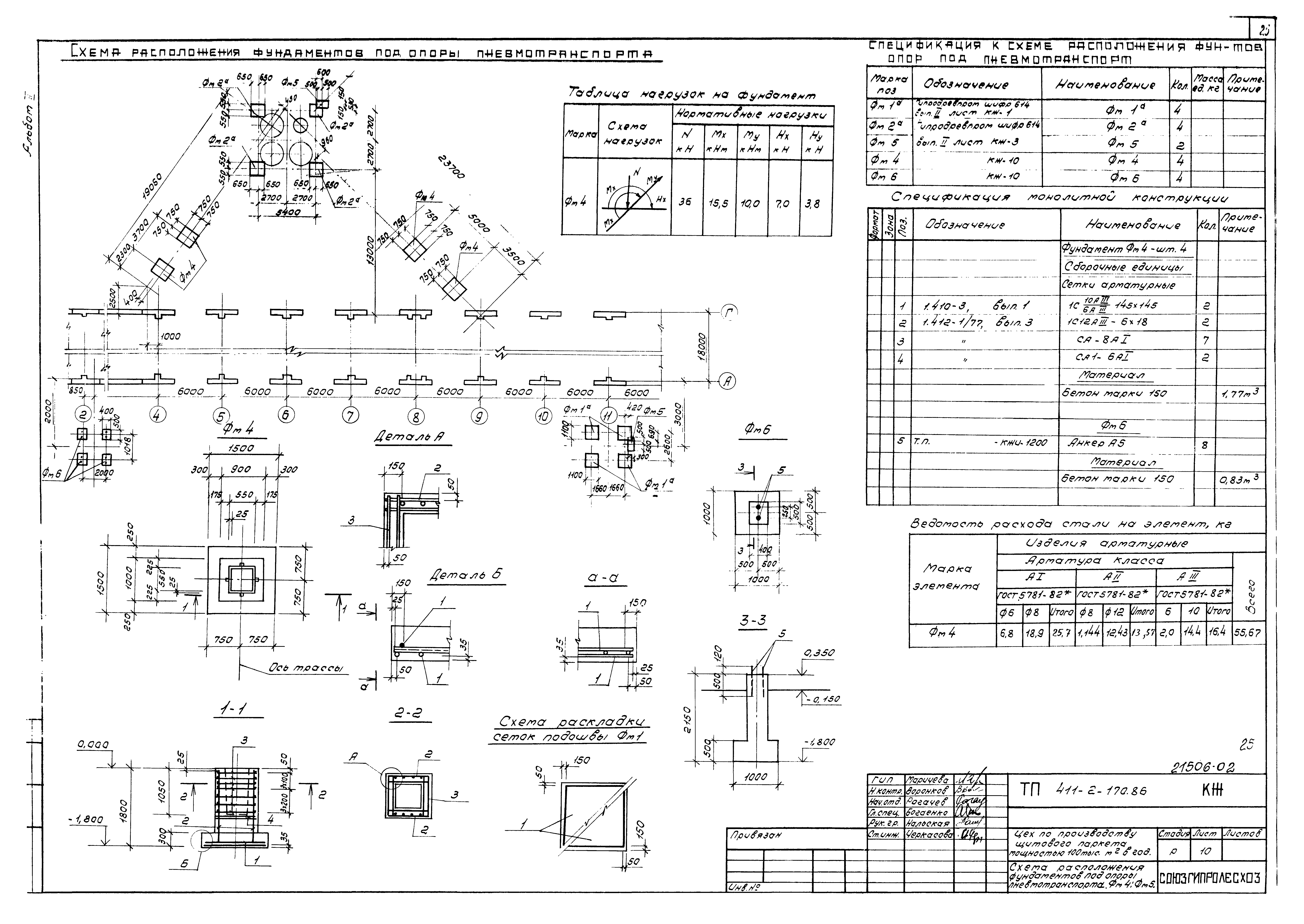
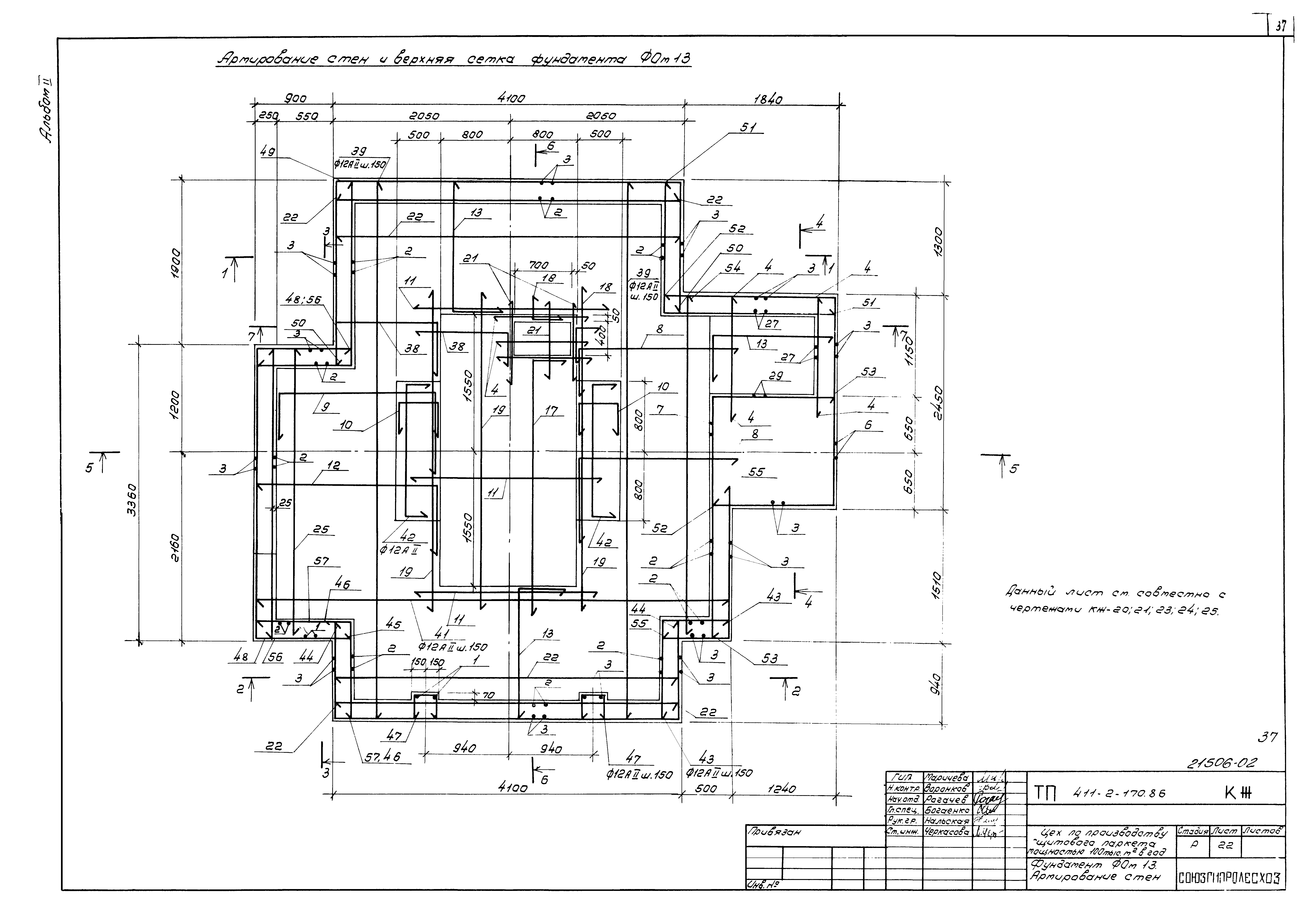
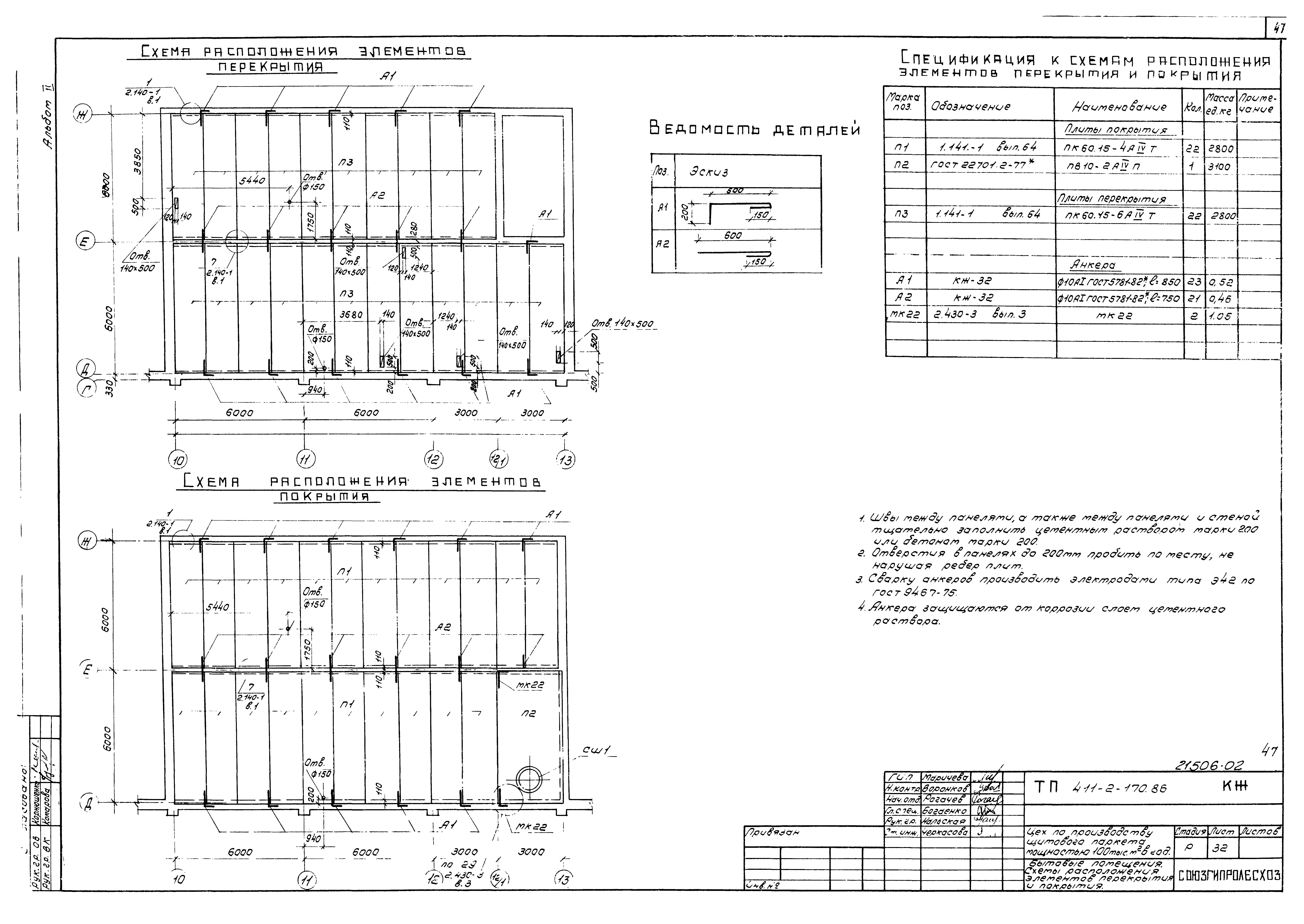
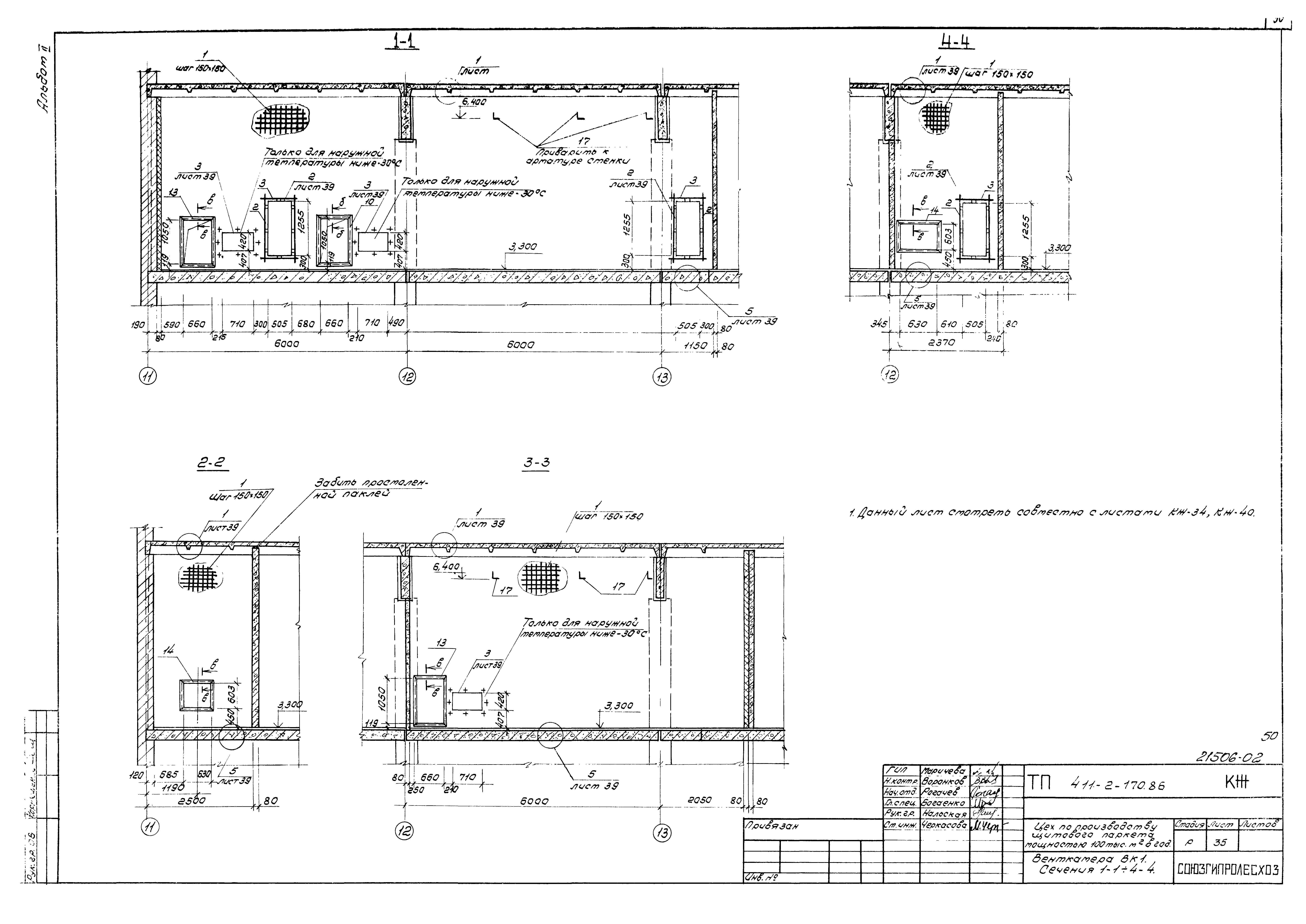
Альбом II. Архитектурные решения. Конструкции железобетонные, металлические и деревянныеОбозначение: | Типовой проект 411-2-170.86 | Обозначение англ: | 411-2-170.86 | Статус: | не определен законодательством | Название рус.: | Альбом II. Архитектурные решения. Конструкции железобетонные, металлические и деревянные | Дата добавления в базу: | 01.10.2014 | Дата актуализации: | 05.05.2017 | Дата введения: | 25.07.1986 | Оглавление: | Архитектурные решения Общие данные Планы на отм. 0.000; 3.300 Фрагменты плана 1, 2 Вспомогательные помещения. Планы на отм. 0.000 и 3.300 Разрезы 1-1, 2-2, 3-3, 4-4 Фасады Детали План кровли. Планы полов на отм. 0.000 и 3.300. Экспликация полов Планы расположения отверстий, ниш и сборных перегородок на отм. 0.000 и 3.000 Ведомость перемычек. Спецификация перемычек Ведомость перемычек. Спецификация перемычек для н. в минус 20, минус 40 градусов Цельсия Спецификации. Ведомость расположения элементов заполнения оконных проемов и жалюзийных решеток Конструкции железобетонные Общие данные Схема расположения фундаментов и фундаментных балок Сечения 1-1 - 9-9 Узлы 1 - 4 Фундаменты Фм1, Фм2, Фм3 Бытовые помещения. Схема расположения фундаментов. Сечения 1-1 - 6-6 Бытовые помещения. Схема расположения элементов сборных фундаментов (вариант) Бытовые помещения. Раскладка блоков по осям Е, Ж, 10, 13, 12/I, 12, А-А (вариант) Схема расположения фундаментов под опоры пневмотранспорта Схема расположения Опор пневмотранспорта Схема расположения фундаментов под ленточный транспортер. Фундаменты Фм5, Фм6 Схема расположения элементов фундаментов под оборудование в осях 1 - 9 Схема расположения элементов фундаментов под оборудование в осях 9 - 17 Схема элементов подпольных каналов в бытовых помещениях. Схема расположения фундаментов под оборудование в траншее Т1 Сечения 1-1 - 9-9 Фундаменты ФОм1 - ФОм6 Фундаменты ФОм7 - ФОм9 Фундаменты ФОм10 - ФОм12 Фундамент ФОм13 под пресс. Опалубка Фундамент ФОм13. Армирование подошвы фундамента Фундамент ФОм13. Армирование стен Фундамент ФОм13. Разрезы 1-1 - 4-4 Фундамент ФОм13. Разрезы 5-5 - 6-6 Фундамент ФОм13. Разрез 7-7. Спецификация Фундаменты ФОм14 - ФОм16 Фундаменты ФОм17 - ФОм21 Фундаменты ФОм22 - ФОм24 Отстойник для клея Схема расположения элементов покрытия и перекрытия Разрезы 1-1, 2-2 Бытовые помещения. Схема расположения элементов покрытия и перекрытия Схема расположения элементов лестницы в осях "Е" - "Ж" Венткамера Вк1 Венткамера Вк1. Сечения 1-1 - 4-4 Венткамера Вк1. Сечения 5-5 - 8-8 Венткамера Вк2, Вк3. Сечения 1-1, 2-2 Венткамера Вк2, Вк3. Сечения 3-3 - 7-7 Узлы 1 - 5 Спецификация элементов венткамер Вк1, Вк2, Вк3 Схема расположения подвесок воздуховодов Конструкции металлические Общие данные Схема изготовления съемных щитов и балок перекрытия траншеи Схемы расположения балок и щитов перекрытия фундамента ФОм13 Разрезы 8-8, 9-9. Узлы 1 - 8 Схемы расположения балок монорельса по оси 2 и между осями 7 - 10 Схемы расположения балок монорельса между осями 11 - 12 Узлы 1 - 5 Схемы расположения элементов площадок П1 и П2 Схемы расположения элементов площадки П3 и элементов ограждения площадки П4 Схемы расположения элементов площадок П5 и П6 и элементов лестницы Л1 Схемы расположения элементов площадок П7 и П8 Узлы 1, 2, 3 Схема расположения опоры под циклон СИОТ-2 Опора под циклон СИОТ-2 Опора под циклон СИОТ-2. Узлы Схема расположения металлических опор под трубопроводы пневмотранспорта Разрезы 1-1, 2-2 Траверсы Т1 и Т2. Опоры металлические ОМ1 - ОМ8 Конструкции деревянные Общие данные Монтажная схема эстакады. Разрезы 1-1 - 3-3. Узлы 1 - 4 Конструкции опоры под бункер. План балок площадки на отм. 5.850 Деревянный бункер. Узлы А - Г Короб ленточного транспортера | Разработан: | Союзгипролесхоз
| Утверждён: | 18.12.1985 Гослесхоз СССР (USSR Gosleskhoz 23)
| Расположен в: |
| Заменяет собой: | |
                                                                                  
|