Информационная система
«Ёшкин Кот»

Скачать базу одним архивом
Скачать обновления
История создания базы
Карта сайта

Скачать Типовой проект 411-2-170.86 Альбом I. Общая пояснительная записка. Технология производства

Дата актуализации: 10.08.2017

Типовой проект 411-2-170.86

Альбом I. Общая пояснительная записка. Технология производства

Обозначение: Типовой проект 411-2-170.86
Обозначение англ: 411-2-170.86
Статус:не определен законодательством
Название рус.:Альбом I. Общая пояснительная записка. Технология производства
Дата добавления в базу:01.10.2014
Дата актуализации:05.05.2017
Дата введения:25.07.1986
Оглавление:Содержание альбома
Пояснительная записка
Технология производства
   Общие данные
   Описание технологического процесса
   План расположения технологического оборудования в осях 1 - 9
   План расположения технологического оборудования в осях 9 - 17
   Расположение технологического оборудования. Разрез 1-1, 2-2
   Перечень технологического оборудования
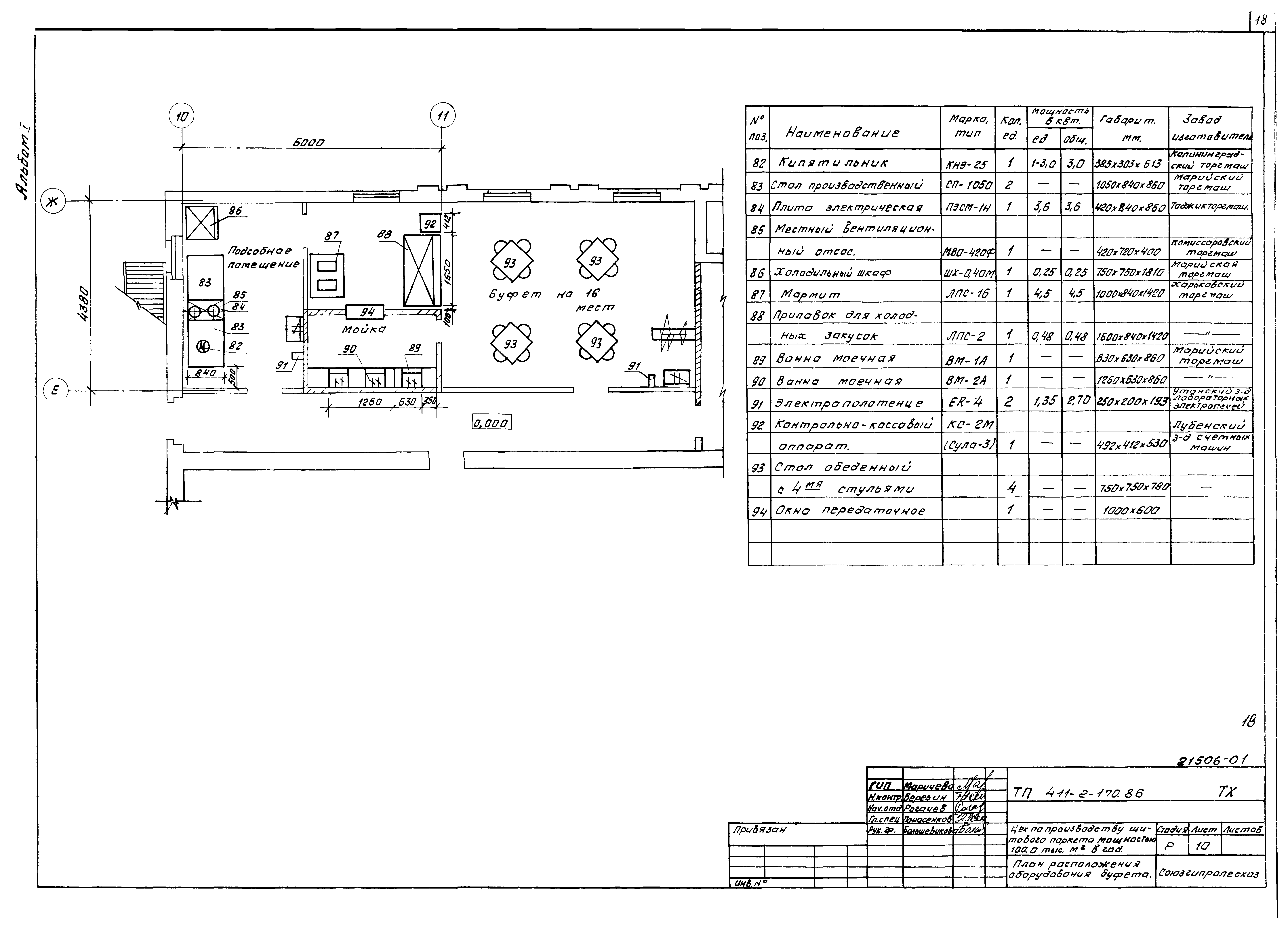
   План расположения оборудования буфета
   Разводка сжатого воздуха. План. Спецификация потребителей
   Схема разводки сжатого воздуха. Узлы и спецификация
   Околопрессовая механизация. Монтажный чертеж. План фундаментных болтов
   Конвейер ленточный 5040-60 для отходов. Монтажный чертеж
   Конвейер ленточный 5040-60 для отходов. Сечения. Спецификация
   Конвейер ленточный 5040-60 для отходов. Сечения
   Механизмы закрывания бункера для кусковых отходов
   Технологическое пароснабжение. План на отм. 0.000. Схема. Узел управления №2
Разработан: Союзгипролесхоз
Утверждён:18.12.1985 Гослесхоз СССР (USSR Gosleskhoz 23)
Расположен в:Техническая документация Строительство Справочные документы Типовые строительные конструкции, изделия и узлы Общероссийский строительный каталог Промышленные предприятия, здания и сооружения Предприятия, здания и сооружения промышленности и электроэнергетики Промышленность деревообрабатывающая Здания общего назначения
Заменяет собой:
  • Типовой проект 411-2-111
Типовой проект 411-2-170.86Типовой проект 411-2-170.86Типовой проект 411-2-170.86Типовой проект 411-2-170.86Типовой проект 411-2-170.86Типовой проект 411-2-170.86Типовой проект 411-2-170.86Типовой проект 411-2-170.86Типовой проект 411-2-170.86Типовой проект 411-2-170.86Типовой проект 411-2-170.86Типовой проект 411-2-170.86Типовой проект 411-2-170.86Типовой проект 411-2-170.86Типовой проект 411-2-170.86Типовой проект 411-2-170.86Типовой проект 411-2-170.86Типовой проект 411-2-170.86Типовой проект 411-2-170.86Типовой проект 411-2-170.86Типовой проект 411-2-170.86Типовой проект 411-2-170.86Типовой проект 411-2-170.86Типовой проект 411-2-170.86Типовой проект 411-2-170.86Типовой проект 411-2-170.86Типовой проект 411-2-170.86Типовой проект 411-2-170.86

© 2013 Ёшкин Кот :-) Карта сайта