Информационная система
«Ёшкин Кот»

Скачать базу одним архивом
Скачать обновления
История создания базы
Карта сайта

Скачать Типовой проект 503-4-76.92 Альбом 2. Силовое электрооборудование. Электрическое освещение. Связь и сигнализация. Автоматизация санитарно-технических систем

Дата актуализации: 10.08.2017

Типовой проект 503-4-76.92

Альбом 2. Силовое электрооборудование. Электрическое освещение. Связь и сигнализация. Автоматизация санитарно-технических систем

Обозначение: Типовой проект 503-4-76.92
Обозначение англ: 503-4-76.92
Статус:не определен законодательством
Название рус.:Альбом 2. Силовое электрооборудование. Электрическое освещение. Связь и сигнализация. Автоматизация санитарно-технических систем
Дата добавления в базу:01.10.2014
Дата актуализации:05.05.2017
Дата введения:15.10.1992
Оглавление:Силовое электрооборудование
   Общие данные
   План расположения электрооборудования и электросетей на отм. 0.000 и 3.600 (производственный корпус)
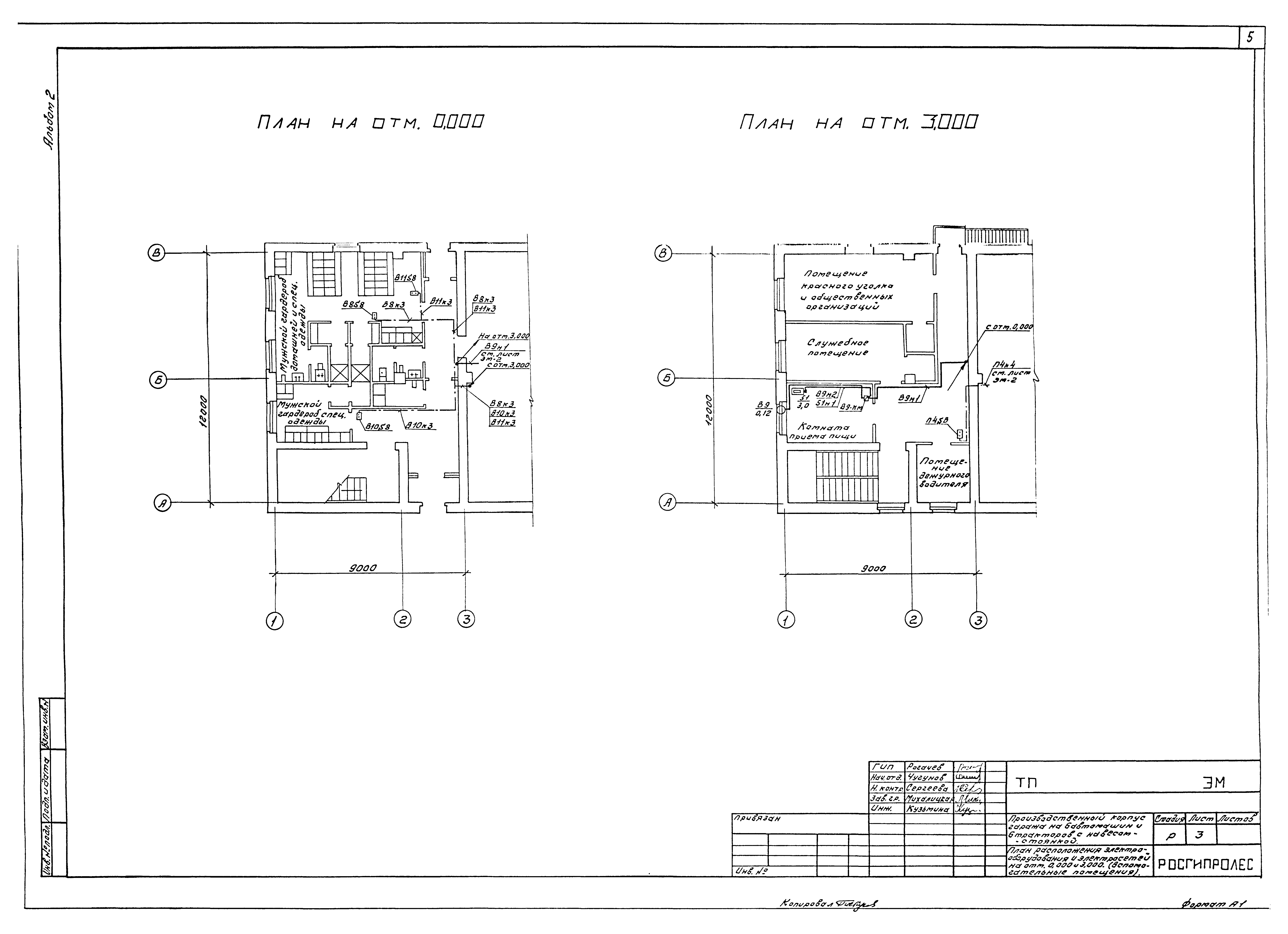
   План расположения электрооборудования и электросетей на отм. 0.000 и 3.600 (вспомогательные помещения)
   Принципиальная схема питающей и распределительной сетей
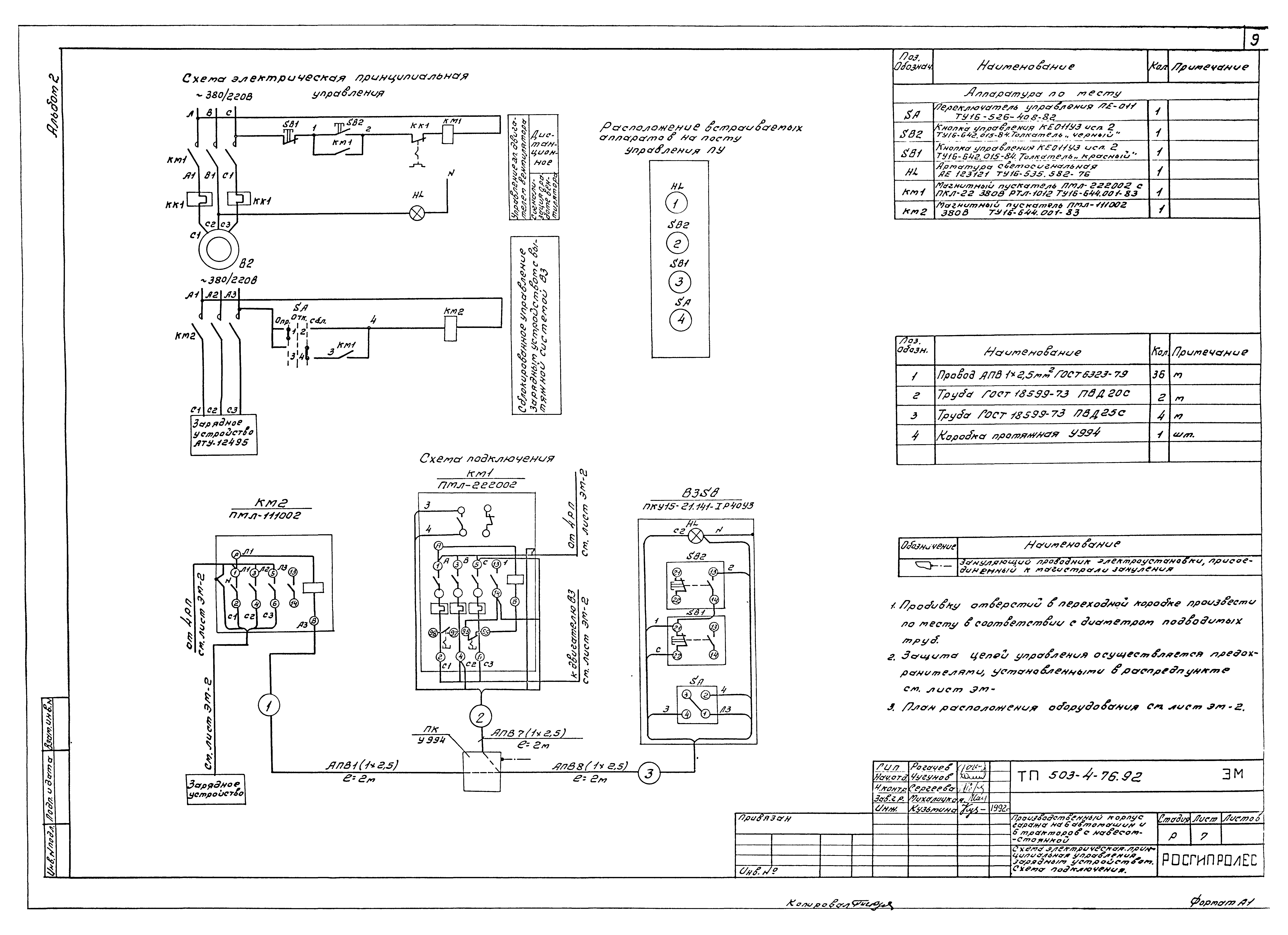
   Схема электрическая принципиальная управления зарядным устройством. Схема подключения
   Отключение вентсистем при пожаре. Схема электрическая принципиальная управления. Схема подключения
Электрическое освещение
   Общие данные
   План расположения электрооборудования и прокладки электрических сетей
   Принципиальная схема питающей сети
   Конструкция для крепления светильников ЛСПО2-2х80
Связь и сигнализация
   Общие данные
   План расположения оборудования и прокладка телефонной и радиотрансляционной сети
   Планы расположения оборудования и прокладки сетей пожарной сигнализации
   Пожарная сигнализация. Функциональная схема, схемы подключений
   План расположения оборудования и прокладки сетей охранной сигнализации
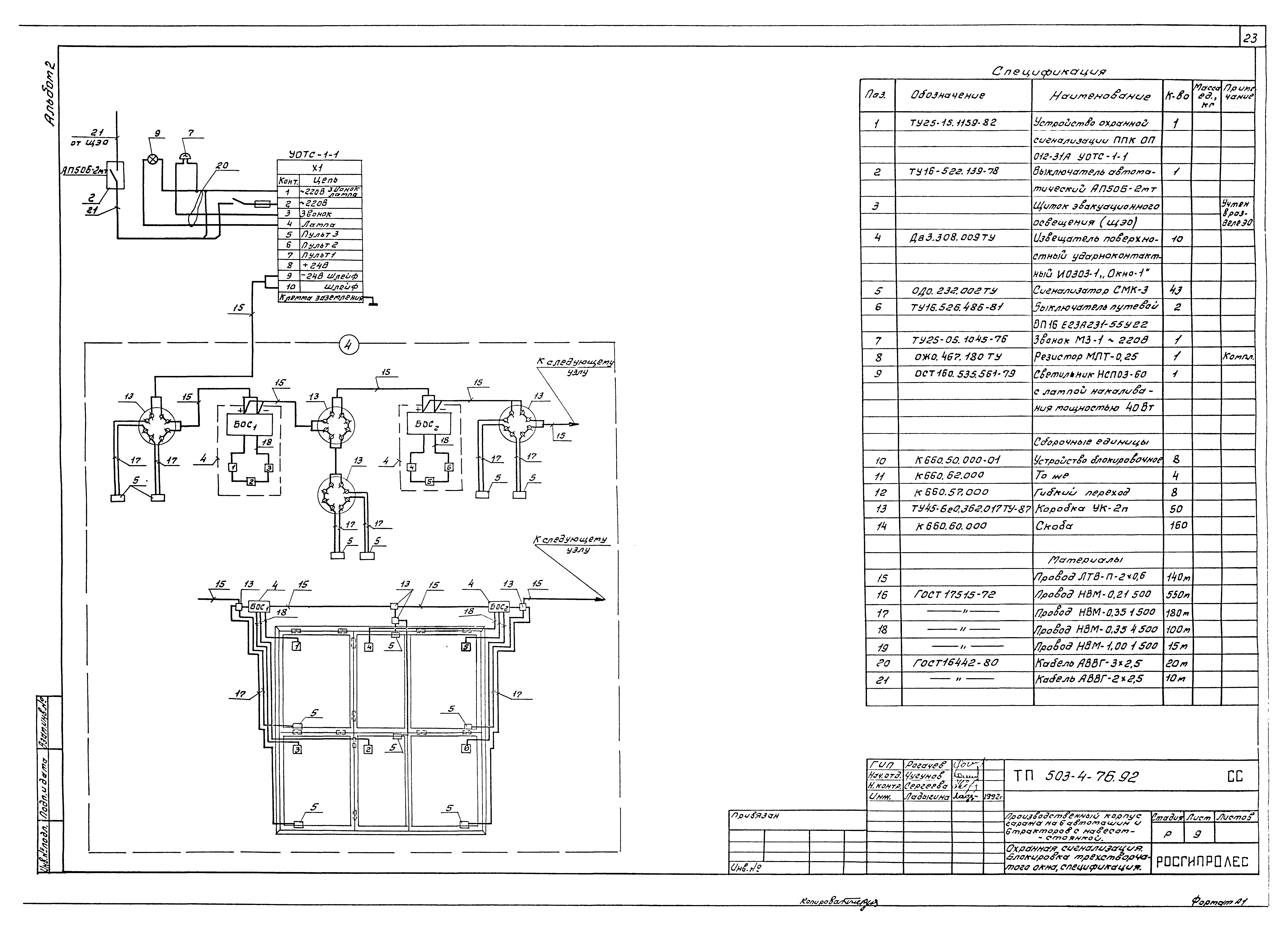
   Охранная сигнализация. Блокировка трехстворного окна. Спецификация
Автоматизация санитарно-технических систем
   Общие данные
   Приточная система П1 (П2, П3). Схема автоматизации
   Приточная система П1 (П2, П3). Схема электрическая принципиальная управления
   Приточная система П1 (П2, П3). Схема электрическая принципиальная регулирования
   Приточная система П1 (П2, П3). Схема внешних проводок
   Приточная система П4. Схема автоматизации
   Приточная система П4. Схема электрическая принципиальная управления
   Приточная система П4. Схема внешних проводок
   Узел управления теплового пункта. Схема автоматизации. Схема трубных проводок
   Приточные системы П1 - П4. План расположения
Чертежи задания заводу-изготовителю
   Спецификация щитов
   Приточная система П1 (П2, П3). Шкаф управления и регулирования ШУР1 (ШУР2, ШУР3). Общий вид
   Приточная система П1 (П2, П3). Шкаф управления и регулирования ШУР1 (ШУР2, ШУР3). Таблица соединений
   Приточная система П1 (П2, П3). Шкаф управления и регулирования ШУР1 (ШУР2, ШУР3). Таблица подключения
   Приточная система П4. Шкаф управления П4. Чертеж общего вида
   Приточная система П4. Шкаф управления П4. Технические данные аппаратов
   Приточная система П4. Шкаф управления П4. Перечень надписей
   Приточная система П4. Шкаф управления П4. Схема электрическая соединений
Разработан: Росгипролес
Утверждён:15.10.1992 Росгипролес (59)
Расположен в:Техническая документация Строительство Справочные документы Типовые строительные конструкции, изделия и узлы Общероссийский строительный каталог Промышленные предприятия, здания и сооружения Предприятия, здания и сооружения транспорта Транспорт автомобильный Предприятия автотранспортные, гаражи и стоянки для легковых автомобилей, автобусов и мотоциклов
Типовой проект 503-4-76.92Типовой проект 503-4-76.92Типовой проект 503-4-76.92Типовой проект 503-4-76.92Типовой проект 503-4-76.92Типовой проект 503-4-76.92Типовой проект 503-4-76.92Типовой проект 503-4-76.92Типовой проект 503-4-76.92Типовой проект 503-4-76.92Типовой проект 503-4-76.92Типовой проект 503-4-76.92Типовой проект 503-4-76.92Типовой проект 503-4-76.92Типовой проект 503-4-76.92Типовой проект 503-4-76.92Типовой проект 503-4-76.92Типовой проект 503-4-76.92Типовой проект 503-4-76.92Типовой проект 503-4-76.92Типовой проект 503-4-76.92Типовой проект 503-4-76.92Типовой проект 503-4-76.92Типовой проект 503-4-76.92Типовой проект 503-4-76.92Типовой проект 503-4-76.92Типовой проект 503-4-76.92Типовой проект 503-4-76.92Типовой проект 503-4-76.92Типовой проект 503-4-76.92Типовой проект 503-4-76.92Типовой проект 503-4-76.92Типовой проект 503-4-76.92Типовой проект 503-4-76.92Типовой проект 503-4-76.92Типовой проект 503-4-76.92Типовой проект 503-4-76.92Типовой проект 503-4-76.92Типовой проект 503-4-76.92Типовой проект 503-4-76.92Типовой проект 503-4-76.92

© 2013 Ёшкин Кот :-) Карта сайта