Информационная система
«Ёшкин Кот»

Скачать базу одним архивом
Скачать обновления
История создания базы
Карта сайта

Скачать Типовой проект 503-4-76.92 Альбом 1. Пояснительная записка. Технология производства. Архитектурные решения. Конструкции железобетонные. Конструкции металлические. Внутренние водопровод и канализация. Отопление и вентиляция

Дата актуализации: 10.08.2017

Типовой проект 503-4-76.92

Альбом 1. Пояснительная записка. Технология производства. Архитектурные решения. Конструкции железобетонные. Конструкции металлические. Внутренние водопровод и канализация. Отопление и вентиляция

Обозначение: Типовой проект 503-4-76.92
Обозначение англ: 503-4-76.92
Статус:не определен законодательством
Название рус.:Альбом 1. Пояснительная записка. Технология производства. Архитектурные решения. Конструкции железобетонные. Конструкции металлические. Внутренние водопровод и канализация. Отопление и вентиляция
Дата добавления в базу:01.10.2014
Дата актуализации:05.05.2017
Дата введения:15.10.1992
Оглавление:Содержание альбома
Пояснительная записка
Технология производства
   Общие данные
   Расположение технологического оборудования в осях 2 - 9
   Перечень технологического оборудования
Архитектурные решения
   Общие данные
   Планы на отм. 0.000 и 3.600
   Вспомогательные помещения. Планы на отм. 0.000 и 3.000
   Разрезы 1-1, 2-2, 3-3. Деталь козырька
   Детали планов и разрезов
   Фасады
   Фрагменты 1, 2, 3, 4
   Планы расположения отверстий и ниш на отм. 0.000; 3.000 и 3.600
   Планы полов и кровли. Экспликация полов
   Ведомость проемов ворот и дверей. Спецификация. Схемы
   Ведомость перемычек. Спецификация перемычек
   Ведомость перемычек. Спецификация перемычек для расчетной температуры минус 20 и минус 40 градусов Цельсия
Конструкции железобетонные
   Общие данные
   Схема расположения фундаментов и фундаментных балок для tн = минус 20 и минус 30 градусов Цельсия
   Схема расположения фундаментов и фундаментных балок для tн = минус 40 градусов Цельсия
   Сечения 1-1 - 8-8. Узел 1
   Узел 2, 3. Фундамент Фм8
   Фундаменты Фм1, Фм2
   Фундаменты Фм3, Фм4
   Фундаменты Фм5, Фм6, Фм7
   Схема расположения плит перекрытия каналов и приямка
   Схема расположения ремонтно-осмотровой канавы КС1
   Ремонтно-осмотровая канава КС1. Разрезы 1-1 - 4-4. Узлы 1 - 5
   Схема расположения колонн и балок покрытия
   Схема расположения плит покрытия. Разрезы 1-1 - 2-2
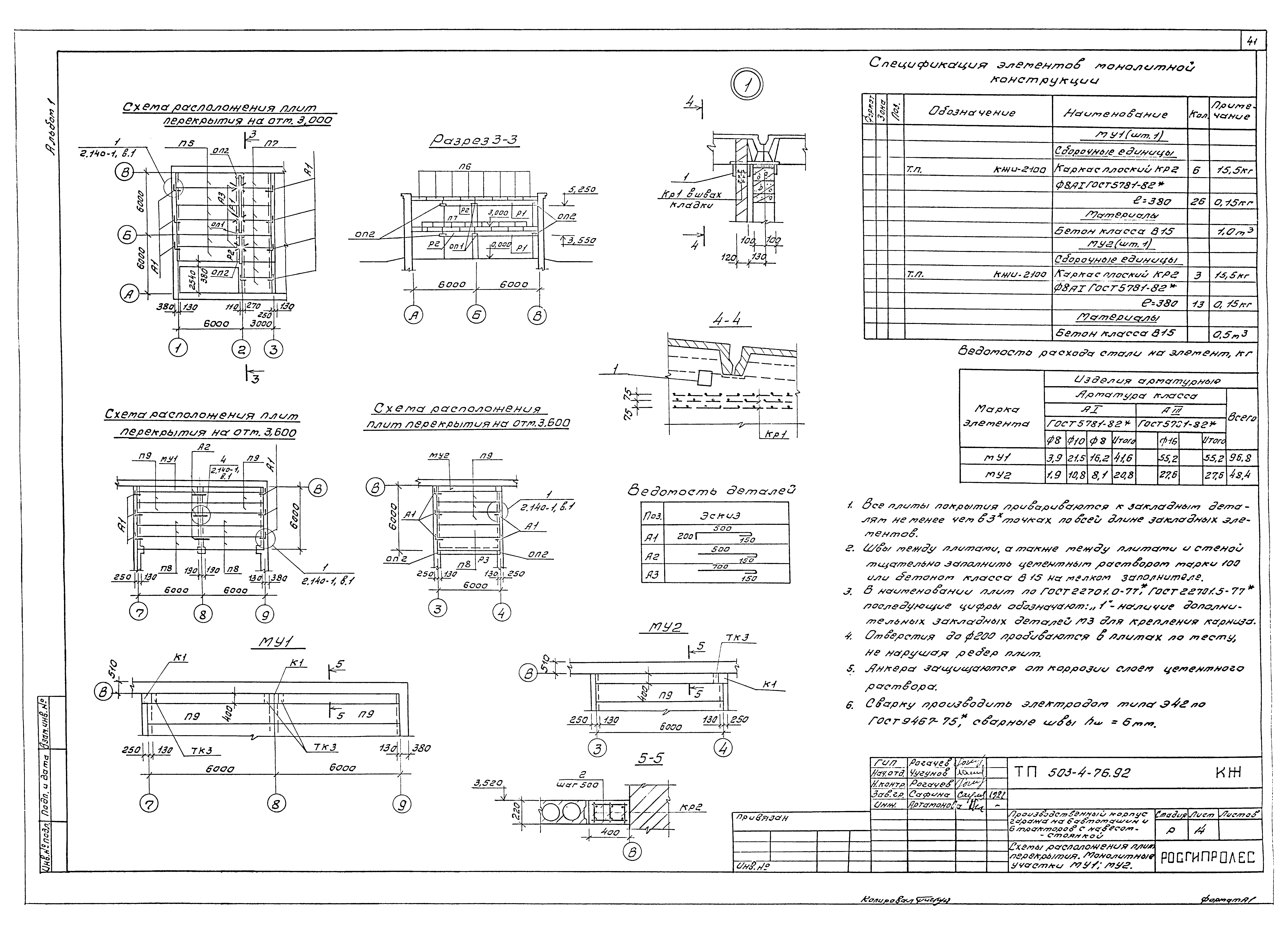
   Схема расположения плит перекрытия. Монолитные участки МУ1, МУ2
   Схема расположения элементов венткамер ВК1, ВК2
   Узлы 1 - 4
   Схема расположения элементов лестницы между осями 1 - 2
Конструкции металлические
   Общие данные
   Схема расположения путей подвесного крана
   Схема расположения монорельса. Узлы
   Схема расположения элементов лестницы ЛМ1. Стремянки
Внутренние водопровод и канализация
   Общие данные
   План в осях 3 - 9 на отм. 0.000 с системами В1, Т3, К3
   План в осях 1 - 3 на отм. 0.000 и 3.000 с системами В1, Т3, К1
   Схемы систем В1, Т3, К1, К3
Отопление и вентиляция
   Общие данные
   Отопление и теплоснабжение. План на отм. 0.000 между осями А - В и 3 - 9. Планы на отм. 3.600 между осями 3 - 4 и 7 - 9
   Вентиляция. План на отм. 0.000 между осями А - В и 3 - 9. Планы на отм. 3.600 между осями 3 - 4 и 7 - 9
   Узел управления
   Схема системы отопления
   Схема системы теплоснабжения установок П1 - П4. Узлы 1 - 4
   Схемы систем П1 - П3; В1 - В5; В7; ВЕ2 - ВЕ7
   Установки систем П1, П4, В8, В10, В11
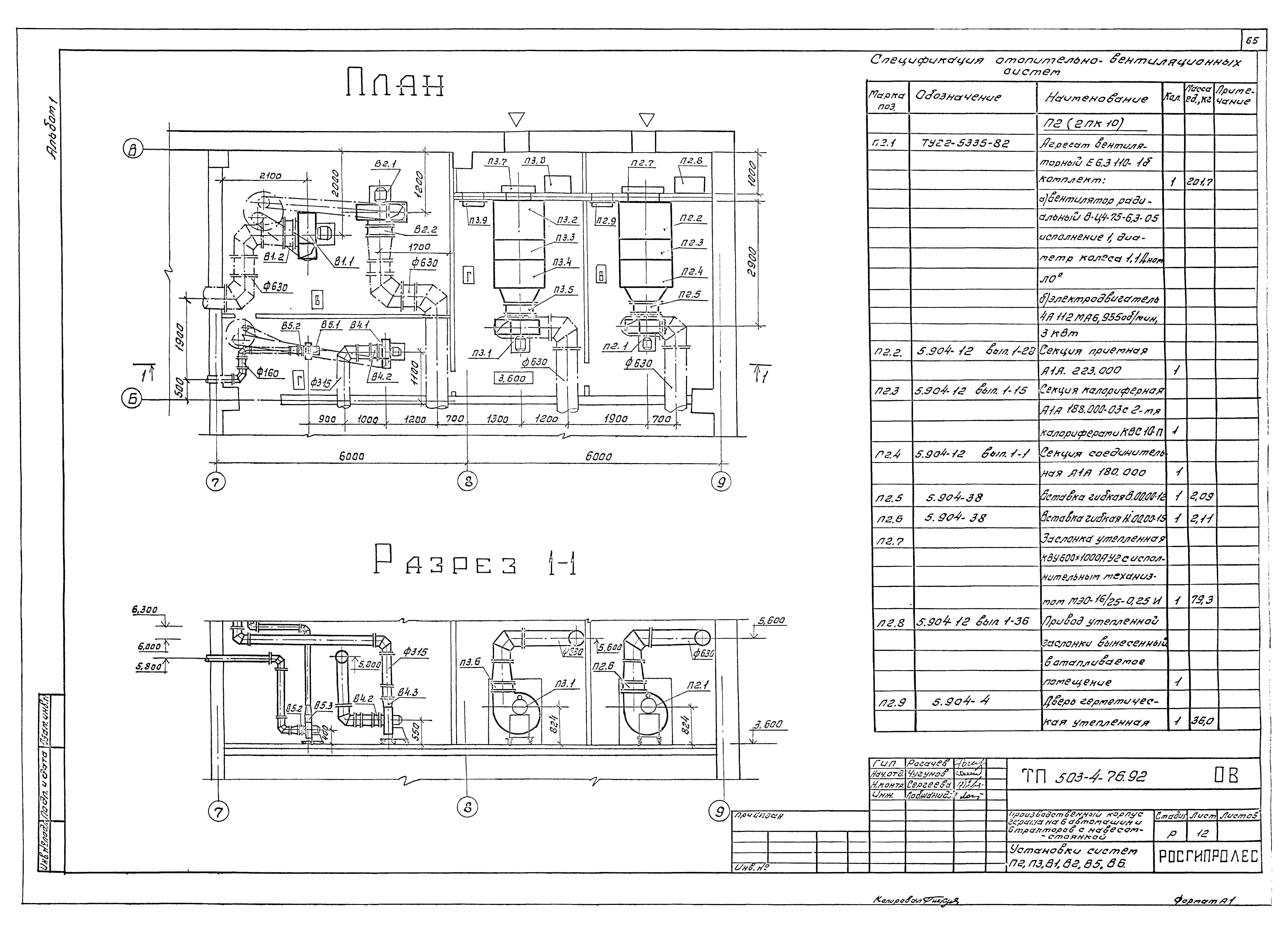
   Установки систем П2, П3, В1, В2, В5, В6
   Планы на отм. 0.000 и 3.000 между осями А - В и 1 - 3
   Схема системы отопления 2. Схемы систем П4, В8, В10, В11, ВЕ8
Чертежи общих видов нетиповых конструкций
   Шланговый отсос для удаления выхлопных газов двигателей
   Воздуховод асбестоцементный
Разработан: Росгипролес
Утверждён:15.10.1992 Росгипролес (59)
Расположен в:Техническая документация Строительство Справочные документы Типовые строительные конструкции, изделия и узлы Общероссийский строительный каталог Промышленные предприятия, здания и сооружения Предприятия, здания и сооружения транспорта Транспорт автомобильный Предприятия автотранспортные, гаражи и стоянки для легковых автомобилей, автобусов и мотоциклов
Типовой проект 503-4-76.92Типовой проект 503-4-76.92Типовой проект 503-4-76.92Типовой проект 503-4-76.92Типовой проект 503-4-76.92Типовой проект 503-4-76.92Типовой проект 503-4-76.92Типовой проект 503-4-76.92Типовой проект 503-4-76.92Типовой проект 503-4-76.92Типовой проект 503-4-76.92Типовой проект 503-4-76.92Типовой проект 503-4-76.92Типовой проект 503-4-76.92Типовой проект 503-4-76.92Типовой проект 503-4-76.92Типовой проект 503-4-76.92Типовой проект 503-4-76.92Типовой проект 503-4-76.92Типовой проект 503-4-76.92Типовой проект 503-4-76.92Типовой проект 503-4-76.92Типовой проект 503-4-76.92Типовой проект 503-4-76.92Типовой проект 503-4-76.92Типовой проект 503-4-76.92Типовой проект 503-4-76.92Типовой проект 503-4-76.92Типовой проект 503-4-76.92Типовой проект 503-4-76.92Типовой проект 503-4-76.92Типовой проект 503-4-76.92Типовой проект 503-4-76.92Типовой проект 503-4-76.92Типовой проект 503-4-76.92Типовой проект 503-4-76.92Типовой проект 503-4-76.92Типовой проект 503-4-76.92Типовой проект 503-4-76.92Типовой проект 503-4-76.92Типовой проект 503-4-76.92Типовой проект 503-4-76.92Типовой проект 503-4-76.92Типовой проект 503-4-76.92Типовой проект 503-4-76.92Типовой проект 503-4-76.92Типовой проект 503-4-76.92Типовой проект 503-4-76.92Типовой проект 503-4-76.92Типовой проект 503-4-76.92Типовой проект 503-4-76.92Типовой проект 503-4-76.92Типовой проект 503-4-76.92Типовой проект 503-4-76.92Типовой проект 503-4-76.92Типовой проект 503-4-76.92Типовой проект 503-4-76.92Типовой проект 503-4-76.92Типовой проект 503-4-76.92Типовой проект 503-4-76.92Типовой проект 503-4-76.92Типовой проект 503-4-76.92Типовой проект 503-4-76.92Типовой проект 503-4-76.92Типовой проект 503-4-76.92Типовой проект 503-4-76.92Типовой проект 503-4-76.92Типовой проект 503-4-76.92Типовой проект 503-4-76.92Типовой проект 503-4-76.92

© 2013 Ёшкин Кот :-) Карта сайта