Информационная система
«Ёшкин Кот»

Скачать базу одним архивом
Скачать обновления
История создания базы
Карта сайта

Скачать Типовой проект 3.501-30/75 Выпуск 6. Пролетное строение L = 88,0 - 87,52 м. Рабочие чертежи

Дата актуализации: 10.08.2017

Типовой проект 3.501-30/75

Выпуск 6. Пролетное строение L = 88,0 - 87,52 м. Рабочие чертежи

Обозначение: Типовой проект 3.501-30/75
Обозначение англ: 3.501-30/75
Статус:заменен
Название рус.:Выпуск 6. Пролетное строение L = 88,0 - 87,52 м. Рабочие чертежи
Дата добавления в базу:01.10.2014
Дата актуализации:05.05.2017
Дата введения:01.09.1988
Оглавление:Титульный лист
Состав проекта L = 88,0 - 87,52 м. Условные обозначения
Пояснительная записка L = 88,0 - 87,52 м
Паспорт пролетного строения L = 88,0 м
Паспорт пролетного строения L = 87,52 м
Главные фермы L = 88,0 м. Узел Н0
Главные фермы L = 87,52 м. Узел Н0
Главные фермы L = 88,0 - 87,52. Узел Н1
Главные фермы L = 88,0 - 87,52 м. Узел Н2
Главные фермы L = 88,0 - 87,52 м. Узел Н3
Главные фермы L = 88,0 - 87,52 м. Узел Н4
Главные фермы L = 88,0 м. Узел В1
Главные фермы L = 87,52 м. Узел В1
Главные фермы L = 88,0 - 87,52 м. Узел В2 и поперечные связи
Главные фермы L = 88,0 - 87,52 м. Узел В3
Главные фермы L = 88,0 - 87,52 м. Узел В4 и поперечные связи
Главные фермы L = 88,0 - 87,52 м. Конструкция стыков элементов решетки
Конструкция портального заполнения L = 88,0 - 87,52 м
Конструкция трубчатой распорки L = 88,0 м
Конструкция трубчатой распорки L = 87,52 м
Конструкция продольной балки L = 88,0 - 87,52 м, d = 11,0 м
Конструкция продольной балки L = 87,52 м, d = 10,76 м
Конструкция поперечных балок L = 88,0 - 87,52 м
Конструкция диафрагм в панели Н0 - Н1. L = 88,0 м
Конструкция диафрагм в панели Н1 - Н3. L = 88,0 - 87,52 м
Конструкция диафрагм в панели Н0 - Н1. L = 87,52 м
Конструкция нижних продольных связей L = 88,0 - 87,52 м
Конструкция верхних продольных связей L = 88,0 - 87,52 м
Конструкция мостового полотна L = 88,0 - 87,52 м
Конструкция мостового полотна L = 88,0 - 87,52 м. Детали
Конструкция плит тротуаров L = 88,0 - 87,52 м, d = 11,0 м
Конструкция плит тротуаров L = 87,52 м, d = 10,76 м
Конструкция плит убежищ L = 88,0 - 87,52 м
Технология изготовления коробчатых сечений L = 88,0 - 87,52 м
Спецификация металла L = 88,0 м. Пояса
Спецификация металла L = 88,0 м. Раскосы, подвески, стойки
Спецификация металла L = 88,0 м. Связи главных ферм
Спецификация металла L = 88,0 м. Балки проезжей части
Спецификация металла L = 88,0 м. Мостовое полотно
Спецификация металла L = 87,52 м. Главные фермы
Спецификация металла L = 87,52 м. Связи главных ферм
Спецификация металла L = 87,52 м. Балки проезжей части
Расчетные усилия элементов главных ферм L = 88,0 - 87,52 м
Сечения элементов главных ферм L = 88,0 - 87,52 м
Стыки поясов главных ферм L = 88,0 - 87,52 м
Стыки элементов решетки главных ферм L = 88,0 - 87,52 м
Прикрепление элементов и расчет узлов L = 88,0 - 87,52 м
Пространственный расчет. Расчет связей главных ферм L = 88,0 - 87,52 м
Прогиб. Строительный подъем L = 88,0 - 87,52 м
Расчет проезжей части без учета совместной работы L = 88,0 - 87,52 м
Пространственный расчет пролетного строения L = 88,0 - 87,52 м
Навесная сборка L = 88,0 м. Расчет
Навесная сборка L = 88,0 м. Верхние соединительные элементы
Навесная сборка L = 88,0 м. Нижние соединительные элементы
Навесная сборка L = 88,0 м. Спецификация металла
Общий вид смотровых приспособлений L = 88,0 - 87,52 м
Пути катания нижней смотровой тележки
Лестница по опорному раскосу. Узел Н0
Лестница по опорному раскосу. Узел В1
Пути катания балки по верхнему поясу
Нижняя смотровая тележка. Общий вид
Нижняя смотровая тележка. Металлоконструкции
Катучая балка по верхнему поясу. Общий вид
Катучая балка по верхнему поясу. Разрезы
Катучая балка по верхнему поясу. Металлоконструкции
Катучая балка по верхнему поясу. Металлоконструкции и спецификация
Самоподъемная люлька. Общий вид
Самоподъемная люлька. Монтажные элементы
Спецификация металла смотровых приспособлений для пролетных строений обычного исполнения
Главные фермы L = 88,0 м. Узел В1. Сварной вариант
Главные фермы L = 87,52 м. Узел В1. Сварной вариант
Портальное заполнение L = 88,0 - 87,52 м. Сварной вариант
Трубчатая распорка L = 88,0 - 87,52 м. Сварной вариант
Узлы В1 - В4. Поперечные связи L = 88,0 - 87,52 м. Сварной вариант
Верхние продольные связи L = 88,0 - 87,52 м. Сварной вариант
Диафрагма в панели Н0 - Н1. L = 88,0 м. Сварной вариант
Диафрагма в панели Н1 - Н2, Н2 - Н3. L = 88,0 - 87,52 м. Сварной вариант
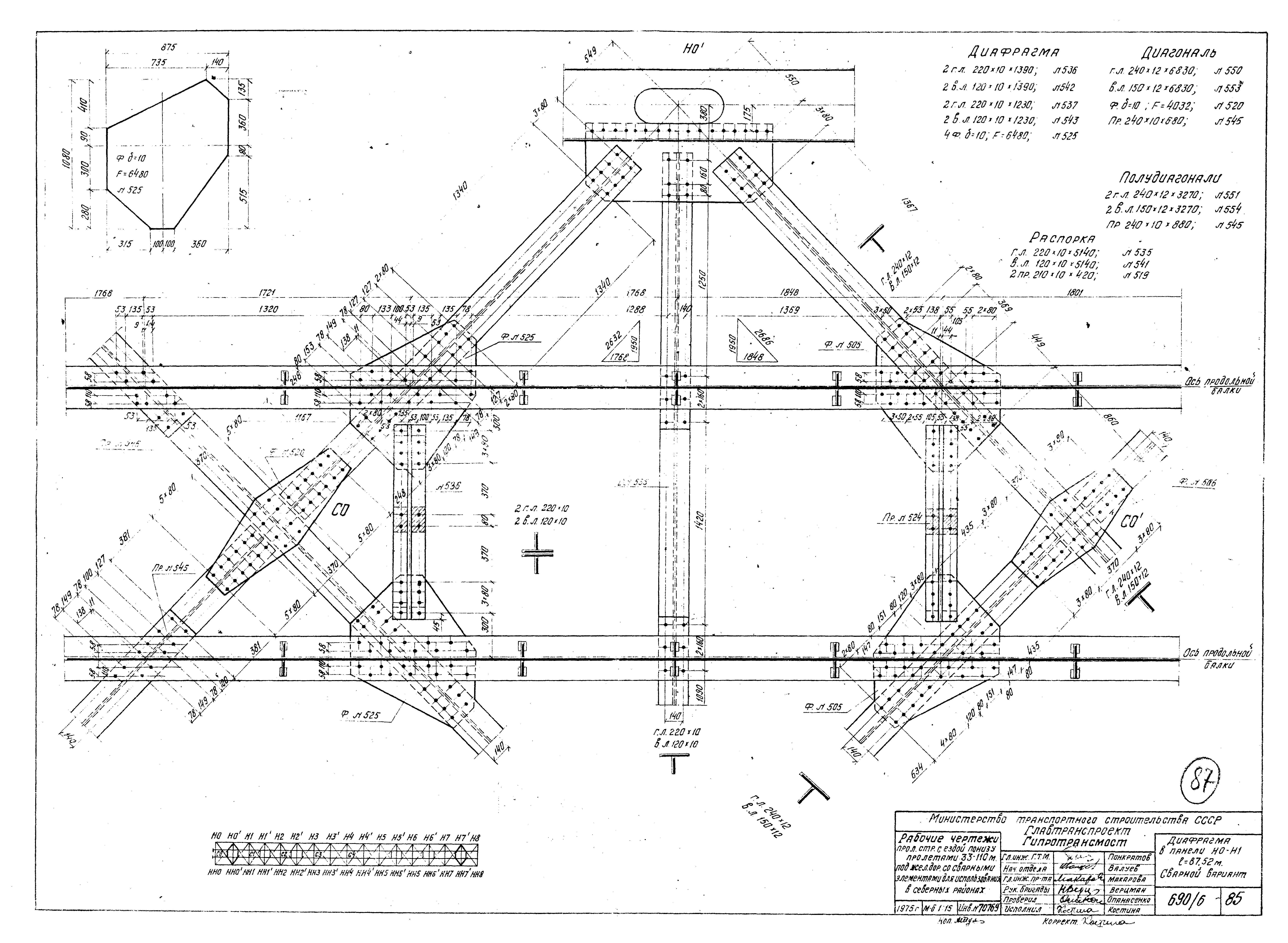
Диафрагма в панели Н0 - Н1. L = 87,52 м. Сварной вариант
Нижние продольные связи L = 88,0 - 87,52 м. Сварной вариант
Спецификация металла. Связи главных ферм L = 88,0 м. Сварной вариант
Спецификация металла. Поперечные связи L = 88,0 м. Сварной вариант
Спецификация металла. Связи главных ферм L = 87,52 м. Сварной вариант
Пространственный расчет нижних связей главных ферм L = 88,0 - 87,52 м. Сварной вариант
Расчет связей главных ферм. Нижние связи L = 88,0 - 87,52 м. Сварной вариант
Расчет связей главных ферм. Верхние связи L = 88,0 - 87,52 м. Сварной вариант
Разработан: Гипротрансмост
Утверждён:08.10.1969 МПС (Ministry of Railroads П-27/93)
Расположен в:Техническая документация Строительство Справочные документы Типовые строительные конструкции, изделия и узлы Общероссийский строительный каталог Строительные конструкции, изделия и узлы зданий и сооружений для всех видов строительства Конструкции и изделия сооружений и оборудования зданий Надземные сооружения Конструкции и сооружения транспорта Пролетные строения мостов, мосты и путепроводы
Чем заменён:
Типовой проект 3.501-30/75Типовой проект 3.501-30/75Типовой проект 3.501-30/75Типовой проект 3.501-30/75Типовой проект 3.501-30/75Типовой проект 3.501-30/75Типовой проект 3.501-30/75Типовой проект 3.501-30/75Типовой проект 3.501-30/75Типовой проект 3.501-30/75Типовой проект 3.501-30/75Типовой проект 3.501-30/75Типовой проект 3.501-30/75Типовой проект 3.501-30/75Типовой проект 3.501-30/75Типовой проект 3.501-30/75Типовой проект 3.501-30/75Типовой проект 3.501-30/75Типовой проект 3.501-30/75Типовой проект 3.501-30/75Типовой проект 3.501-30/75Типовой проект 3.501-30/75Типовой проект 3.501-30/75Типовой проект 3.501-30/75Типовой проект 3.501-30/75Типовой проект 3.501-30/75Типовой проект 3.501-30/75Типовой проект 3.501-30/75Типовой проект 3.501-30/75Типовой проект 3.501-30/75Типовой проект 3.501-30/75Типовой проект 3.501-30/75Типовой проект 3.501-30/75Типовой проект 3.501-30/75Типовой проект 3.501-30/75Типовой проект 3.501-30/75Типовой проект 3.501-30/75Типовой проект 3.501-30/75Типовой проект 3.501-30/75Типовой проект 3.501-30/75Типовой проект 3.501-30/75Типовой проект 3.501-30/75Типовой проект 3.501-30/75Типовой проект 3.501-30/75Типовой проект 3.501-30/75Типовой проект 3.501-30/75Типовой проект 3.501-30/75Типовой проект 3.501-30/75Типовой проект 3.501-30/75Типовой проект 3.501-30/75Типовой проект 3.501-30/75Типовой проект 3.501-30/75Типовой проект 3.501-30/75Типовой проект 3.501-30/75Типовой проект 3.501-30/75Типовой проект 3.501-30/75Типовой проект 3.501-30/75Типовой проект 3.501-30/75Типовой проект 3.501-30/75Типовой проект 3.501-30/75Типовой проект 3.501-30/75Типовой проект 3.501-30/75Типовой проект 3.501-30/75Типовой проект 3.501-30/75Типовой проект 3.501-30/75Типовой проект 3.501-30/75Типовой проект 3.501-30/75Типовой проект 3.501-30/75Типовой проект 3.501-30/75Типовой проект 3.501-30/75Типовой проект 3.501-30/75Типовой проект 3.501-30/75Типовой проект 3.501-30/75Типовой проект 3.501-30/75Типовой проект 3.501-30/75Типовой проект 3.501-30/75Типовой проект 3.501-30/75Типовой проект 3.501-30/75Типовой проект 3.501-30/75Типовой проект 3.501-30/75Типовой проект 3.501-30/75Типовой проект 3.501-30/75Типовой проект 3.501-30/75Типовой проект 3.501-30/75Типовой проект 3.501-30/75Типовой проект 3.501-30/75Типовой проект 3.501-30/75Типовой проект 3.501-30/75Типовой проект 3.501-30/75Типовой проект 3.501-30/75Типовой проект 3.501-30/75Типовой проект 3.501-30/75

© 2013 Ёшкин Кот :-) Карта сайта