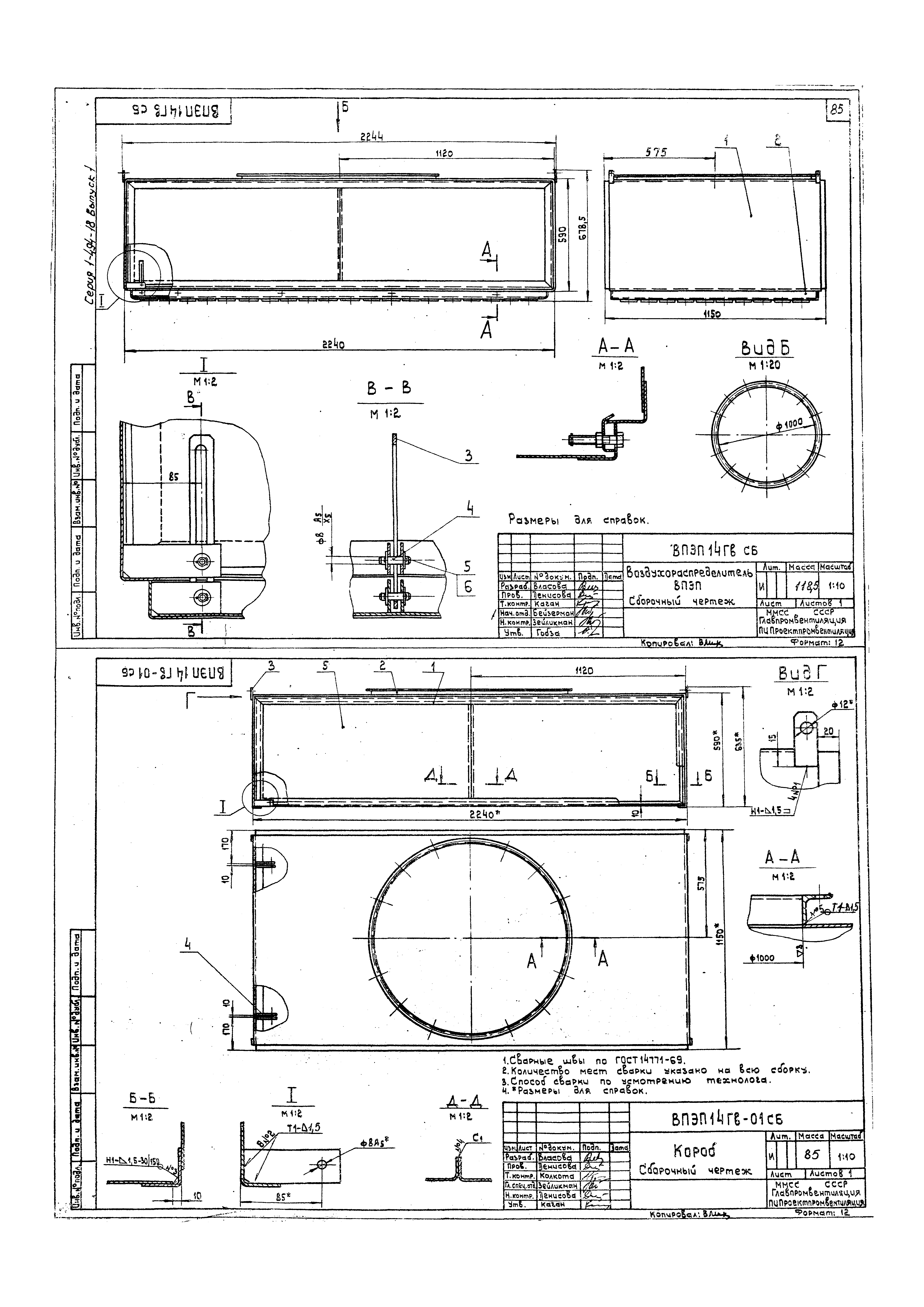
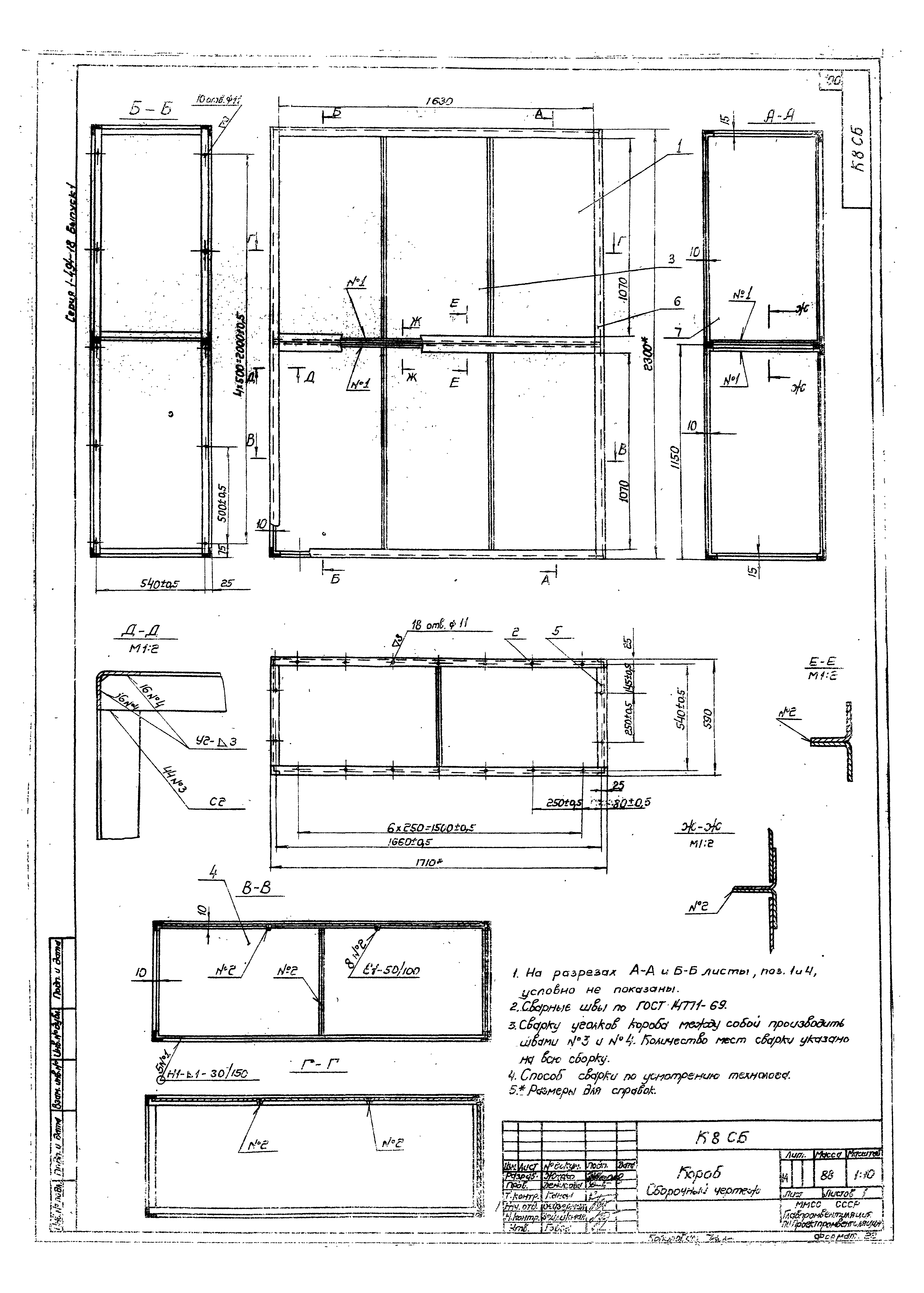
Скачать Серия 1.494-18 Выпуск 1. Рабочие чертежи воздухораспределителей ВПЭПДата актуализации: 10.08.2017 Серия 1.494-18
Выпуск 1. Рабочие чертежи воздухораспределителей ВПЭПОбозначение: | Серия 1.494-18 | Обозначение англ: | Series 1.494-18 | Статус: | не действует | Название рус.: | Выпуск 1. Рабочие чертежи воздухораспределителей ВПЭП | Дата добавления в базу: | 01.10.2014 | Дата актуализации: | 05.05.2017 | Дата введения: | 01.01.1983 | Разработан: | Проектпромвентиляция
| Утверждён: | 27.01.1975 Главпромстройпроект Госстроя СССР (8)
| Расположен в: |
|
                                                                                                                 
|