Информационная система
«Ёшкин Кот»

Скачать базу одним архивом
Скачать обновления
История создания базы
Карта сайта

Скачать Типовой проект 294-3-39м.85 Альбом I. Часть 2. Архитектурно-строительные и технологические чертежи

Дата актуализации: 10.08.2017

Типовой проект 294-3-39м.85

Альбом I. Часть 2. Архитектурно-строительные и технологические чертежи

Обозначение: Типовой проект 294-3-39м.85
Обозначение англ: 294-3-39м.85
Статус:не определен законодательством
Название рус.:Альбом I. Часть 2. Архитектурно-строительные и технологические чертежи
Дата добавления в базу:01.10.2014
Дата актуализации:05.05.2017
Дата введения:18.12.1985
Оглавление:Схема балок перекрытия на отм. 4.500
Схема балок перекрытия на отм. 8.100
Схема балок покрытия
Монтажный план ферм и связей
Схема балок перекрытия на отм. 4.500. Сечения 1-1 - 3-3. Узлы 1 - 3
Схема балок перекрытия на отм. 4.500. Узлы 4 - 9. Сечения 4-4, 5-5
Схема балок перекрытия на отм. 8.100. Узлы 1, 2. Сечения 1-1 - 6-6
План перекрытия на отм. 4.500 и 5.700 в осях "А" - "И"
План перекрытия на отм. 4.500 и 5.700 в осях "И" - "М"
План перекрытия на отм. 8.100 и 9.000 в осях "А" - "И"
План перекрытия на отм. 8.100 в осях "И" - "М"
План покрытия в осях "А" - "И"
План покрытия в осях "И" - "М"
Сечения 1-1 - 8-8
Сечения 11-11 - 19-19
Спецификация на перекрытия и покрытие
Общий вид ванны 25х16 м. Спецификация на стартовые тумбы и обходную дорожку
Ванна 25х16 м. Общий вид. Сечения 1-1, 2-2. Узлы 1, 2
Ванна 25х16 м. Узлы 3 - 6
Ванна 25х16 м. Опалубочные чертежи
Ванна 25х16 м. Опалубка. Узлы 1, 2, 3, 7. Сечения 1-1, 2-2
Ванна 25х16 м. Опалубка. Сечения 3-3 - 6-6
План раскладки нижних сеток днища. Сечения 1-1, 2-2. Спецификация
Ванна 25х16 м. Раскладка верхних сеток днища. Спецификация на стенки ванны
Ванна 25х16 м. Армирование днища. Сечения 4-4 - 10-10
Ванна 25х16 м. Армирование стен ванны
Ванна 25х16 м. Армирование стен ванны. Сечения. Спецификация
Детская ванна 10х6 м. Общий вид. План, разрезы
Детская ванна 10х6 м. Общий вид. Детали
Детская ванна 10х6 м. Опалубка. План. Разрезы, детали
Детская ванна 10х6 м. Армирование днища чаши
Детская ванна 10х6 м. Армирование стенок чаши
Детская ванна 10х6 м. Спецификация
Детская ванна 10х6 м. Балка БМБ-1. Опалубка и армирование
Детская ванна 10х6 м. Балки БМБ-2 и БМБ-3. Опалубка и армирование
Детская ванна 10х6 м. Каркасы и закладные детали
Ванна 25х16 м. Детская ванна 10х6 м. Ведомость расхода стали
Лифт. Разрезы 3-3, 4-4. Планы шахты и машинного помещения лифта
Развертка лифта
Лифт. Закладные детали
Лестницы № 1 и № 2
Лестницы № 1 и № 2. Разрезы 4-4 - 8-8
Лестницы № 3 и № 4
Лестницы № 3 и № 4. Разрезы 1-1, 2-2. Детали
Трибуна. Сечения 1-1, 2-2
Насосно-фильтровальная станция
Электролизная. Металлическая лестница ЛМ-3
Металлический бак промывной воды
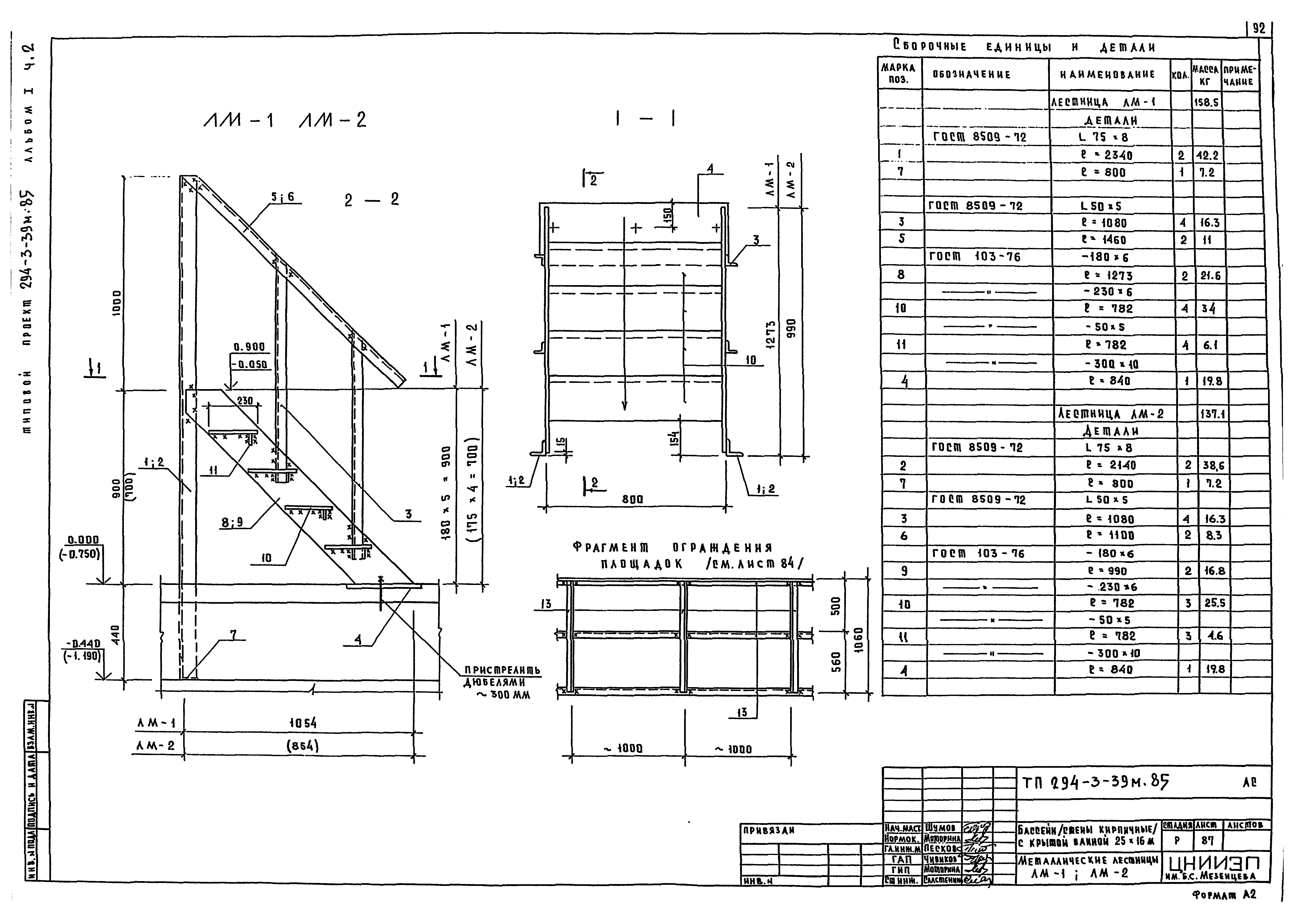
Металлические лестницы ЛМ-1 и ЛМ-2
Электрощитовая
Венткамеры № 1 и № 2. План
Венткамеры № 1 и № 2. Разрезы
Венткамеры № 1 и № 2. Монолитные участки. Спецификация
Венткамера № 3. План
Венткамера № 3. Разрезы
Венткамера № 3. Монолитные участки. Спецификация
Венткамера № 6. План. Разрез. Расход стали на венткамеры №№ 1, 2, 3, 6
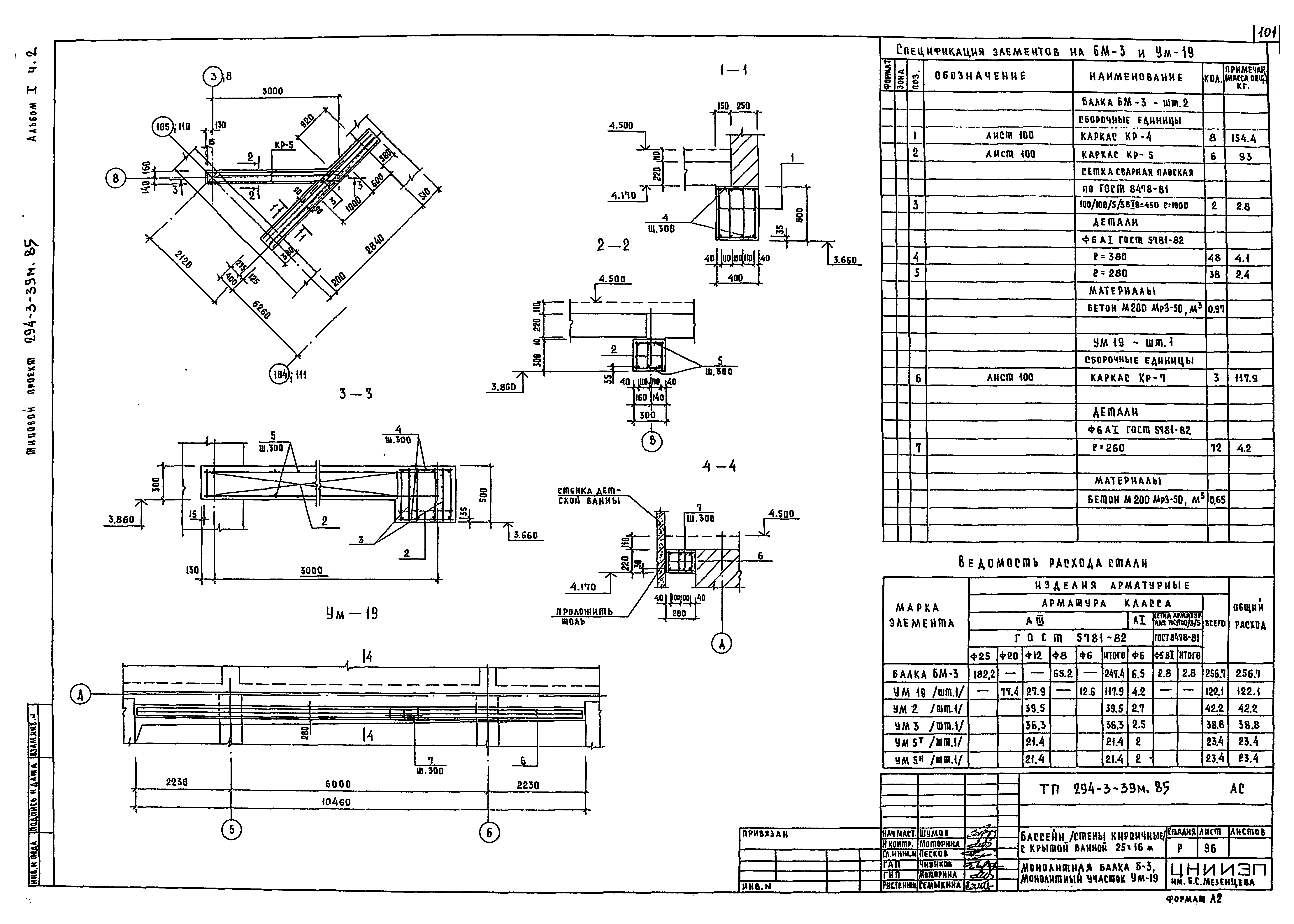
Монолитная балка БМ-3. Монолитный участок УМ-19
Монолитные участки УМ-2, УМ-3, УМ-26тн, УМ-5тн
Монолитные участки УМ-12, УМ-16т, УМ-16н
Монолитные участки. Сечения 25-25 - 33-33
Монолитные участки. Каркасы КР-1 - КР-9
Монолитные участки. Спецификация элементов
Монолитные участки. Ведомость расхода стали
Ведомость перемычек ПР-1 - ПР-4
Ведомость перемычек ПР-15 - ПР-26
Спецификация перемычек
Монолитная опорная подушка МОП-1 и монолитный пояс МП-1
Лестницы №№ 8 - 11; 14; 15
Лестница № 13
Монолитные балки БМ-1; БМ-2
Монолитные опорные подушки МОП-2 - МОП-4
Лестницы № 5 и № 6
Разработан: ЦНИИЭП им. Б.С. Мезенцева Госгражданстроя
Утверждён:09.10.1984 Госгражданстрой (Gosgrazhdanstroy 286)
Расположен в:Техническая документация Строительство Справочные документы Типовые строительные конструкции, изделия и узлы Общероссийский строительный каталог Общественные здания в городах и поселках городского типа Физкультурно-оздоровительные и спортивные здания и сооружения Сооружения для водных видов спорта
Типовой проект 294-3-39м.85Типовой проект 294-3-39м.85Типовой проект 294-3-39м.85Типовой проект 294-3-39м.85Типовой проект 294-3-39м.85Типовой проект 294-3-39м.85Типовой проект 294-3-39м.85Типовой проект 294-3-39м.85Типовой проект 294-3-39м.85Типовой проект 294-3-39м.85Типовой проект 294-3-39м.85Типовой проект 294-3-39м.85Типовой проект 294-3-39м.85Типовой проект 294-3-39м.85Типовой проект 294-3-39м.85Типовой проект 294-3-39м.85Типовой проект 294-3-39м.85Типовой проект 294-3-39м.85Типовой проект 294-3-39м.85Типовой проект 294-3-39м.85Типовой проект 294-3-39м.85Типовой проект 294-3-39м.85Типовой проект 294-3-39м.85Типовой проект 294-3-39м.85Типовой проект 294-3-39м.85Типовой проект 294-3-39м.85Типовой проект 294-3-39м.85Типовой проект 294-3-39м.85Типовой проект 294-3-39м.85Типовой проект 294-3-39м.85Типовой проект 294-3-39м.85Типовой проект 294-3-39м.85Типовой проект 294-3-39м.85Типовой проект 294-3-39м.85Типовой проект 294-3-39м.85Типовой проект 294-3-39м.85Типовой проект 294-3-39м.85Типовой проект 294-3-39м.85Типовой проект 294-3-39м.85Типовой проект 294-3-39м.85Типовой проект 294-3-39м.85Типовой проект 294-3-39м.85Типовой проект 294-3-39м.85Типовой проект 294-3-39м.85Типовой проект 294-3-39м.85Типовой проект 294-3-39м.85Типовой проект 294-3-39м.85Типовой проект 294-3-39м.85Типовой проект 294-3-39м.85Типовой проект 294-3-39м.85Типовой проект 294-3-39м.85Типовой проект 294-3-39м.85Типовой проект 294-3-39м.85Типовой проект 294-3-39м.85Типовой проект 294-3-39м.85Типовой проект 294-3-39м.85Типовой проект 294-3-39м.85Типовой проект 294-3-39м.85Типовой проект 294-3-39м.85Типовой проект 294-3-39м.85Типовой проект 294-3-39м.85Типовой проект 294-3-39м.85Типовой проект 294-3-39м.85Типовой проект 294-3-39м.85Типовой проект 294-3-39м.85Типовой проект 294-3-39м.85Типовой проект 294-3-39м.85Типовой проект 294-3-39м.85Типовой проект 294-3-39м.85Типовой проект 294-3-39м.85Типовой проект 294-3-39м.85Типовой проект 294-3-39м.85Типовой проект 294-3-39м.85Типовой проект 294-3-39м.85Типовой проект 294-3-39м.85Типовой проект 294-3-39м.85Типовой проект 294-3-39м.85

© 2013 Ёшкин Кот :-) Карта сайта