Скачать Типовой проект 1Лг-504Д-12 Альбом 1. Архитектурно-строительная часть АСДата актуализации: 10.08.2017 Типовой проект 1Лг-504Д-12
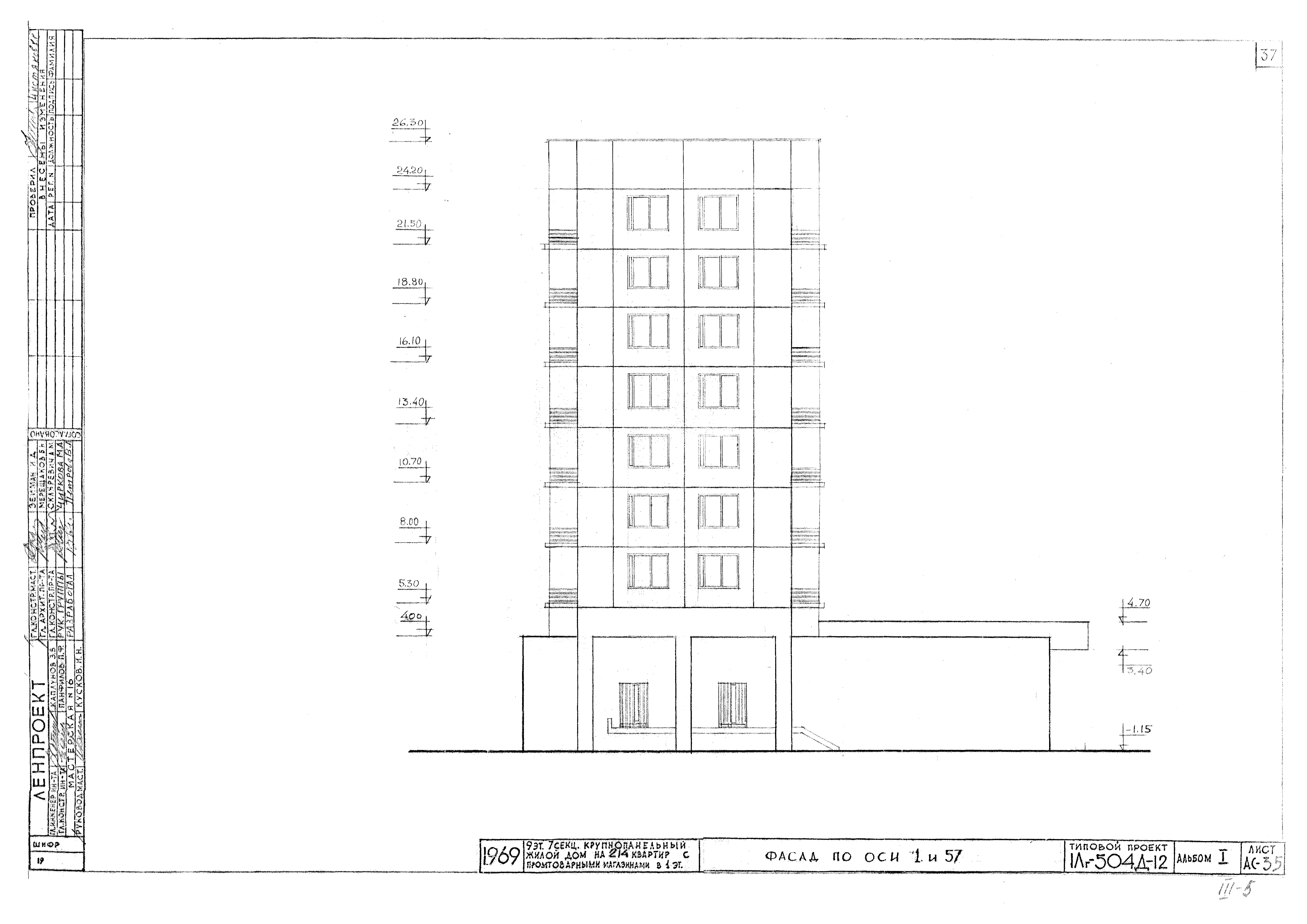
Альбом 1. Архитектурно-строительная часть АСОбозначение: | Типовой проект 1Лг-504Д-12 | Обозначение англ: | 1Лг-504Д-12 | Статус: | cправочные материалы, мп, тпр | Название рус.: | Альбом 1. Архитектурно-строительная часть АС | Дата добавления в базу: | 01.10.2014 | Дата актуализации: | 05.05.2017 | Дата введения: | 30.09.1969 | Оглавление: | Содержание альбома Заглавный лист Пояснительная записка Монтажный план стен и перегородок 1-го этажа в осях 1 - 33 План перекрытия над 1-ым этажом и покрытия над магазинами в осях 1 - 30 Монтажный план стен и перегородок 2 этажа в осях 1 - 33 План перекрытия над 1-ым этажом в осях 2 - 10, сечение, сетки и каркасы Монтажный план стен и перегородок 1-го этажа в осях 33 - 57 План перекрытия над 1-ым этажом и покрытия над магазином в осях 30 - 57 Монтажный план стен и перегородок 2-го этажа в осях 33 - 57 Раскладки плит перекрытий над 1-ым, 2-ым этажами Секция М-1ф-2-2-3-3. Монтажный план стен и перегородок 3 - 9 этажей Секция М-1ф-2-2-3-3. Монтажный план перекрытий над 2 - 9 этажами Секция М-1ф-2-2-3-3. Монтажный план стен чердака Секция М-1ф-2-2-3-3. Монтажный план покрытия Секция М-1ф-2-2-3-3. Монтажный план парапетных плит Секция М-1тф-2-2-3-3. Монтажный план стен и перегородок 3 - 9 этажей Секция М-1тф-2-2-3-3. Монтажный план перекрытий над 2 - 9 этажами Секция М-1тф-2-2-3-3. Монтажный план стен чердака Секция М-1тф-2-2-3-3. Монтажный план покрытия Секция М-1тф-2-2-3-3. Монтажный план парапетных плит Секция М-4т-2-3-3-4. Монтажный план стен и перегородок 3 - 9 этажей Секция М-4т-2-3-3-4. Монтажный план перекрытий над 2 - 9 этажами Секция М-4т-2-3-3-4. Монтажный план стен чердака Секция М-4т-2-3-3-4. Монтажный план покрытия Секция М-4т-2-3-3-4. Монтажный план парапетных плит Секция М-5т-2-3-3-4. Монтажный план стен и перегородок 3 - 9 этажей Секция М-5т-2-3-3-4. Монтажный план перекрытий над 2 - 9 этажами Секция М-5т-2-3-3-4. Монтажный план стен чердака Секция М-5т-2-3-3-4. Монтажный план покрытия Секция М-5т-2-3-3-4. Монтажный план парапетных плит Фасад по оси "А" Фасад по оси "Д" Фасады по осям "1" и "57" Спецификация керамзитобетонных, железобетонных и гипсобетонных изделий Спецификация монтажных элементов и металлических изделий Спецификация столярных изделий Нумерация квартир План кровли магазина и план подвесного потолка Монолитный торец дома. Опалубочный чертеж Мр-1, Мр-2, Мр-3, МК-1 Монолитный торец дома. Армирование железобетонного пояса Мр-1, Мр-2, Мр-3, МК-1 Монолитный торец дома. Каркасы К-428 - К434. Сетки С403 - С405 | Разработан: | Ленпроект
| Утверждён: | 30.09.1969 Ленпроект (124)
| Расположен в: |
|
                                                
|