Информационная система
«Ёшкин Кот»

Скачать базу одним архивом
Скачать обновления
История создания базы
Карта сайта

Скачать Типовой проект 1Лг-504Д-12 Альбом 0. Чертежи нулевого цикла работ АСО. Ленточные фундаменты

Дата актуализации: 10.08.2017

Типовой проект 1Лг-504Д-12

Альбом 0. Чертежи нулевого цикла работ АСО. Ленточные фундаменты

Обозначение: Типовой проект 1Лг-504Д-12
Обозначение англ: 1Лг-504Д-12
Статус:cправочные материалы, мп, тпр
Название рус.:Альбом 0. Чертежи нулевого цикла работ АСО. Ленточные фундаменты
Дата добавления в базу:01.10.2014
Дата актуализации:05.05.2017
Дата введения:30.09.1969
Оглавление:Содержание альбома
Общие чертежи для ленточных и свайных фундаментов
   Компоновочный план секций дома
   Монтажный чертеж стен фундаментов и план технического подполья в осях 1 - 33
   Монтажный чертеж стен фундаментов и план технического подполья в осях 33 - 57
   План перекрытия над техническим подпольем в осях 1 - 29
   План перекрытия над техническим подпольем в осях 29 - 57
   План перекрытия над техническим подпольем. Сечения, сетки и каркасы (в осях 2 - 10)
   Монолитные участки МУ-1, МУ-2, МУ-3, МУ-4
   Узлы А, Б и сечения 1-1, 2-2, 3-3, 4-4
   Монтажные узлы №33, 34, 35, 36, 37, 38, 39, 40
   План фундаментов тамбура. Разрезы 1-1, 2-2
   План перекрытия лестничных клеток над техническим подпольем и план раскладки блоков стен между осями 27` и 30`
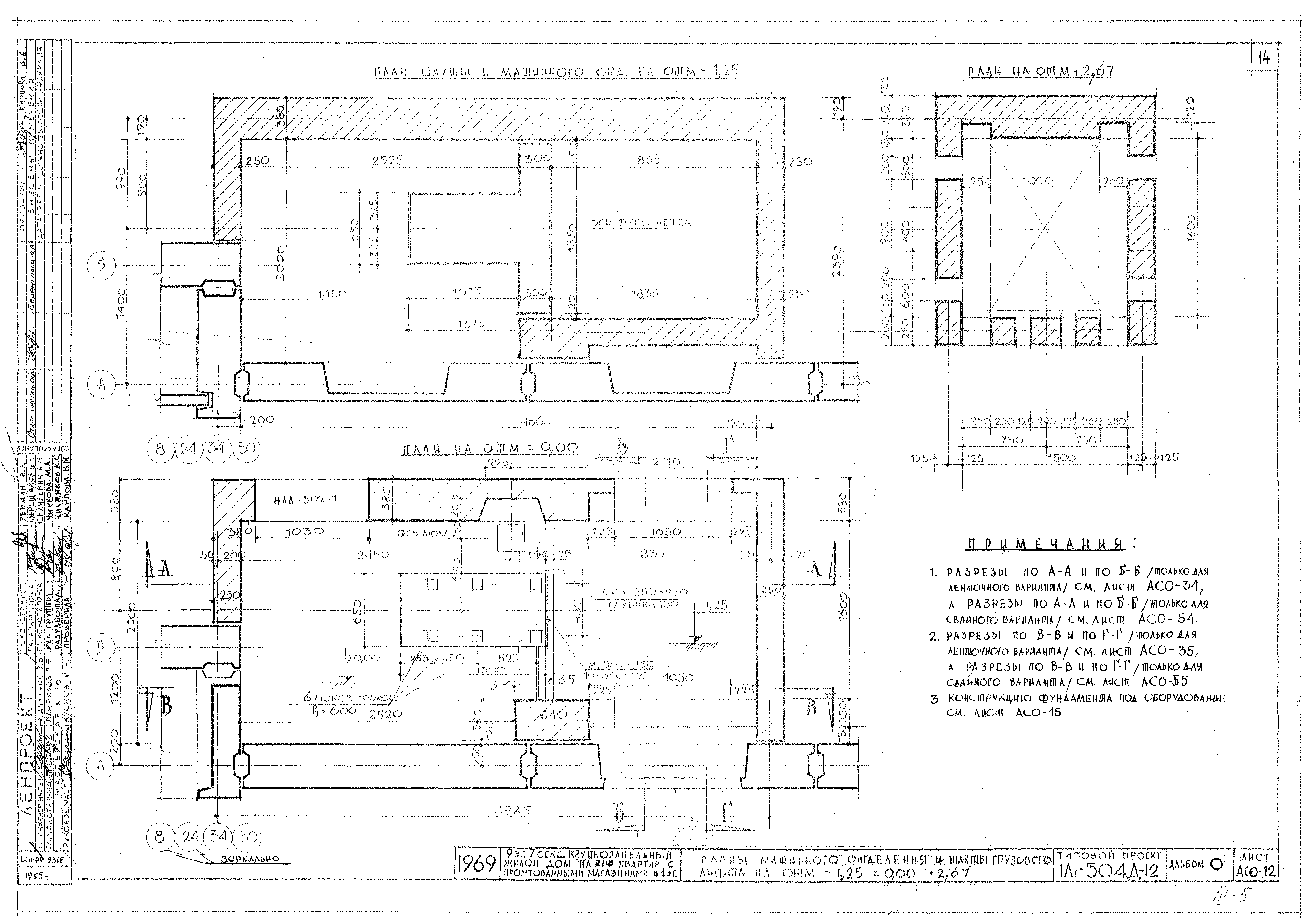
   Планы машинного отделения и шахты грузового лифта на отм. - 1.250; 0.000; 2.670
   Монолитная лестница МЛ-1 и монолитный фундамент МЛ-2, сетки С-1, С-2, С-3, С-4, МС-7
   План полов подполья в осях 2 - 56
   Сечения а-а, б-б, в-в, г-г, е-е. Фундамент под оборудование ФО-1/ФО-2
   Разбивка гнезд под металлические витрины
   Сводная комплектовочная ведомость изделий заводского изготовления
Ленточные фундаменты
   План железобетонных сборных ленточных фундаментов в осях 1 - 28
   План железобетонных сборных ленточных фундаментов в осях 28 - 57
   Сечения фундаментов 1-1, 2-2, 3-3, 4-4, 5-5, 6-6, 7-7, 8-8
   Сечения фундаментов 9-9, 10-10, 11-11, 12-12
   План железобетонных ленточных фундаментов в осях 34 - 35 и 50 - 56. Разрезы 1-1, 2-2, 3-3
   Монолитный фундамент МФ-1
   Монолитный фундамент МФ-1. Каркасы МК-1, МК-2, МК-3, МК-4, МК-5, сетка МС-1
   План раскладки блоков стен в пределах лестничной клетки в осях 4 - 6; 52 - 54
   План раскладки блоков стен в пределах лестничной клетки в осях 12 - 14; 20 - 22; 36 - 38; 44 - 46
   Разрез 13-13 по лестничной клетке №2, 3, 5, 6 для секции М-1 (1 этаж)
   Разрез 14-14 (лестница №11)
   Разрез 15-15 (по лестнице №10)
   Разрез 16-16 (по сквозному проходу)
   Разрез 17-17 (сквозной проход и лестница №10)
   Разрез 18-18 (по лестнице №10)
   Разрезы А-А, Б-Б
   Разрезы В-В, Г-Г
Свайные фундаменты
   План свай в осях 1 - 29
   План свай в осях 29 - 57
   План раскладки балок ростверка в осях 1 - 29
   План раскладки балок ростверка в осях 29 - 57
   Сечения фундаментов 1-1, 2-2, 3-3, 4-4, 5-5, 6-6
   Сечения фундаментов 7-7, 8-8, 9-9, 10-10. Монолитный ростверк МР-5
   Монолитные ростверки МР-1, МР-2, МР-3, МР-4
   Монолитные ростверки. Арматурные сетки МС-2, МС-3, МС-4, МС-5, МС-6
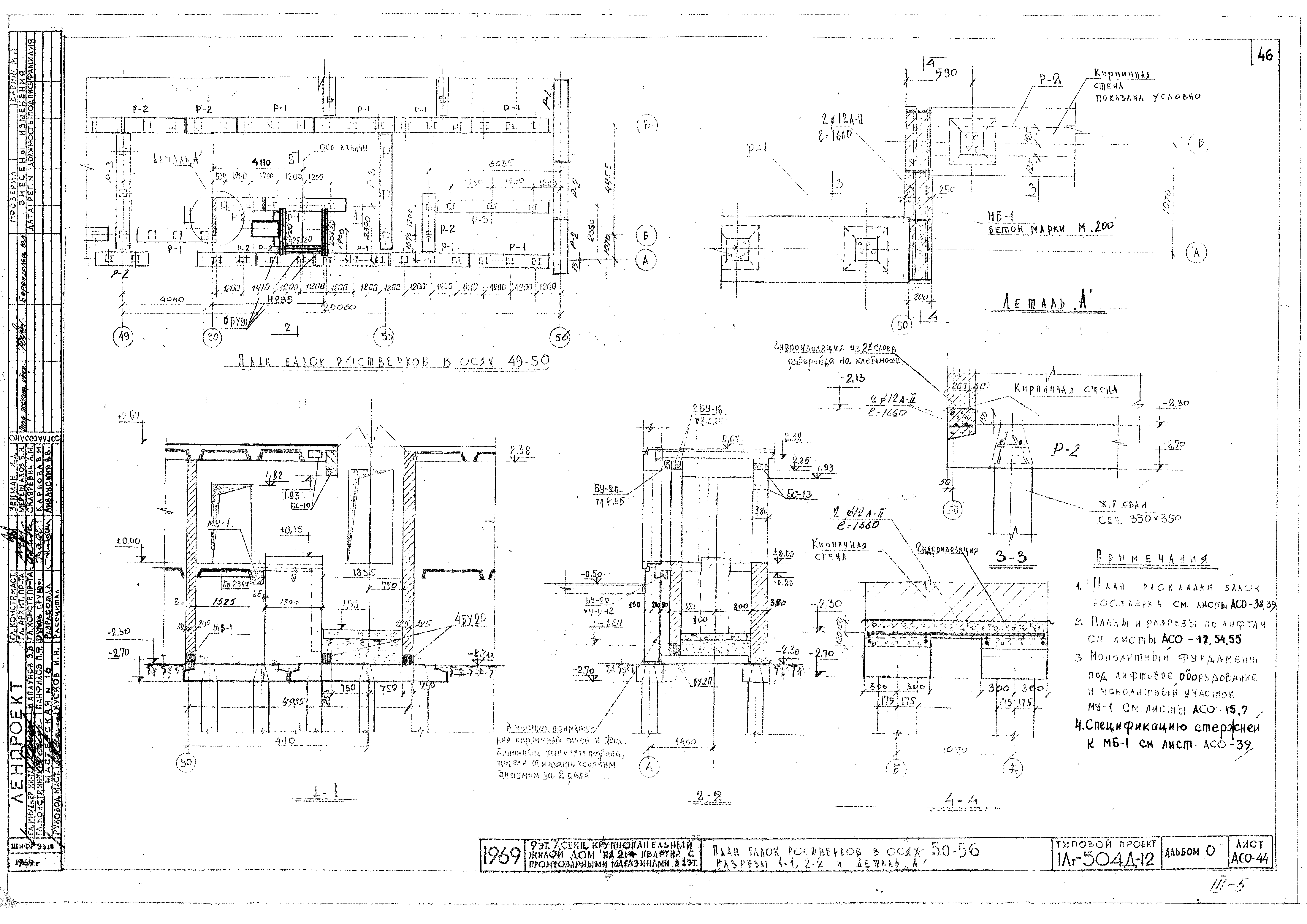
   План балок ростверков в осях 50 - 56, разрезы 1-1, 2-2 и деталь "А"
   План раскладки блоков стен в пределах лестничной клетки в осях 4 - 6; 52 - 54
   План раскладки блоков стен в пределах лестничной клетки в осях 12 - 14; 20 - 22; 36 - 38; 44 - 46
   План раскладки блоков стен между осями 27` и 30`
   Разрез 13-13 по лестничной клетке №2, 3, 5, 6 для секции М-1 (1 этаж)
   Разрез 14-14 (лестница №11)
   Разрез 15-15 (по лестнице №10)
   Разрез 16-16 (по сквозному проходу)
   Разрез 17-17 (сквозной проход и лестница №10)
   Разрез 18-18 (по лестнице №10)
   Разрезы А-А, Б-Б
   Разрезы В-В, Г-Г
   Сводная комплектовочная ведомость изделий заводского изготовления
Разработан: Ленпроект
Утверждён:30.09.1969 Ленпроект (124)
Расположен в:Техническая документация Строительство Справочные документы Типовые строительные конструкции, изделия и узлы Разработанные другими министерствами, ведомствами и организациями
Типовой проект 1Лг-504Д-12Типовой проект 1Лг-504Д-12Типовой проект 1Лг-504Д-12Типовой проект 1Лг-504Д-12Типовой проект 1Лг-504Д-12Типовой проект 1Лг-504Д-12Типовой проект 1Лг-504Д-12Типовой проект 1Лг-504Д-12Типовой проект 1Лг-504Д-12Типовой проект 1Лг-504Д-12Типовой проект 1Лг-504Д-12Типовой проект 1Лг-504Д-12Типовой проект 1Лг-504Д-12Типовой проект 1Лг-504Д-12Типовой проект 1Лг-504Д-12Типовой проект 1Лг-504Д-12Типовой проект 1Лг-504Д-12Типовой проект 1Лг-504Д-12Типовой проект 1Лг-504Д-12Типовой проект 1Лг-504Д-12Типовой проект 1Лг-504Д-12Типовой проект 1Лг-504Д-12Типовой проект 1Лг-504Д-12Типовой проект 1Лг-504Д-12Типовой проект 1Лг-504Д-12Типовой проект 1Лг-504Д-12Типовой проект 1Лг-504Д-12Типовой проект 1Лг-504Д-12Типовой проект 1Лг-504Д-12Типовой проект 1Лг-504Д-12Типовой проект 1Лг-504Д-12Типовой проект 1Лг-504Д-12Типовой проект 1Лг-504Д-12Типовой проект 1Лг-504Д-12Типовой проект 1Лг-504Д-12Типовой проект 1Лг-504Д-12Типовой проект 1Лг-504Д-12Типовой проект 1Лг-504Д-12Типовой проект 1Лг-504Д-12Типовой проект 1Лг-504Д-12Типовой проект 1Лг-504Д-12Типовой проект 1Лг-504Д-12Типовой проект 1Лг-504Д-12Типовой проект 1Лг-504Д-12Типовой проект 1Лг-504Д-12Типовой проект 1Лг-504Д-12Типовой проект 1Лг-504Д-12Типовой проект 1Лг-504Д-12Типовой проект 1Лг-504Д-12Типовой проект 1Лг-504Д-12Типовой проект 1Лг-504Д-12Типовой проект 1Лг-504Д-12Типовой проект 1Лг-504Д-12Типовой проект 1Лг-504Д-12Типовой проект 1Лг-504Д-12Типовой проект 1Лг-504Д-12Типовой проект 1Лг-504Д-12Типовой проект 1Лг-504Д-12Типовой проект 1Лг-504Д-12

© 2013 Ёшкин Кот :-) Карта сайта