Информационная система
«Ёшкин Кот»

Скачать базу одним архивом
Скачать обновления
История создания базы
Карта сайта

Скачать Типовой проект 901-1-95.88 Альбом III. Архитектурно-строительные решения (подземная часть), указания по производству строительных работ

Дата актуализации: 10.08.2017

Типовой проект 901-1-95.88

Альбом III. Архитектурно-строительные решения (подземная часть), указания по производству строительных работ

Обозначение: Типовой проект 901-1-95.88
Обозначение англ: 901-1-95.88
Статус:не определен законодательством
Название рус.:Альбом III. Архитектурно-строительные решения (подземная часть), указания по производству строительных работ
Дата добавления в базу:01.10.2014
Дата актуализации:05.05.2017
Дата введения:05.07.1988
Оглавление:Содержание альбома
Конструкции железобетонные КЖ2
   Общие данные
   Опускной колодец
   Опускной колодец. Схема армирования
   Опускной колодец. Днище
   Опускной колодец. Днище. Схема армирования
   Опускной колодец. Внутренние стены
   Опускной колодец. Внутренние стены. Схема армирования
   Форшахта
Конструкции металлические КМ2
   Общие данные. Ведомость металлоконструкций по видам профилей
   Техническая спецификация стали
   Схема расположения лестниц, площадок и опор под трубы
   Схема расположения лестниц, площадок и опор под трубы. Узлы
Организация строительства ОС
   Общие данные
   Схемы производства работ. I этап
   Схемы производства работ. II и III этапы
   Схемы производства свайных работ
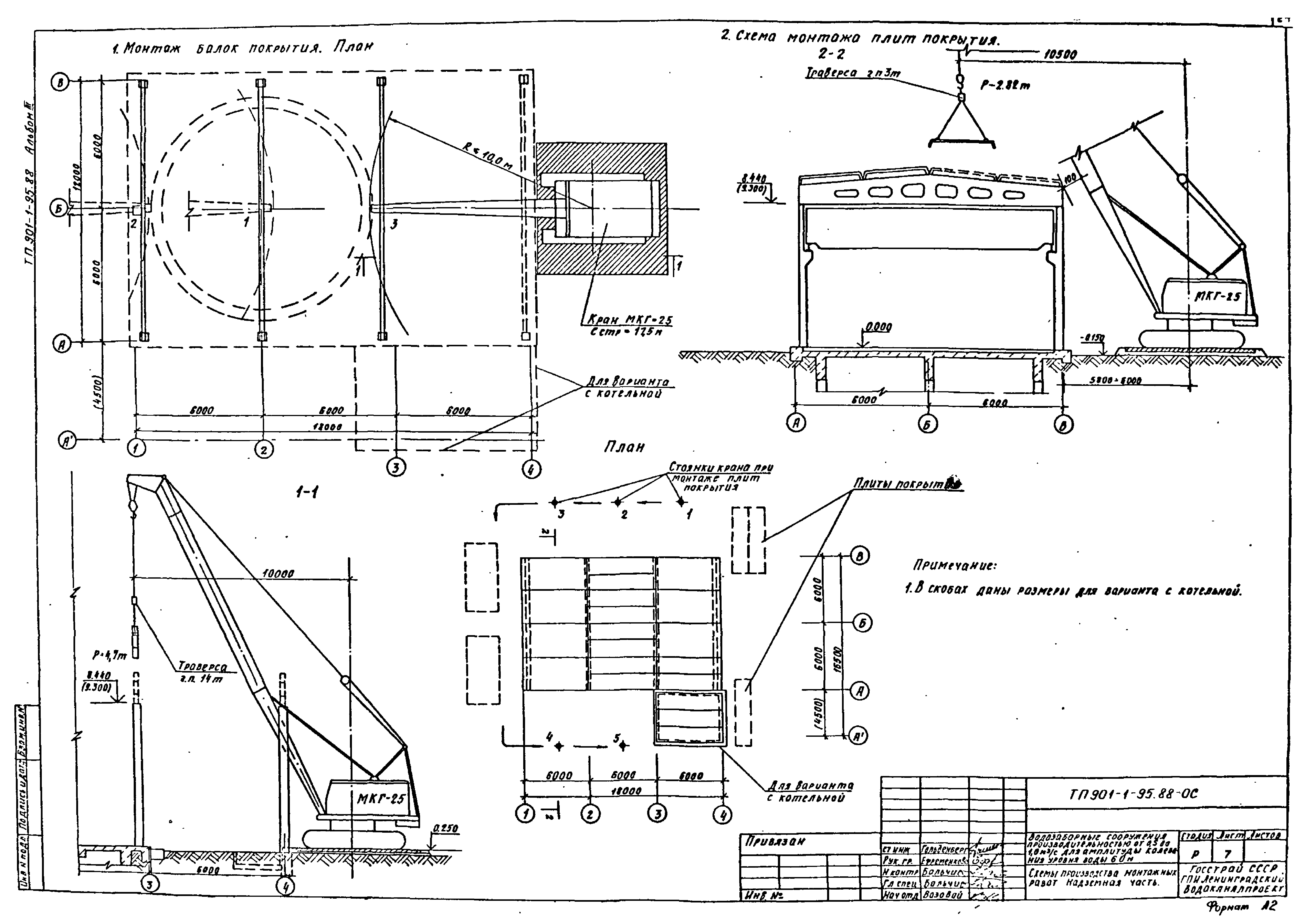
   Схемы производства монтажных работ. Надземная часть
   График производства работ
Разработан: Ленинградский Водоканалпроект
Утверждён:06.04.1988 Госстрой СССР (Государственный комитет Совета Министров СССР по делам строительства) (USSR Gosstroy 25)
Издан: ЦИТП Госстроя СССР (CITP, Gosstroy (USSR) 1988 г. )
Расположен в:Техническая документация Строительство Справочные документы Типовые строительные конструкции, изделия и узлы Общероссийский строительный каталог Промышленные предприятия, здания и сооружения Здания и сооружения санитарно-технические Водоснабжение Водозаборные сооружения
Типовой проект 901-1-95.88Типовой проект 901-1-95.88Типовой проект 901-1-95.88Типовой проект 901-1-95.88Типовой проект 901-1-95.88Типовой проект 901-1-95.88Типовой проект 901-1-95.88Типовой проект 901-1-95.88Типовой проект 901-1-95.88Типовой проект 901-1-95.88Типовой проект 901-1-95.88Типовой проект 901-1-95.88Типовой проект 901-1-95.88Типовой проект 901-1-95.88Типовой проект 901-1-95.88Типовой проект 901-1-95.88Типовой проект 901-1-95.88Типовой проект 901-1-95.88Типовой проект 901-1-95.88Типовой проект 901-1-95.88Типовой проект 901-1-95.88Типовой проект 901-1-95.88Типовой проект 901-1-95.88Типовой проект 901-1-95.88Типовой проект 901-1-95.88Типовой проект 901-1-95.88

© 2013 Ёшкин Кот :-) Карта сайта