Информационная система
«Ёшкин Кот»

Скачать базу одним архивом
Скачать обновления
История создания базы
Карта сайта

Скачать Типовой проект 901-1-93.88 Альбом VII.1. Задания заводам-изготовителям на комплектные электротехнические устройства (из ТП 901-1-91.88)

Дата актуализации: 10.08.2017

Типовой проект 901-1-93.88

Альбом VII.1. Задания заводам-изготовителям на комплектные электротехнические устройства (из ТП 901-1-91.88)

Обозначение: Типовой проект 901-1-93.88
Обозначение англ: 901-1-93.88
Статус:не определен законодательством
Название рус.:Альбом VII.1. Задания заводам-изготовителям на комплектные электротехнические устройства (из ТП 901-1-91.88)
Дата добавления в базу:01.10.2014
Дата актуализации:05.05.2017
Дата введения:05.07.1988
Оглавление:Задание заводу-изготовителю на РУ
ЭМ.33И1-1 РУ кВ. Опросный лист
Задание заводу-изготовителю на НКУ
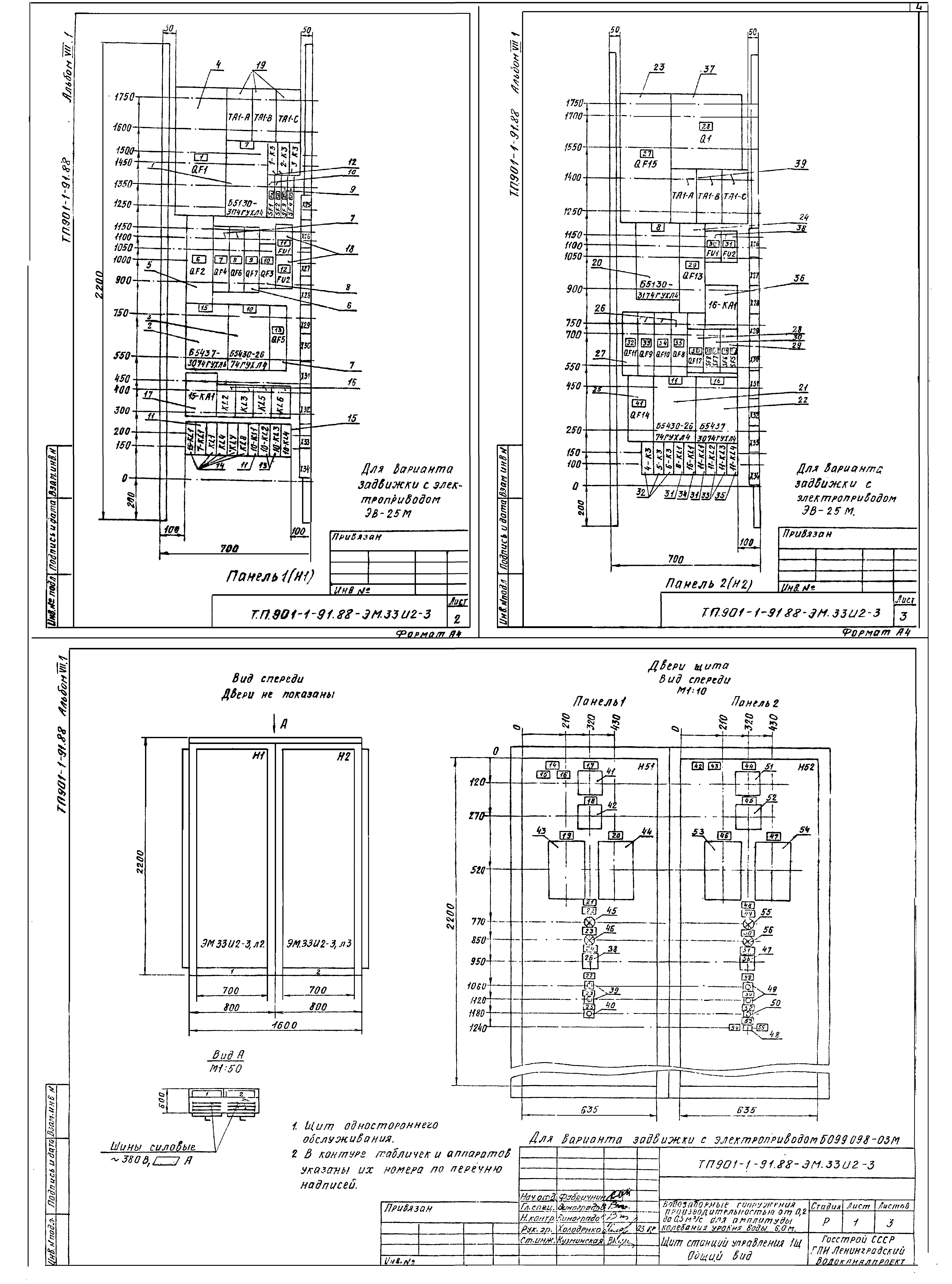
ЭМ.33И2-1 Перечень чертежей ЭМ 33И2
ЭМ.33И2-2 Перечень комплектных устройств
Щит станций управления 1Щ
ЭМ.33И2-3 Общий вид
ЭМ.33И2-4 Технические данные аппаратов
ЭМ.33И2-5 Перечень надписей
ЭМ.33И2-6 Схема электрическая соединений
Щит станций управления и сигнализации 2Щ
ЭМ.33И2-7 Общий вид
ЭМ.33И2-8 Технические данные аппаратов
ЭМ.33И2-9 Перечень надписей
ЭМ.33И2-10 Схема электрическая соединений
Разработан: Ленинградский Водоканалпроект
Утверждён:06.04.1988 Госстрой СССР (Государственный комитет Совета Министров СССР по делам строительства) (USSR Gosstroy 25)
Издан: ЦИТП Госстроя СССР (CITP, Gosstroy (USSR) 1988 г. )
Расположен в:Техническая документация Строительство Справочные документы Типовые строительные конструкции, изделия и узлы Общероссийский строительный каталог Промышленные предприятия, здания и сооружения Здания и сооружения санитарно-технические Водоснабжение Водозаборные сооружения
Типовой проект 901-1-93.88Типовой проект 901-1-93.88Типовой проект 901-1-93.88Типовой проект 901-1-93.88Типовой проект 901-1-93.88Типовой проект 901-1-93.88Типовой проект 901-1-93.88Типовой проект 901-1-93.88Типовой проект 901-1-93.88Типовой проект 901-1-93.88Типовой проект 901-1-93.88Типовой проект 901-1-93.88Типовой проект 901-1-93.88Типовой проект 901-1-93.88Типовой проект 901-1-93.88Типовой проект 901-1-93.88Типовой проект 901-1-93.88Типовой проект 901-1-93.88Типовой проект 901-1-93.88Типовой проект 901-1-93.88

© 2013 Ёшкин Кот :-) Карта сайта