Скачать Типовые материалы для проектирования 820-04-51.93 Альбом 1. Пояснительная записка. Архитектурно-строительные решенияДата актуализации: 10.08.2017 Типовые материалы для проектирования 820-04-51.93
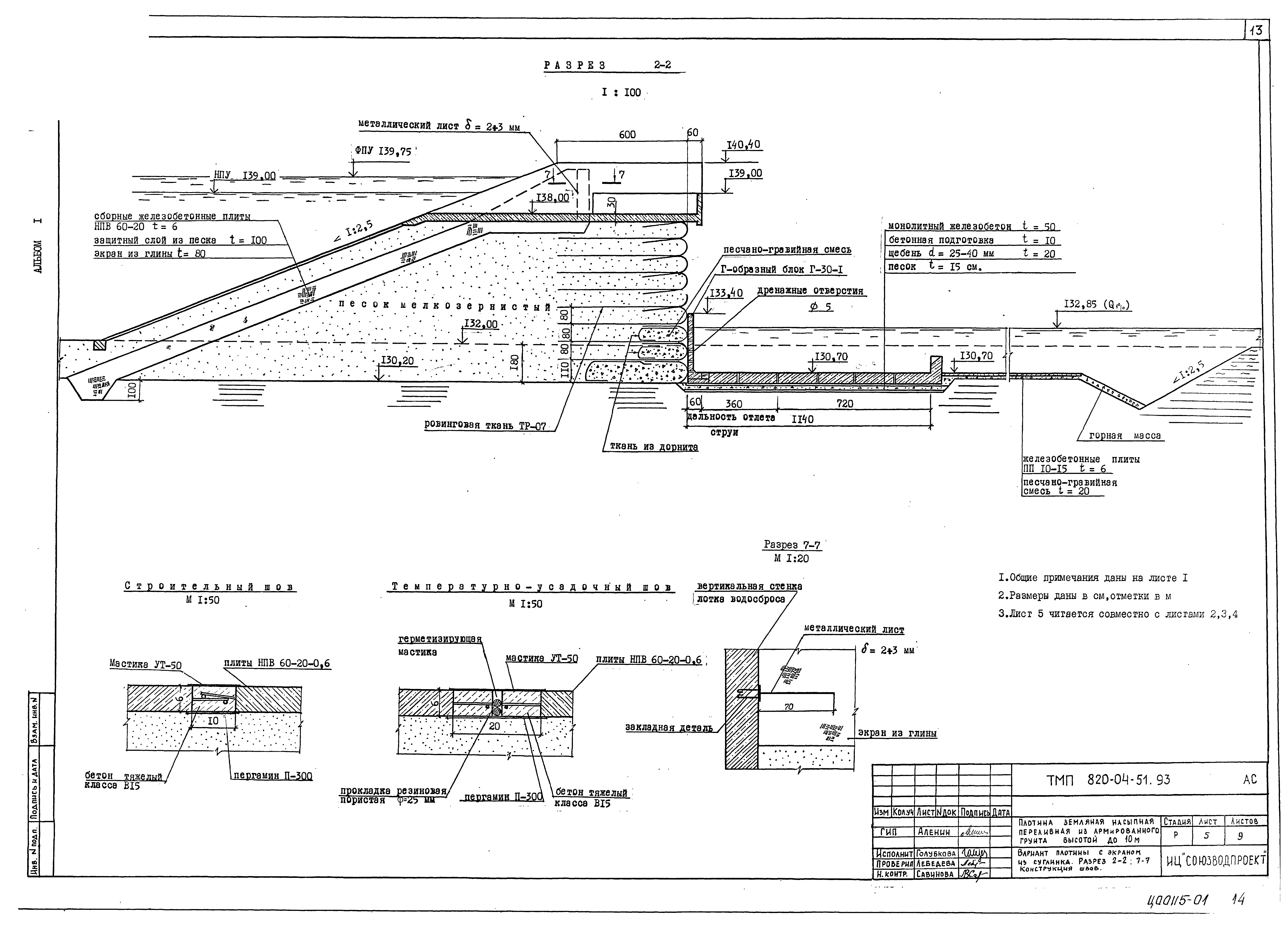
Альбом 1. Пояснительная записка. Архитектурно-строительные решенияОбозначение: | Типовые материалы для проектирования 820-04-51.93 | Обозначение англ: | 820-04-51.93 | Статус: | cправочные материалы, мп, тпр | Название рус.: | Альбом 1. Пояснительная записка. Архитектурно-строительные решения | Дата добавления в базу: | 01.10.2014 | Дата актуализации: | 05.05.2017 | Дата введения: | 18.12.1993 | Оглавление: | Содержание альбома Пояснительная записка Архитектурно-строительные решения Общие данные План гидроузла Разрез 1-1 Вариант плотины с экраном из полиэтиленовой пленки. Разрезы 2-2, 5-5, 6-6 Вариант плотины с экраном из суглинка. Разрезы 2-2, 7-7 Разрез 4-4. Полигональный водослив. Вид а-а Вариант сборной железобетонной стенки на участке водосброса. Разрезы 8-8, 9-9, 10-10 Водовыпуск трубчатый. Разрез 3-3 Вариант низового откоса армированного на участке водосброса. Вид плотины с нижнего бьефа. План | Разработан: | ИЦ Союзводпроект
| Утверждён: | 17.12.1993 Главпроект Госстроя России (9-1/291)
| Расположен в: |
|
                
|