Информационная система
«Ёшкин Кот»

Скачать базу одним архивом
Скачать обновления
История создания базы
Карта сайта

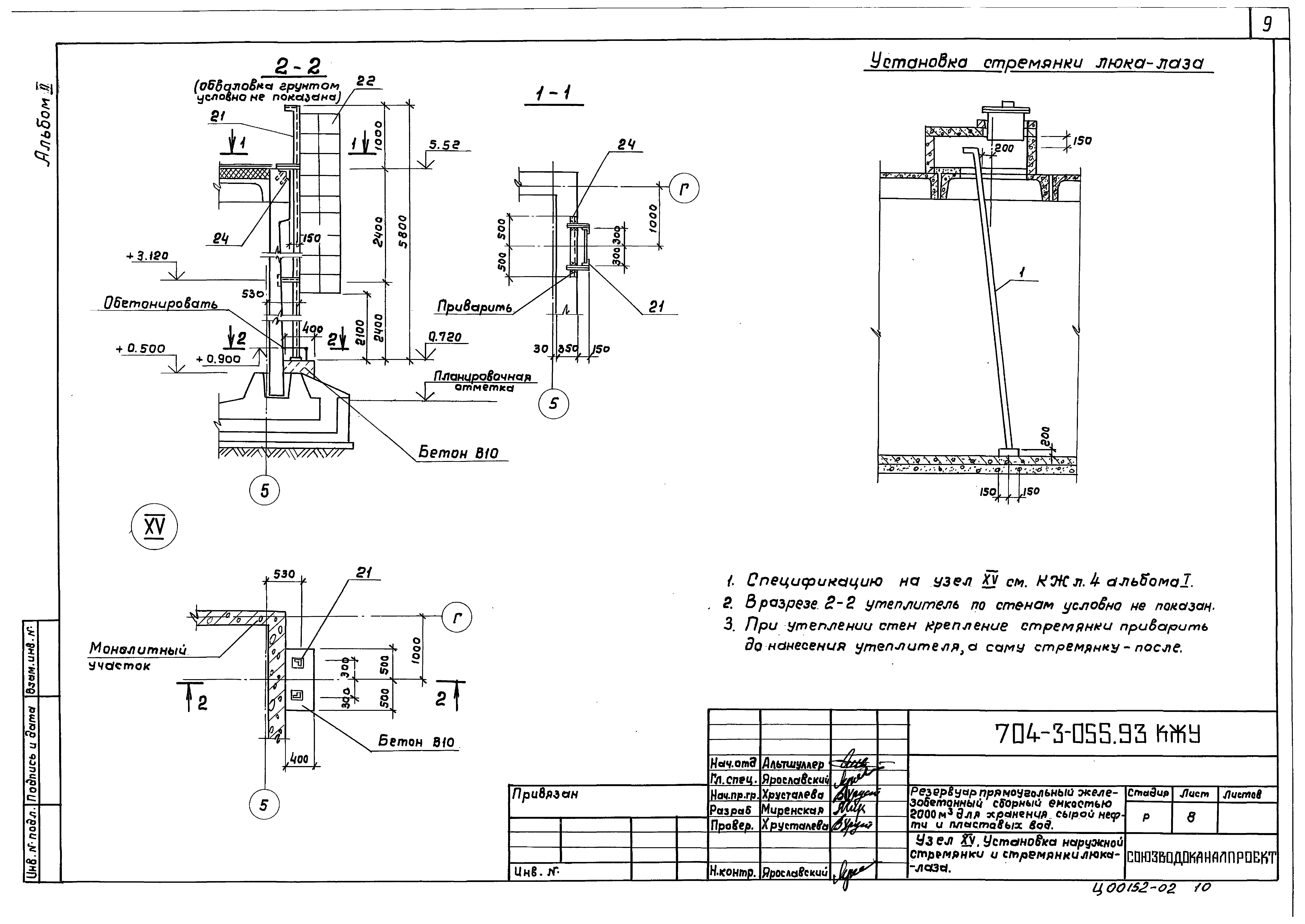
Скачать Типовые проектные решения 704-3-056.93 Альбом II. Узлы (из ТПР 704-3-055.93)

Дата актуализации: 10.08.2017

Типовые проектные решения 704-3-056.93

Альбом II. Узлы (из ТПР 704-3-055.93)

Обозначение: Типовые проектные решения 704-3-056.93
Обозначение англ: 704-3-056.93
Статус:cправочные материалы, мп, тпр
Название рус.:Альбом II. Узлы (из ТПР 704-3-055.93)
Дата добавления в базу:01.10.2014
Дата актуализации:05.05.2017
Дата введения:28.12.1993
Оглавление:Общие данные
Узлы I, II, III. Стыки элементов покрытия. Деталь заделки зуба
Узлы IV, V, VI. Стыки заделки колонн и стеновых панелей
Спецификация к узлам VII - XIV. Узел XVI
Узлы VII, X, XI. Стыки ригелей с колоннами и плит покрытия с панелями
Узлы VIII, IX, XII, XIII. Стыки ригелей с колоннами и плит покрытия с панелями
Узел XIV. Камера люка-лаза. Сборочный чертеж
Узел XV. Установка наружной стремянки и стремянки люка-лаза
Деталь установки технологических патрубков и прохода технологических труб через стены
Монолитные участки УМ1, УМ1н, УМ1А. Опалубочный чертеж
Монолитные участки УМ1, УМ1н, УМ1А. Арматурный чертеж
Монолитные участки УМ1, УМ1н, УМ1А. Узлы, детали. Ведомость расхода стали
Разработан: ГПИ Союзводоканалпроект
Утверждён:16.12.1993 Госстрой России (Russian Federation Gosstroy 9-3-3/288)
Расположен в:Техническая документация Строительство Справочные документы Типовые строительные конструкции, изделия и узлы Общероссийский строительный каталог Промышленные предприятия, здания и сооружения Предприятия, здания и сооружения складские Резервуары и склады для нефти и нефтепродуктов Резервуары железобетонные для мазута и нефти
Типовые проектные решения 704-3-056.93Типовые проектные решения 704-3-056.93Типовые проектные решения 704-3-056.93Типовые проектные решения 704-3-056.93Типовые проектные решения 704-3-056.93Типовые проектные решения 704-3-056.93Типовые проектные решения 704-3-056.93Типовые проектные решения 704-3-056.93Типовые проектные решения 704-3-056.93Типовые проектные решения 704-3-056.93Типовые проектные решения 704-3-056.93Типовые проектные решения 704-3-056.93Типовые проектные решения 704-3-056.93Типовые проектные решения 704-3-056.93

© 2013 Ёшкин Кот :-) Карта сайта