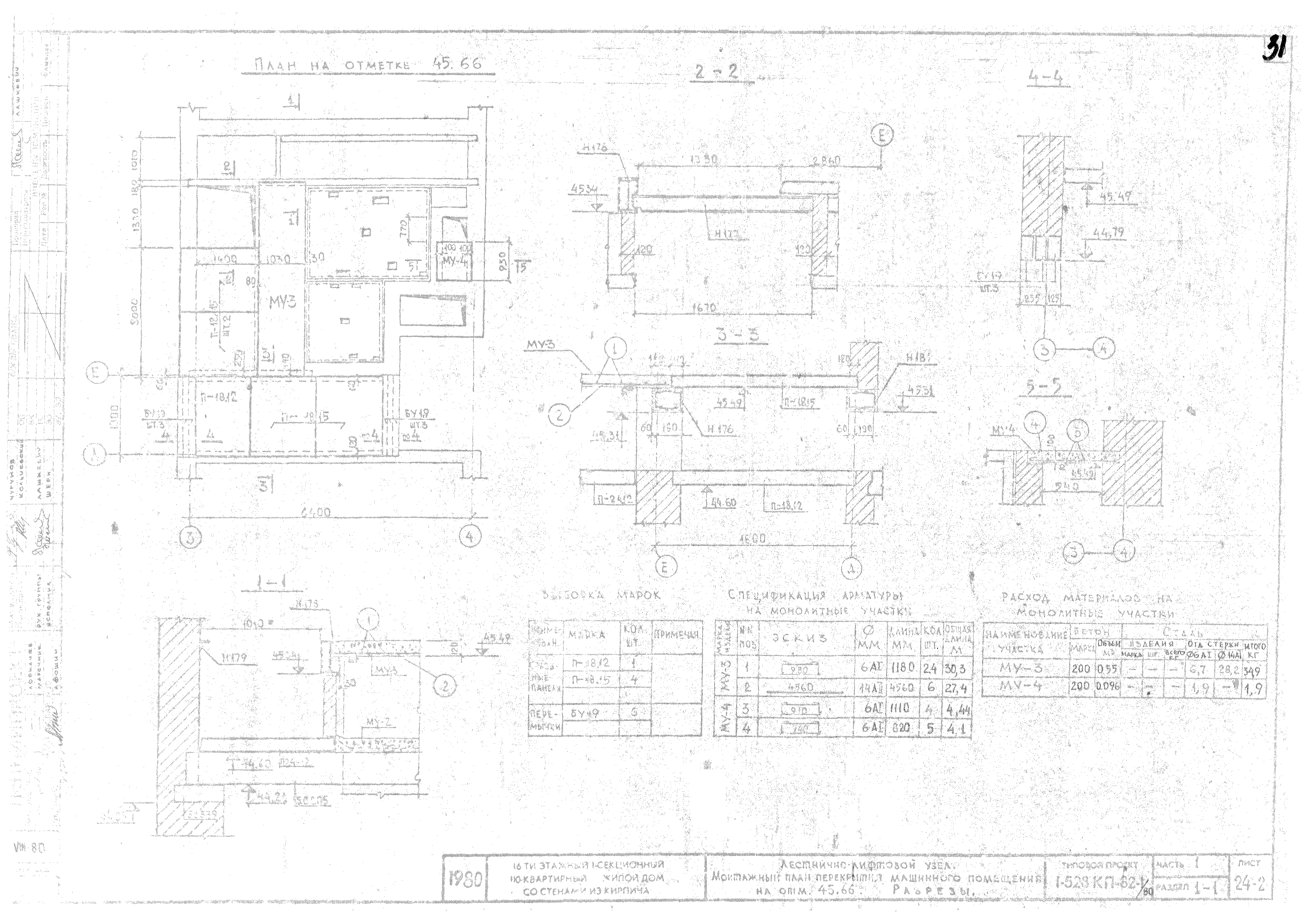
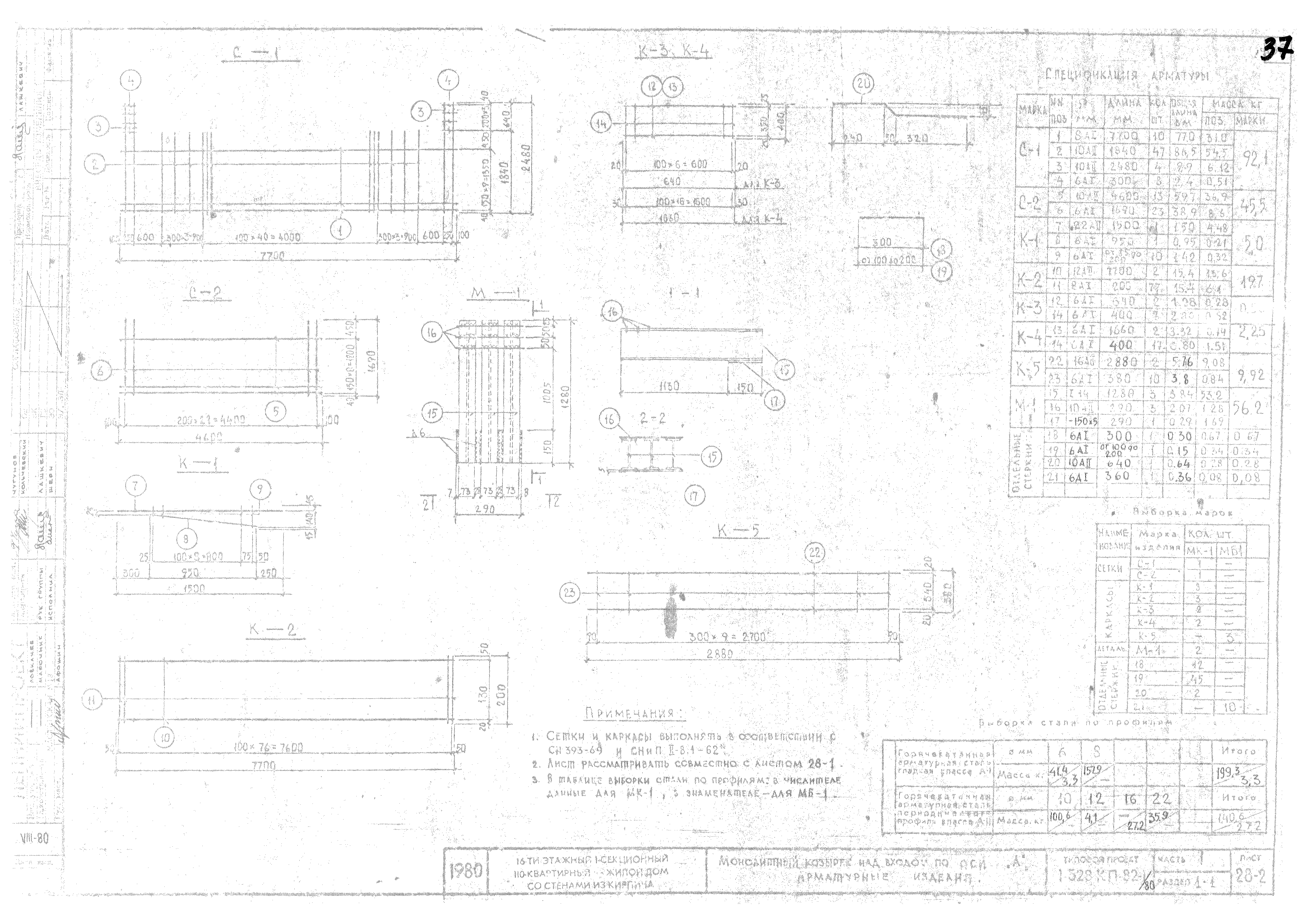
Скачать Типовой проект 1-528 КП-82-1/80 Часть 1. Архитектурно-строительные чертежи выше отм. 0.00Дата актуализации: 10.08.2017 Типовой проект 1-528 КП-82-1/80
Часть 1. Архитектурно-строительные чертежи выше отм. 0.00Обозначение: | Типовой проект 1-528 КП-82-1/80 | Обозначение англ: | 1-528 КП-82-1/80 | Статус: | cправочные материалы, мп, тпр | Название рус.: | Часть 1. Архитектурно-строительные чертежи выше отм. 0.00 | Дата добавления в базу: | 01.10.2014 | Дата актуализации: | 05.05.2017 | Дата введения: | 05.09.1980 | Разработан: | Ленниипроект
| Утверждён: | 05.09.1980 Ленниипроект (83-80)
| Расположен в: |
|
                                             
|