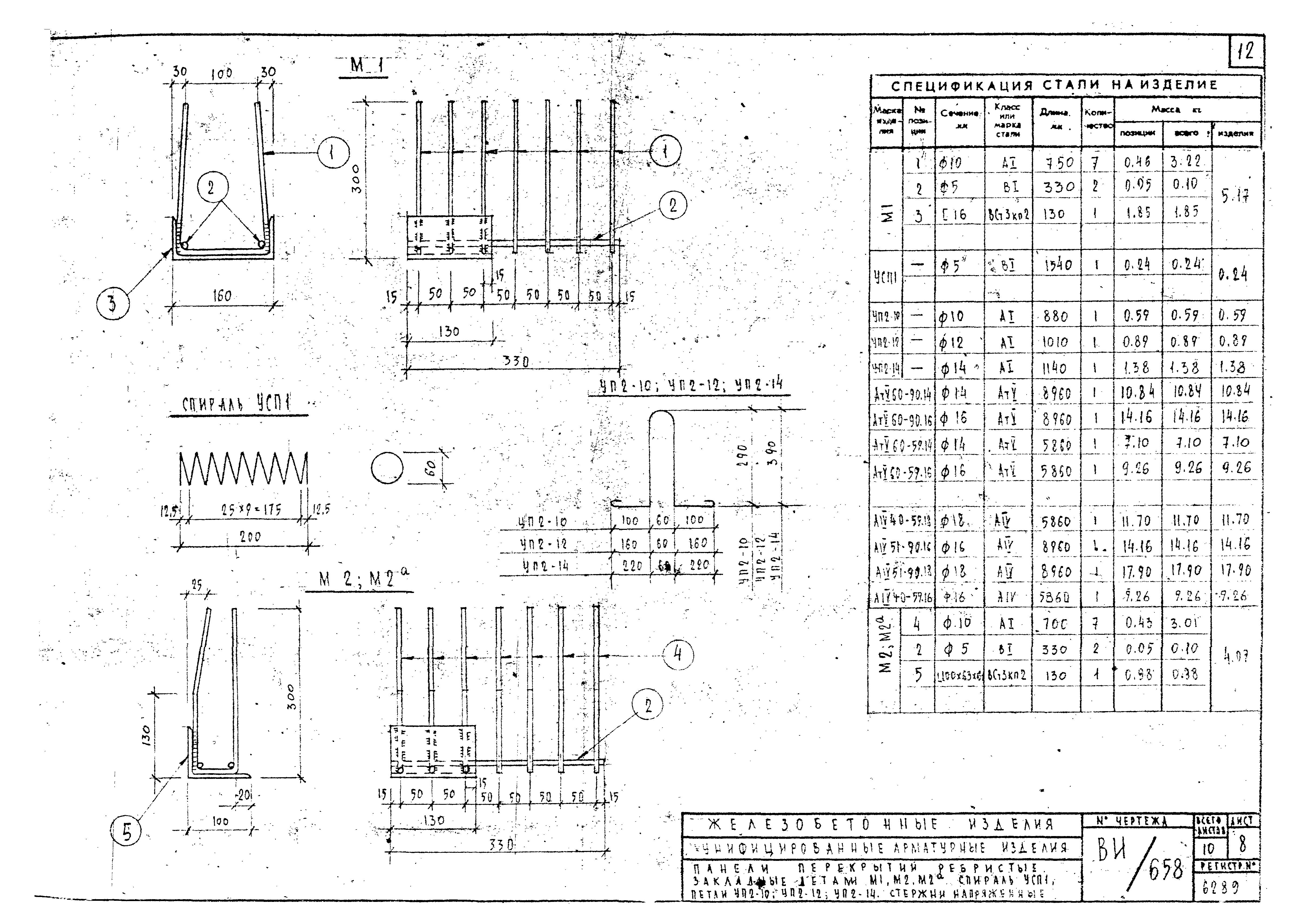
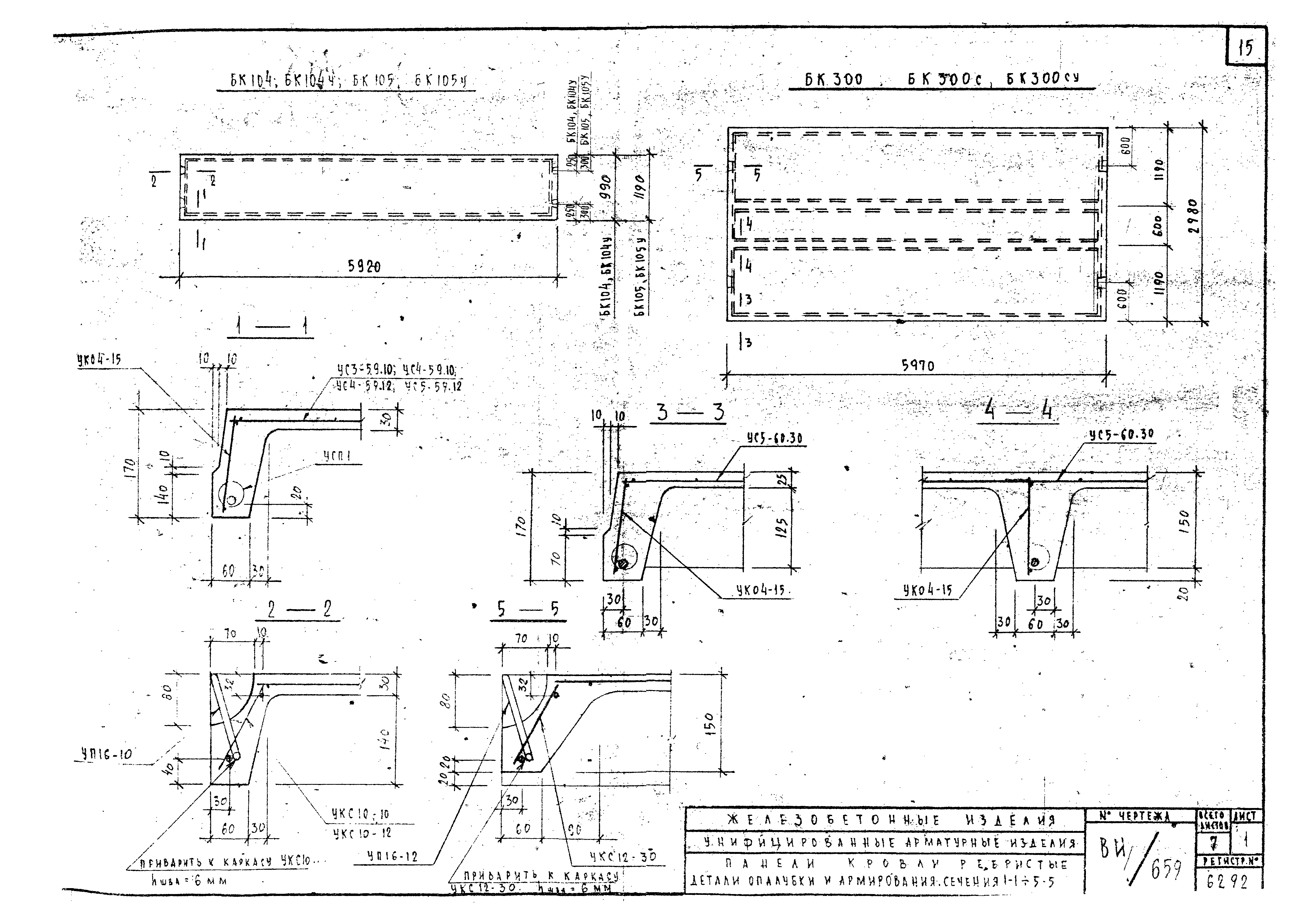
Скачать Альбом ВИ-37-76 Панели перекрытий и кровли. Унифицированные арматурные изделияДата актуализации: 10.08.2017 Альбом ВИ-37-76
Панели перекрытий и кровли. Унифицированные арматурные изделияОбозначение: | Альбом ВИ-37-76 | Обозначение англ: | ВИ-37-76 | Статус: | cправочные материалы, мп, тпр | Название рус.: | Панели перекрытий и кровли. Унифицированные арматурные изделия | Дата добавления в базу: | 01.10.2014 | Дата актуализации: | 05.05.2017 | Дата введения: | 22.06.1976 | Разработан: | Ленпроект
| Утверждён: | 22.06.1976 Ленпроект (164)
| Расположен в: |
|
                      
|