Скачать Типовой проект 705-4-55 Альбом III. Проект производства работ - приспособления для монтажа резервуаров емкостью 50, 80, 125, 320, 500, 800 куб. мДата актуализации: 10.08.2017 Типовой проект 705-4-55
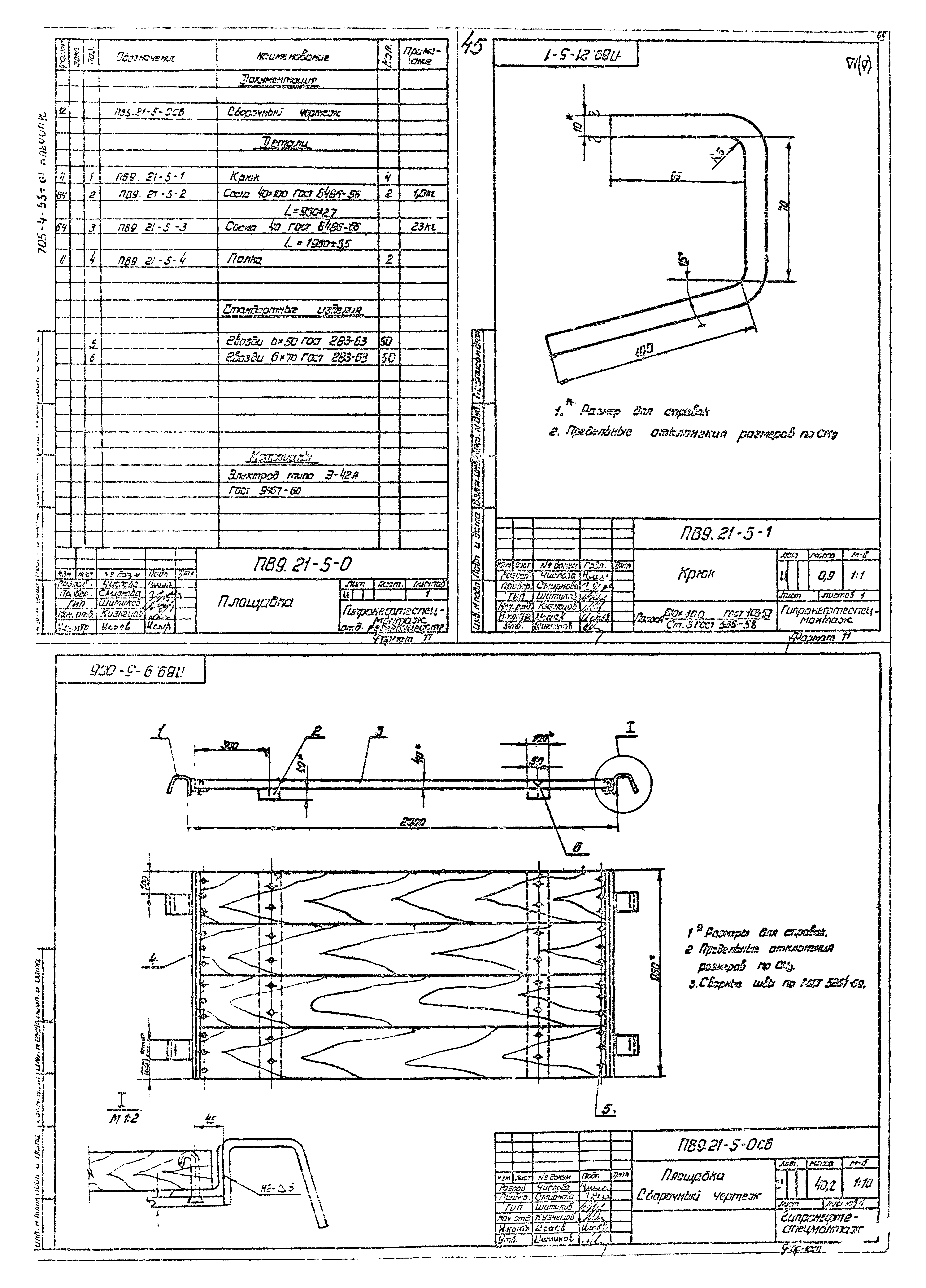
Альбом III. Проект производства работ - приспособления для монтажа резервуаров емкостью 50, 80, 125, 320, 500, 800 куб. мОбозначение: | Типовой проект 705-4-55 | Обозначение англ: | 705-4-55 | Статус: | действует | Название рус.: | Альбом III. Проект производства работ - приспособления для монтажа резервуаров емкостью 50, 80, 125, 320, 500, 800 куб. м | Дата добавления в базу: | 01.10.2014 | Дата актуализации: | 05.05.2017 | Оглавление: | ПВ2.4-0-0 Приспособление для разметки днища ПВ2.4-0-0СБ Приспособление для разметки днища. Сборочный чертеж ПВ2.4-0-1 Чертилка ПВ2.4-4-1 Пластина ПВ2.4-3-3 Бобышка ПВ2.4-0-3 Ось ПВ2.4-2-0 Кронштейн ПВ2.4-2-0СБ Кронштейн. Сборочный чертеж ПВ2.4-1-0 Ось ПВ2.4-1-0СБ Ось. Сборочный чертеж ПВ2.4-3-1 Бобышка ПВ2.4-2-1 Пластина ПВ2.4-3-0 Движок ПВ2.4-3-0СБ Движок. Сборочный чертеж ПВ2.4-4-0 Штанга ПВ2.4-4-0СБ Штанга. Сборочный чертеж ПВ4.1-0-0 Приспособление для прижатия кромок днища при сварке ПВ4.1-0-0СБ Приспособление для прижатия кромок днища при сварке. Сборочный чертеж ПВ4.1-0-1 Кронштейн ПВ4.1-1-0 Балка ПВ4.1-1-0СБ Балка. Сборочный чертеж ПВ4.1-0-3 Кольцо прижимное ПВ4.1-0-2 Винт ПВ4.1-2-0 Ползун ПВ4.1-2-0СБ Ползун. Сборочный чертеж ПВ4.1-0-5 Подпятник ПВ7.9-0-0 Стойка монтажная ПВ7.9-0-0СБ Стойка монтажная. Сборочный чертеж ПВ7.9-2-1 Ребро ПВ7.9-1-0 Стойка верхняя ПВ7.9-1-0СБ Стойка верхняя. Сборочный чертеж ПВ7.9-2-0 Стойка нижняя ПВ7.9-2-0СБ Стойка нижняя. Сборочный чертеж ПВ7.9-2-2 Опорное кольцо ПВ9.9-1-7 Фланец ПВ7.9-1-1 Ребро ПВ7.9-1-2 Ребро ПВ7.9-1-3 Ребро ПВ9.18-0-0СБ Лестница для монтажной стойки. Сборочный чертеж ПВ9.18-0-0 Лестница для монтажной стойки ПВ9.18-0-4 Дуга ПВ5к.3-0-0СБ Шарнир для подъема рулона массой до 30 т. Сборочный чертеж ПВ5к.3-3-0 Ось вертикальная ПВ5к.3-3-0СБ Ось вертикальная. Сборочный чертеж ПВ5к.3-0-3 Ограничитель ПВ5к.3-0-0 Шарнир для подъема рулона массой до 30 т ПВ5к.3-1-0 Опора ПВ5к.3-1-0СБ Опора. Сборочный чертеж ПВ5к.3-2-0 Ось горизонтальная ПВ5к.3-2-0СБ Ось горизонтальная. Сборочный чертеж ПВ5.17-0-0 Траверса для подъема рулона ПВ5.17-0-0СБ Траверса для подъема рулона. Сборочный чертеж ПВ5.17-0-2 Скоба ПВ3.2-0-0 Скоба для развертывания рулона ПВ3.2-0-0СБ Скоба для развертывания рулона. Сборочный чертеж ПВ3.2-0-1 Палец ПВ3.2-1-0 Втулка ПВ3.2-1-0СБ Втулка. Сборочный чертеж ПВ3.2-1-2 Кольцо ПВ3.2-1-1 Втулка ПВ3.2-2-0 Корпус ПВ3.2-2-0СБ Корпус. Сборочный чертеж ПВ8.4-0-0 Кронштейн для расчалок ПВ8.4-0-0СБ Кронштейн для расчалок. Сборочный чертеж ПВ3.2-2-2 Щека ПВ12.1-0-0 Отвес ПВ12.2-0-0 Поддон ПВ8.5-0-0 Клиновый упор ПВ8.5-0-0СБ Клиновый упор. Сборочный чертеж ПВ8.5-0-3 Щека ПВ8.5-0-1 Палец ПВ8.5-0-5 Диафрагма ПВ8.5-0-13 Шайба ПВ9.19-0-0 Площадка ПВ9.19-0-0СБ Площадка. Сборочный чертеж ПВ9.19-0-5 Уголок ПВ9.20-0-0 Лестница ПВ9.20-0-0СБ Лестница. Сборочный чертеж ПВ9.7-0-0 Лестница навесная ПВ9.7-0-0СБ Лестница навесная. Сборочный чертеж ПВ9.7-1-0 Лестница нижняя ПВ9.7-1-0СБ Лестница нижняя. Сборочный чертеж ПВ9.7-2-0 Лестница верхняя ПВ9.7-2-0СБ Лестница верхняя. Сборочный чертеж ПВ4.3-0-0 Струбцина ПВ4.3-0-0СБ Струбцина. Сборочный чертеж ПВ4.3-1-0 Корпус ПВ4.3-1-0СБ Корпус. Сборочный чертеж ПВ4.3-1-2 Гайка ПВ9.8-0-0 Рама ПВ9.8-0-0СБ Рама. Сборочный чертеж ПВ9.8-0-4 Ребро ПВ7.11-0-0 Клин ПВ7.11-0-0СБ Клин. Сборочный чертеж ПВ7.11-0-1 Уголок ПВ10.2-0-0 Строп четырехветвевой ПВ10.2-0-0СБ Строп четырехветвевой. Сборочный чертеж ПВ10.3-0-0 Строп кольцевой ПВ10.3-0-0СБ Строп кольцевой. Сборочный чертеж ПВ10.1-0-0 Строп трехветвевой ПВ10.1-0-0СБ Строп трехветвевой. Сборочный чертеж ПВ10.1-0-1 Кольцо ПВ5.6-0-0 Козлы для демонтажа монтажной стойки ПВ5.6-0-0СБ Козлы для демонтажа монтажной стойки. Сборочный чертеж ПВ5.6-0-3 Труба ПВ5.7-0-0 Ролик отводной для демонтажа монтажной стойки ПВ5.7-0-0СБ Ролик отводной для демонтажа монтажной стойки. Сборочный чертеж ПВ5.7-0-4 Щека ПВ9.21-0-0 Леса навесные для замыкания вертикального монтажного стыка стенки ПВ9.21-0-0СБ Леса навесные для замыкания вертикального монтажного стыка стенки. Сборочный чертеж ПВ9.21-0-1 Ограждение жесткое ПВ9.21-1-0 Лестница ПВ9.21-1-0СБ Лестница. Сборочный чертеж ПВ9.21-4-0 Боковина ПВ9.21-3-0 Ограждение ПВ9.21-3-0СБ Ограждение. Сборочный чертеж ПВ9.21-3-1 Дуга ПВ9.21-4-0СБ Боковина. Сборочный чертеж ПВ9.21-2-0 Ограждение мягкое ПВ9.21-2-0СБ Ограждение мягкое. Сборочный чертеж ПВ9.21-5-0 Площадка ПВ9.21-5-0СБ Площадка. Сборочный чертеж ПВ9.21-5-1 Крюк ПВ9.11-0-0 Леса навесные для замыкания вертикального монтажного стыка ПВ9.11-0-0СБ Леса навесные для замыкания вертикального монтажного стыка. Сборочный чертеж ПВ9.11-0-1 Ограждение жесткое ПВ9.11-1-0 Лестница ПВ9.11-1-0СБ Лестница. Сборочный чертеж ПВ9.11-3-1 Дуга ПВ9.11-2-0 Ограждение мягкое ПВ9.11-2-0СБ Ограждение мягкое. Сборочный чертеж ПВ9.11-4-0 Боковина ПВ9.11-3-0 Ограждение верхнее ПВ9.11-3-0СБ Ограждение верхнее. Сборочный чертеж ПВ9.11-5-4 Полка ПВ9.11-4-0СБ Боковина. Сборочный чертеж ПВ9.11-5-0 Площадка ПВ9.11-5-0СБ Площадка. Сборочный чертеж ПВ9.11-5-1 Крюк ПВ9.10-0-0СБ Леса навесные для замыкания вертикального монтажного стыка стенки. Сборочный чертеж ПВ9.10-0-0 Леса навесные для замыкания вертикального монтажного стыка стенки ПВ9.10-0-1 Ограждение жесткое ПВ9.10-1-0 Лестница верхняя ПВ9.10-2-0 Лестница нижняя ПВ9.10-1-0СБ Лестница верхняя. Сборочный чертеж ПВ9.10-2-0СБ Лестница нижняя. Сборочный чертеж ПВ9.10-3-0 Ограждение верхнее ПВ9.10-3-0СБ Ограждение верхнее. Сборочный чертеж ПВ9.10-5-4 Полка ПВ9.10-4-0 Ограждение нижнее ПВ9.10-4-0СБ Ограждение нижнее. Сборочный чертеж ПВ9.10-4-1 Дуга ПВ9.10-5-0 Площадка ПВ9.10-5-0СБ Площадка. Сборочный чертеж ПВ9.10-5-1 Крюк ПВ9.10-6-0 Ограждение мягкое ПВ9.10-6-0СБ Ограждение мягкое. Сборочный чертеж ПВ9.10-7-0 Боковина ПВ9.10-7-0СБ Боковина. Сборочный чертеж Таблица приспособлений, необходимых для монтажа резервуаров | Разработан: | Гипронефтеспецмонтаж Минмонтажспецстроя СССР (Giproneftespetsmontazh, Minmontazhspetsstroy (USSR) )
| Утверждён: | 06.08.1975 Министерство черной металлургии СССР
| Расположен в: |
|
                                                           
|