Информационная система
«Ёшкин Кот»

Скачать базу одним архивом
Скачать обновления
История создания базы
Карта сайта

Скачать Типовой проект 705-4-60 Альбом I. Стальные конструкции

Дата актуализации: 10.08.2017

Типовой проект 705-4-60

Альбом I. Стальные конструкции

Обозначение: Типовой проект 705-4-60
Обозначение англ: 705-4-60
Статус:действует
Название рус.:Альбом I. Стальные конструкции
Дата добавления в базу:01.10.2014
Дата актуализации:05.05.2017
Оглавление:Содержание альбома
Пояснительная записка
Техническая спецификация стали (для продуктов с плотностью до 1,25 т/куб. м)
Техническая спецификация стали (для продуктов с плотностью свыше 1,25 т/куб. м до 1,8 т/куб. м)
Общий вид
Днище
Стенка
Схема расположения щитов крыши
Щит крыши
Центральное кольцо крыши
Схема расположения люков и лестницы-стремянки
Люк верхний Ду800
Люк нижний Ду800
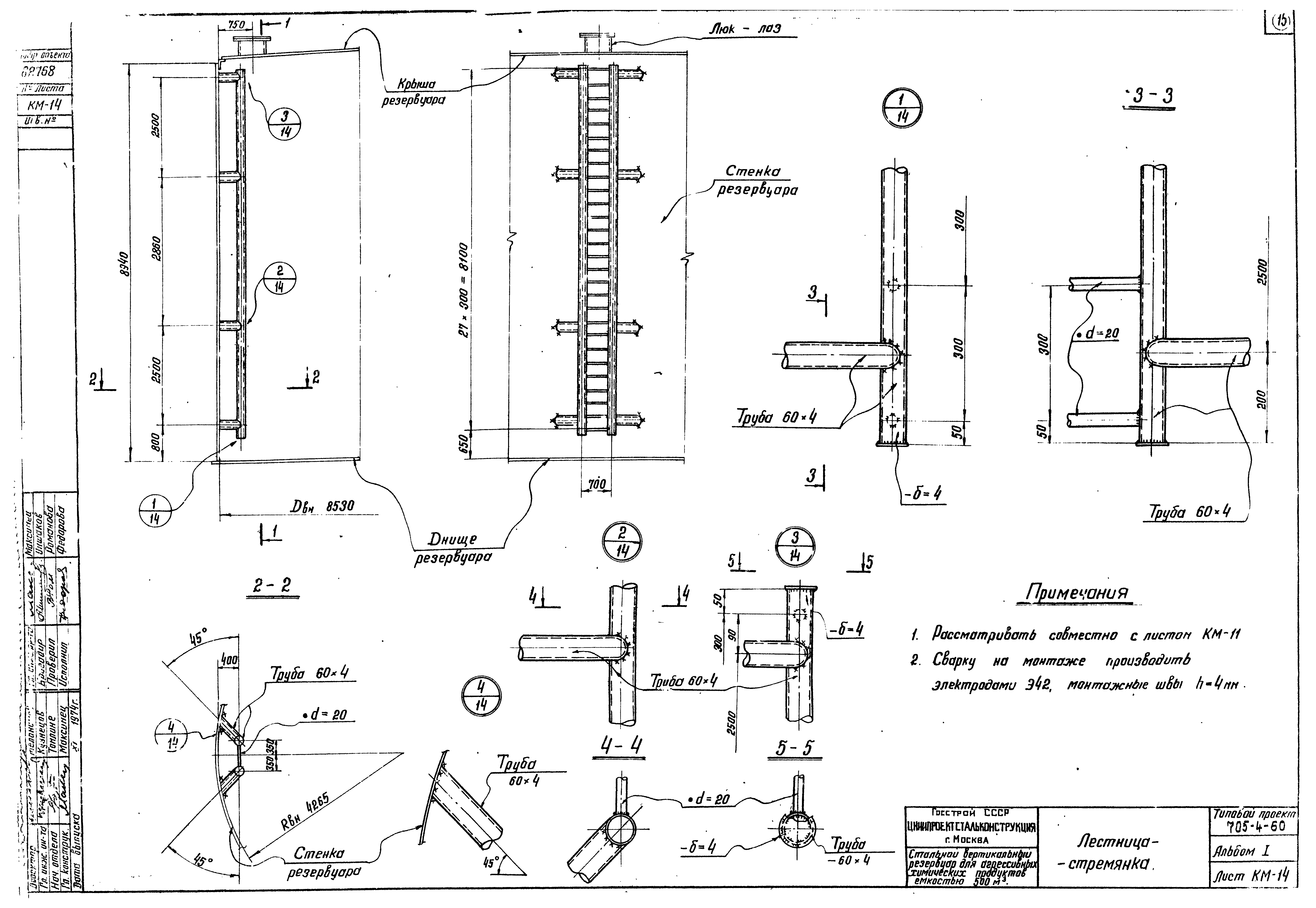
Лестница-стремянка
Разработан: ЦНИИпроектстальконструкция
Утверждён:06.08.1975 Министерство черной металлургии СССР
Расположен в:Техническая документация Строительство Справочные документы Типовые строительные конструкции, изделия и узлы Общероссийский строительный каталог Промышленные предприятия, здания и сооружения Предприятия, здания и сооружения складские Резервуары и склады для нефти и нефтепродуктов Резервуары стальные для нефти и нефтепродуктов
Типовой проект 705-4-60Типовой проект 705-4-60Типовой проект 705-4-60Типовой проект 705-4-60Типовой проект 705-4-60Типовой проект 705-4-60Типовой проект 705-4-60Типовой проект 705-4-60Типовой проект 705-4-60Типовой проект 705-4-60Типовой проект 705-4-60Типовой проект 705-4-60Типовой проект 705-4-60Типовой проект 705-4-60Типовой проект 705-4-60Типовой проект 705-4-60

© 2013 Ёшкин Кот :-) Карта сайта