Информационная система
«Ёшкин Кот»

Скачать базу одним архивом
Скачать обновления
История создания базы
Карта сайта

Скачать Серия 3.820-9 Выпуск 3/91. Колодцы-гасители объемные. Рабочие чертежи

Дата актуализации: 10.08.2017

Серия 3.820-9

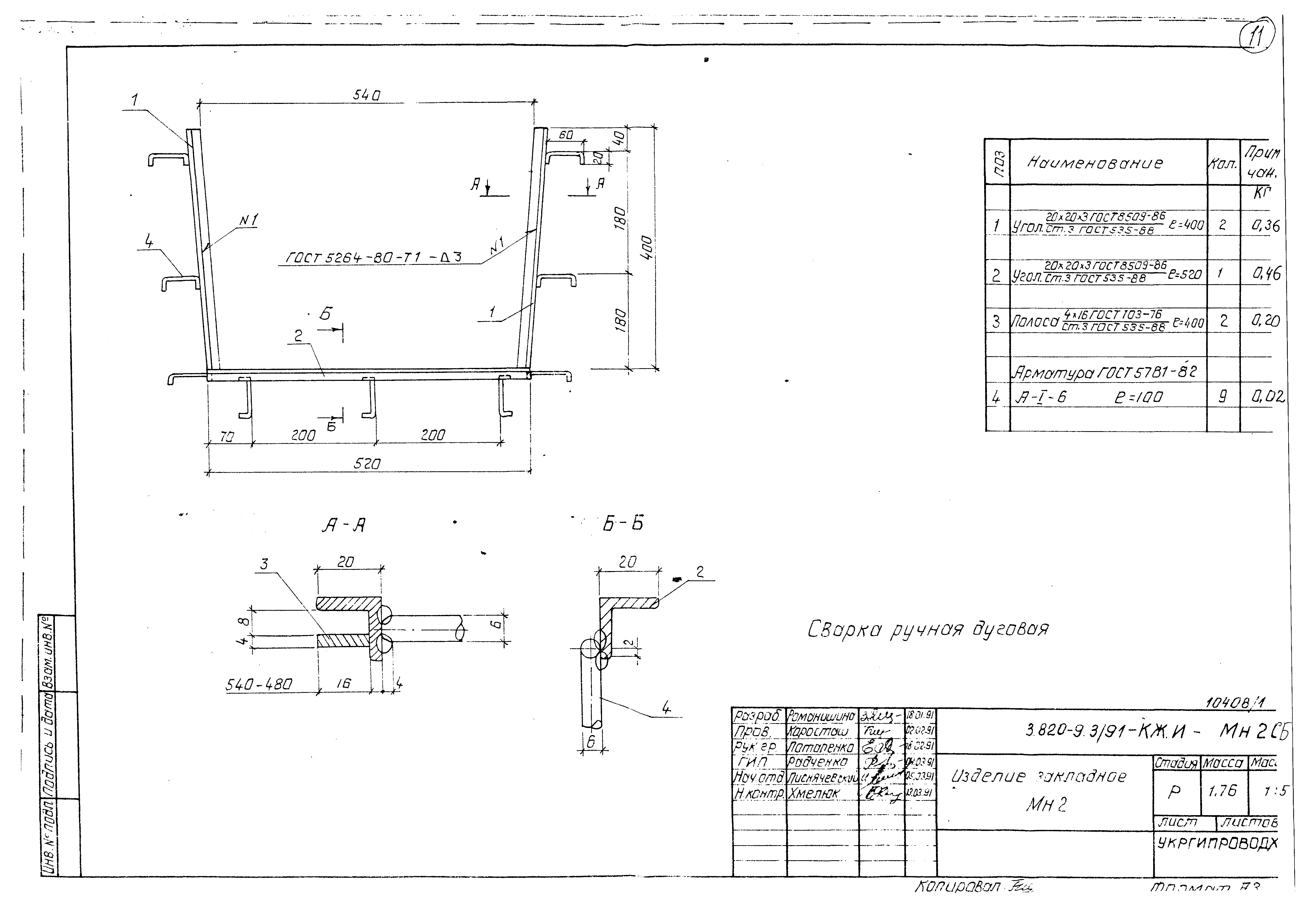
Выпуск 3/91. Колодцы-гасители объемные. Рабочие чертежи

Обозначение: Серия 3.820-9
Обозначение англ: Series 3.820-9
Статус:cправочные материалы, мп, тпр
Название рус.:Выпуск 3/91. Колодцы-гасители объемные. Рабочие чертежи
Дата добавления в базу:01.10.2014
Дата актуализации:05.05.2017
Дата введения:29.04.1991
Оглавление:Техническое описание
Номенклатура изделий
Колодец-гаситель КГ12-1
Колодец-гаситель КГ12-2
Сетка С1
Сетка С2
Сетка С3
Сетка С4
Изделие закладное Мн1
Изделие закладное Мн2
Разработан: Укргипроводхоз Минводхоза СССР
Утверждён:29.04.1991 Минводхоз УССР
Расположен в:Техническая документация Строительство Справочные документы Типовые строительные конструкции, изделия и узлы Общероссийский строительный каталог Строительные конструкции, изделия и узлы зданий и сооружений для всех видов строительства Конструкции и изделия сооружений и оборудования зданий Надземные сооружения Конструкции водохозяйственных сооружений и систем мелиорации
Серия 3.820-9Серия 3.820-9Серия 3.820-9Серия 3.820-9Серия 3.820-9Серия 3.820-9Серия 3.820-9Серия 3.820-9Серия 3.820-9Серия 3.820-9Серия 3.820-9Серия 3.820-9

© 2013 Ёшкин Кот :-) Карта сайта