Информационная система
«Ёшкин Кот»

Скачать базу одним архивом
Скачать обновления
История создания базы
Карта сайта

Скачать Типовой проект 903-4-128.87 Альбом 2. Технология производства

Дата актуализации: 10.08.2017

Типовой проект 903-4-128.87

Альбом 2. Технология производства

Обозначение: Типовой проект 903-4-128.87
Обозначение англ: 903-4-128.87
Статус:действует
Название рус.:Альбом 2. Технология производства
Дата добавления в базу:01.10.2014
Дата актуализации:05.05.2017
Оглавление:Общие данные
Спецификация оборудования
Спецификация установленных приборов КИП и закладных конструкций. Спецификация опорных конструкций
Принципиальная схема технологических трубопроводов
Трубопроводы. План на отм. 0.000
Трубопроводы. Разрез 1-1
Трубопроводы. Разрез 2-2
Трубопроводы. Разрезы 3-3, 4-4
Трубопроводы. Разрезы 5-5, 6-6
Трубопроводы. Разрезы 7-7, 8-8, 9-9
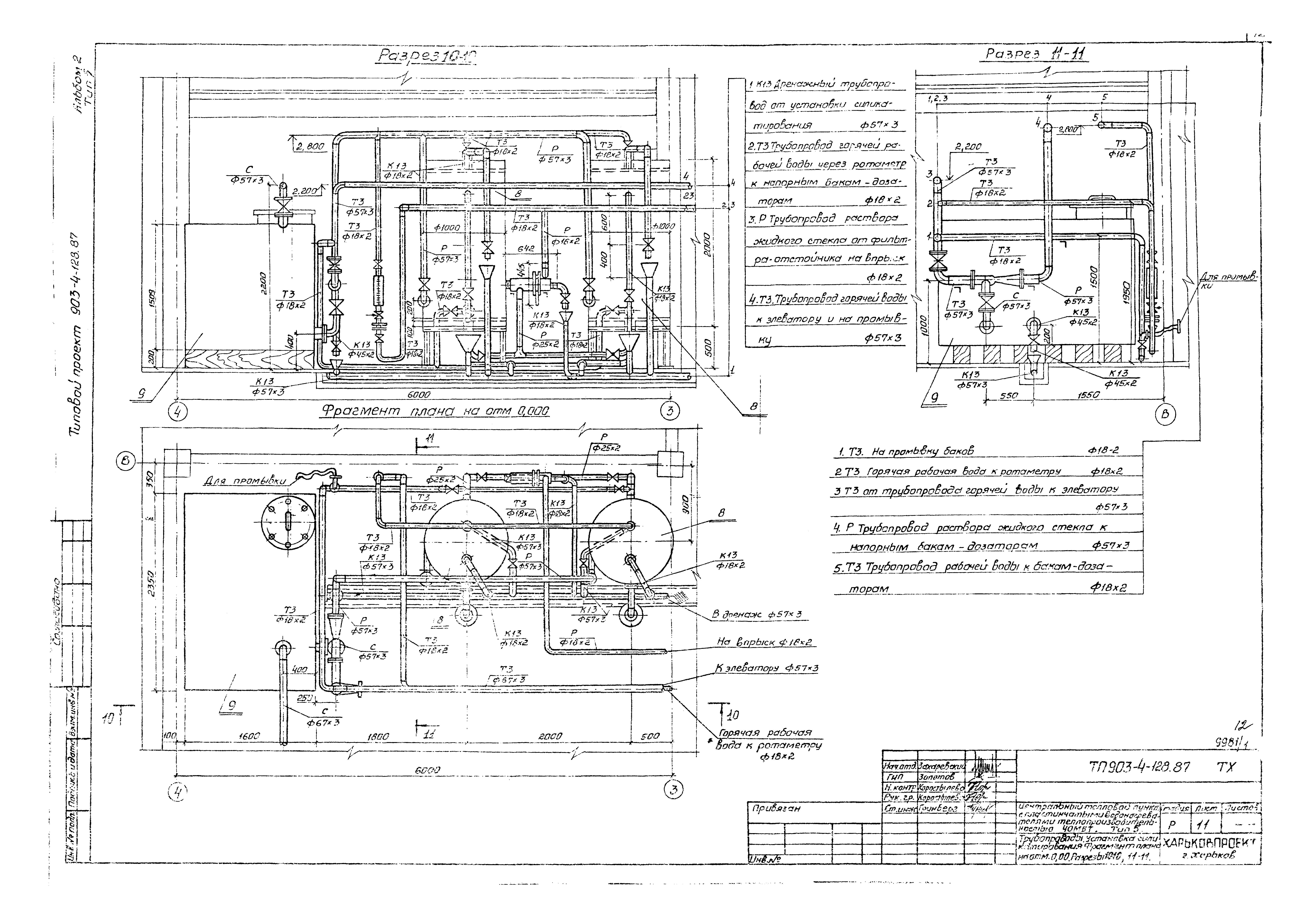
Трубопроводы. Установка сикатирования. Фрагмент плана на отм. 0.000. Разрезы 10-10; 11-11
Шайбовый дозатор
Фильтр-отстойник
Блок БПВ-1 пластинчатого водонагревателя I ступени подогрева. Общий вид. Спецификация
Блок БПВ-2 пластинчатого водонагревателя II ступени подогрева. Общий вид. Спецификация
Блок БПЦН-1. Общий вид. Схема блока. Спецификация
Блок БПЦН-1. Опорная рама. Общий вид. Спецификация
Блок БПЦН-2. Общий вид. Схема блока. Спецификация
Блок БПЦН-2. Опорная рама. Общий вид. Спецификация
Блок БПЦН-3. Общий вид. Схема блока. Спецификация
Блок БПЦН-3. Опорная рама. Общий вид. Спецификация
Блок БКСН. Общий вид. Схема блока. Спецификация
Блок БКСН. Опорная рама. Общий вид. Спецификация
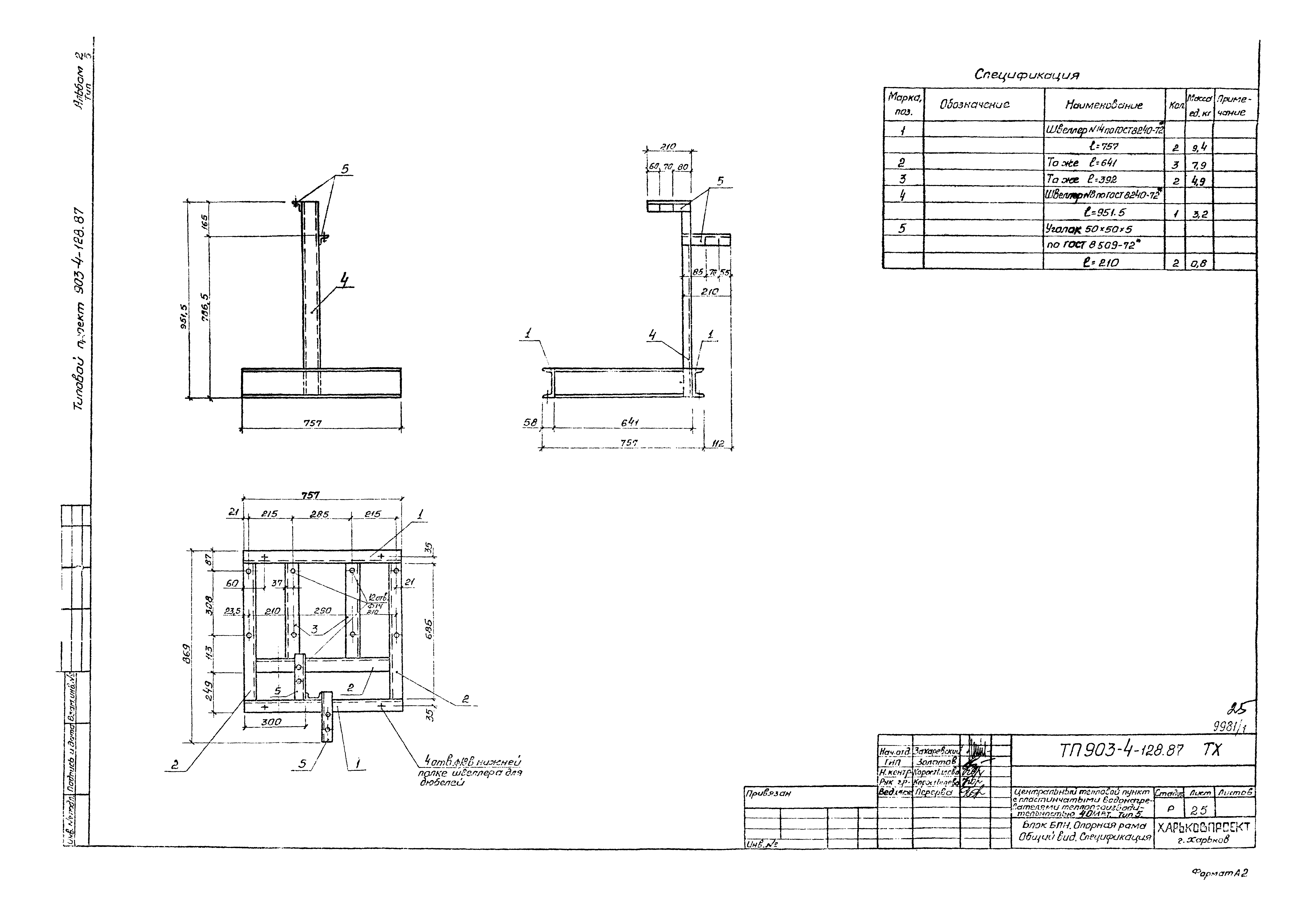
Блок БПН. Общий вид. Схема блока. Спецификация
Блок БПН. Опорная рама. Общий вид. Спецификация
Блок БВНС пластинчатого водонагревателя независимой системы. Общий вид. Спецификация
Блок БСН. Общий вид. Схема блока. Спецификация
Блок БСН. Опорная рама. Общий вид. Спецификация
Разработан: Тяжпромавтоматика
Утверждён:16.07.1986 Госстрой УССР (UkrSSR Gosstroy 136)
Расположен в:Техническая документация Строительство Справочные документы Типовые строительные конструкции, изделия и узлы Общероссийский строительный каталог Промышленные предприятия, здания и сооружения Здания и сооружения санитарно-технические Теплоснабжение Сооружения тепловых сетей Центральные тепловые пункты
Типовой проект 903-4-128.87Типовой проект 903-4-128.87Типовой проект 903-4-128.87Типовой проект 903-4-128.87Типовой проект 903-4-128.87Типовой проект 903-4-128.87Типовой проект 903-4-128.87Типовой проект 903-4-128.87Типовой проект 903-4-128.87Типовой проект 903-4-128.87Типовой проект 903-4-128.87Типовой проект 903-4-128.87Типовой проект 903-4-128.87Типовой проект 903-4-128.87Типовой проект 903-4-128.87Типовой проект 903-4-128.87Типовой проект 903-4-128.87Типовой проект 903-4-128.87Типовой проект 903-4-128.87Типовой проект 903-4-128.87Типовой проект 903-4-128.87Типовой проект 903-4-128.87Типовой проект 903-4-128.87Типовой проект 903-4-128.87Типовой проект 903-4-128.87Типовой проект 903-4-128.87Типовой проект 903-4-128.87Типовой проект 903-4-128.87Типовой проект 903-4-128.87

© 2013 Ёшкин Кот :-) Карта сайта