Скачать Типовой проект 805-5-5.86 Альбом 4. Электротехнические чертежи. Автоматизация производства. Связь и сигнализацияДата актуализации: 10.08.2017 Типовой проект 805-5-5.86
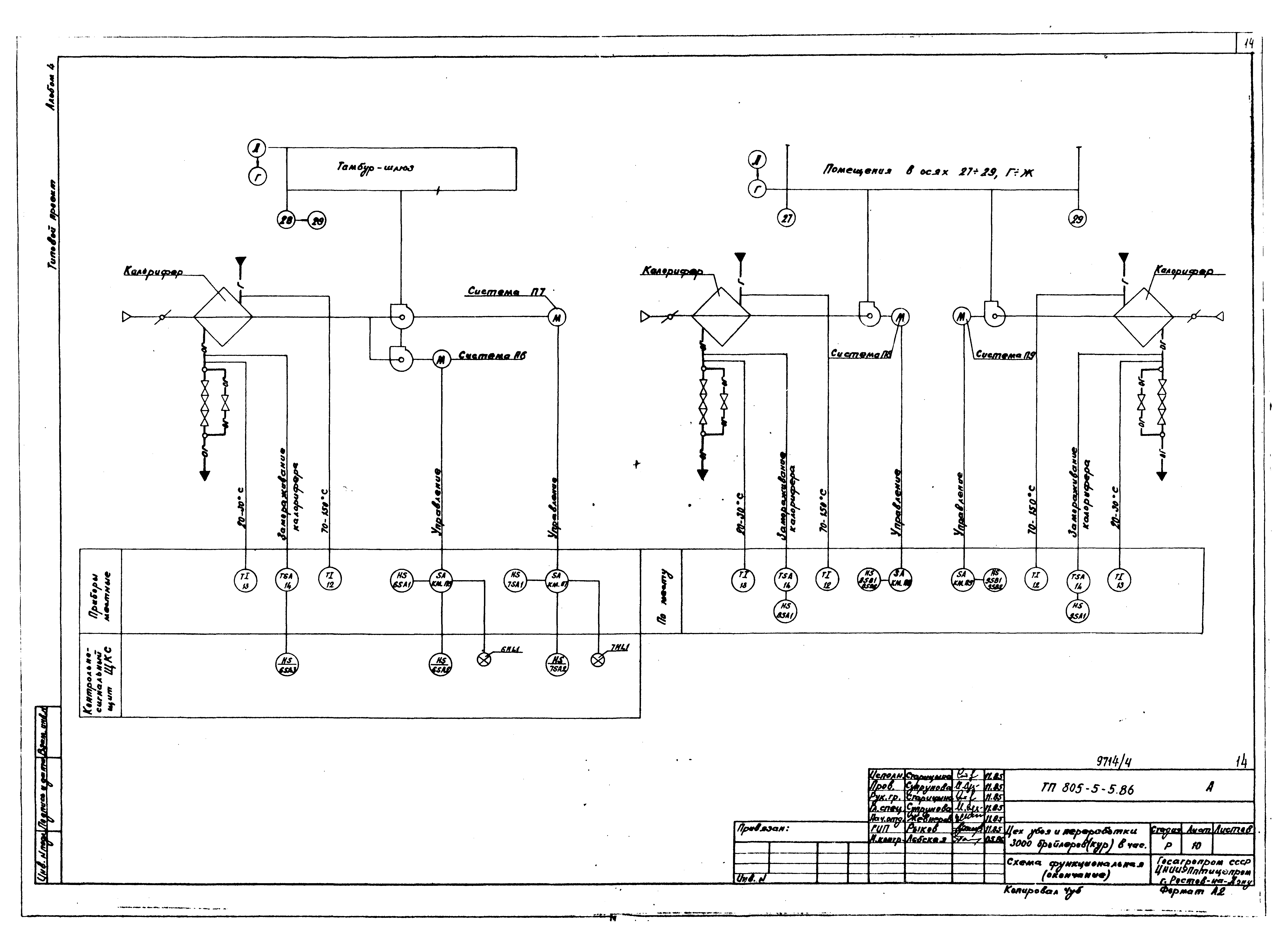
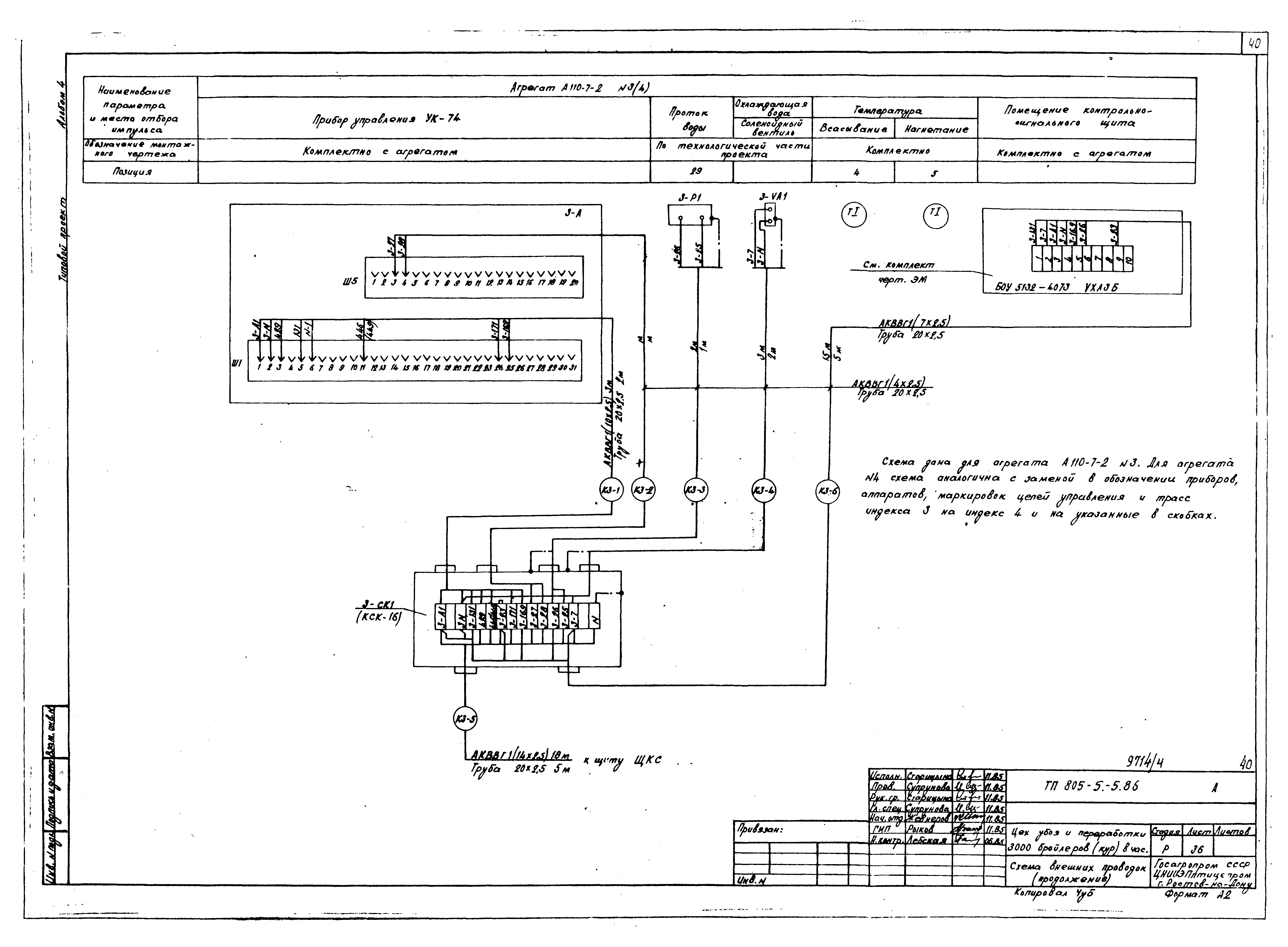
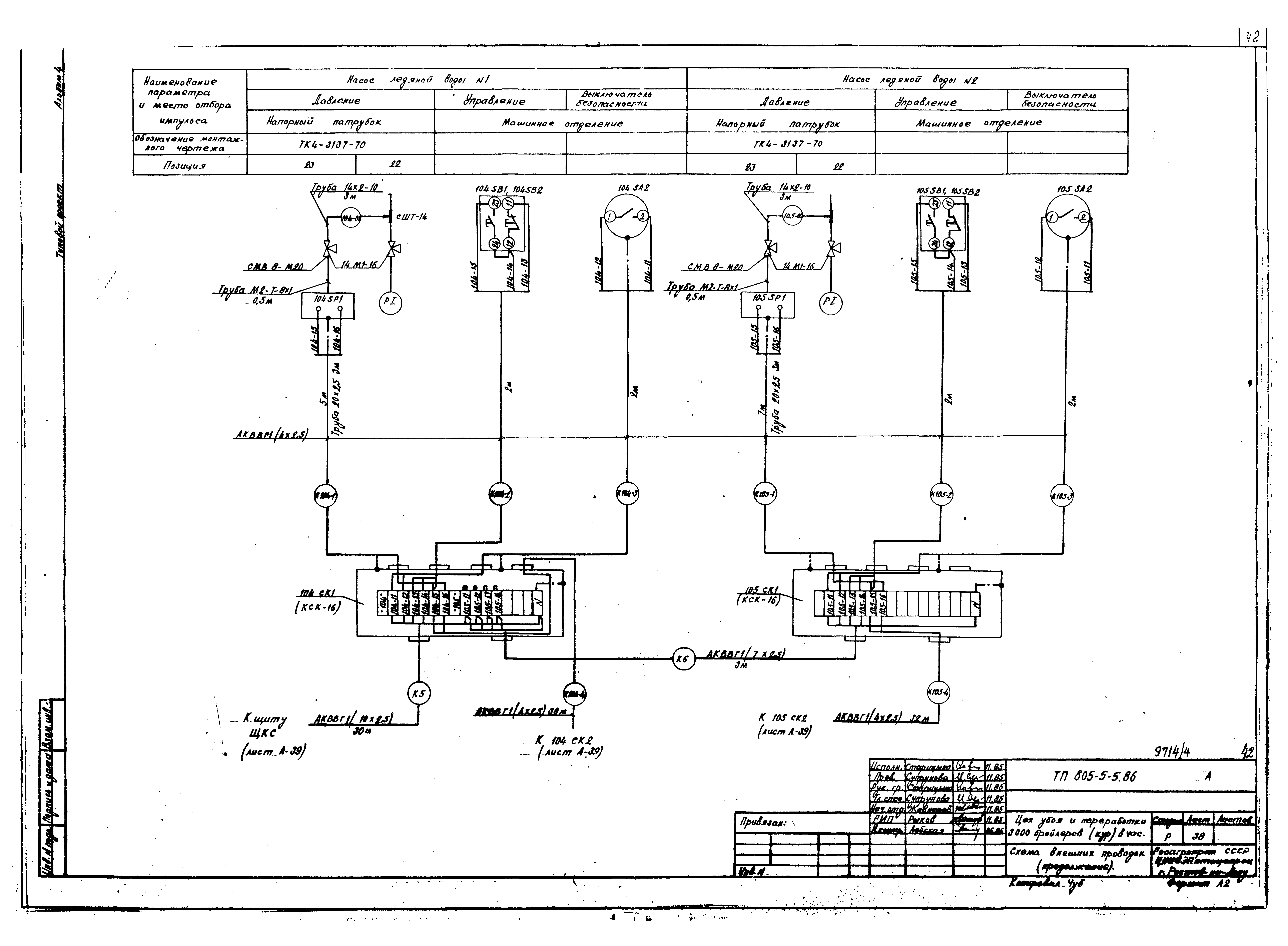
Альбом 4. Электротехнические чертежи. Автоматизация производства. Связь и сигнализацияОбозначение: | Типовой проект 805-5-5.86 | Обозначение англ: | 805-5-5.86 | Статус: | не определен законодательством | Название рус.: | Альбом 4. Электротехнические чертежи. Автоматизация производства. Связь и сигнализация | Дата добавления в базу: | 01.10.2014 | Дата актуализации: | 05.05.2017 | Дата введения: | 20.10.1986 | Оглавление: | Общие данные Чертежи основного комплекта марки А Общие данные Схема функциональная Управление агрегатами №1, 2. Схемы принципиальные Управление агрегатами №3, 4. Схемы принципиальные Схема принципиальная контроля и регулирования уровня аммиака Управление насосами аммиачными и ледяной воды. Схемы принципиальные Управление оборотного водоснабжения и ледяной воды. Схемы принципиальные Управление воздухоохладителями. Схема принципиальная Схема принципиальная регулирования температуры в камерах Управление системами В2, В11 и аварийной системой В20. Схемы принципиальные Аварийное отключение всей установки. Схема принципиальная Схема принципиальная измерения температуры в контрольных точках Схема принципиальная оперативной сигнализации Схема принципиальная аварийной сигнализации Схема электрическая принципиальная питания Управление системой П1 (П2, П10). Схема принципиальная Управление системой П3 (П4, П5). Схема принципиальная Управление системами П6, П7. Схемы принципиальные Управление системами П8, П9. Схемы принципиальные Управление электрозадвижками М1з, М2з. Схема принципиальная Управление электрозадвижками М3з, М4з. Схема принципиальная Управление электрозадвижками М5з, М6з. Схема принципиальная Управление рециркуляционными насосами и насосными агрегатами. Схемы принципиальные Схема принципиальная контроля уровня воды Схема внешних проводок План расположения Экспликация помещений Чертежи основного комплекта марки ЭО Общие данные Принципиальная схема питающей сети План расположения электрического оборудования и прокладки питающей сети Экспликация помещений. Таблица щитков План расположения электрического оборудования и прокладки групповой сети Ведомость узлов установки электрического оборудования групповой сети. Задание МЭЗ Чертежи основного комплекта марки ЭМ Общие данные Схема принципиальная питающей сети 380 В Схема принципиальная распределительной сети 380 В Управление электрозадвижками М7 и М8з. Схема принципиальная Схема подключения Схема подключения щита управления 1Щ Схема подключения щита управления 2Щ Электрообогрев сливных труб. Схемы и расчетные данные Кабельный журнал Сводная ведомость потребности в проводе с использованием меди План питающей сети Спецификация к плану питающей сети План распределительной сети технологического оборудования в осях 1 - 10 Спецификация к плану распределительной сети технологического оборудования в осях 1 - 10 План распределительной сети технологического оборудования в осях 10 - 20 Спецификация к плану распределительной сети технологического оборудования в осях 10 - 20 План распределительной сети технологического оборудования в осях 20 - 29 Спецификация к плану распределительной сети технологического оборудования в осях 20 - 29 Электрообогрев сливных труб. План План распределительной сети вентиляционных систем в осях 1 - 10 План распределительной сети вентиляционных систем в осях 10 - 16 План распределительной сети вентиляционных систем в осях 16 - 29 Спецификация к плану распределительной сети вентиляционных систем Экспликация помещений Молниезащита Общие виды щитов управления 1Ш и 2Ш План прокладки лотков Разрезы. Спецификация к плану прокладки лотков Виды А - Г. Задание МЭЗ. Конструкции 1 - 4 Установка шкафов управления ШУ1 - ШУ4. Задание МЭЗ. Конструкция 5 Задание МЭЗ. Ведомости Задание МЭЗ. Ведомости. Таблица заполнения труб кабелями Чертежи основного комплекта марки СС Общие данные Спецификации Пожарная сигнализация. Схемы принципиальные Пожарная сигнализация. Схема внешних проводок Скелетные схемы сетей телефонизации и радиофикации План Спецификация к плану Экспликация помещений Ящик пожарной сигнализации Я1. Общий вид | Разработан: | ЦНИИЭПптицепром Минсельхоза СССР
| Утверждён: | 25.06.1986 Госагропром СССР (USSR Gosagroprom 9-ЭТ)
| Издан: | ЦИТП Госстроя СССР (CITP, Gosstroy (USSR) 1988 г. )
| Расположен в: |
|
                                                                                                                                                            
|