Информационная система
«Ёшкин Кот»

Скачать базу одним архивом
Скачать обновления
История создания базы
Карта сайта

Скачать Серия КЭ-01-07 Выпуск 7. Колонны двухветвевые безраскосные с нагрузкой от кранов 30 и 50 т с шагом для наружных рядов 6 м и для внутренних рядов 12 м при осуществлении нулевого цикла работ до монтажа конструкций (для 1-го географического района ветровой нагрузки)

Дата актуализации: 10.08.2017

Серия КЭ-01-07

Выпуск 7. Колонны двухветвевые безраскосные с нагрузкой от кранов 30 и 50 т с шагом для наружных рядов 6 м и для внутренних рядов 12 м при осуществлении нулевого цикла работ до монтажа конструкций (для 1-го географического района ветровой нагрузки)

Обозначение: Серия КЭ-01-07
Обозначение англ: Series КЭ-01-07
Статус:действует
Название рус.:Выпуск 7. Колонны двухветвевые безраскосные с нагрузкой от кранов 30 и 50 т с шагом для наружных рядов 6 м и для внутренних рядов 12 м при осуществлении нулевого цикла работ до монтажа конструкций (для 1-го географического района ветровой нагрузки)
Дата добавления в базу:01.10.2014
Дата актуализации:05.05.2017
Оглавление:Пояснительная записка
Приложение №1. Таблица расходов материалов на колонны
Колонны
Закладные элементы
Узлы сопряжения колонн с примыкающими конструкциями. Схема замены закладных элементов при опирании на колонны стальных конструкций
Детали сопряжения колонн с фундаментами
Ключ для подбора типовых колонн и нагрузки на фундаменты
Примерный схематический план цеха с размещением вертикальных связей по колоннам
Закладные элементы для вертикальных связей в колоннах
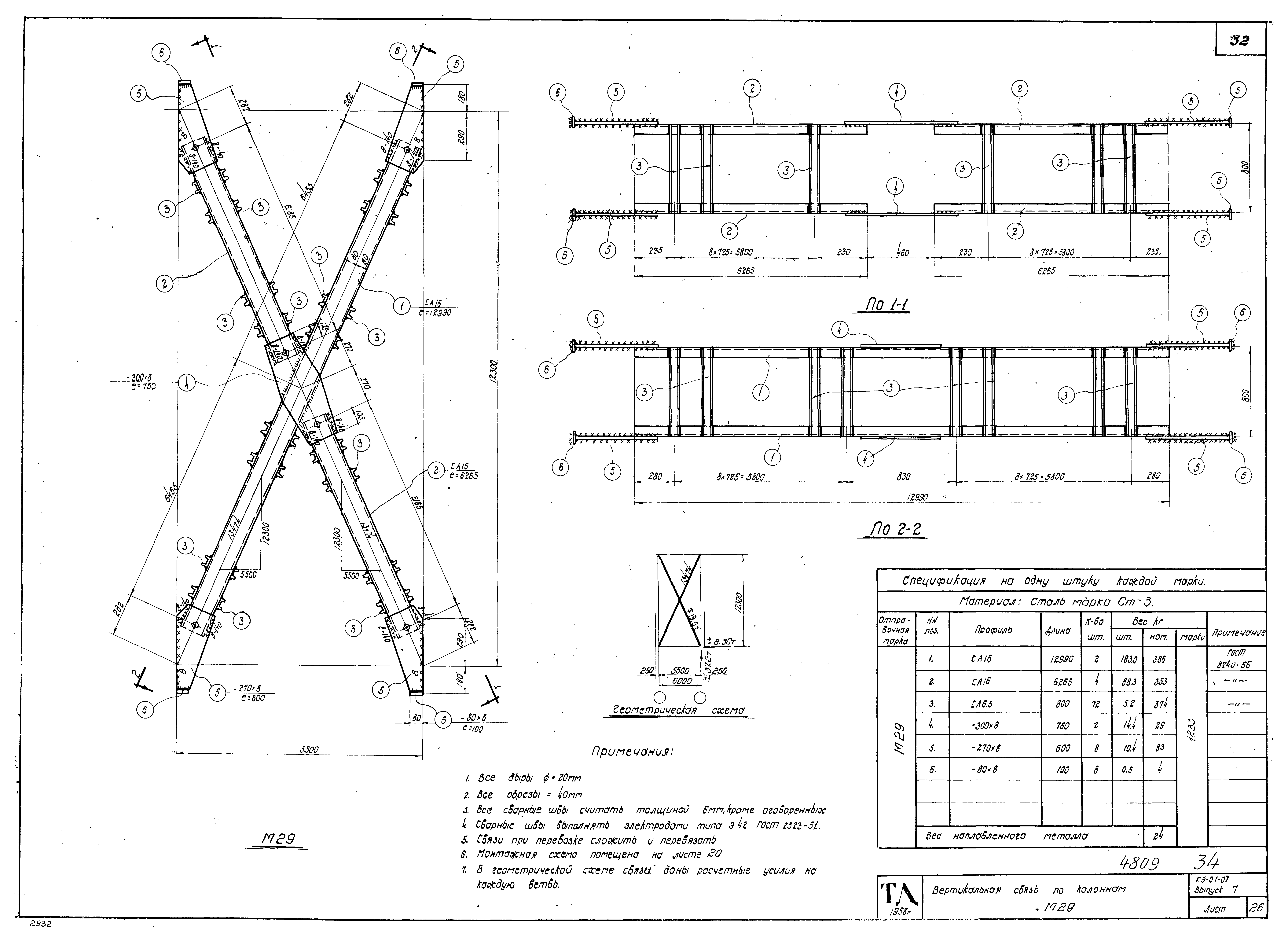
Вертикальная связь по колоннам
Схемы складирования, транспортировки и установки колонн
Разработан: Проектный институт № 1 Министерства строительства РСФСР
Утверждён:01.01.1958 Государственный комитет Совета Министров СССР по делам строительства
Расположен в:Техническая документация Строительство Справочные документы Типовые строительные конструкции, изделия и узлы Общероссийский строительный каталог Строительные конструкции, изделия и узлы зданий и сооружений для всех видов строительства Конструкции, изделия и узлы зданий Несущие конструкции одноэтажных зданий Колонны Железобетонные
Серия КЭ-01-07Серия КЭ-01-07Серия КЭ-01-07Серия КЭ-01-07Серия КЭ-01-07Серия КЭ-01-07Серия КЭ-01-07Серия КЭ-01-07Серия КЭ-01-07Серия КЭ-01-07Серия КЭ-01-07Серия КЭ-01-07Серия КЭ-01-07Серия КЭ-01-07Серия КЭ-01-07Серия КЭ-01-07Серия КЭ-01-07Серия КЭ-01-07Серия КЭ-01-07Серия КЭ-01-07Серия КЭ-01-07Серия КЭ-01-07Серия КЭ-01-07Серия КЭ-01-07Серия КЭ-01-07Серия КЭ-01-07Серия КЭ-01-07Серия КЭ-01-07Серия КЭ-01-07Серия КЭ-01-07Серия КЭ-01-07Серия КЭ-01-07Серия КЭ-01-07Серия КЭ-01-07Серия КЭ-01-07Серия КЭ-01-07Серия КЭ-01-07Серия КЭ-01-07Серия КЭ-01-07Серия КЭ-01-07

© 2013 Ёшкин Кот :-) Карта сайта