Информационная система
«Ёшкин Кот»

Скачать базу одним архивом
Скачать обновления
История создания базы
Карта сайта

Скачать Типовые конструкции ОГ-ТП.010.13 Стальные опоры из гнутого профиля для высоковольтных линий электропередач 10 кВ с изолированными проводами

Дата актуализации: 10.08.2017

Типовые конструкции ОГ-ТП.010.13

Стальные опоры из гнутого профиля для высоковольтных линий электропередач 10 кВ с изолированными проводами

Обозначение: Типовые конструкции ОГ-ТП.010.13
Обозначение англ: ОГ-ТП.010.13
Статус:не определен законодательством
Название рус.:Стальные опоры из гнутого профиля для высоковольтных линий электропередач 10 кВ с изолированными проводами
Дата добавления в базу:01.10.2014
Дата актуализации:05.05.2017
Дата введения:20.03.2013
Оглавление:1. Общая часть
2. Особенности проектирования ВЛ3 с учетом требований ПУЭ седьмого издания
3. Указания по применению опор
4. Провода, изоляторы, арматура
5. Основные положения по расчету опор
6. Технико-экономические показатели
Номенклатура опор ВЛ3 10 кВ
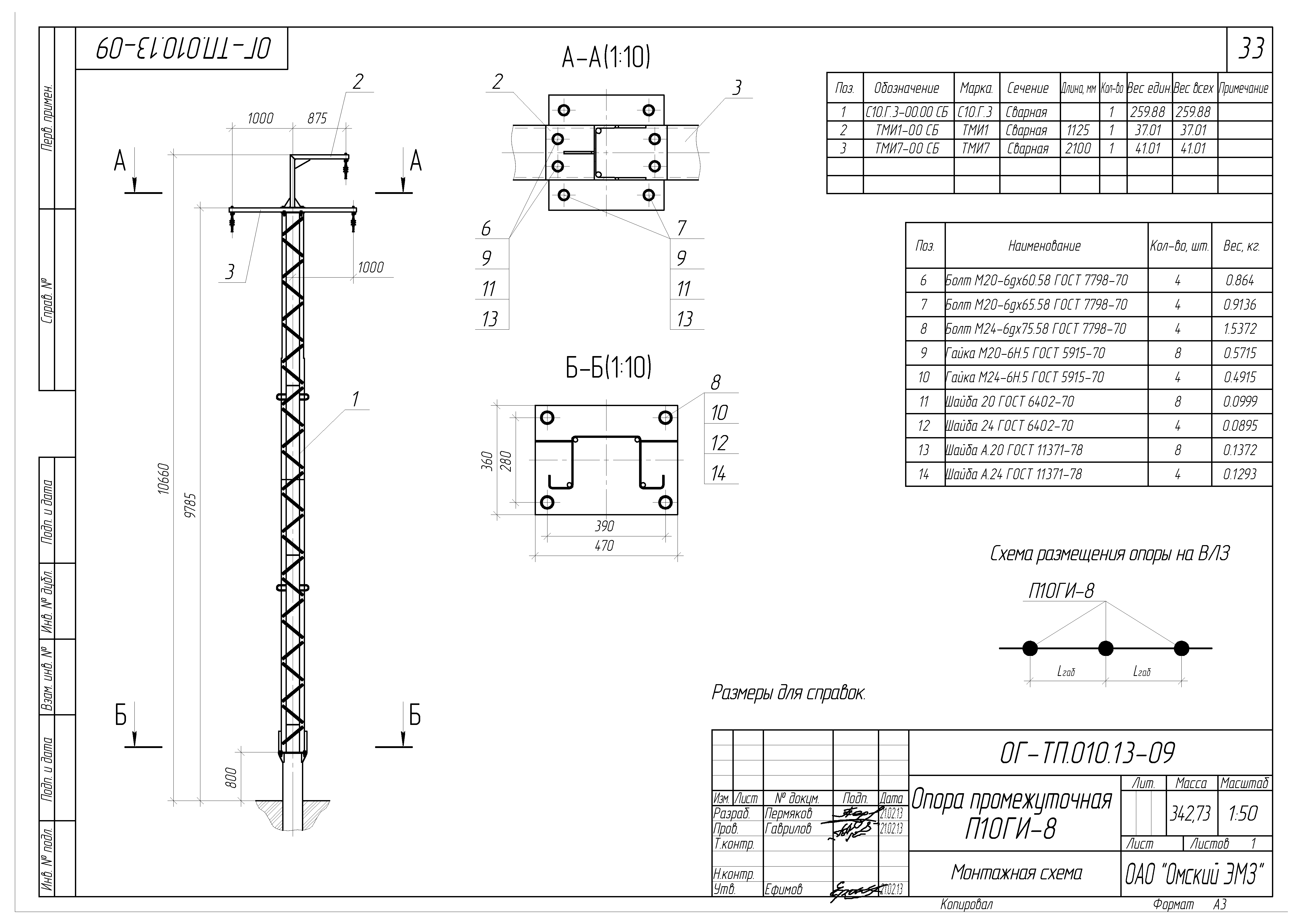
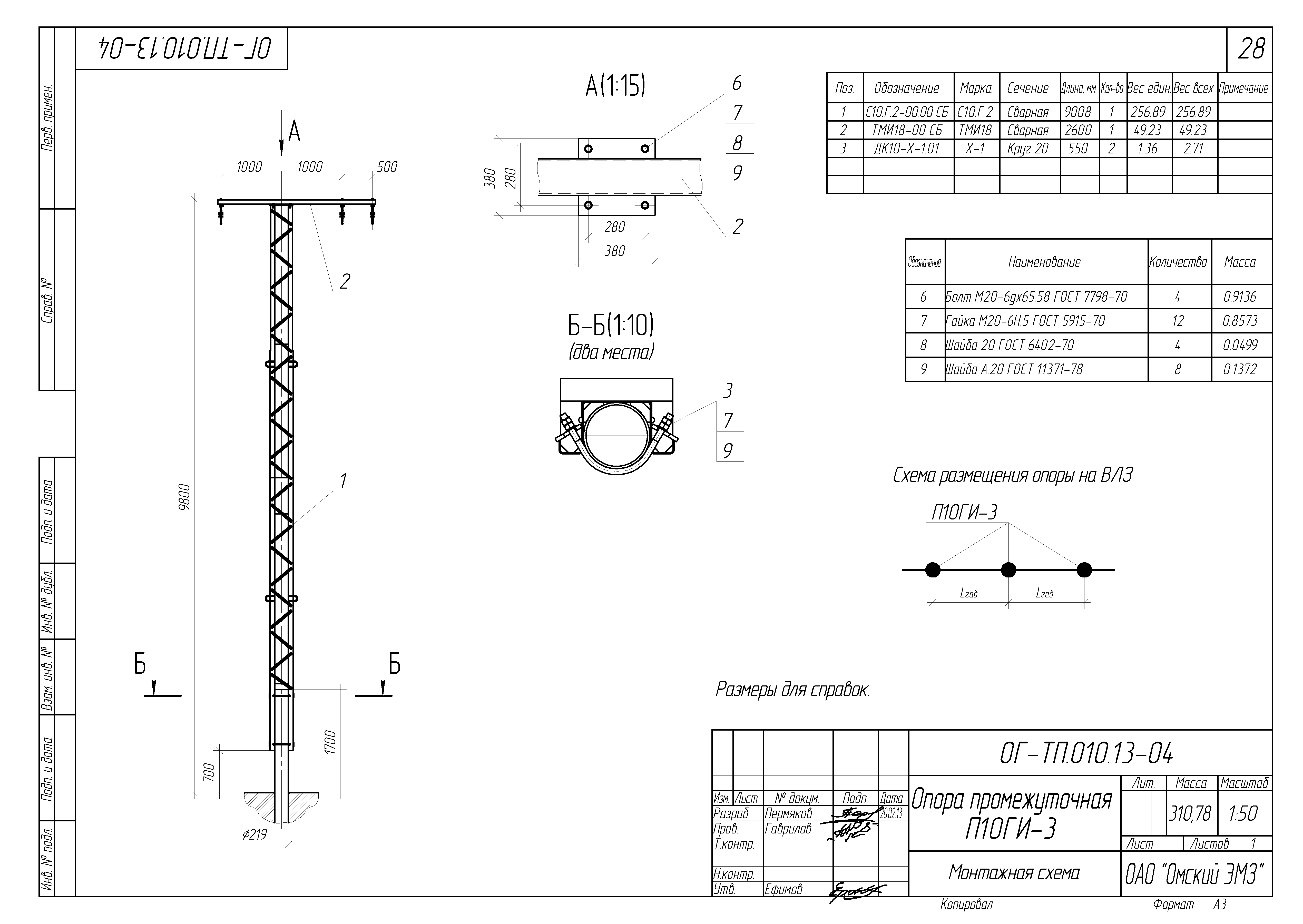
Промежуточные опоры
Анкерные опоры
Устройство ответвления
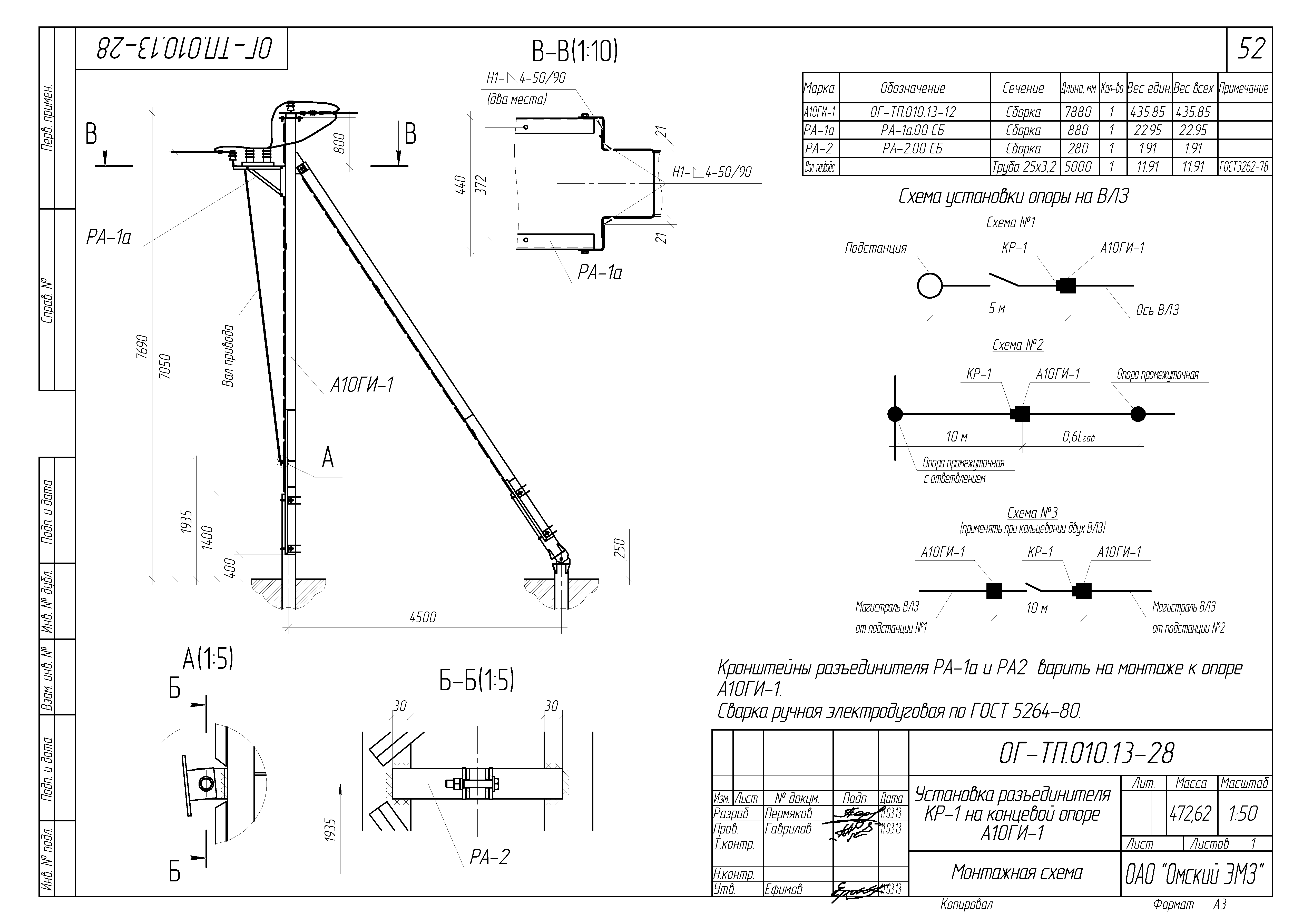
Установка разъединителей
Установка кабельной муфты
Установка разъединителя и кабельной муфты
Типовые решения фундаментов
Линейная изоляция ВЛ3
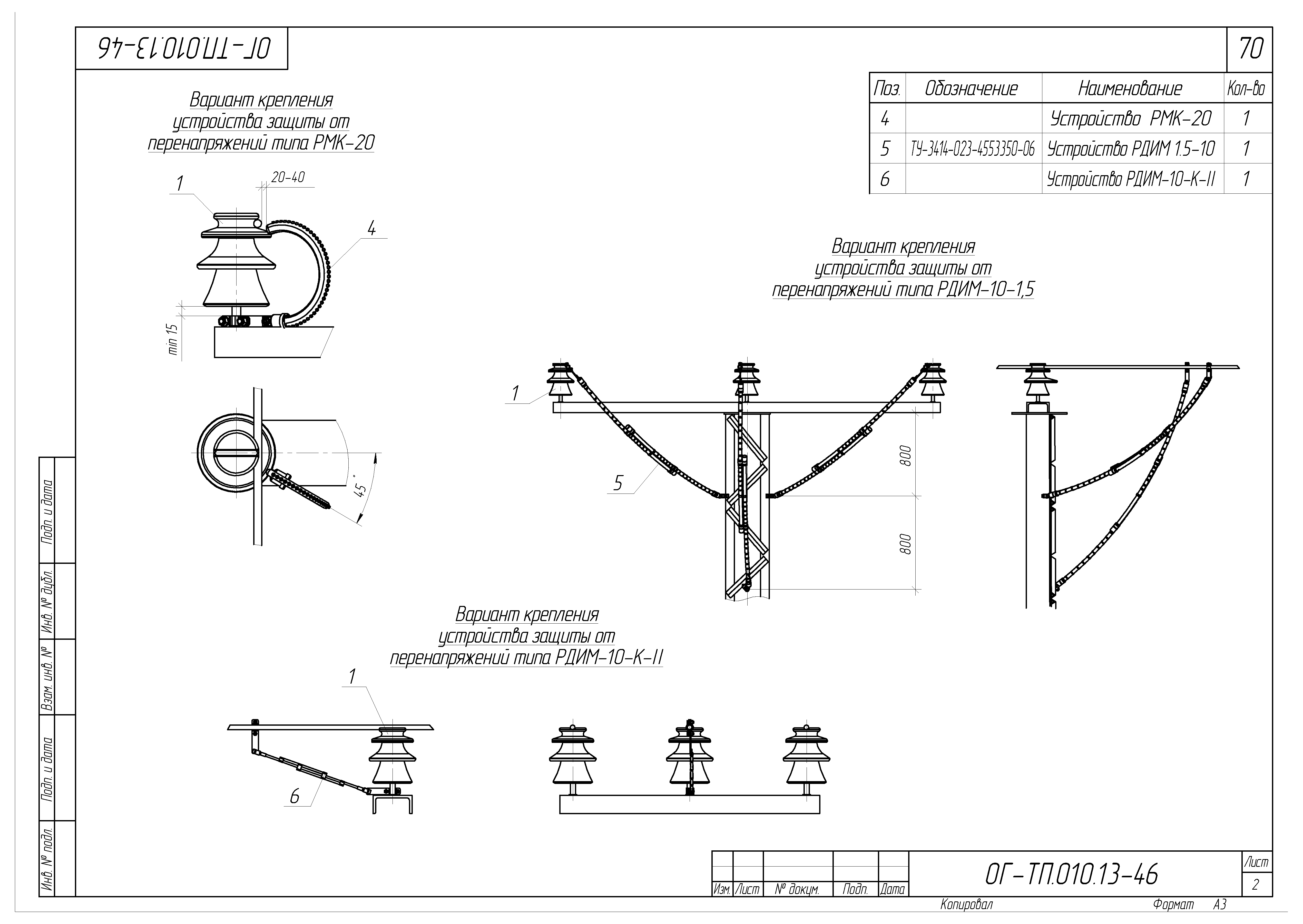
Пример установки разрядников на ВЛ3
Разработан: ОАО Омский ЭМЗ
Утверждён:20.03.2013 ОАО Омский ЭМЗ
Расположен в:Техническая документация Строительство Справочные документы Типовые строительные конструкции, изделия и узлы Разработанные другими министерствами, ведомствами и организациями
Типовые конструкции ОГ-ТП.010.13Типовые конструкции ОГ-ТП.010.13Типовые конструкции ОГ-ТП.010.13Типовые конструкции ОГ-ТП.010.13Типовые конструкции ОГ-ТП.010.13Типовые конструкции ОГ-ТП.010.13Типовые конструкции ОГ-ТП.010.13Типовые конструкции ОГ-ТП.010.13Типовые конструкции ОГ-ТП.010.13Типовые конструкции ОГ-ТП.010.13Типовые конструкции ОГ-ТП.010.13Типовые конструкции ОГ-ТП.010.13Типовые конструкции ОГ-ТП.010.13Типовые конструкции ОГ-ТП.010.13Типовые конструкции ОГ-ТП.010.13Типовые конструкции ОГ-ТП.010.13Типовые конструкции ОГ-ТП.010.13Типовые конструкции ОГ-ТП.010.13Типовые конструкции ОГ-ТП.010.13Типовые конструкции ОГ-ТП.010.13Типовые конструкции ОГ-ТП.010.13Типовые конструкции ОГ-ТП.010.13Типовые конструкции ОГ-ТП.010.13Типовые конструкции ОГ-ТП.010.13Типовые конструкции ОГ-ТП.010.13Типовые конструкции ОГ-ТП.010.13Типовые конструкции ОГ-ТП.010.13Типовые конструкции ОГ-ТП.010.13Типовые конструкции ОГ-ТП.010.13Типовые конструкции ОГ-ТП.010.13Типовые конструкции ОГ-ТП.010.13Типовые конструкции ОГ-ТП.010.13Типовые конструкции ОГ-ТП.010.13Типовые конструкции ОГ-ТП.010.13Типовые конструкции ОГ-ТП.010.13Типовые конструкции ОГ-ТП.010.13Типовые конструкции ОГ-ТП.010.13Типовые конструкции ОГ-ТП.010.13Типовые конструкции ОГ-ТП.010.13Типовые конструкции ОГ-ТП.010.13Типовые конструкции ОГ-ТП.010.13Типовые конструкции ОГ-ТП.010.13Типовые конструкции ОГ-ТП.010.13Типовые конструкции ОГ-ТП.010.13Типовые конструкции ОГ-ТП.010.13Типовые конструкции ОГ-ТП.010.13Типовые конструкции ОГ-ТП.010.13Типовые конструкции ОГ-ТП.010.13Типовые конструкции ОГ-ТП.010.13Типовые конструкции ОГ-ТП.010.13Типовые конструкции ОГ-ТП.010.13Типовые конструкции ОГ-ТП.010.13Типовые конструкции ОГ-ТП.010.13Типовые конструкции ОГ-ТП.010.13Типовые конструкции ОГ-ТП.010.13Типовые конструкции ОГ-ТП.010.13Типовые конструкции ОГ-ТП.010.13Типовые конструкции ОГ-ТП.010.13Типовые конструкции ОГ-ТП.010.13Типовые конструкции ОГ-ТП.010.13Типовые конструкции ОГ-ТП.010.13Типовые конструкции ОГ-ТП.010.13Типовые конструкции ОГ-ТП.010.13Типовые конструкции ОГ-ТП.010.13Типовые конструкции ОГ-ТП.010.13Типовые конструкции ОГ-ТП.010.13Типовые конструкции ОГ-ТП.010.13Типовые конструкции ОГ-ТП.010.13Типовые конструкции ОГ-ТП.010.13Типовые конструкции ОГ-ТП.010.13Типовые конструкции ОГ-ТП.010.13Типовые конструкции ОГ-ТП.010.13Типовые конструкции ОГ-ТП.010.13Типовые конструкции ОГ-ТП.010.13

© 2013 Ёшкин Кот :-) Карта сайта