Информационная система
«Ёшкин Кот»

Скачать базу одним архивом
Скачать обновления
История создания базы
Карта сайта

Скачать Типовой проект 901-3-25 Альбом IV. Часть 1. Здание очистной станции. Нестандартизированное оборудование (из ТП 901-3-24)

Дата актуализации: 10.08.2017

Типовой проект 901-3-25

Альбом IV. Часть 1. Здание очистной станции. Нестандартизированное оборудование (из ТП 901-3-24)

Обозначение: Типовой проект 901-3-25
Обозначение англ: 901-3-25
Статус:заменен
Название рус.:Альбом IV. Часть 1. Здание очистной станции. Нестандартизированное оборудование (из ТП 901-3-24)
Дата добавления в базу:01.10.2014
Дата актуализации:05.05.2017
Дата введения:01.10.1979
Оглавление:Перечень чертежей
Смеситель Ф 2,5 м. Общий вид
Смеситель Ф 2,5 м. Узел
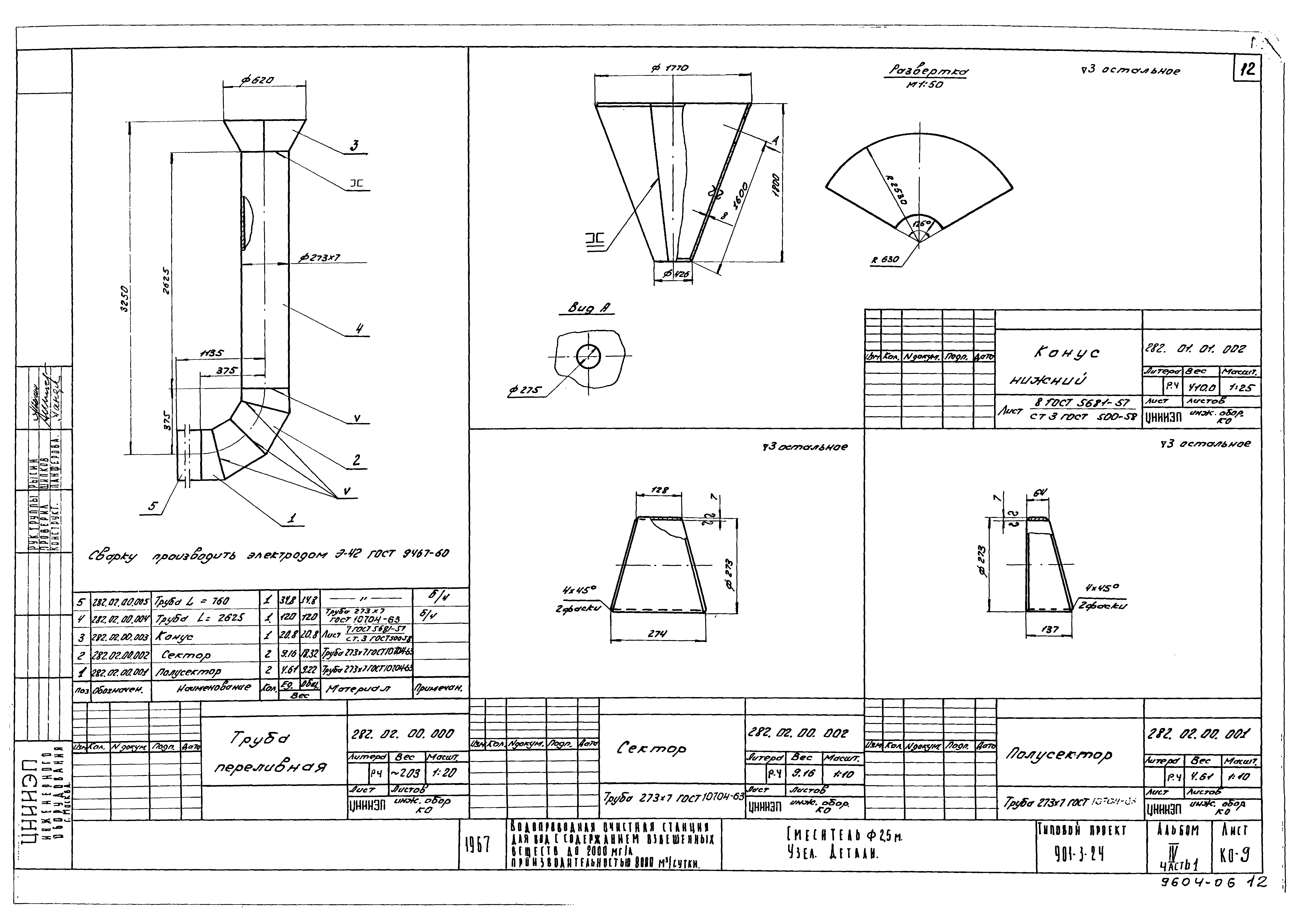
Смеситель Ф 2,5 м. Узел. Детали
Смеситель Ф 2,5 м. Детали
Смеситель Ф 2,5 м. Узел
Смеситель Ф 2,5 м. Узел. Детали
Смеситель Ф 2,5 м. Детали
Смеситель Ф 2,5 м. Узел
Гидропульт. Общий вид
Гидропульт. Детали
Гидропульт. Узел
Гидропульт. Узел. Детали
Гидропульт. Детали
Гидропульт. Узел. Детали
Гребенка Dу150. Узел
Гребенка Dу80. Узел
Деталь сварная. Узел
Корыто для промывки сеток. Узел
Разработан: ЦНИИЭП иженерного оборудования
Утверждён:12.07.1968 ЦНИИЭП инженерного оборудования (TsNIIEP of Building Service Equipment 67)
Расположен в:Техническая документация Строительство Справочные документы Типовые строительные конструкции, изделия и узлы Общероссийский строительный каталог Промышленные предприятия, здания и сооружения Здания и сооружения санитарно-технические Водоснабжение Сооружения и установки по обеззараживанию воды Сооружения обработки и повторного использования воды для промывки фильтров
Чем заменён:
  • Типовой проект 901-3-113
  • Типовой проект 901-3-114
  • Типовой проект 901-3-115
Типовой проект 901-3-25Типовой проект 901-3-25Типовой проект 901-3-25Типовой проект 901-3-25Типовой проект 901-3-25Типовой проект 901-3-25Типовой проект 901-3-25Типовой проект 901-3-25Типовой проект 901-3-25Типовой проект 901-3-25Типовой проект 901-3-25Типовой проект 901-3-25Типовой проект 901-3-25Типовой проект 901-3-25Типовой проект 901-3-25Типовой проект 901-3-25Типовой проект 901-3-25Типовой проект 901-3-25Типовой проект 901-3-25Типовой проект 901-3-25Типовой проект 901-3-25Типовой проект 901-3-25Типовой проект 901-3-25Типовой проект 901-3-25Типовой проект 901-3-25Типовой проект 901-3-25Типовой проект 901-3-25Типовой проект 901-3-25Типовой проект 901-3-25Типовой проект 901-3-25

© 2013 Ёшкин Кот :-) Карта сайта