Информационная система
«Ёшкин Кот»

Скачать базу одним архивом
Скачать обновления
История создания базы
Карта сайта

Скачать Типовые проектные решения 501-07-5.84 Альбом I. Строительные решения

Дата актуализации: 10.08.2017

Типовые проектные решения 501-07-5.84

Альбом I. Строительные решения

Обозначение: Типовые проектные решения 501-07-5.84
Обозначение англ: 501-07-5.84
Статус:cправочные материалы, мп, тпр
Название рус.:Альбом I. Строительные решения
Дата добавления в базу:01.10.2014
Дата актуализации:05.05.2017
Оглавление:Опись альбома
Пояснительная записка
Номенклатура изделий
Общие данные
Схемы остановочных пунктов
Платформа боковая. Спецификация (вариант из блоков БСТ)
Платформа боковая. Общий вид (вариант из блоков БСТ)
Платформа боковая. Разрез 1-1. План (вариант из блоков БСТ)
Платформа боковая с уширением. Разрез 1-1 (вариант из блоков БСТ)
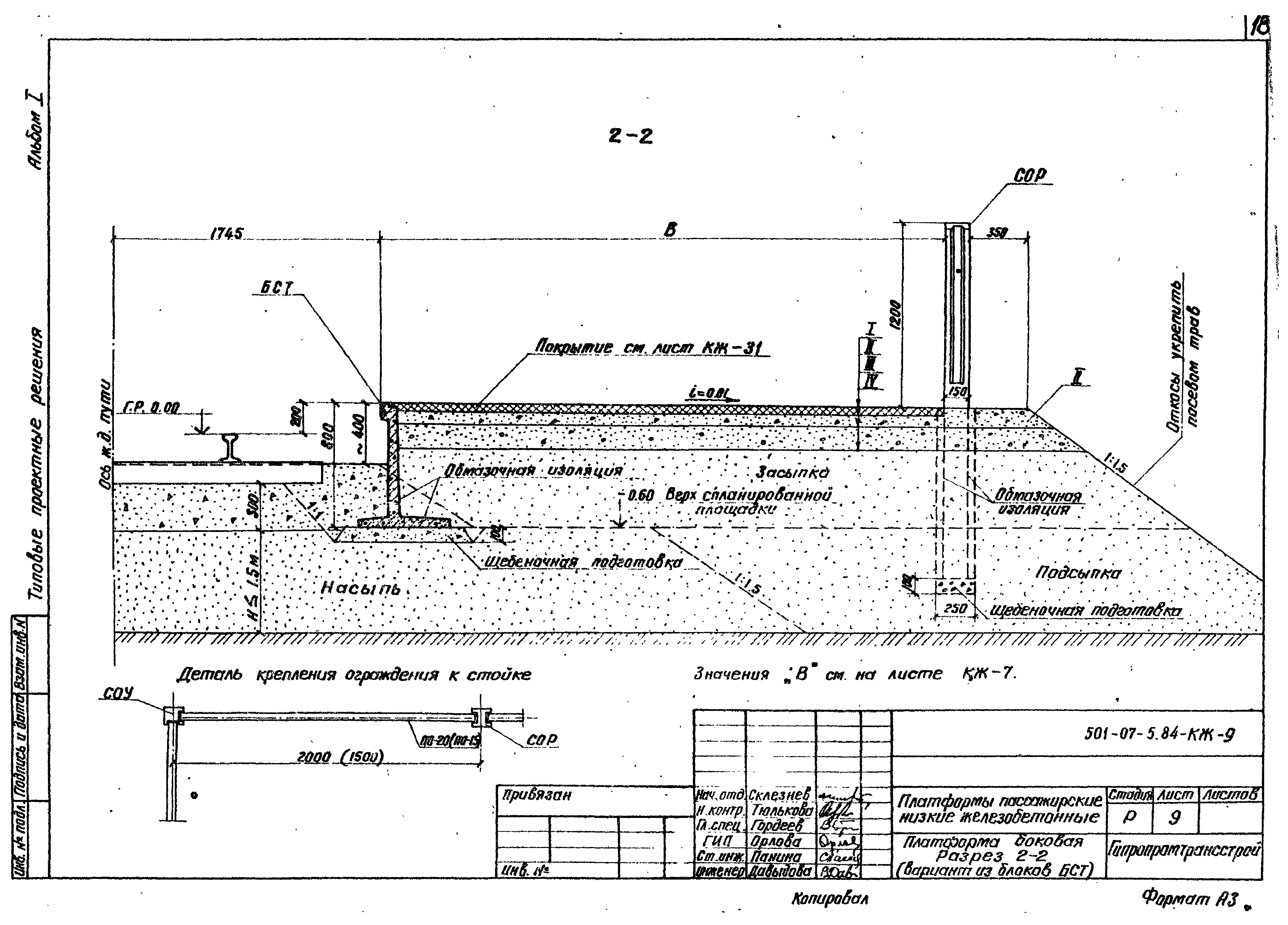
Платформа боковая. Разрез 2-2 (вариант из блоков БСТ)
Платформа промежуточная. Спецификация (вариант из блоков БСТ)
Платформа промежуточная. Общий вид (вариант из блоков БСТ)
Платформа промежуточная. Разрез 1-1. План (вариант из блоков БСТ)
Платформа промежуточная. Разрез 2-2 (вариант из блоков БСТ)
Узлы сопряжения блоков БСТ
Платформа боковая. Спецификация (вариант из блоков ФБС)
Платформа боковая. Общий вид (вариант из блоков ФБС)
Платформа боковая. Разрез 1-1. План (вариант из блоков ФБС)
Платформа боковая с уширением. Разрез 1-1 (вариант из блоков ФБС)
Платформа боковая. Разрез 2-2 (вариант из блоков ФБС)
Платформа боковая. Схема раскладки блоков (вариант из блоков ФБС)
Платформа промежуточная. Спецификация (вариант из блоков ФБС)
Платформа промежуточная. Общий вид (вариант из блоков ФБС)
Платформа промежуточная. Разрез 1-1. План (вариант из блоков ФБС)
Платформа промежуточная. Разрез 2-2 (вариант из блоков ФБС)
Платформа промежуточная. Схема раскладки блоков (вариант из блоков ФБС)
Схемы расположения лестничных сходов и перильного ограждения
Лестничный сход с боковой платформы. Спецификация
Лестничный сход с боковой платформы (вариант). Спецификация
Конструкция пандуса
Типы покрытия платформ
Разработан: Гипропромтрансстрой
Утверждён:11.03.1984 МПС (Ministry of Railroads А-7286)
Расположен в:Техническая документация Строительство Справочные документы Типовые строительные конструкции, изделия и узлы Общероссийский строительный каталог Промышленные предприятия, здания и сооружения Предприятия, здания и сооружения транспорта Транспорт железнодорожный Здания и сооружения по обслуживанию пассажиров
Типовые проектные решения 501-07-5.84Типовые проектные решения 501-07-5.84Типовые проектные решения 501-07-5.84Типовые проектные решения 501-07-5.84Типовые проектные решения 501-07-5.84Типовые проектные решения 501-07-5.84Типовые проектные решения 501-07-5.84Типовые проектные решения 501-07-5.84Типовые проектные решения 501-07-5.84Типовые проектные решения 501-07-5.84Типовые проектные решения 501-07-5.84Типовые проектные решения 501-07-5.84Типовые проектные решения 501-07-5.84Типовые проектные решения 501-07-5.84Типовые проектные решения 501-07-5.84Типовые проектные решения 501-07-5.84Типовые проектные решения 501-07-5.84Типовые проектные решения 501-07-5.84Типовые проектные решения 501-07-5.84Типовые проектные решения 501-07-5.84Типовые проектные решения 501-07-5.84Типовые проектные решения 501-07-5.84Типовые проектные решения 501-07-5.84Типовые проектные решения 501-07-5.84Типовые проектные решения 501-07-5.84Типовые проектные решения 501-07-5.84Типовые проектные решения 501-07-5.84Типовые проектные решения 501-07-5.84Типовые проектные решения 501-07-5.84Типовые проектные решения 501-07-5.84Типовые проектные решения 501-07-5.84Типовые проектные решения 501-07-5.84Типовые проектные решения 501-07-5.84Типовые проектные решения 501-07-5.84Типовые проектные решения 501-07-5.84Типовые проектные решения 501-07-5.84Типовые проектные решения 501-07-5.84Типовые проектные решения 501-07-5.84Типовые проектные решения 501-07-5.84Типовые проектные решения 501-07-5.84Типовые проектные решения 501-07-5.84

© 2013 Ёшкин Кот :-) Карта сайта