Информационная система
«Ёшкин Кот»

Скачать базу одним архивом
Скачать обновления
История создания базы
Карта сайта

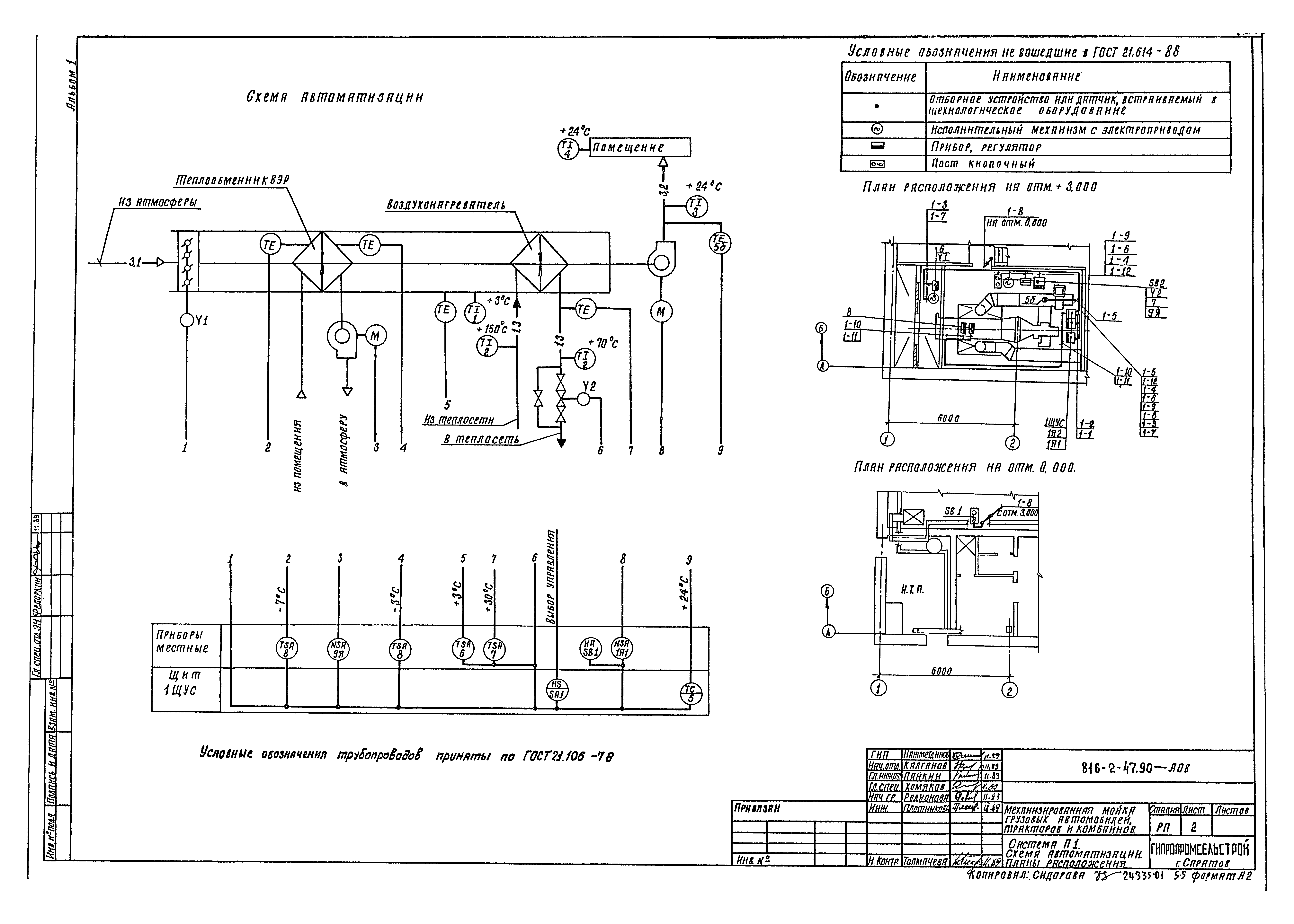
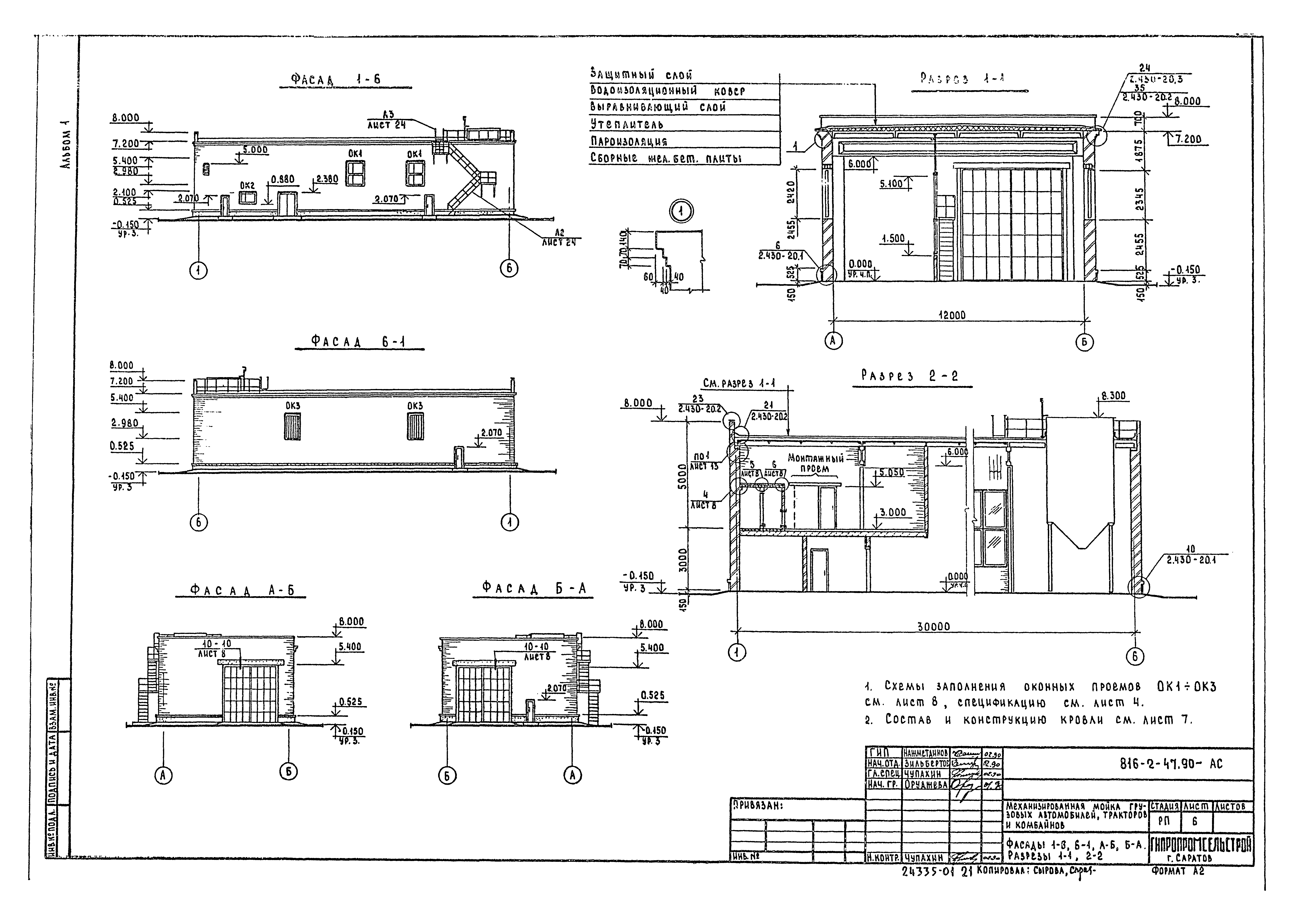
Скачать Типовой проект 816-2-47.90 Альбом 1. Пояснительная записка. Технология производства. Технологические коммуникации. Архитектурно-строительные решения. Отопление и вентиляция. Внутренний водопровод и канализация. Силовое электрооборудование. Электрическое освещение. Автоматизация систем отопления и вентиляция. Связь и сигнализация

Дата актуализации: 10.08.2017

Типовой проект 816-2-47.90

Альбом 1. Пояснительная записка. Технология производства. Технологические коммуникации. Архитектурно-строительные решения. Отопление и вентиляция. Внутренний водопровод и канализация. Силовое электрооборудование. Электрическое освещение. Автоматизация систем отопления и вентиляция. Связь и сигнализация

Обозначение: Типовой проект 816-2-47.90
Обозначение англ: 816-2-47.90
Статус:не определен законодательством
Название рус.:Альбом 1. Пояснительная записка. Технология производства. Технологические коммуникации. Архитектурно-строительные решения. Отопление и вентиляция. Внутренний водопровод и канализация. Силовое электрооборудование. Электрическое освещение. Автоматизация систем отопления и вентиляция. Связь и сигнализация
Дата добавления в базу:12.02.2016
Дата актуализации:05.05.2017
Дата введения:04.06.1990
Разработан: Гипропромсельстрой
Утверждён:28.05.1990 Главагропромнаучпроект Госкомиссии СМ СССР по продовольствию и закупкам (070-21-21/429)
Расположен в:Техническая документация Строительство Справочные документы Типовые строительные конструкции, изделия и узлы Общероссийский строительный каталог Сельскохозяйственные предприятия, здания и сооружения Предприятия, здания и сооружения по ремонту, техническому обслуживанию, хранению и обеспечению горюче-смазочными материалами сельхозтехники Пропускные пункты, мойки, эстакады, площадки
Заменяет собой:
Типовой проект 816-2-47.90Типовой проект 816-2-47.90Типовой проект 816-2-47.90Типовой проект 816-2-47.90Типовой проект 816-2-47.90Типовой проект 816-2-47.90Типовой проект 816-2-47.90Типовой проект 816-2-47.90Типовой проект 816-2-47.90Типовой проект 816-2-47.90Типовой проект 816-2-47.90Типовой проект 816-2-47.90Типовой проект 816-2-47.90Типовой проект 816-2-47.90Типовой проект 816-2-47.90Типовой проект 816-2-47.90Типовой проект 816-2-47.90Типовой проект 816-2-47.90Типовой проект 816-2-47.90Типовой проект 816-2-47.90Типовой проект 816-2-47.90Типовой проект 816-2-47.90Типовой проект 816-2-47.90Типовой проект 816-2-47.90Типовой проект 816-2-47.90Типовой проект 816-2-47.90Типовой проект 816-2-47.90Типовой проект 816-2-47.90Типовой проект 816-2-47.90Типовой проект 816-2-47.90Типовой проект 816-2-47.90Типовой проект 816-2-47.90Типовой проект 816-2-47.90Типовой проект 816-2-47.90Типовой проект 816-2-47.90Типовой проект 816-2-47.90Типовой проект 816-2-47.90Типовой проект 816-2-47.90Типовой проект 816-2-47.90Типовой проект 816-2-47.90Типовой проект 816-2-47.90Типовой проект 816-2-47.90Типовой проект 816-2-47.90Типовой проект 816-2-47.90Типовой проект 816-2-47.90Типовой проект 816-2-47.90Типовой проект 816-2-47.90Типовой проект 816-2-47.90Типовой проект 816-2-47.90Типовой проект 816-2-47.90Типовой проект 816-2-47.90Типовой проект 816-2-47.90Типовой проект 816-2-47.90Типовой проект 816-2-47.90Типовой проект 816-2-47.90Типовой проект 816-2-47.90Типовой проект 816-2-47.90Типовой проект 816-2-47.90Типовой проект 816-2-47.90

© 2013 Ёшкин Кот :-) Карта сайта