Информационная система
«Ёшкин Кот»

Скачать базу одним архивом
Скачать обновления
История создания базы
Карта сайта

Скачать Типовой проект 501-259 Часть I. Конструкции мостов

Дата актуализации: 10.08.2017

Типовой проект 501-259

Часть I. Конструкции мостов

Обозначение: Типовой проект 501-259
Обозначение англ: 501-259
Статус:действует
Название рус.:Часть I. Конструкции мостов
Дата добавления в базу:01.10.2014
Дата актуализации:05.05.2017
Оглавление:Пояснительная записка
Схемы мостов со свайными опорами
Схемы мостов с опорами на естественном основании
Примеры мостов со стоечными опорами на свайных фундаментах
Основные данные применяемых типовых конструкций. Пролетные строения
Основные данные применяемых типовых конструкций. Тротуарные консоли
Основные данные применяемых типовых конструкций. Сваи
Свайные опоры. Устои. Сборочный чертеж (основные данные)
Свайные опоры. Промежуточные опоры. Сборочный чертеж (основные данные)
Опоры на естественном основании. Устои. Сборочный чертеж (основные данные)
Опоры на естественном основании. Устои. Сборочный чертеж. Фундаментные плиты
Опоры на естественном основании. Промежуточные опоры. Сборочный чертеж (основные данные)
Опоры на естественном основании. Промежуточные опоры. Сборочный чертеж. Фундаментные плиты
Опоры под плитные пролетные строения
Примеры стоечных опор на свайных фундаментах
Расположение мостов на кривых
Условия применения опор на кривых
Расположение мостов на уклоне
Примеры решения станционных мостов
Маркировочная ведомость блоков опор
Стойки сечением 35х35 см. Опалубочные и арматурные чертежи
Стойки сечением 35х35 см. Спецификация арматуры
Стойки сечением 40х40 см. Опалубочные и арматурные чертежи
Стойки сечением 40х40 см. Спецификация арматуры
Блок Ш1. Опалубочный чертеж
Блок Ш1. Арматурный чертеж
Блок Ш2. Опалубочный чертеж
Блок Ш2. Арматурный чертеж
Блок Ш3. Опалубочный чертеж
Блок Ш3. Арматурный чертеж
Блок Ш4. Опалубочный чертеж
Блок Ш4. Арматурный чертеж
Блок Ш5. Опалубочный чертеж
Блок Ш5. Арматурный чертеж
Блоки Шк1 - Шк5. Опалубочные и арматурные чертежи
Блоки Ш1щом - Ш5щом. Опалубочные и арматурные чертежи
Блоки Пмв1 и Пмв2. Опалубочные чертежи
Блок Пмв1. Арматурный чертеж
Блок Пмв2. Арматурный чертеж
Блок НУ1. Опалубочный чертеж
Блок НУ1. Арматурный чертеж
Блок НУ2. Опалубочный чертеж
Блок НУ2. Арматурный чертеж
Блоки Н1 и Н2. Опалубочные чертежи
Блок Н1. Арматурный чертеж
Блок Н2. Арматурный чертеж
Блоки П1-1 - П1-4. Опалубочные и арматурные чертежи
Блоки П2-1 - П1-3. Опалубочные и арматурные чертежи
Блок Ф1. Опалубочный и арматурный чертежи
Блок Ф1`. Опалубочный и арматурный чертежи
Блок Ф2`. Опалубочный и арматурный чертежи
Блок Ф3-1. Опалубочный и арматурный чертежи
Блок Ф3-1`. Опалубочный и арматурный чертежи
Блок Ф3-2. Опалубочный и арматурный чертежи
Блок Ф3-2`. Опалубочный и арматурный чертежи
Блок Ф4. Опалубочный и арматурный чертежи
Блок Ф4`. Опалубочный и арматурный чертежи
Блок Ф5. Опалубочный и арматурный чертежи
Блок Ф6-1`. Опалубочный и арматурный чертежи
Блок Ф6-2`. Опалубочный и арматурный чертежи
Блоки ФП1 и ФП2. Опалубочные чертежи
Блоки ФП1 и ФП2. Арматурные чертежи
Блоки ФП3, ФП3`, ФП4, ФП4`. Опалубочные чертежи
Блоки ФП3, ФП3`, ФП4, ФП4`. Арматурные чертежи
Блоки ТП1 - ТП5. Опалубочные и арматурные чертежи
Блоки ТП6 - ТП10. Опалубочные и арматурные чертежи
Блоки ТП11 - ТП15. Опалубочные и арматурные чертежи
Насадки Нум1 - НУм5. Опалубочные чертежи
Насадки Нум1, НУм1`. Арматурный чертеж
Насадки Нум2, НУм4. Арматурный чертеж
Насадки Нум3, НУм5. Арматурный чертеж
Насадки Нум2 - НУм5. Армирование подферменников
Насадки Нм1 - Нм7. Опалубочные чертежи
Насадки Нм1 - Нм7. Армирование подферменников
Насадка Нм1. Арматурный чертеж
Насадки Нм2 - Нм4; Нм8-1 - Нм8-5. Арматурный чертеж
Насадки Нм5 - Нм4; Нм9-1 - Нм9-5. Арматурный чертеж
Насадки Нм8-1 - Нм8-5; Нм9-1 - Нм9-5. Опалубочные чертежи. Армирование подферменников
Насадки Нм8-1 - Нм8-5; Нм9-1 - Нм9-5. Армирование переходных подферменников
Фундаментная плита ФПм
Стыки свай и стоек с насадками
Стыки стоек сечением 35х35 см с фундаментными стаканами
Стыки стоек сечением 40х40 см с фундаментными стаканами
Омоноличивание блоков фундамента
Крепление шкафных блоков, переходных подферменников и плит мягкого въезда
Расположение анкеров опорных частей на подферменниках, на прямых участках пути
Расположение анкеров опорных частей на подферменниках, на кривых участках пути
Тротуары на устоях
Настилы для пропуска кабелей на устоях
Гидроизоляция опор
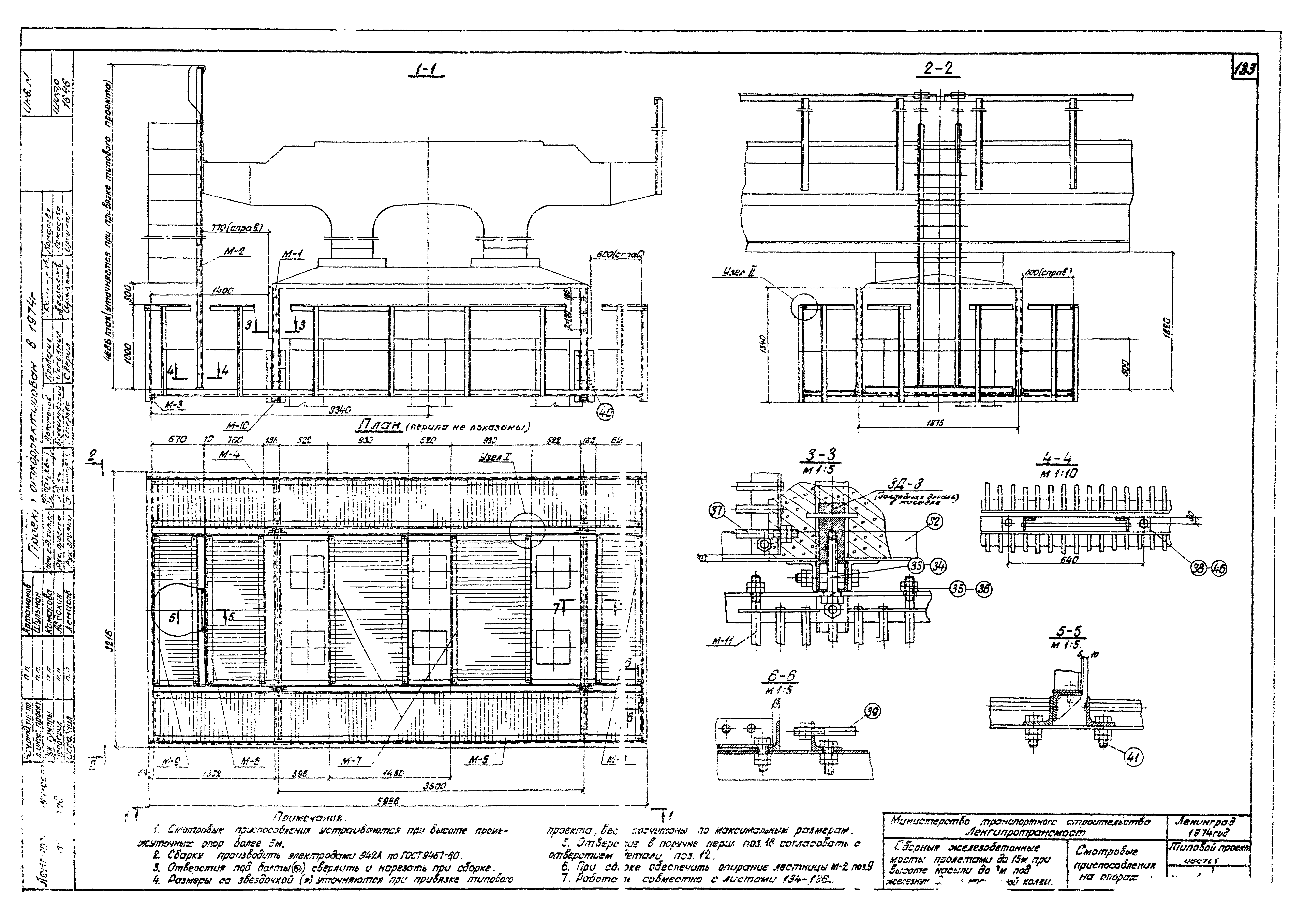
Смотровые приспособления на опорах
Разработан: Ленгипротрансмост
Утверждён:07.02.1975 МПС (Ministry of Railroads П3577)
Расположен в:Техническая документация Строительство Справочные документы Типовые строительные конструкции, изделия и узлы Общероссийский строительный каталог Строительные конструкции, изделия и узлы зданий и сооружений для всех видов строительства Конструкции и изделия сооружений и оборудования зданий Надземные сооружения Конструкции и сооружения транспорта Пролетные строения мостов, мосты и путепроводы
Типовой проект 501-259Типовой проект 501-259Типовой проект 501-259Типовой проект 501-259Типовой проект 501-259Типовой проект 501-259Типовой проект 501-259Типовой проект 501-259Типовой проект 501-259Типовой проект 501-259Типовой проект 501-259Типовой проект 501-259Типовой проект 501-259Типовой проект 501-259Типовой проект 501-259Типовой проект 501-259Типовой проект 501-259Типовой проект 501-259Типовой проект 501-259Типовой проект 501-259Типовой проект 501-259Типовой проект 501-259Типовой проект 501-259Типовой проект 501-259Типовой проект 501-259Типовой проект 501-259Типовой проект 501-259Типовой проект 501-259Типовой проект 501-259Типовой проект 501-259Типовой проект 501-259Типовой проект 501-259Типовой проект 501-259Типовой проект 501-259Типовой проект 501-259Типовой проект 501-259Типовой проект 501-259Типовой проект 501-259Типовой проект 501-259Типовой проект 501-259Типовой проект 501-259Типовой проект 501-259Типовой проект 501-259Типовой проект 501-259Типовой проект 501-259Типовой проект 501-259Типовой проект 501-259Типовой проект 501-259Типовой проект 501-259Типовой проект 501-259Типовой проект 501-259Типовой проект 501-259Типовой проект 501-259Типовой проект 501-259Типовой проект 501-259Типовой проект 501-259Типовой проект 501-259Типовой проект 501-259Типовой проект 501-259Типовой проект 501-259Типовой проект 501-259Типовой проект 501-259Типовой проект 501-259Типовой проект 501-259Типовой проект 501-259Типовой проект 501-259Типовой проект 501-259Типовой проект 501-259Типовой проект 501-259Типовой проект 501-259Типовой проект 501-259Типовой проект 501-259Типовой проект 501-259Типовой проект 501-259Типовой проект 501-259Типовой проект 501-259Типовой проект 501-259Типовой проект 501-259Типовой проект 501-259Типовой проект 501-259Типовой проект 501-259Типовой проект 501-259Типовой проект 501-259Типовой проект 501-259Типовой проект 501-259Типовой проект 501-259Типовой проект 501-259Типовой проект 501-259Типовой проект 501-259Типовой проект 501-259Типовой проект 501-259Типовой проект 501-259Типовой проект 501-259Типовой проект 501-259Типовой проект 501-259Типовой проект 501-259Типовой проект 501-259Типовой проект 501-259Типовой проект 501-259Типовой проект 501-259Типовой проект 501-259Типовой проект 501-259Типовой проект 501-259Типовой проект 501-259Типовой проект 501-259Типовой проект 501-259Типовой проект 501-259Типовой проект 501-259Типовой проект 501-259Типовой проект 501-259Типовой проект 501-259Типовой проект 501-259Типовой проект 501-259Типовой проект 501-259Типовой проект 501-259Типовой проект 501-259Типовой проект 501-259Типовой проект 501-259Типовой проект 501-259Типовой проект 501-259Типовой проект 501-259Типовой проект 501-259Типовой проект 501-259Типовой проект 501-259Типовой проект 501-259Типовой проект 501-259Типовой проект 501-259Типовой проект 501-259Типовой проект 501-259Типовой проект 501-259Типовой проект 501-259Типовой проект 501-259Типовой проект 501-259Типовой проект 501-259Типовой проект 501-259Типовой проект 501-259

© 2013 Ёшкин Кот :-) Карта сайта