Информационная система
«Ёшкин Кот»

Скачать базу одним архивом
Скачать обновления
История создания базы
Карта сайта

Скачать Типовой проект 704-1-58 Альбом VI. Оборудование резервуара для темных нефтепродуктов

Дата актуализации: 10.08.2017

Типовой проект 704-1-58

Альбом VI. Оборудование резервуара для темных нефтепродуктов

Обозначение: Типовой проект 704-1-58
Обозначение англ: 704-1-58
Статус:действует
Название рус.:Альбом VI. Оборудование резервуара для темных нефтепродуктов
Дата добавления в базу:01.10.2014
Дата актуализации:05.05.2017
Оглавление:Содержание альбома
Пояснительная записка
Общий вид оборудования резервуара
Общий вид оборудования резервуара. Спецификация
Установка приемо-раздаточного патрубка Dy400. Узел "А"
Установка приемо-раздаточного патрубка Dy500. Узел "А"
Установка вентиляционного патрубка ВП-400
Установка вентиляционного патрубка ВП-500
Подогревательная система поверхностью нагрева F = 220 кв. м. Общий вид. Расположение оборудования
Подогревательная система поверхностью нагрева F = 280 кв. м. Общий вид. Расположение оборудования
Подогреватель секционный ПС-6
Подогреватель секционный ПС-3
Подогревательная система. Опоры №1 - 9; 2а - 6а; 26
Подогревательная система. Опоры №10 - 13; 20 - 23
Подогревательная система. Опоры №14 - 19; 24; 25; 27 - 31
Подогревательная система. Опоры №32, 33, 34
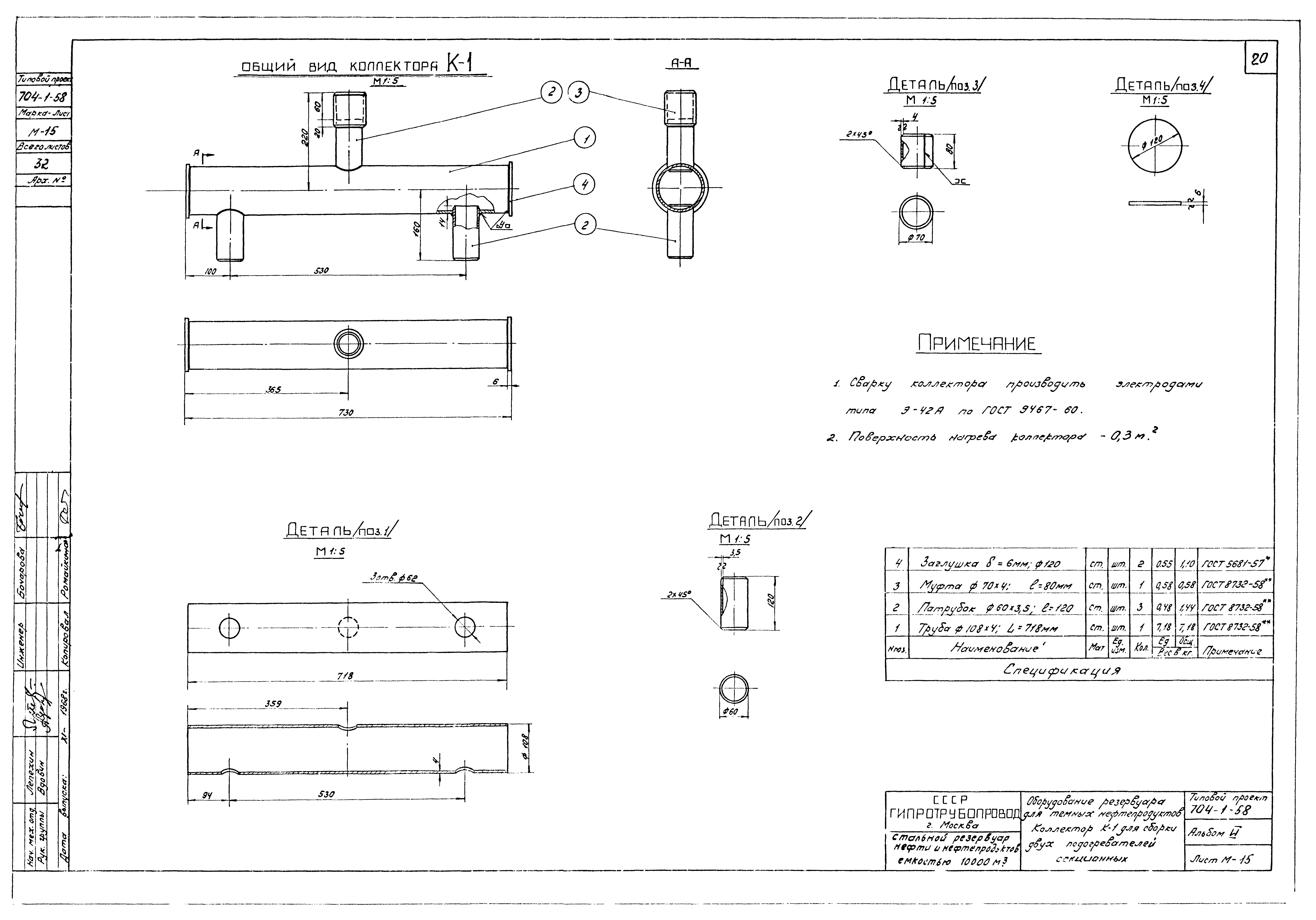
Коллектор К-1 для сборки двух подогревателей секционных
Узел ввода теплоносителя
Шкаф к паровому узлу секционных подогревателей. Общий вид
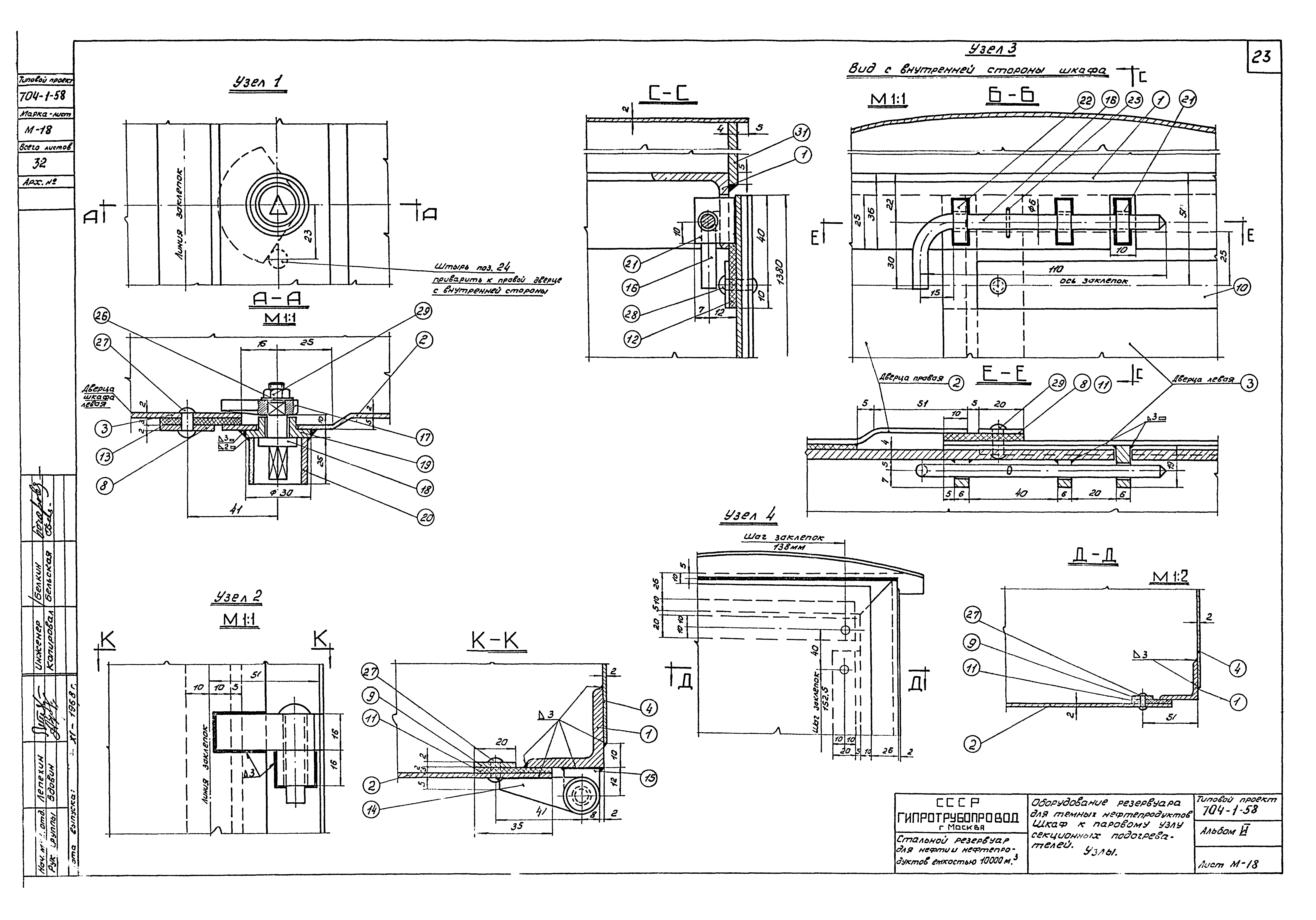
Шкаф к паровому узлу секционных подогревателей. Узлы
Шкаф к паровому узлу секционных подогревателей. Детали
Установка кольца орошения
Принципиальная схема стационарной установки пеногенераторов типа ГВП
Принципиальная схема автоматизации
Грозозащита и защита от статического электричества. Общий вид
Грозозащита. Крепление молниеотвода к корпусу резервуара
Принципиальная схема управления электродвигателя хлопушки
Разработан: ЦНИИпроектстальконструкция
Утверждён:19.10.1970 ЦНИИпроектстальконструкция (TsNIIprojectstalkonstruktsiya 185)
Расположен в:Техническая документация Строительство Справочные документы Типовые строительные конструкции, изделия и узлы Общероссийский строительный каталог Промышленные предприятия, здания и сооружения Предприятия, здания и сооружения складские Резервуары и склады для нефти и нефтепродуктов Резервуары стальные для нефти и нефтепродуктов
Типовой проект 704-1-58Типовой проект 704-1-58Типовой проект 704-1-58Типовой проект 704-1-58Типовой проект 704-1-58Типовой проект 704-1-58Типовой проект 704-1-58Типовой проект 704-1-58Типовой проект 704-1-58Типовой проект 704-1-58Типовой проект 704-1-58Типовой проект 704-1-58Типовой проект 704-1-58Типовой проект 704-1-58Типовой проект 704-1-58Типовой проект 704-1-58Типовой проект 704-1-58Типовой проект 704-1-58Типовой проект 704-1-58Типовой проект 704-1-58Типовой проект 704-1-58Типовой проект 704-1-58Типовой проект 704-1-58Типовой проект 704-1-58Типовой проект 704-1-58Типовой проект 704-1-58Типовой проект 704-1-58Типовой проект 704-1-58Типовой проект 704-1-58Типовой проект 704-1-58Типовой проект 704-1-58Типовой проект 704-1-58Типовой проект 704-1-58

© 2013 Ёшкин Кот :-) Карта сайта