Информационная система
«Ёшкин Кот»

Скачать базу одним архивом
Скачать обновления
История создания базы
Карта сайта

Скачать Типовой проект 704-1-58 Альбом V. Оборудование резервуара для светлых нефтепродуктов

Дата актуализации: 10.08.2017

Типовой проект 704-1-58

Альбом V. Оборудование резервуара для светлых нефтепродуктов

Обозначение: Типовой проект 704-1-58
Обозначение англ: 704-1-58
Статус:действует
Название рус.:Альбом V. Оборудование резервуара для светлых нефтепродуктов
Дата добавления в базу:01.10.2014
Дата актуализации:05.05.2017
Оглавление:Содержание альбома
Пояснительная записка
Общий вид оборудования резервуара для хранения светлых нефтепродуктов (кроме дизтоплива)
Общий вид оборудования резервуара для хранения светлых нефтепродуктов (кроме дизтоплива). Спецификация
Общий вид оборудования резервуара для хранения дизтоплива
Общий вид оборудования резервуара для хранения дизтоплива. Спецификация
Установка приемо-раздаточного патрубка Dy400. Узел "А"
Установка приемо-раздаточного патрубка Dy500. Узел "А"
Установка клапана непримерзающего двухмембранного НДКМ-350
Установка клапана предохранительного гидравлического КПГ-350
Установка огневого предохранителя ОП-500 с вентиляционным патрубком ВП-500
Подогревательная система поверхностью нагрева F = 93 кв. м
Подогревательная система поверхностью нагрева F = 138 кв. м
Подогреватель секционный ПС-6
Подогревательная система. Опоры №1; 22 - 24
Подогревательная система. Опоры №2 - 15; 25 - 38
Подогревательная система. Опоры №16 - 21; 39 - 44
Подогревательная система. Опоры №45 - 47
Коллектор К-1 для сборки двух подогревателей секционных
Узел ввода теплоносителя
Шкаф к паровому узлу секционных подогревателей. Общий вид
Шкаф к паровому узлу секционных подогревателей. Узлы
Шкаф к паровому узлу секционных подогревателей. Детали
Установка кольца орошения
Принципиальная схема автоматизации для резервуара с подогревом
Принципиальная схема автоматизации для резервуара без подогрева
Установка указателя уровня УДУ-5
Установка пробоотборника ПСР-4
Грозозащита и защита от статического электричества. Общий вид
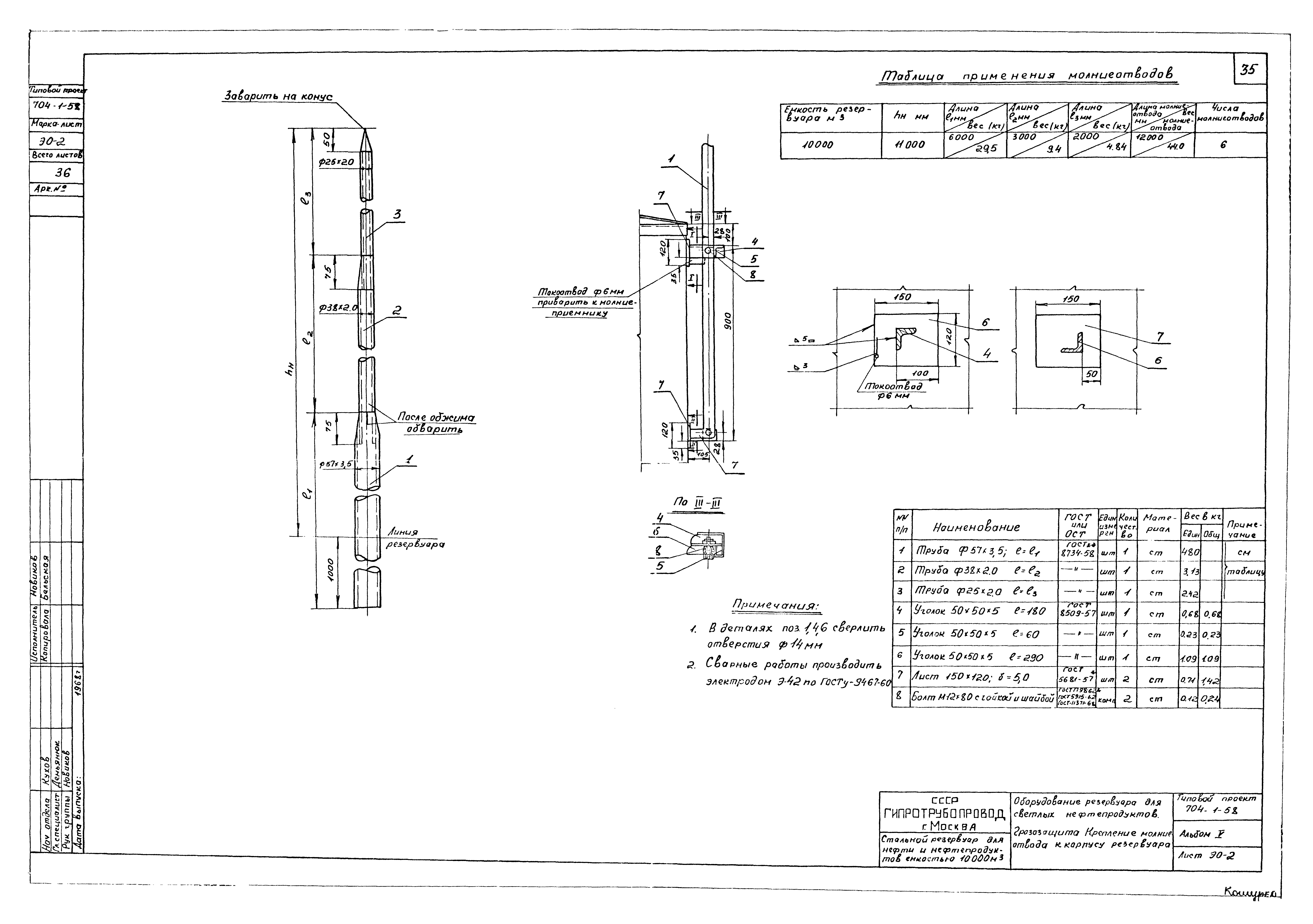
Грозозащита. Крепление молниеотвода к корпусу резервуара
Принципиальная схема управления электродвигателя хлопушки
Разработан: ЦНИИпроектстальконструкция
Утверждён:19.10.1970 ЦНИИпроектстальконструкция (TsNIIprojectstalkonstruktsiya 185)
Расположен в:Техническая документация Строительство Справочные документы Типовые строительные конструкции, изделия и узлы Общероссийский строительный каталог Промышленные предприятия, здания и сооружения Предприятия, здания и сооружения складские Резервуары и склады для нефти и нефтепродуктов Резервуары стальные для нефти и нефтепродуктов
Типовой проект 704-1-58Типовой проект 704-1-58Типовой проект 704-1-58Типовой проект 704-1-58Типовой проект 704-1-58Типовой проект 704-1-58Типовой проект 704-1-58Типовой проект 704-1-58Типовой проект 704-1-58Типовой проект 704-1-58Типовой проект 704-1-58Типовой проект 704-1-58Типовой проект 704-1-58Типовой проект 704-1-58Типовой проект 704-1-58Типовой проект 704-1-58Типовой проект 704-1-58Типовой проект 704-1-58Типовой проект 704-1-58Типовой проект 704-1-58Типовой проект 704-1-58Типовой проект 704-1-58Типовой проект 704-1-58Типовой проект 704-1-58Типовой проект 704-1-58Типовой проект 704-1-58Типовой проект 704-1-58Типовой проект 704-1-58Типовой проект 704-1-58Типовой проект 704-1-58Типовой проект 704-1-58Типовой проект 704-1-58Типовой проект 704-1-58Типовой проект 704-1-58Типовой проект 704-1-58Типовой проект 704-1-58Типовой проект 704-1-58

© 2013 Ёшкин Кот :-) Карта сайта