Информационная система
«Ёшкин Кот»

Скачать базу одним архивом
Скачать обновления
История создания базы
Карта сайта

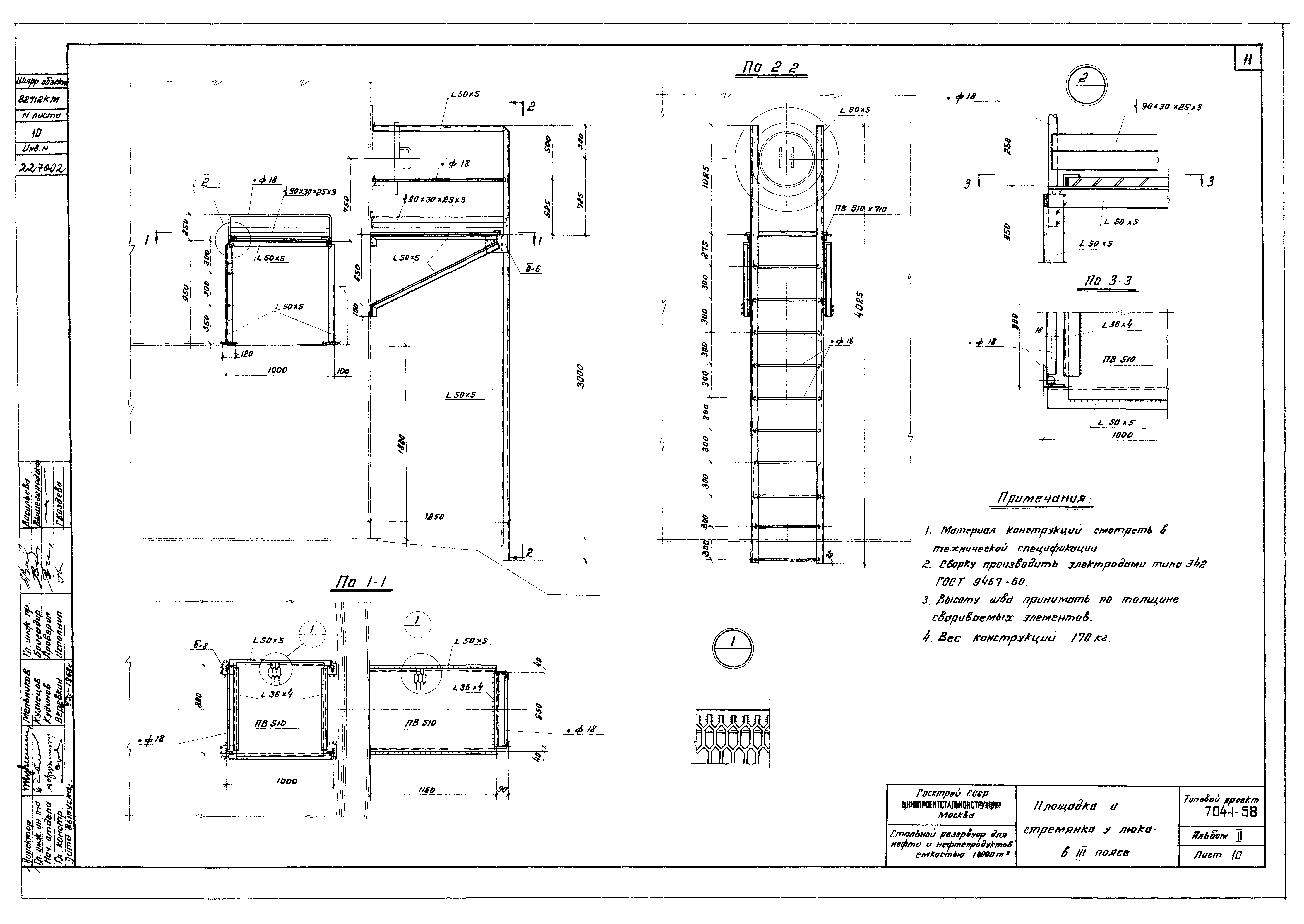
Скачать Типовой проект 704-1-58 Альбом II. Рабочие чертежи КМ понтона

Дата актуализации: 10.08.2017

Типовой проект 704-1-58

Альбом II. Рабочие чертежи КМ понтона

Обозначение: Типовой проект 704-1-58
Обозначение англ: 704-1-58
Статус:действует
Название рус.:Альбом II. Рабочие чертежи КМ понтона
Дата добавления в базу:01.10.2014
Дата актуализации:05.05.2017
Оглавление:Содержание альбома
Пояснительная записка
Техническая спецификация стали и материалов на понтон
Понтон. План и разрез
Понтон. Монтажный стык и подкладки под стойки
Понтон. Днище
Понтон. Детали и узлы
Ограждения и обслуживающие площадки на крыше
Площадка на крыше
Площадка и стремянка у люка в III поясе
Площадка и стремянка для обслуживания пеногенератора
Люк пробоотборника в I поясе стенки Dy250
Люк-лаз в III поясе стенки Dy500
Патрубок в понтоне для УДУ Dy600
Патрубок в понтоне для кожуха пробоотборника и труба ручного замера Dy350
Люк монтажный на понтоне Dy1000
Патрубок огневого предохранителя Dy500
Кожух пробоотборника Dy200
Труба ручного замера Dy200
Усиление стенки в месте прохода трубы пеногенератора и бортик для удержания гасительной пены
Петлевой затвор
Техническая спецификация стали на оборудование резервуара с понтоном
Разработан: ЦНИИпроектстальконструкция
Утверждён:19.10.1970 ЦНИИпроектстальконструкция (TsNIIprojectstalkonstruktsiya 185)
Расположен в:Техническая документация Строительство Справочные документы Типовые строительные конструкции, изделия и узлы Общероссийский строительный каталог Промышленные предприятия, здания и сооружения Предприятия, здания и сооружения складские Резервуары и склады для нефти и нефтепродуктов Резервуары стальные для нефти и нефтепродуктов
Типовой проект 704-1-58Типовой проект 704-1-58Типовой проект 704-1-58Типовой проект 704-1-58Типовой проект 704-1-58Типовой проект 704-1-58Типовой проект 704-1-58Типовой проект 704-1-58Типовой проект 704-1-58Типовой проект 704-1-58Типовой проект 704-1-58Типовой проект 704-1-58Типовой проект 704-1-58Типовой проект 704-1-58Типовой проект 704-1-58Типовой проект 704-1-58Типовой проект 704-1-58Типовой проект 704-1-58Типовой проект 704-1-58Типовой проект 704-1-58Типовой проект 704-1-58Типовой проект 704-1-58Типовой проект 704-1-58Типовой проект 704-1-58

© 2013 Ёшкин Кот :-) Карта сайта