Информационная система
«Ёшкин Кот»

Скачать базу одним архивом
Скачать обновления
История создания базы
Карта сайта

Скачать Типовой проект 704-1-57 Альбом V. Оборудование резервуара для светлых нефтепродуктов

Дата актуализации: 10.08.2017

Типовой проект 704-1-57

Альбом V. Оборудование резервуара для светлых нефтепродуктов

Обозначение: Типовой проект 704-1-57
Обозначение англ: 704-1-57
Статус:действует
Название рус.:Альбом V. Оборудование резервуара для светлых нефтепродуктов
Дата добавления в базу:01.10.2014
Дата актуализации:05.05.2017
Оглавление:Содержание альбома
Пояснительная записка
Общий вид оборудования резервуара для хранения светлых нефтепродуктов (кроме дизтоплива)
Общий вид оборудования резервуара для хранения светлых нефтепродуктов (кроме дизтоплива). Спецификация
Общий вид оборудования резервуара для хранения дизельного топлива
Общий вид оборудования резервуара для хранения дизельного топлива. Спецификация
Установка приемо-раздаточных патрубков Dy350. Узел "А"
Установка приемо-раздаточных патрубков Dy400. Узел "А"
Установка приемо-раздаточных патрубков Dy500. Узел "А"
Установка клапана непримерзающего двухмембранного типа НДКМ-200
Установка клапана непримерзающего двухмембранного типа НДКМ-250
Установка клапана предохранительного гидравлического типа КПГ-200
Установка клапана предохранительного гидравлического типа КПГ-250
Установка огневого предохранителя ОП-400 с вентиляционным патрубком ВП-400
Установка огневого предохранителя ОП-400 с вентиляционным патрубком ВП-500
Расположение секционных подогревателей общей поверхностью нагрева 28,1 кв. м
Расположение секционных подогревателей общей поверхностью нагрева 53 кв. м
Подогревательный элемент ПЭ-4
Подогревательная система. Стойка С-2
Подогревательная система. Стойка С-4
Подогревательная система. Стойка С-5
Коллектор К-1 для сборки двух подогревательных элементов
Коллектор К-3 для сборки четырех подогревательных элементов
Узел ввода теплоносителя
Шкаф к узлу ввода теплоносителя. Общий вид
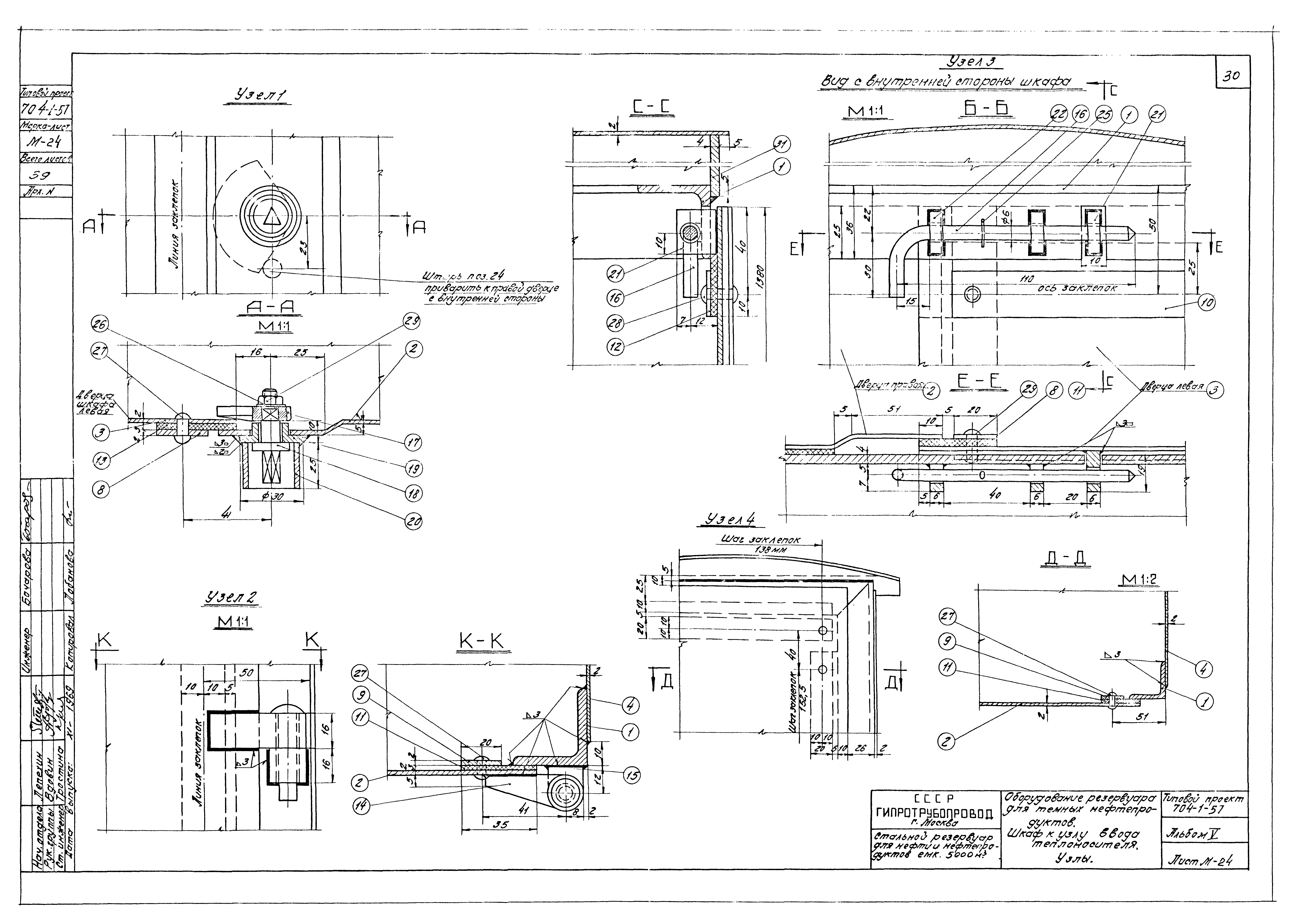
Шкаф к узлу ввода теплоносителя. Узлы
Шкаф к узлу ввода теплоносителя. Детали
Установка термометра технического ртутного. Общий вид. Узлы. Детали
Принципиальная схема стационарной установки пеногенератора типа ГВП-2000
Принципиальная схема автоматизации (без подогрева)
Принципиальная схема автоматизации (с подогревом)
Установка указателя уровня УДУ-5
Грозозащита и заземление
Разработан: ЦНИИпроектстальконструкция
Утверждён:29.12.1969 ЦНИИпроектстальконструкция (TsNIIprojectstalkonstruktsiya 221)
Расположен в:Техническая документация Строительство Справочные документы Типовые строительные конструкции, изделия и узлы Общероссийский строительный каталог Промышленные предприятия, здания и сооружения Предприятия, здания и сооружения складские Резервуары и склады для нефти и нефтепродуктов Резервуары стальные для нефти и нефтепродуктов
Типовой проект 704-1-57Типовой проект 704-1-57Типовой проект 704-1-57Типовой проект 704-1-57Типовой проект 704-1-57Типовой проект 704-1-57Типовой проект 704-1-57Типовой проект 704-1-57Типовой проект 704-1-57Типовой проект 704-1-57Типовой проект 704-1-57Типовой проект 704-1-57Типовой проект 704-1-57Типовой проект 704-1-57Типовой проект 704-1-57Типовой проект 704-1-57Типовой проект 704-1-57Типовой проект 704-1-57Типовой проект 704-1-57Типовой проект 704-1-57Типовой проект 704-1-57Типовой проект 704-1-57Типовой проект 704-1-57Типовой проект 704-1-57Типовой проект 704-1-57Типовой проект 704-1-57Типовой проект 704-1-57Типовой проект 704-1-57Типовой проект 704-1-57Типовой проект 704-1-57Типовой проект 704-1-57Типовой проект 704-1-57Типовой проект 704-1-57Типовой проект 704-1-57Типовой проект 704-1-57Типовой проект 704-1-57Типовой проект 704-1-57Типовой проект 704-1-57Типовой проект 704-1-57Типовой проект 704-1-57

© 2013 Ёшкин Кот :-) Карта сайта