Информационная система
«Ёшкин Кот»

Скачать базу одним архивом
Скачать обновления
История создания базы
Карта сайта

Скачать Типовой проект 901-3-120 Альбом IV. Санитарно-техническая и электротехническая части

Дата актуализации: 10.08.2017

Типовой проект 901-3-120

Альбом IV. Санитарно-техническая и электротехническая части

Обозначение: Типовой проект 901-3-120
Обозначение англ: 901-3-120
Статус:заменен
Название рус.:Альбом IV. Санитарно-техническая и электротехническая части
Дата добавления в базу:01.10.2014
Дата актуализации:05.05.2017
Дата введения:01.06.1985
Оглавление:Содержание
Чертежи основного комплекта марки ОВ
   Общие данные
   Планы на отм. 0.000 и 3.300 с нанесением системы отопления и вентиляции
   Схема трубопроводов системы отопления. Схемы систем вентиляции П-1, В-1, В-2, ВЕ-1
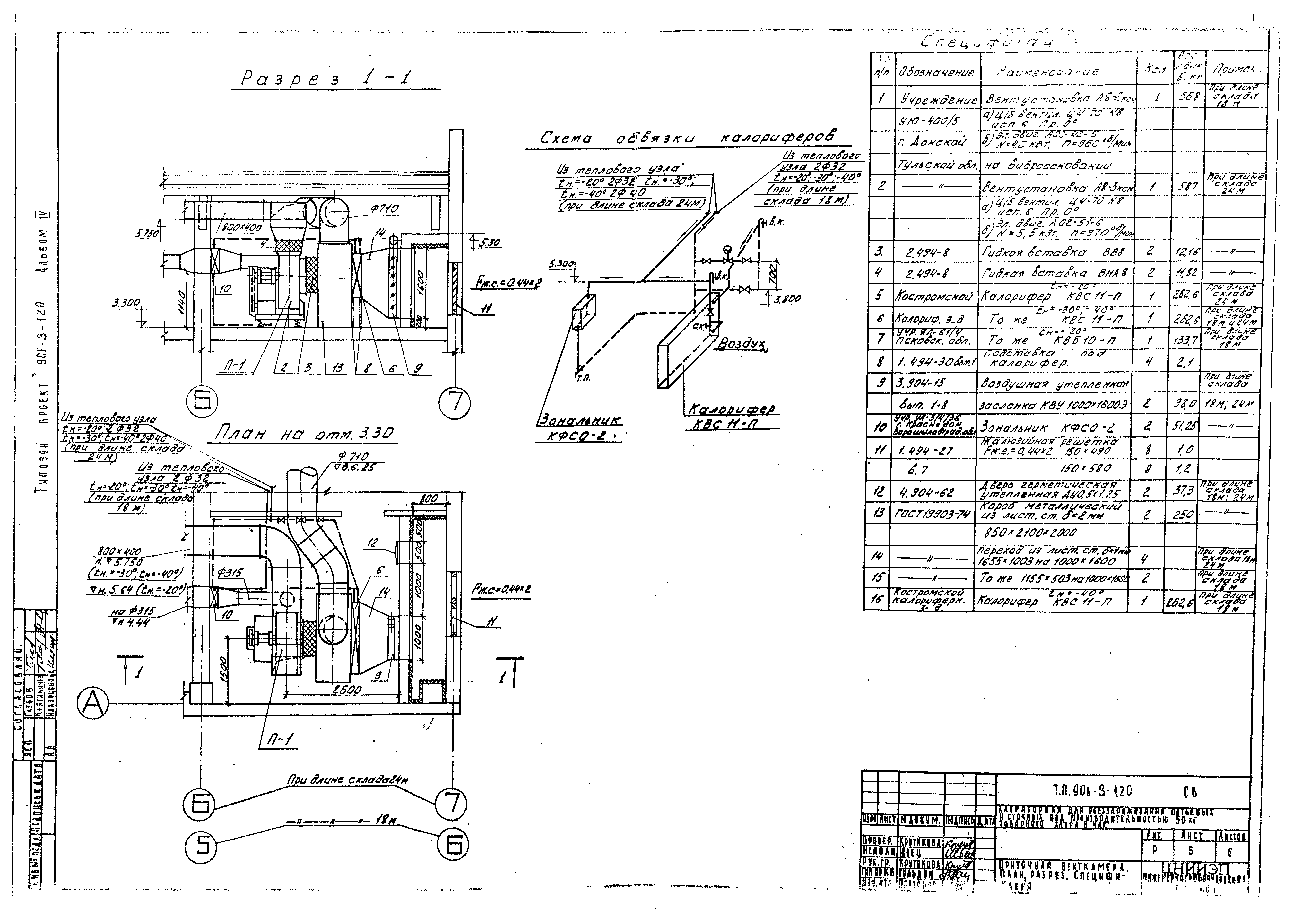
   Узел управления. Приточная венткамера. План, разрез, спецификация
   Узел управления. Вытяжная венткамера. План, разрез, спецификация
Чертежи основного комплекта марки ВК
   Общие данные
   План. Схема питьевого водопровода
   Схемы технического водопровода. Схемы канализации. Спецификация
Чертежи основного комплекта марки ЭЛ
   Общие данные
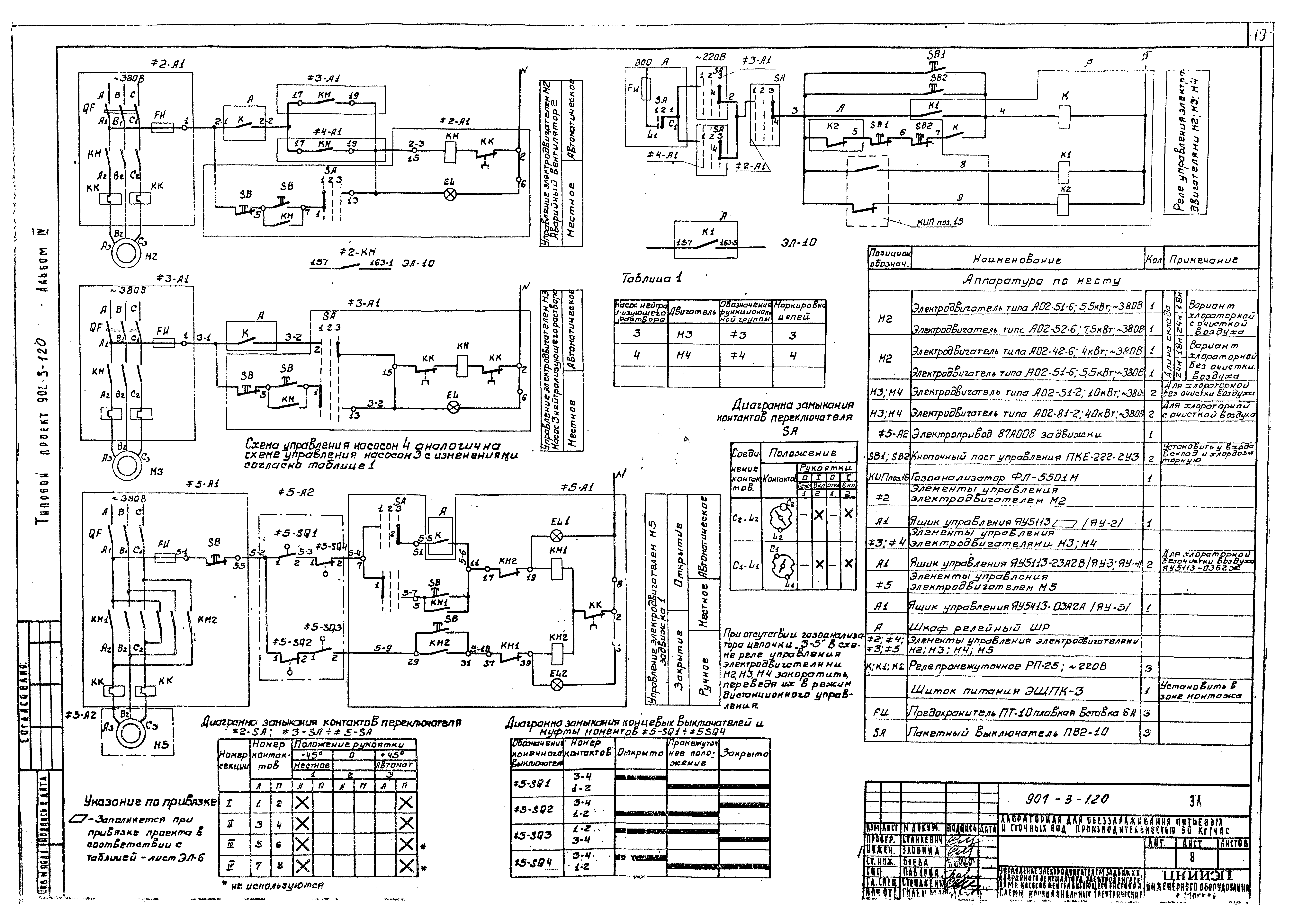
   Ведомость электрооборудования изделий и материалов
   Питание электрооборудования. Схема принципиальная электрическая
   Управление электродвигателями насосов повысителей напора электродвигателем вентилятора
   Управление электродвигателем задвижки, аварийного вентилятора, электродвигателями
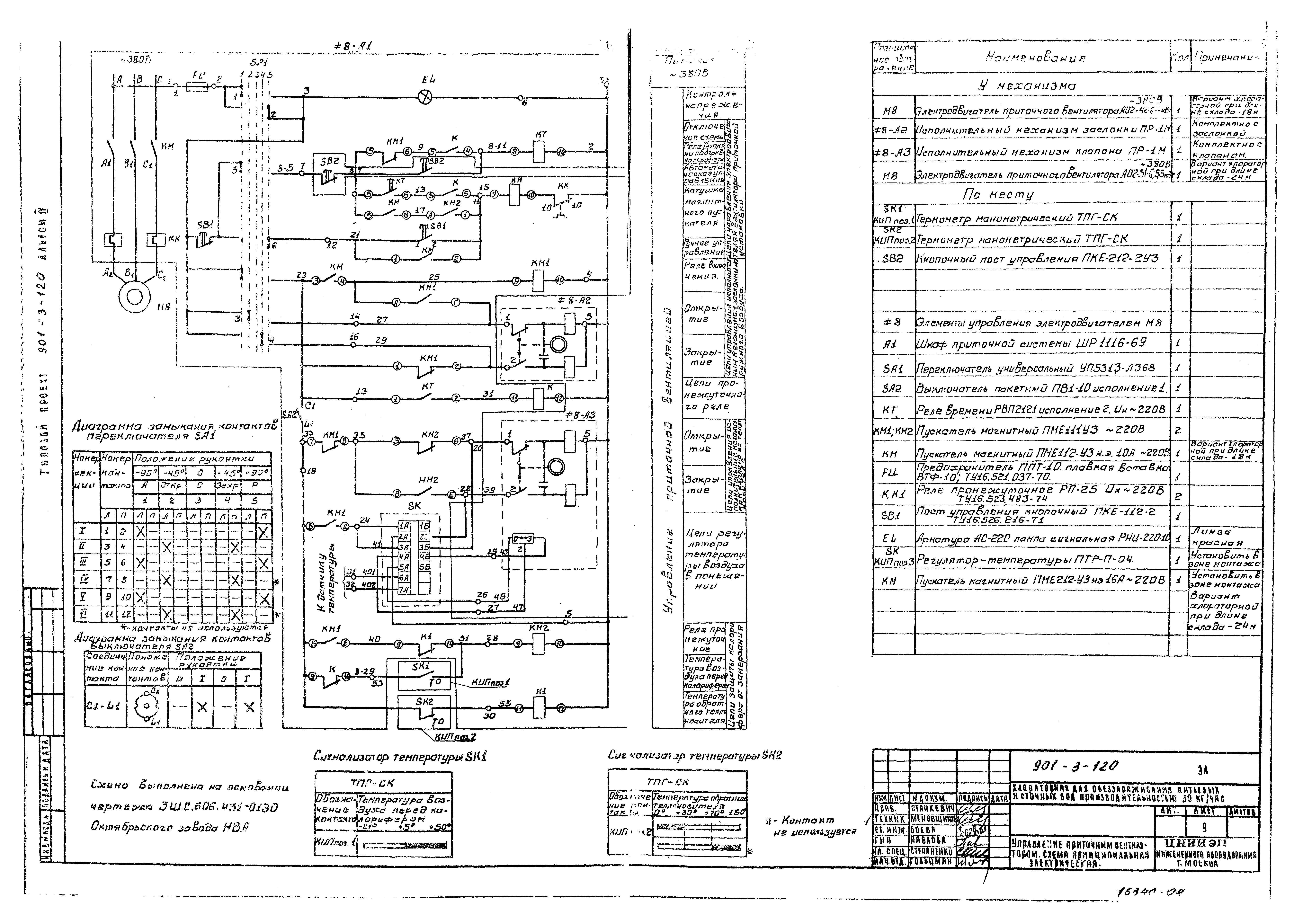
   Управление приточным вентилятором. Схема принципиальная электрическая
   Аварийная сигнализация. Схема принципиальная электрическая
   Схема подключения электрооборудования
   Схема подключения приборов технологического контроля
   Кабельный журнал
   Размещение электрооборудования и прокладка кабеля. План на отм. 0.000
   Размещение электрооборудования и прокладка кабеля. План на отм. 3.300. Спецификация электрооборудования
   Конструкция для установки газоанализатора
   Электрическое освещение. План на отм. 0.000
   Электрическое освещение. План на отм. 3.300
   Заземление. План на отм. 0.000 и 3.300. Молниезащита. План кровли
Разработан: ЦНИИЭП иженерного оборудования
Утверждён:12.03.1979 Госгражданстрой (Gosgrazhdanstroy 56)
Расположен в:Техническая документация Строительство Справочные документы Типовые строительные конструкции, изделия и узлы Общероссийский строительный каталог Промышленные предприятия, здания и сооружения Здания и сооружения санитарно-технические Водоснабжение Сооружения и установки по обеззараживанию воды Реагентное хозяйство для станций очистки
Заменяет собой:
  • Типовой проект 901-3-10/70
Чем заменён:
Типовой проект 901-3-120Типовой проект 901-3-120Типовой проект 901-3-120Типовой проект 901-3-120Типовой проект 901-3-120Типовой проект 901-3-120Типовой проект 901-3-120Типовой проект 901-3-120Типовой проект 901-3-120Типовой проект 901-3-120Типовой проект 901-3-120Типовой проект 901-3-120Типовой проект 901-3-120Типовой проект 901-3-120Типовой проект 901-3-120Типовой проект 901-3-120Типовой проект 901-3-120Типовой проект 901-3-120Типовой проект 901-3-120Типовой проект 901-3-120Типовой проект 901-3-120Типовой проект 901-3-120Типовой проект 901-3-120Типовой проект 901-3-120Типовой проект 901-3-120Типовой проект 901-3-120Типовой проект 901-3-120Типовой проект 901-3-120Типовой проект 901-3-120Типовой проект 901-3-120Типовой проект 901-3-120Типовой проект 901-3-120Типовой проект 901-3-120Типовой проект 901-3-120

© 2013 Ёшкин Кот :-) Карта сайта